Property
Account |
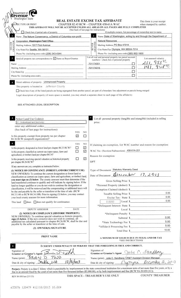
| Property ID: | 21457 | Abbreviated Legal Description: | S10 T29 R1W TAX 67 |
| Parcel # / Geo ID: | 901103002 | Agent Code: | |
| Type: | Real | | |
| Tax Area: | 0211 - 1-49F1E1H2L1 | Land Use Code | 91 |
| Open Space: | N | DFL | N |
| Historic Property: | N | Remodel Property: | N |
| Multi-Family Redevelopment: | N | | |
| Township: | 29N | Section: | 10 |
| Range: | 1W |
Location |
| Address: | | Mapsco: | 207/019 |
| Neighborhood: | S9,10 T29N R1W; NICHOLSON'S, ROGER'S LP; FINNERTY, PUGET SP | Map ID: | |
| Neighborhood CD: | 4230 |
Owner |
| Name: | JOSEPH T FULTON | Owner ID: | 96849 |
| Mailing Address: | PO BOX 1011 PORT HADLOCK, WA 98339-1011 | % Ownership: | 100.0000000000% |
| | | Exemptions: | |
Pay Tax Due
There is currently No Amount Due on this property.
Taxes and Assessment Details
Property Tax Information as of
10/24/2025
Click on "Statement Details" to expand or collapse a tax statement.
* Please enter a valid date ** Please enter a valid date *
Statement Details |
| | TOTAL: | $0.00 | $0.00 | $0.00 | $0.00 | $0.00 | $0.00 |
|
| | $0.00 | $0.00 | $0.00 | $0.00 | $0.00 | $0.00 |
Values
| (+) Improvement Homesite Value: | + | $0 | |
| (+) Improvement Non-Homesite Value: | + | $0 | |
| (+) Land Homesite Value: | + | $0 | |
| (+) Land Non-Homesite Value: | + | $72,191 | |
| (+) Curr Use (HS): | + | $0 | $0 |
| (+) Curr Use (NHS): | + | $0 | $0 |
| | | -------------------------- | |
| (=) Market Value: | = | $72,191 | |
| (–) Productivity Loss: | – | $0 | |
| | | -------------------------- | |
| (=) Subtotal: | = | $72,191 | |
| (+) Senior Appraised Value: | + | $0 | |
| (+) Non-Senior Appraised Value: | + | $72,191 | |
| | | -------------------------- | |
| (=) Total Appraised Value: | = | $72,191 | |
| (–) Senior Exemption Loss: | – | $0 | |
| (–) Exemption Loss: | – | $0 | |
| | | -------------------------- | |
| (=) Taxable Value: | = | $72,191 | |
Taxing Jurisdiction
| Owner: | JOSEPH T FULTON | | |
| % Ownership: | 100.0000000000% | | |
| Total Value: | N/A | | |
| Tax Area: | 0211 - 1-49F1E1H2L1 |
| CE | COUNTY CURRENT EXPENSE | N/A | N/A | N/A | N/A | | |
| CNTYDD | DEVELOPMENTAL DISABILITIES | N/A | N/A | N/A | N/A | | |
| CNTYVET | VETERANS RELIEF | N/A | N/A | N/A | N/A | | |
| MENTAL | MENTAL HEALTH | N/A | N/A | N/A | N/A | | |
| ROADS | COUNTY ROADS | N/A | N/A | N/A | N/A | | |
| ROADSCU | COUNTY ROADS TO CUR EXP | N/A | N/A | N/A | N/A | | |
| HOSP2CASH | HOSP DIST #2 GENERAL | N/A | N/A | N/A | N/A | | |
| SCH49CP | SCHOOL DIST #49 CAP PROJ | N/A | N/A | N/A | N/A | | |
| SCH49MO | SCHOOL DIST #49 EP & O | N/A | N/A | N/A | N/A | | |
| CONSERVE | CONSERVATION FUTURES | N/A | N/A | N/A | N/A | | |
| EMS1 | FIRE DIST #1 EMS | N/A | N/A | N/A | N/A | | |
| FD1 | FIRE DIST #1 GENERAL | N/A | N/A | N/A | N/A | | |
| LIB1 | LIBRARY DIST #1 GENERAL | N/A | N/A | N/A | N/A | | |
| PORTPT | PORT OF PT GENERAL | N/A | N/A | N/A | N/A | | |
| PORTPTIDD | PORT OF PT IDD 2019 | N/A | N/A | N/A | N/A | | |
| PUD1 | PUD #1 GENERAL | N/A | N/A | N/A | N/A | | |
| STATE | STATE SCHOOL PART 1 | N/A | N/A | N/A | N/A | | |
| STATE2 | STATE SCHOOL PART 2 | N/A | N/A | N/A | N/A | | |
| | Total Tax Rate: | N/A | | | | | |
| | | | | Taxes w/Current Exemptions: | N/A | | |
| | | | | Taxes w/o Exemptions: | N/A | | |
Improvement / Building
Sketch
| No sketches available for this property. |
Property Image
Land
| 1 | 4230-1374S | Residential Sites 1+/- Ac VG Territorial Views | 1.0000 | 43560.00 | 0.00 | 0.00 | 1.00 | $61,875 | $0 |
| 2 | 1577A | Terr/Mtn/No View <6 Acres | 1.2100 | 52707.60 | 0.00 | 0.00 | 0.00 | $10,316 | $0 |
Roll Value History
| 2025 | N/A | N/A | N/A | N/A | N/A |
| 2024 | $0 | $68,910 | $0 | $68,910 | $68,910 |
| 2023 | $0 | $65,325 | $0 | $65,325 | $65,325 |
| 2022 | $0 | $64,720 | $0 | $64,720 | $64,720 |
| 2021 | $0 | $60,626 | $0 | $60,626 | $60,626 |
Deed and Sales History
| 1 | 02/27/2017 | SWD | Statutory Warranty Deed | JOAN SULLIVAN SPECIAL NEEDS TRUST | JOSEPH T FULTON | | | $55,000.00 | 127245 | |
|   | |
| 2 | 09/24/2014 | SWD | Statutory Warranty Deed | GEORGE BALASKI | JOAN SULLIVAN SPECIAL NEEDS TRUST | | | $37,000.00 | 121937 | |
|   | |
| 3 | 04/22/2002 | SWD | Statutory Warranty Deed | PATRICK J MEEHAN | GEORGE A BALASKI | 0 | 0 | $2,500.00 | 94492 | 0 |
Payout Agreement
| No payout information available.. |