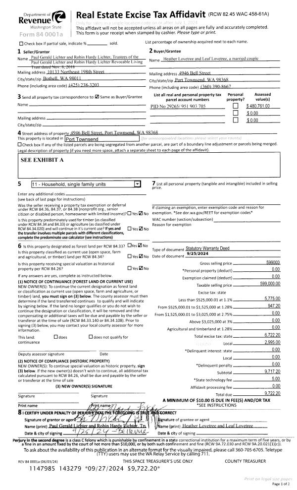
Property
Account |
| Property ID: | 21464 | Abbreviated Legal Description: | FINNERTY-HANSEN SHORT PLAT LOT 1 SUBJ/EASE |
| Parcel # / Geo ID: | 901103010 | Agent Code: | |
| Type: | Real | | |
| Tax Area: | 0211 - 1-49F1E1H2L1 | Land Use Code | 11 |
| Open Space: | N | DFL | N |
| Historic Property: | N | Remodel Property: | N |
| Multi-Family Redevelopment: | N | | |
| Township: | 29N | Section: | 10 |
| Range: | 1W |
Location |
| Address: | 2090 ANDERSON LAKE RD CHIMACUM, WA 98325 | Mapsco: | 230/009 |
| Neighborhood: | S9,10 T29N R1W; NICHOLSON'S, ROGER'S LP; FINNERTY, PUGET SP | Map ID: | |
| Neighborhood CD: | 4230 |
Owner |
| Name: | BRADLEY & TAMMY LOU KOTHMAN | Owner ID: | 112215 |
| Mailing Address: | PO BOX 57 PORT HADLOCK, WA 98339-0057 | % Ownership: | 100.0000000000% |
| | | Exemptions: | |
Pay Tax Due
There is currently No Amount Due on this property.
Taxes and Assessment Details
Property Tax Information as of
10/24/2025
Click on "Statement Details" to expand or collapse a tax statement.
* Please enter a valid date ** Please enter a valid date *
Statement Details |
| | TOTAL: | $0.00 | $0.00 | $0.00 | $0.00 | $0.00 | $0.00 |
|
| | $0.00 | $0.00 | $0.00 | $0.00 | $0.00 | $0.00 |
Values
| (+) Improvement Homesite Value: | + | $0 | |
| (+) Improvement Non-Homesite Value: | + | $215,173 | |
| (+) Land Homesite Value: | + | $0 | |
| (+) Land Non-Homesite Value: | + | $115,500 | |
| (+) Curr Use (HS): | + | $0 | $0 |
| (+) Curr Use (NHS): | + | $0 | $0 |
| | | -------------------------- | |
| (=) Market Value: | = | $330,673 | |
| (–) Productivity Loss: | – | $0 | |
| | | -------------------------- | |
| (=) Subtotal: | = | $330,673 | |
| (+) Senior Appraised Value: | + | $0 | |
| (+) Non-Senior Appraised Value: | + | $330,673 | |
| | | -------------------------- | |
| (=) Total Appraised Value: | = | $330,673 | |
| (–) Senior Exemption Loss: | – | $0 | |
| (–) Exemption Loss: | – | $0 | |
| | | -------------------------- | |
| (=) Taxable Value: | = | $330,673 | |
Taxing Jurisdiction
| Owner: | BRADLEY & TAMMY LOU KOTHMAN | | |
| % Ownership: | 100.0000000000% | | |
| Total Value: | N/A | | |
| Tax Area: | 0211 - 1-49F1E1H2L1 |
| CE | COUNTY CURRENT EXPENSE | N/A | N/A | N/A | N/A | | |
| CNTYDD | DEVELOPMENTAL DISABILITIES | N/A | N/A | N/A | N/A | | |
| CNTYVET | VETERANS RELIEF | N/A | N/A | N/A | N/A | | |
| MENTAL | MENTAL HEALTH | N/A | N/A | N/A | N/A | | |
| ROADS | COUNTY ROADS | N/A | N/A | N/A | N/A | | |
| ROADSCU | COUNTY ROADS TO CUR EXP | N/A | N/A | N/A | N/A | | |
| HOSP2CASH | HOSP DIST #2 GENERAL | N/A | N/A | N/A | N/A | | |
| SCH49CP | SCHOOL DIST #49 CAP PROJ | N/A | N/A | N/A | N/A | | |
| SCH49MO | SCHOOL DIST #49 EP & O | N/A | N/A | N/A | N/A | | |
| CONSERVE | CONSERVATION FUTURES | N/A | N/A | N/A | N/A | | |
| EMS1 | FIRE DIST #1 EMS | N/A | N/A | N/A | N/A | | |
| FD1 | FIRE DIST #1 GENERAL | N/A | N/A | N/A | N/A | | |
| LIB1 | LIBRARY DIST #1 GENERAL | N/A | N/A | N/A | N/A | | |
| PORTPT | PORT OF PT GENERAL | N/A | N/A | N/A | N/A | | |
| PORTPTIDD | PORT OF PT IDD 2019 | N/A | N/A | N/A | N/A | | |
| PUD1 | PUD #1 GENERAL | N/A | N/A | N/A | N/A | | |
| STATE | STATE SCHOOL PART 1 | N/A | N/A | N/A | N/A | | |
| STATE2 | STATE SCHOOL PART 2 | N/A | N/A | N/A | N/A | | |
| | Total Tax Rate: | N/A | | | | | |
| | | | | Taxes w/Current Exemptions: | N/A | | |
| | | | | Taxes w/o Exemptions: | N/A | | |
Improvement / Building
| Improvement #1: | Manufactured Home | State Code: | 11 | 1620.0 sqft | Value: | $215,173 |
| Bathrooms (#): | 2 (FULL) | Bedrooms (#): | 3 | | Exterior Wall: | PL/T1 | Fireplace: | WD ST-GOOD | | Foundation: | CONBL | Heating/Cooling: | F/A | | Roof Cover: | COMP |   |   |
|
| | Type | Description | Class CD | Sub Class CD | Year Built | Area |
| | MA | Main Area | 3+ | MFH | 1990 | 1620.0 |
| | MDECK | MH Deck | 3 | * | 1990 | 874.9 |
| | SHED | Shed (Table Not Dep) | 3 | * | 1990 | 192.0 |
| | CARPT | Carport (Table Not Dep) | 1 | * | 2016 | 192.0 |
Sketch
Property Image
Land
| 1 | 4230-1374S | Residential Sites 1+/- Ac VG Territorial Views | 0.0000 | 0.00 | 0.00 | 0.00 | 1.00 | $115,500 | $0 |
Roll Value History
| 2025 | N/A | N/A | N/A | N/A | N/A |
| 2024 | $119,163 | $110,250 | $0 | $229,413 | $229,413 |
| 2023 | $119,163 | $100,000 | $0 | $219,163 | $219,163 |
| 2022 | $119,712 | $95,000 | $0 | $214,712 | $214,712 |
| 2021 | $110,844 | $87,750 | $0 | $198,594 | $198,594 |
Deed and Sales History
| 1 | 12/04/2024 | SWD | Statutory Warranty Deed | MISTY KRIEG | BRADLEY & TAMMY LOU KOTHMAN | | | $350,000.00 | 143628 | |
| 2 | 04/12/2018 | SWD | Statutory Warranty Deed | MISTY EVES | MISTY KRIEG | | | | 129939 | |
| 3 | 06/11/2015 | SWD | Statutory Warranty Deed | WILLIAM D KELLY | MISTY EVES | | | $139,000.00 | 123363 | |
| 4 | 08/16/2010 | QCD | Quit Claim Deed | KELLY, CINDY L | KELLY, WILLIAM D | 0 | 0 | $0.00 | 114773 | 0 |
| 5 | 05/06/1994 | SWD | Statutory Warranty Deed | HARPE, JOHN E/MARY E | KELLY, WILLIAM D/CINDY L | 0 | 0 | $87,000.00 | 74112 | 0 |
| 6 | 01/20/1993 | SWD | Statutory Warranty Deed | FINNERTY, DICK/HANSEN, DE | HARPE, JOHN E/MARY E | 0 | 0 | $84,500.00 | 70298 | 0 |
Payout Agreement
| No payout information available.. |