Property
Account |
| Property ID: | 21475 | Abbreviated Legal Description: | S10 T29 R1W TX 34(ENLGD)LS PTN IN NW CORNER |
| Parcel # / Geo ID: | 901104009 | Agent Code: | |
| Type: | Real | | |
| Tax Area: | 0211 - 1-49F1E1H2L1 | Land Use Code | 11 |
| Open Space: | N | DFL | N |
| Historic Property: | N | Remodel Property: | N |
| Multi-Family Redevelopment: | N | | |
| Township: | 29N | Section: | 10 |
| Range: | 1W |
Location |
| Address: | 381 OLD ANDERSON LAKE RD CHIMACUM, WA 98325 | Mapsco: | 206/031 |
| Neighborhood: | S9,10 T29N R1W; NICHOLSON'S, ROGER'S LP; FINNERTY, PUGET SP | Map ID: | |
| Neighborhood CD: | 4230 |
Owner |
| Name: | BRANDON & RANDI PRZYGOCKI | Owner ID: | 94575 |
| Mailing Address: | 381 OLD ANDERSON LAKE RD CHIMACUM, WA 98325-0041 | % Ownership: | 100.0000000000% |
| | | Exemptions: | |
Pay Tax Due
There is currently No Amount Due on this property.
Taxes and Assessment Details
Property Tax Information as of
10/24/2025
Click on "Statement Details" to expand or collapse a tax statement.
* Please enter a valid date ** Please enter a valid date *
Statement Details |
| | TOTAL: | $0.00 | $0.00 | $0.00 | $0.00 | $0.00 | $0.00 |
|
| | $0.00 | $0.00 | $0.00 | $0.00 | $0.00 | $0.00 |
Values
| (+) Improvement Homesite Value: | + | $0 | |
| (+) Improvement Non-Homesite Value: | + | $289,584 | |
| (+) Land Homesite Value: | + | $0 | |
| (+) Land Non-Homesite Value: | + | $119,488 | |
| (+) Curr Use (HS): | + | $0 | $0 |
| (+) Curr Use (NHS): | + | $0 | $0 |
| | | -------------------------- | |
| (=) Market Value: | = | $409,072 | |
| (–) Productivity Loss: | – | $0 | |
| | | -------------------------- | |
| (=) Subtotal: | = | $409,072 | |
| (+) Senior Appraised Value: | + | $0 | |
| (+) Non-Senior Appraised Value: | + | $409,072 | |
| | | -------------------------- | |
| (=) Total Appraised Value: | = | $409,072 | |
| (–) Senior Exemption Loss: | – | $0 | |
| (–) Exemption Loss: | – | $0 | |
| | | -------------------------- | |
| (=) Taxable Value: | = | $409,072 | |
Taxing Jurisdiction
| Owner: | BRANDON & RANDI PRZYGOCKI | | |
| % Ownership: | 100.0000000000% | | |
| Total Value: | N/A | | |
| Tax Area: | 0211 - 1-49F1E1H2L1 |
| CE | COUNTY CURRENT EXPENSE | N/A | N/A | N/A | N/A | | |
| CNTYDD | DEVELOPMENTAL DISABILITIES | N/A | N/A | N/A | N/A | | |
| CNTYVET | VETERANS RELIEF | N/A | N/A | N/A | N/A | | |
| MENTAL | MENTAL HEALTH | N/A | N/A | N/A | N/A | | |
| ROADS | COUNTY ROADS | N/A | N/A | N/A | N/A | | |
| ROADSCU | COUNTY ROADS TO CUR EXP | N/A | N/A | N/A | N/A | | |
| HOSP2CASH | HOSP DIST #2 GENERAL | N/A | N/A | N/A | N/A | | |
| SCH49CP | SCHOOL DIST #49 CAP PROJ | N/A | N/A | N/A | N/A | | |
| SCH49MO | SCHOOL DIST #49 EP & O | N/A | N/A | N/A | N/A | | |
| CONSERVE | CONSERVATION FUTURES | N/A | N/A | N/A | N/A | | |
| EMS1 | FIRE DIST #1 EMS | N/A | N/A | N/A | N/A | | |
| FD1 | FIRE DIST #1 GENERAL | N/A | N/A | N/A | N/A | | |
| LIB1 | LIBRARY DIST #1 GENERAL | N/A | N/A | N/A | N/A | | |
| PORTPT | PORT OF PT GENERAL | N/A | N/A | N/A | N/A | | |
| PORTPTIDD | PORT OF PT IDD 2019 | N/A | N/A | N/A | N/A | | |
| PUD1 | PUD #1 GENERAL | N/A | N/A | N/A | N/A | | |
| STATE | STATE SCHOOL PART 1 | N/A | N/A | N/A | N/A | | |
| STATE2 | STATE SCHOOL PART 2 | N/A | N/A | N/A | N/A | | |
| | Total Tax Rate: | N/A | | | | | |
| | | | | Taxes w/Current Exemptions: | N/A | | |
| | | | | Taxes w/o Exemptions: | N/A | | |
Improvement / Building
| Improvement #1: | Residential Bldg | State Code: | 11 | 1836.0 sqft | Value: | $289,584 |
| Bathrooms (#): | 1 (FULL) | Bathrooms (#): | 1 (HALF) | | Bedrooms (#): | 3 | Exterior Wall: | SI/ST | | Fireplace: | SIN 1-GOOD | Floor Construction: | FRAME | | Foundation: | CONBL | Heating/Cooling: | F/A | | Roof Cover: | METAL |   |   |
|
| | Type | Description | Class CD | Sub Class CD | Year Built | Area |
| | MA | Main Area | 3 | 1S | 1973 | 1836.0 |
| | HDECK | House Deck | 3 | * | 1973 | 56.0 |
| | GATT | House Attached Garage | 3 | 1S | 1973 | 720.0 |
| | SHED | Shed (Table Not Dep) | 4 | * | 1973 | 192.0 |
| | GARAG | Garage (Table Not Dep) | 3 | * | 1973 | 504.0 |
| | ASPHD | Asphalt Drive | 3 | * | 1973 | 1440.0 |
| | CONCD | Concrete Drive | 3 | * | 1973 | 500.0 |
| | PATIO | House Patio | 3 | * | 1973 | 678.0 |
| | HRPO | House Roof Patio | 3 | * | 2016 | 378.0 |
Sketch
Property Image
Land
| 1 | 4230-1374S | Residential Sites 1+/- Ac VG Territorial Views | 1.0000 | 43560.00 | 0.00 | 0.00 | 1.00 | $115,500 | $0 |
| 2 | 1678A | Terr/Mtn/No View 6-15 Acres | 0.5800 | 25264.80 | 0.00 | 0.00 | 0.00 | $3,988 | $0 |
Roll Value History
| 2025 | N/A | N/A | N/A | N/A | N/A |
| 2024 | $276,421 | $114,056 | $0 | $390,477 | $390,477 |
| 2023 | $276,421 | $103,480 | $0 | $379,901 | $379,901 |
| 2022 | $263,656 | $98,190 | $0 | $361,846 | $361,846 |
| 2021 | $244,126 | $91,143 | $0 | $335,269 | $335,269 |
Deed and Sales History
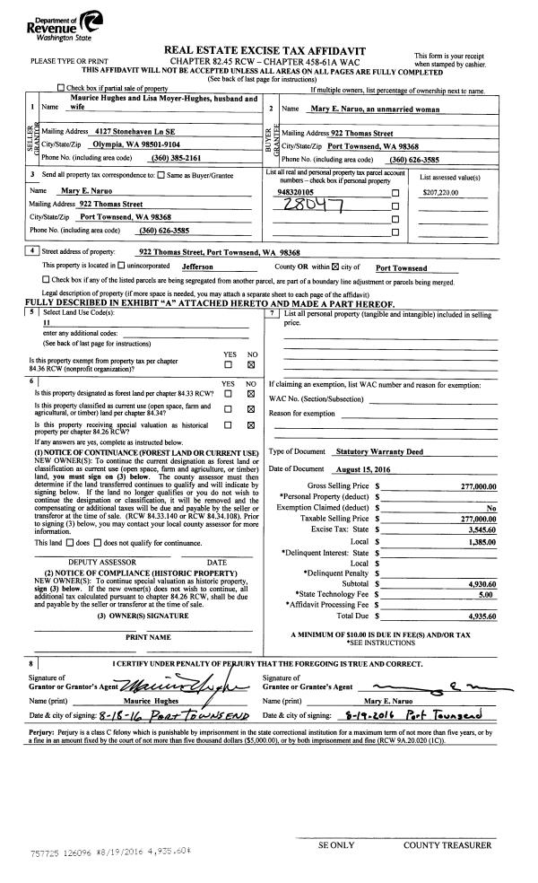
| 1 | 10/28/2015 | SWD | Statutory Warranty Deed | KENNETH J PRZYGOCKI | BRANDON & RANDI PRZYGOCKI | | | $250,000.00 | 124292 | |
Payout Agreement
| No payout information available.. |