Property
Account |
| Property ID: | 21479 | Abbreviated Legal Description: | ROGERS SHORT PLAT LOT 2 |
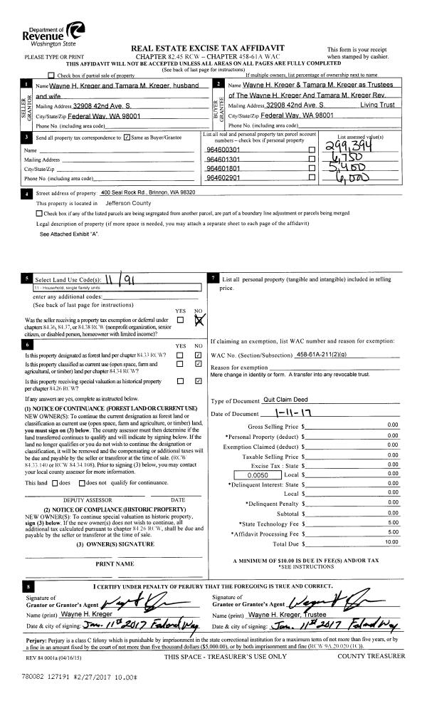
| Parcel # / Geo ID: | 901104014 | Agent Code: | |
| Type: | Real | | |
| Tax Area: | 0211 - 1-49F1E1H2L1 | Land Use Code | 11 |
| Open Space: | N | DFL | N |
| Historic Property: | N | Remodel Property: | N |
| Multi-Family Redevelopment: | N | | |
| Township: | 29N | Section: | 10 |
| Range: | 1W |
Location |
| Address: | 401 CHERRY AVE CHIMACUM, WA 98325 | Mapsco: | 241/032 |
| Neighborhood: | IRONDALE ORCHARD TRACTS, LAY & ROGERS SHORT PLATS | Map ID: | |
| Neighborhood CD: | 4238 |
Owner |
| Name: | WEI ZHOU & DAVID SCHORES | Owner ID: | 101392 |
| Mailing Address: | 750 BLUE SKY DR PORT TOWNSEND, WA 98368-9691 | % Ownership: | 100.0000000000% |
| | | Exemptions: | |
Pay Tax Due
There is currently No Amount Due on this property.
Taxes and Assessment Details
Property Tax Information as of
10/24/2025
Click on "Statement Details" to expand or collapse a tax statement.
* Please enter a valid date ** Please enter a valid date *
Statement Details |
| | TOTAL: | $0.00 | $0.00 | $0.00 | $0.00 | $0.00 | $0.00 |
|
| | $0.00 | $0.00 | $0.00 | $0.00 | $0.00 | $0.00 |
Values
| (+) Improvement Homesite Value: | + | $0 | |
| (+) Improvement Non-Homesite Value: | + | $117,275 | |
| (+) Land Homesite Value: | + | $0 | |
| (+) Land Non-Homesite Value: | + | $82,500 | |
| (+) Curr Use (HS): | + | $0 | $0 |
| (+) Curr Use (NHS): | + | $0 | $0 |
| | | -------------------------- | |
| (=) Market Value: | = | $199,775 | |
| (–) Productivity Loss: | – | $0 | |
| | | -------------------------- | |
| (=) Subtotal: | = | $199,775 | |
| (+) Senior Appraised Value: | + | $0 | |
| (+) Non-Senior Appraised Value: | + | $199,775 | |
| | | -------------------------- | |
| (=) Total Appraised Value: | = | $199,775 | |
| (–) Senior Exemption Loss: | – | $0 | |
| (–) Exemption Loss: | – | $0 | |
| | | -------------------------- | |
| (=) Taxable Value: | = | $199,775 | |
Taxing Jurisdiction
| Owner: | WEI ZHOU & DAVID SCHORES | | |
| % Ownership: | 100.0000000000% | | |
| Total Value: | N/A | | |
| Tax Area: | 0211 - 1-49F1E1H2L1 |
| CE | COUNTY CURRENT EXPENSE | N/A | N/A | N/A | N/A | | |
| CNTYDD | DEVELOPMENTAL DISABILITIES | N/A | N/A | N/A | N/A | | |
| CNTYVET | VETERANS RELIEF | N/A | N/A | N/A | N/A | | |
| MENTAL | MENTAL HEALTH | N/A | N/A | N/A | N/A | | |
| ROADS | COUNTY ROADS | N/A | N/A | N/A | N/A | | |
| ROADSCU | COUNTY ROADS TO CUR EXP | N/A | N/A | N/A | N/A | | |
| HOSP2CASH | HOSP DIST #2 GENERAL | N/A | N/A | N/A | N/A | | |
| SCH49CP | SCHOOL DIST #49 CAP PROJ | N/A | N/A | N/A | N/A | | |
| SCH49MO | SCHOOL DIST #49 EP & O | N/A | N/A | N/A | N/A | | |
| CONSERVE | CONSERVATION FUTURES | N/A | N/A | N/A | N/A | | |
| EMS1 | FIRE DIST #1 EMS | N/A | N/A | N/A | N/A | | |
| FD1 | FIRE DIST #1 GENERAL | N/A | N/A | N/A | N/A | | |
| LIB1 | LIBRARY DIST #1 GENERAL | N/A | N/A | N/A | N/A | | |
| PORTPT | PORT OF PT GENERAL | N/A | N/A | N/A | N/A | | |
| PORTPTIDD | PORT OF PT IDD 2019 | N/A | N/A | N/A | N/A | | |
| PUD1 | PUD #1 GENERAL | N/A | N/A | N/A | N/A | | |
| STATE | STATE SCHOOL PART 1 | N/A | N/A | N/A | N/A | | |
| STATE2 | STATE SCHOOL PART 2 | N/A | N/A | N/A | N/A | | |
| | Total Tax Rate: | N/A | | | | | |
| | | | | Taxes w/Current Exemptions: | N/A | | |
| | | | | Taxes w/o Exemptions: | N/A | | |
Improvement / Building
| Improvement #1: | Manufactured Home | State Code: | 11 | 1222.0 sqft | Value: | $117,275 |
| Bathrooms (#): | 2 (FULL) | Bedrooms (#): | 2 | | Exterior Wall: | PL/T1 | Fireplace: | PROPS-GOOD | | Foundation: | PO&BL | Heating/Cooling: | F/A | | Roof Cover: | COMP |   |   |
|
| | Type | Description | Class CD | Sub Class CD | Year Built | Area |
| | MA | Main Area | 3 | MDBL | 1988 | 1222.0 |
| | MPATIO | MH Patio | 3 | * | 1988 | 500.0 |
| | MDECK | MH Deck | 3 | * | 1988 | 1236.0 |
| | MRPO | MH Roof Porch | 3 | * | 1988 | 268.0 |
| | MSKIRT_WD | MH Skirting - Wood | 3 | * | 1988 | 146.0 |
| | GARAG | Garage (Table Not Dep) | 3 | * | 1988 | 576.0 |
Sketch
Property Image
Land
| 1 | 4238-1275S | Residential Sites in Ochard Tracts/Rogers SP | 0.0000 | 0.00 | 0.00 | 0.00 | 1.00 | $82,500 | $0 |
Roll Value History
| 2025 | N/A | N/A | N/A | N/A | N/A |
| 2024 | $123,608 | $78,750 | $0 | $202,358 | $202,358 |
| 2023 | $123,608 | $70,000 | $0 | $193,608 | $193,608 |
| 2022 | $97,271 | $65,000 | $0 | $162,271 | $162,271 |
| 2021 | $90,065 | $57,720 | $0 | $147,785 | $147,785 |
Deed and Sales History
| 1 | 04/14/2025 | SWD | Statutory Warranty Deed | ROY R FOSS | WEI ZHOU & DAVID SCHORES | | | $200,000.00 | 144210 | |
Payout Agreement
| No payout information available.. |