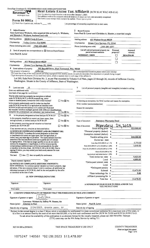
Property
Account |
| Property ID: | 21490 | Abbreviated Legal Description: | BLAIR SHORT PLAT LOT 1 SUBJ/EASE |
| Parcel # / Geo ID: | 901104025 | Agent Code: | |
| Type: | Real | | |
| Tax Area: | 0211 - 1-49F1E1H2L1 | Land Use Code | 11 |
| Open Space: | N | DFL | N |
| Historic Property: | N | Remodel Property: | N |
| Multi-Family Redevelopment: | N | | |
| Township: | 29N | Section: | 10 |
| Range: | 1W |
Location |
| Address: | 2600 ANDERSON LAKE RD CHIMACUM, WA 98325 | Mapsco: | 226/060 |
| Neighborhood: | S9,10 T29N R1W; NICHOLSON'S, ROGER'S LP; FINNERTY, PUGET SP | Map ID: | |
| Neighborhood CD: | 4230 |
Owner |
| Name: | JESS B NORTON | Owner ID: | 23699 |
| Mailing Address: | PO BOX 455 CHIMACUM, WA 98325 | % Ownership: | 100.0000000000% |
| | | Exemptions: | |
Pay Tax Due
There is currently No Amount Due on this property.
Taxes and Assessment Details
Property Tax Information as of
10/24/2025
Click on "Statement Details" to expand or collapse a tax statement.
* Please enter a valid date ** Please enter a valid date *
Statement Details |
| | TOTAL: | $0.00 | $0.00 | $0.00 | $0.00 | $0.00 | $0.00 |
|
| | $0.00 | $0.00 | $0.00 | $0.00 | $0.00 | $0.00 |
Values
| (+) Improvement Homesite Value: | + | $0 | |
| (+) Improvement Non-Homesite Value: | + | $130,856 | |
| (+) Land Homesite Value: | + | $0 | |
| (+) Land Non-Homesite Value: | + | $133,117 | |
| (+) Curr Use (HS): | + | $0 | $0 |
| (+) Curr Use (NHS): | + | $0 | $0 |
| | | -------------------------- | |
| (=) Market Value: | = | $263,973 | |
| (–) Productivity Loss: | – | $0 | |
| | | -------------------------- | |
| (=) Subtotal: | = | $263,973 | |
| (+) Senior Appraised Value: | + | $0 | |
| (+) Non-Senior Appraised Value: | + | $263,973 | |
| | | -------------------------- | |
| (=) Total Appraised Value: | = | $263,973 | |
| (–) Senior Exemption Loss: | – | $0 | |
| (–) Exemption Loss: | – | $0 | |
| | | -------------------------- | |
| (=) Taxable Value: | = | $263,973 | |
Taxing Jurisdiction
| Owner: | JESS B NORTON | | |
| % Ownership: | 100.0000000000% | | |
| Total Value: | N/A | | |
| Tax Area: | 0211 - 1-49F1E1H2L1 |
| CE | COUNTY CURRENT EXPENSE | N/A | N/A | N/A | N/A | | |
| CNTYDD | DEVELOPMENTAL DISABILITIES | N/A | N/A | N/A | N/A | | |
| CNTYVET | VETERANS RELIEF | N/A | N/A | N/A | N/A | | |
| MENTAL | MENTAL HEALTH | N/A | N/A | N/A | N/A | | |
| ROADS | COUNTY ROADS | N/A | N/A | N/A | N/A | | |
| ROADSCU | COUNTY ROADS TO CUR EXP | N/A | N/A | N/A | N/A | | |
| HOSP2CASH | HOSP DIST #2 GENERAL | N/A | N/A | N/A | N/A | | |
| SCH49CP | SCHOOL DIST #49 CAP PROJ | N/A | N/A | N/A | N/A | | |
| SCH49MO | SCHOOL DIST #49 EP & O | N/A | N/A | N/A | N/A | | |
| CONSERVE | CONSERVATION FUTURES | N/A | N/A | N/A | N/A | | |
| EMS1 | FIRE DIST #1 EMS | N/A | N/A | N/A | N/A | | |
| FD1 | FIRE DIST #1 GENERAL | N/A | N/A | N/A | N/A | | |
| LIB1 | LIBRARY DIST #1 GENERAL | N/A | N/A | N/A | N/A | | |
| PORTPT | PORT OF PT GENERAL | N/A | N/A | N/A | N/A | | |
| PORTPTIDD | PORT OF PT IDD 2019 | N/A | N/A | N/A | N/A | | |
| PUD1 | PUD #1 GENERAL | N/A | N/A | N/A | N/A | | |
| STATE | STATE SCHOOL PART 1 | N/A | N/A | N/A | N/A | | |
| STATE2 | STATE SCHOOL PART 2 | N/A | N/A | N/A | N/A | | |
| | Total Tax Rate: | N/A | | | | | |
| | | | | Taxes w/Current Exemptions: | N/A | | |
| | | | | Taxes w/o Exemptions: | N/A | | |
Improvement / Building
| Improvement #1: | Manufactured Home | State Code: | 11 | 784.0 sqft | Value: | $42,516 |
| Bathrooms (#): | 1 (FULL) | Bedrooms (#): | 2 | | Exterior Wall: | METAL | Foundation: | CONPR | | Heating/Cooling: | F/A | Roof Cover: | METAL |
|
| | Type | Description | Class CD | Sub Class CD | Year Built | Area |
| | MA | Main Area | 2+ | MSG | 1972 | 784.0 |
| | MDET | MH Detached Garage | 3 | MSG | 1997 | 864.0 |
| | CARPTN | Carport W/O Floor | 3 | * | 1997 | 432.0 |
| | SHED | Shed (Table Not Dep) | 4 | * | 1997 | 96.0 |
| | ADDN | Addition (Table Not Dep) | 2 | * | 1972 | 264.0 |
| Improvement #2: | Residential Bldg | State Code: | 11 | 576.0 sqft | Value: | $88,340 |
| Bathrooms (#): | 1 (FULL) | Bedrooms (#): | 1 | | Exterior Wall: | PL/T1 | Fireplace: | WD ST-GOOD | | Floor Construction: | FRAME | Foundation: | PO&BL | | Heating/Cooling: | ELBB | Roof Cover: | METAL |
|
| | Type | Description | Class CD | Sub Class CD | Year Built | Area |
| | MA | Main Area | 2 | 1S | 2006 | 576.0 |
| | HDECK | House Deck | 2 | * | 2006 | 337.0 |
Sketch
Property Image
Land
| 1 | 4230-1374S | Residential Sites 1+/- Ac VG Territorial Views | 1.0000 | 43560.00 | 0.00 | 0.00 | 1.00 | $132,000 | $0 |
| 2 | 1578A | Terr/Mtn/No View <6 Acres | 0.1400 | 6098.40 | 0.00 | 0.00 | 0.00 | $1,117 | $0 |
Roll Value History
| 2025 | N/A | N/A | N/A | N/A | N/A |
| 2024 | $124,908 | $127,066 | $0 | $251,974 | $251,974 |
| 2023 | $124,908 | $113,980 | $0 | $238,888 | $238,888 |
| 2022 | $101,955 | $105,910 | $0 | $207,865 | $207,865 |
| 2021 | $94,402 | $96,551 | $0 | $190,953 | $190,953 |
Deed and Sales History
| 1 | 08/24/2006 | QCD | Quit Claim Deed | NORTON, AMEILIA A | NORTON, JESS B | 0 | 0 | $0.00 | 107477 | 0 |
| 2 | 09/28/2001 | SWD | Statutory Warranty Deed | AMERICAN GENERAL FINANCE | NORTON, AMELIA A | 0 | 0 | $0.00 | 93190 | 0 |
| 3 | 03/13/2001 | TRED | Trustee Deed | FORD, CHRISTINE A | AMERICAN GENERAL FINANCE, INC. | 0 | 0 | $0.00 | 91770 | 0 |
| 4 | 01/06/1997 | MH | Mobile Home | OLSON, RICHARD JOSEPH/CYN | BLAIR, RONALD G/LORRAINE A | 0 | 0 | $10,000.00 | 81146 | 0 |
Payout Agreement
| No payout information available.. |