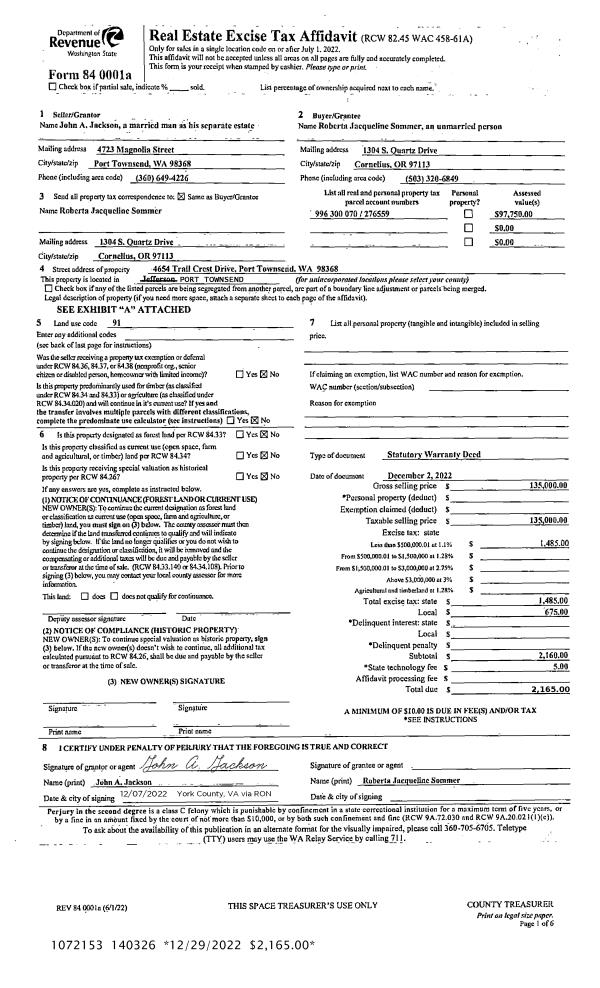
Property
Account |
| Property ID: | 21561 | Abbreviated Legal Description: | S11 T29 R1W NE SW(S 1/2 OF S 468.8' LYING W OF CITY ROAD) |
| Parcel # / Geo ID: | 901113004 | Agent Code: | |
| Type: | Real | | |
| Tax Area: | 0211 - 1-49F1E1H2L1 | Land Use Code | 11 |
| Open Space: | N | DFL | N |
| Historic Property: | N | Remodel Property: | N |
| Multi-Family Redevelopment: | N | | |
| Township: | 29N | Section: | 11 |
| Range: | 1W |
Location |
| Address: | 1070 CHIMACUM RD PORT HADLOCK, WA 98339 | Mapsco: | 208/024 |
| Neighborhood: | S11 T29N R1W; ELKINS; LOPEMAN, COLLINS, GOEHNER, SCHADE S.P. | Map ID: | |
| Neighborhood CD: | 4240 |
Owner |
| Name: | ROBERT L HAGEN JR & JANNETTE E HAGEN | Owner ID: | 93593 |
| Mailing Address: | 1070 CHIMACUM RD PORT HADLOCK, WA 98339 | % Ownership: | 100.0000000000% |
| | | Exemptions: | |
Pay Tax Due
There is currently No Amount Due on this property.
Taxes and Assessment Details
Property Tax Information as of
10/24/2025
Click on "Statement Details" to expand or collapse a tax statement.
* Please enter a valid date ** Please enter a valid date *
Statement Details |
| | TOTAL: | $0.00 | $0.00 | $0.00 | $0.00 | $0.00 | $0.00 |
|
| | $0.00 | $0.00 | $0.00 | $0.00 | $0.00 | $0.00 |
Values
| (+) Improvement Homesite Value: | + | $0 | |
| (+) Improvement Non-Homesite Value: | + | $69,816 | |
| (+) Land Homesite Value: | + | $0 | |
| (+) Land Non-Homesite Value: | + | $170,574 | |
| (+) Curr Use (HS): | + | $0 | $0 |
| (+) Curr Use (NHS): | + | $0 | $0 |
| | | -------------------------- | |
| (=) Market Value: | = | $240,390 | |
| (–) Productivity Loss: | – | $0 | |
| | | -------------------------- | |
| (=) Subtotal: | = | $240,390 | |
| (+) Senior Appraised Value: | + | $0 | |
| (+) Non-Senior Appraised Value: | + | $240,390 | |
| | | -------------------------- | |
| (=) Total Appraised Value: | = | $240,390 | |
| (–) Senior Exemption Loss: | – | $0 | |
| (–) Exemption Loss: | – | $0 | |
| | | -------------------------- | |
| (=) Taxable Value: | = | $240,390 | |
Taxing Jurisdiction
| Owner: | ROBERT L HAGEN JR & JANNETTE E HAGEN | | |
| % Ownership: | 100.0000000000% | | |
| Total Value: | N/A | | |
| Tax Area: | 0211 - 1-49F1E1H2L1 |
| CE | COUNTY CURRENT EXPENSE | N/A | N/A | N/A | N/A | | |
| CNTYDD | DEVELOPMENTAL DISABILITIES | N/A | N/A | N/A | N/A | | |
| CNTYVET | VETERANS RELIEF | N/A | N/A | N/A | N/A | | |
| MENTAL | MENTAL HEALTH | N/A | N/A | N/A | N/A | | |
| ROADS | COUNTY ROADS | N/A | N/A | N/A | N/A | | |
| ROADSCU | COUNTY ROADS TO CUR EXP | N/A | N/A | N/A | N/A | | |
| HOSP2CASH | HOSP DIST #2 GENERAL | N/A | N/A | N/A | N/A | | |
| SCH49CP | SCHOOL DIST #49 CAP PROJ | N/A | N/A | N/A | N/A | | |
| SCH49MO | SCHOOL DIST #49 EP & O | N/A | N/A | N/A | N/A | | |
| CONSERVE | CONSERVATION FUTURES | N/A | N/A | N/A | N/A | | |
| EMS1 | FIRE DIST #1 EMS | N/A | N/A | N/A | N/A | | |
| FD1 | FIRE DIST #1 GENERAL | N/A | N/A | N/A | N/A | | |
| LIB1 | LIBRARY DIST #1 GENERAL | N/A | N/A | N/A | N/A | | |
| PORTPT | PORT OF PT GENERAL | N/A | N/A | N/A | N/A | | |
| PORTPTIDD | PORT OF PT IDD 2019 | N/A | N/A | N/A | N/A | | |
| PUD1 | PUD #1 GENERAL | N/A | N/A | N/A | N/A | | |
| STATE | STATE SCHOOL PART 1 | N/A | N/A | N/A | N/A | | |
| STATE2 | STATE SCHOOL PART 2 | N/A | N/A | N/A | N/A | | |
| | Total Tax Rate: | N/A | | | | | |
| | | | | Taxes w/Current Exemptions: | N/A | | |
| | | | | Taxes w/o Exemptions: | N/A | | |
Improvement / Building
| Improvement #1: | Manufactured Home | State Code: | 11 | 1152.0 sqft | Value: | $69,816 |
| Bathrooms (#): | 2 (FULL) | Bedrooms (#): | 2 | | Exterior Wall: | ECONO | Fireplace: | WD ST-GOOD | | Foundation: | PO&BL | Heating/Cooling: | F/A | | Roof Cover: | METAL |   |   |
|
| | Type | Description | Class CD | Sub Class CD | Year Built | Area |
| | MA | Main Area | 2+ | MDBL | 1971 | 1152.0 |
| | MDECK | MH Deck | 3 | * | 1971 | 240.0 |
| | OTHER | Other | 1 | * | 2014 | 0.0 |
| | SHED | Shed (Table Not Dep) | 4 | * | 1971 | 96.0 |
| | SHED | Shed (Table Not Dep) | 4 | * | 2022 | 256.0 |
Sketch
Property Image
Land
| 1 | 4240-1374S | Residential Sites 1+/- Ac VG Territorial Views | 1.0000 | 43560.00 | 0.00 | 0.00 | 1.00 | $132,250 | $0 |
| 2 | 1577A | Terr/Mtn/No View <6 Acres | 4.3000 | 187308.00 | 0.00 | 0.00 | 0.00 | $38,324 | $0 |
Roll Value History
| 2025 | N/A | N/A | N/A | N/A | N/A |
| 2024 | $63,998 | $145,241 | $0 | $209,239 | $209,239 |
| 2023 | $61,089 | $132,250 | $0 | $193,339 | $193,339 |
| 2022 | $45,352 | $125,100 | $0 | $170,452 | $170,452 |
| 2021 | $41,992 | $121,290 | $0 | $163,282 | $163,282 |
Deed and Sales History
| 1 | 05/18/2015 | SWD | Statutory Warranty Deed | JOHN W HACKO TRUSTEE | ROBERT L HAGEN JR & JANNETTE E HAGEN | | | $135,000.00 | 123230 | |
| 2 | 06/21/2006 | QCD | Quit Claim Deed | HACKO, JOHN WILIIAM/GLORI | HACKO, JOHN WILLIAM/GLORIA LYN | | | $0.00 | 106934 | 0 |
| 3 | 09/21/2000 | MH | Mobile Home | HACKO, JOHN W | HACKO, JOHN W/GLORIA S | 0 | 0 | $0.00 | 90626 | 0 |
Payout Agreement
| No payout information available.. |