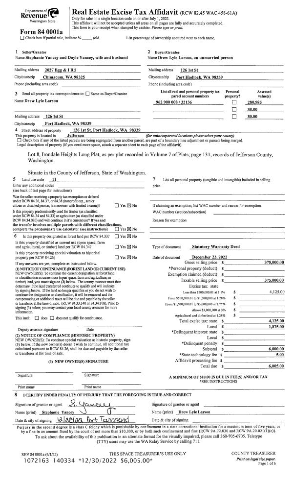
Property
Account |
| Property ID: | 21573 | Abbreviated Legal Description: | S11 T29 R1W TAX 88 BND TGTH THRU BLA#122926 |
| Parcel # / Geo ID: | 901113019 | Agent Code: | |
| Type: | Real | | |
| Tax Area: | 0211 - 1-49F1E1H2L1 | Land Use Code | 11 |
| Open Space: | N | DFL | N |
| Historic Property: | N | Remodel Property: | N |
| Multi-Family Redevelopment: | N | | |
| Township: | 29N | Section: | 11 |
| Range: | 1W |
Location |
| Address: | 1164 CHIMACUM RD CHIMACUM, WA 98325 | Mapsco: | 209/047 |
| Neighborhood: | S11 T29N R1W; ELKINS; LOPEMAN, COLLINS, GOEHNER, SCHADE S.P. | Map ID: | |
| Neighborhood CD: | 4240 |
Owner |
| Name: | MARTIN LOCKE | Owner ID: | 20992 |
| Mailing Address: | LESLIE LOCKE 1166 CHIMACUM RD PORT HADLOCK, WA 98339-9715 | % Ownership: | 100.0000000000% |
| | | Exemptions: | |
Pay Tax Due
There is currently No Amount Due on this property.
Taxes and Assessment Details
Property Tax Information as of
10/24/2025
Click on "Statement Details" to expand or collapse a tax statement.
* Please enter a valid date ** Please enter a valid date *
Statement Details |
| | TOTAL: | $0.00 | $0.00 | $0.00 | $0.00 | $0.00 | $0.00 |
|
| | $0.00 | $0.00 | $0.00 | $0.00 | $0.00 | $0.00 |
Values
| (+) Improvement Homesite Value: | + | $0 | |
| (+) Improvement Non-Homesite Value: | + | $288,840 | |
| (+) Land Homesite Value: | + | $0 | |
| (+) Land Non-Homesite Value: | + | $273,485 | |
| (+) Curr Use (HS): | + | $0 | $0 |
| (+) Curr Use (NHS): | + | $0 | $0 |
| | | -------------------------- | |
| (=) Market Value: | = | $562,325 | |
| (–) Productivity Loss: | – | $0 | |
| | | -------------------------- | |
| (=) Subtotal: | = | $562,325 | |
| (+) Senior Appraised Value: | + | $0 | |
| (+) Non-Senior Appraised Value: | + | $562,325 | |
| | | -------------------------- | |
| (=) Total Appraised Value: | = | $562,325 | |
| (–) Senior Exemption Loss: | – | $0 | |
| (–) Exemption Loss: | – | $0 | |
| | | -------------------------- | |
| (=) Taxable Value: | = | $562,325 | |
Taxing Jurisdiction
| Owner: | MARTIN LOCKE | | |
| % Ownership: | 100.0000000000% | | |
| Total Value: | N/A | | |
| Tax Area: | 0211 - 1-49F1E1H2L1 |
| CE | COUNTY CURRENT EXPENSE | N/A | N/A | N/A | N/A | | |
| CNTYDD | DEVELOPMENTAL DISABILITIES | N/A | N/A | N/A | N/A | | |
| CNTYVET | VETERANS RELIEF | N/A | N/A | N/A | N/A | | |
| MENTAL | MENTAL HEALTH | N/A | N/A | N/A | N/A | | |
| ROADS | COUNTY ROADS | N/A | N/A | N/A | N/A | | |
| ROADSCU | COUNTY ROADS TO CUR EXP | N/A | N/A | N/A | N/A | | |
| HOSP2CASH | HOSP DIST #2 GENERAL | N/A | N/A | N/A | N/A | | |
| SCH49CP | SCHOOL DIST #49 CAP PROJ | N/A | N/A | N/A | N/A | | |
| SCH49MO | SCHOOL DIST #49 EP & O | N/A | N/A | N/A | N/A | | |
| CONSERVE | CONSERVATION FUTURES | N/A | N/A | N/A | N/A | | |
| EMS1 | FIRE DIST #1 EMS | N/A | N/A | N/A | N/A | | |
| FD1 | FIRE DIST #1 GENERAL | N/A | N/A | N/A | N/A | | |
| LIB1 | LIBRARY DIST #1 GENERAL | N/A | N/A | N/A | N/A | | |
| PORTPT | PORT OF PT GENERAL | N/A | N/A | N/A | N/A | | |
| PORTPTIDD | PORT OF PT IDD 2019 | N/A | N/A | N/A | N/A | | |
| PUD1 | PUD #1 GENERAL | N/A | N/A | N/A | N/A | | |
| STATE | STATE SCHOOL PART 1 | N/A | N/A | N/A | N/A | | |
| STATE2 | STATE SCHOOL PART 2 | N/A | N/A | N/A | N/A | | |
| | Total Tax Rate: | N/A | | | | | |
| | | | | Taxes w/Current Exemptions: | N/A | | |
| | | | | Taxes w/o Exemptions: | N/A | | |
Improvement / Building
| Improvement #1: | Residential Bldg | State Code: | 11 | 1962.0 sqft | Value: | $282,713 |
| Bathrooms (#): | 2 (FULL) | Bathrooms (#): | 1 (HALF) | | Bedrooms (#): | 3 | Exterior Wall: | SI/ST | | Fireplace: | PROPS-GOOD | Floor Construction: | FRAME | | Foundation: | PO&BL | Heating/Cooling: | F/A | | Inside Verify: | YES | Roof Cover: | METAL |
|
| | Type | Description | Class CD | Sub Class CD | Year Built | Area |
| | MA | Main Area | 3 | 2S | 1910 | 960.0 |
| | MA2 | Second Floor Main Area | 3 | 2S | 1910 | 1002.0 |
| | HENCL | House Enclosure | 3 | * | 1910 | 300.0 |
| | HENCL | House Enclosure | 3 | * | 1910 | 224.0 |
| | CARPTF | Carport W/Floor | 4 | * | 1910 | 648.0 |
| | HDECK | House Deck | 4 | * | 1910 | 220.0 |
| | SHED | Shed (Table Not Dep) | 2 | * | 1910 | 320.0 |
| | PATIO | House Patio | 3 | * | 1910 | 405.0 |
| Improvement #2: | Residential Bldg | State Code: | 11 | 0.0 sqft | Value: | $6,127 |
Sketch
Property Image
Land
| 1 | 4240-1374S | Residential Sites 1+/- Ac VG Territorial Views | 1.0000 | 43560.00 | 0.00 | 0.00 | 1.00 | $132,250 | $0 |
| 2 | 1776A | Terr/Mtn View >15-25 Acres | 19.6500 | 855954.00 | 0.00 | 0.00 | 0.00 | $141,235 | $0 |
Roll Value History
| 2025 | N/A | N/A | N/A | N/A | N/A |
| 2024 | $264,770 | $239,204 | $0 | $503,974 | $503,974 |
| 2023 | $252,735 | $217,900 | $0 | $470,635 | $470,635 |
| 2022 | $237,534 | $203,075 | $0 | $440,609 | $440,609 |
| 2021 | $219,938 | $202,703 | $0 | $422,641 | $422,641 |
Deed and Sales History
| 1 | 04/24/2015 | QCD | Quit Claim Deed | MARTIN LOCKE | | | | | 123091 | |
| 2 | 10/30/2014 | BLA | Boundary Line Adjustment | MARTIN LOCKE | | | | | 122926 | |
| 3 | 07/29/2014 | QCD | Quit Claim Deed | | | | | | 121621 | |
| 4 | 01/26/1998 | QCD | Quit Claim Deed | LOCKE, HUGH E/ET AL | LOCKE, HUGH E/ET AL | 0 | 0 | $0.00 | 83769 | 0 |
Payout Agreement
| No payout information available.. |