Property
Account |
| Property ID: | 21575 | Abbreviated Legal Description: | S11 T29 R1W TAX 25 WITH EASE |
| Parcel # / Geo ID: | 901113021 | Agent Code: | |
| Type: | Real | | |
| Tax Area: | 0211 - 1-49F1E1H2L1 | Land Use Code | 63 |
| Open Space: | N | DFL | N |
| Historic Property: | N | Remodel Property: | N |
| Multi-Family Redevelopment: | N | | |
| Township: | 29N | Section: | 11 |
| Range: | 1W |
Location |
| Address: | 1173 CHIMACUM RD CHIMACUM, WA 98325 | Mapsco: | 209/009 |
| Neighborhood: | CHIMACUM RD COMMERCIAL AREA | Map ID: | |
| Neighborhood CD: | 4240C |
Owner |
| Name: | JESSE W OSMER | Owner ID: | 24095 |
| Mailing Address: | LISA M OSMER 320 OLD ANDERSON LAKE RD CHIMACUM, WA 98325-9733 | % Ownership: | 100.0000000000% |
| | | Exemptions: | |
Pay Tax Due
There is currently No Amount Due on this property.
Taxes and Assessment Details
Property Tax Information as of
10/24/2025
Click on "Statement Details" to expand or collapse a tax statement.
* Please enter a valid date ** Please enter a valid date *
Statement Details |
| | TOTAL: | $0.00 | $0.00 | $0.00 | $0.00 | $0.00 | $0.00 |
|
| | $0.00 | $0.00 | $0.00 | $0.00 | $0.00 | $0.00 |
Values
| (+) Improvement Homesite Value: | + | $0 | |
| (+) Improvement Non-Homesite Value: | + | $251,465 | |
| (+) Land Homesite Value: | + | $0 | |
| (+) Land Non-Homesite Value: | + | $182,460 | |
| (+) Curr Use (HS): | + | $0 | $0 |
| (+) Curr Use (NHS): | + | $0 | $0 |
| | | -------------------------- | |
| (=) Market Value: | = | $433,925 | |
| (–) Productivity Loss: | – | $0 | |
| | | -------------------------- | |
| (=) Subtotal: | = | $433,925 | |
| (+) Senior Appraised Value: | + | $0 | |
| (+) Non-Senior Appraised Value: | + | $433,925 | |
| | | -------------------------- | |
| (=) Total Appraised Value: | = | $433,925 | |
| (–) Senior Exemption Loss: | – | $0 | |
| (–) Exemption Loss: | – | $0 | |
| | | -------------------------- | |
| (=) Taxable Value: | = | $433,925 | |
Taxing Jurisdiction
| Owner: | JESSE W OSMER | | |
| % Ownership: | 100.0000000000% | | |
| Total Value: | N/A | | |
| Tax Area: | 0211 - 1-49F1E1H2L1 |
| CE | COUNTY CURRENT EXPENSE | N/A | N/A | N/A | N/A | | |
| CNTYDD | DEVELOPMENTAL DISABILITIES | N/A | N/A | N/A | N/A | | |
| CNTYVET | VETERANS RELIEF | N/A | N/A | N/A | N/A | | |
| MENTAL | MENTAL HEALTH | N/A | N/A | N/A | N/A | | |
| ROADS | COUNTY ROADS | N/A | N/A | N/A | N/A | | |
| ROADSCU | COUNTY ROADS TO CUR EXP | N/A | N/A | N/A | N/A | | |
| HOSP2CASH | HOSP DIST #2 GENERAL | N/A | N/A | N/A | N/A | | |
| SCH49CP | SCHOOL DIST #49 CAP PROJ | N/A | N/A | N/A | N/A | | |
| SCH49MO | SCHOOL DIST #49 EP & O | N/A | N/A | N/A | N/A | | |
| CONSERVE | CONSERVATION FUTURES | N/A | N/A | N/A | N/A | | |
| EMS1 | FIRE DIST #1 EMS | N/A | N/A | N/A | N/A | | |
| FD1 | FIRE DIST #1 GENERAL | N/A | N/A | N/A | N/A | | |
| LIB1 | LIBRARY DIST #1 GENERAL | N/A | N/A | N/A | N/A | | |
| PORTPT | PORT OF PT GENERAL | N/A | N/A | N/A | N/A | | |
| PORTPTIDD | PORT OF PT IDD 2019 | N/A | N/A | N/A | N/A | | |
| PUD1 | PUD #1 GENERAL | N/A | N/A | N/A | N/A | | |
| STATE | STATE SCHOOL PART 1 | N/A | N/A | N/A | N/A | | |
| STATE2 | STATE SCHOOL PART 2 | N/A | N/A | N/A | N/A | | |
| | Total Tax Rate: | N/A | | | | | |
| | | | | Taxes w/Current Exemptions: | N/A | | |
| | | | | Taxes w/o Exemptions: | N/A | | |
Improvement / Building
| Improvement #1: | Residential Bldg | State Code: | 63 | 1496.0 sqft | Value: | $56,730 |
| Bathrooms (#): | 1 (FULL) | Bedrooms (#): | 1 | | Exterior Wall: | SI/ST | Fireplace: | SIN 1-FAIR | | Floor Construction: | FRAME | Foundation: | PO&BL | | Heating/Cooling: | F/A | Inside Verify: | YES-FIX | | Roof Cover: | COMP |   |   |
|
| | Type | Description | Class CD | Sub Class CD | Year Built | Area |
| | MA | Main Area | 2 | 15SF | 1920 | 1496.0 |
| | HATTIC | House Attic | 2 | * | 1920 | 448.0 |
| Improvement #2: | Commercial/Industrial/Government Bldg | State Code: | 63 | 9900.0 sqft | Value: | $152,323 |
| Improvement #3: | Commercial/Industrial/Government Bldg | State Code: | 63 | 2184.0 sqft | Value: | $42,412 |
Sketch
Property Image
Land
| 1 | 4240-6275Q | Commercial Frtg Chimacum Road | 1.0000 | 43560.00 | 0.00 | 0.00 | 0.00 | $182,460 | $0 |
Roll Value History
| 2025 | N/A | N/A | N/A | N/A | N/A |
| 2024 | $251,465 | $182,460 | $0 | $433,925 | $433,925 |
| 2023 | $251,465 | $177,460 | $0 | $428,925 | $428,925 |
| 2022 | $225,111 | $172,460 | $0 | $397,571 | $397,571 |
| 2021 | $220,841 | $145,680 | $0 | $366,521 | $366,521 |
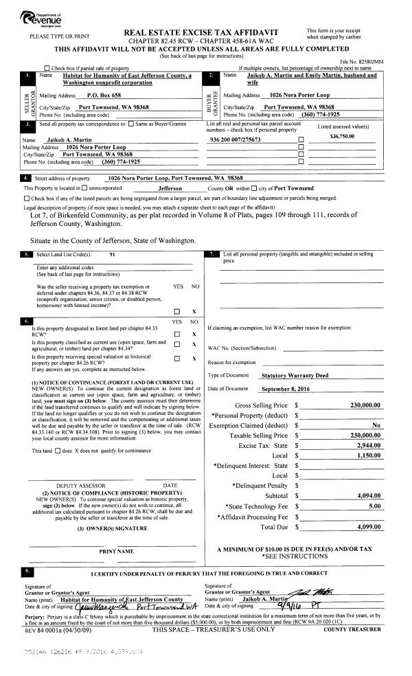
Deed and Sales History
| 1 | 11/30/1994 | SWD | Statutory Warranty Deed | RANDALL, RUDY C & JOSIE L | OSMER, JESSE W/LISA M | 0 | 0 | $350,000.00 | 75686 | 0 |
Payout Agreement
| No payout information available.. |