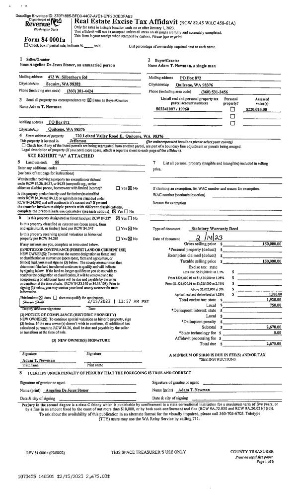
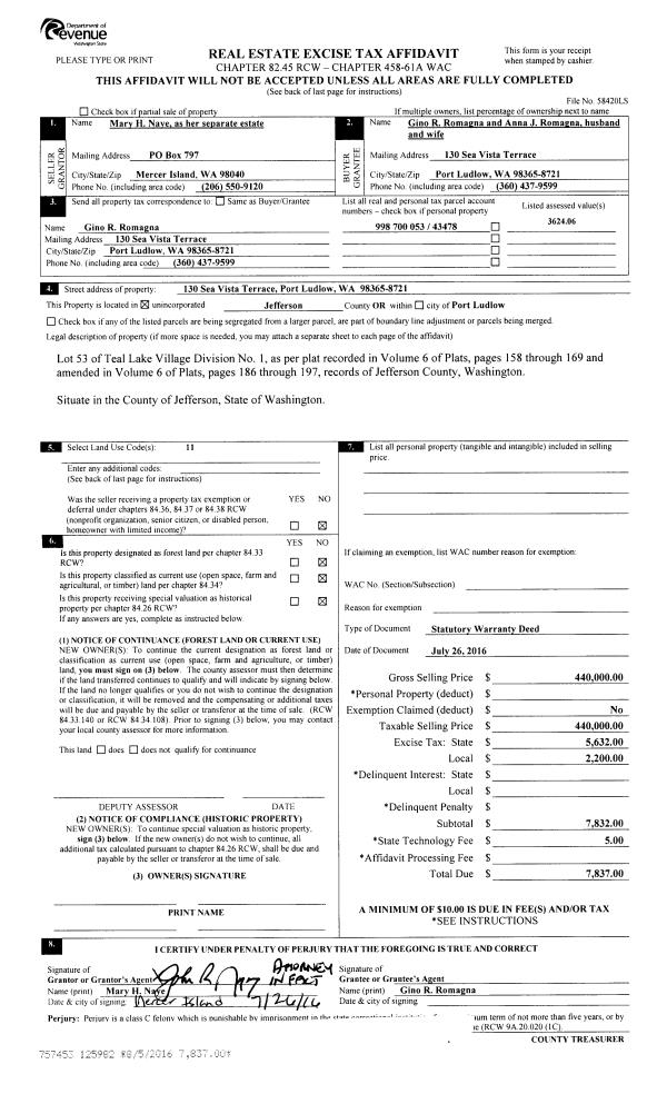
Property
Account |
| Property ID: | 21631 | Abbreviated Legal Description: | S13 T29 R1W W1/2 NW SW LESS TAX 7, R/W |
| Parcel # / Geo ID: | 901133004 | Agent Code: | |
| Type: | Real | | |
| Tax Area: | 0211 - 1-49F1E1H2L1 | Land Use Code | 11 |
| Open Space: | N | DFL | N |
| Historic Property: | N | Remodel Property: | N |
| Multi-Family Redevelopment: | N | | |
| Township: | 29N | Section: | 13 |
| Range: | 1W |
Location |
| Address: | 8322 BEAVER VALLEY RD CHIMACUM, WA 98325 | Mapsco: | 210/066 |
| Neighborhood: | S13, S24, & S25 T29N R1W; VIEW RIDGE LARGE LOT SUBDIVISION | Map ID: | |
| Neighborhood CD: | 4260 |
Owner |
| Name: | DON RIGGLE | Owner ID: | 74566 |
| Mailing Address: | 8322 BEAVER VALLEY RD CHIMACUM, WA 98325-8731 | % Ownership: | 100.0000000000% |
| | | Exemptions: | |
Pay Tax Due
There is currently No Amount Due on this property.
Taxes and Assessment Details
Property Tax Information as of
10/24/2025
Click on "Statement Details" to expand or collapse a tax statement.
* Please enter a valid date ** Please enter a valid date *
Statement Details |
| | TOTAL: | $0.00 | $0.00 | $0.00 | $0.00 | $0.00 | $0.00 |
|
| | $0.00 | $0.00 | $0.00 | $0.00 | $0.00 | $0.00 |
Values
| (+) Improvement Homesite Value: | + | $0 | |
| (+) Improvement Non-Homesite Value: | + | $125,188 | |
| (+) Land Homesite Value: | + | $0 | |
| (+) Land Non-Homesite Value: | + | $193,875 | |
| (+) Curr Use (HS): | + | $0 | $0 |
| (+) Curr Use (NHS): | + | $0 | $0 |
| | | -------------------------- | |
| (=) Market Value: | = | $319,063 | |
| (–) Productivity Loss: | – | $0 | |
| | | -------------------------- | |
| (=) Subtotal: | = | $319,063 | |
| (+) Senior Appraised Value: | + | $0 | |
| (+) Non-Senior Appraised Value: | + | $319,063 | |
| | | -------------------------- | |
| (=) Total Appraised Value: | = | $319,063 | |
| (–) Senior Exemption Loss: | – | $0 | |
| (–) Exemption Loss: | – | $0 | |
| | | -------------------------- | |
| (=) Taxable Value: | = | $319,063 | |
Taxing Jurisdiction
| Owner: | DON RIGGLE | | |
| % Ownership: | 100.0000000000% | | |
| Total Value: | N/A | | |
| Tax Area: | 0211 - 1-49F1E1H2L1 |
| CE | COUNTY CURRENT EXPENSE | N/A | N/A | N/A | N/A | | |
| CNTYDD | DEVELOPMENTAL DISABILITIES | N/A | N/A | N/A | N/A | | |
| CNTYVET | VETERANS RELIEF | N/A | N/A | N/A | N/A | | |
| MENTAL | MENTAL HEALTH | N/A | N/A | N/A | N/A | | |
| ROADS | COUNTY ROADS | N/A | N/A | N/A | N/A | | |
| ROADSCU | COUNTY ROADS TO CUR EXP | N/A | N/A | N/A | N/A | | |
| HOSP2CASH | HOSP DIST #2 GENERAL | N/A | N/A | N/A | N/A | | |
| SCH49CP | SCHOOL DIST #49 CAP PROJ | N/A | N/A | N/A | N/A | | |
| SCH49MO | SCHOOL DIST #49 EP & O | N/A | N/A | N/A | N/A | | |
| CONSERVE | CONSERVATION FUTURES | N/A | N/A | N/A | N/A | | |
| EMS1 | FIRE DIST #1 EMS | N/A | N/A | N/A | N/A | | |
| FD1 | FIRE DIST #1 GENERAL | N/A | N/A | N/A | N/A | | |
| LIB1 | LIBRARY DIST #1 GENERAL | N/A | N/A | N/A | N/A | | |
| PORTPT | PORT OF PT GENERAL | N/A | N/A | N/A | N/A | | |
| PORTPTIDD | PORT OF PT IDD 2019 | N/A | N/A | N/A | N/A | | |
| PUD1 | PUD #1 GENERAL | N/A | N/A | N/A | N/A | | |
| STATE | STATE SCHOOL PART 1 | N/A | N/A | N/A | N/A | | |
| STATE2 | STATE SCHOOL PART 2 | N/A | N/A | N/A | N/A | | |
| | Total Tax Rate: | N/A | | | | | |
| | | | | Taxes w/Current Exemptions: | N/A | | |
| | | | | Taxes w/o Exemptions: | N/A | | |
Improvement / Building
| Improvement #1: | Residential Bldg | State Code: | 11 | 1568.0 sqft | Value: | $125,188 |
| Bathrooms (#): | 1 (FULL) | Bedrooms (#): | 3 | | Exterior Wall: | SI/ST | Fireplace: | SIN 2-AVG | | Fireplace: | WD ST-AVG | Floor Construction: | FRAME | | Foundation: | CONPR | Heating/Cooling: | HTWTR | | Inside Verify: | YES-FIX | Roof Cover: | METAL |
|
| | Type | Description | Class CD | Sub Class CD | Year Built | Area |
| | MA | Main Area | 3- | 15SF | 1925 | 984.0 |
| | MA2 | Second Floor Main Area | 3 | 15SF | 1925 | 584.0 |
| | HWPOR | House Wood Porch | 2 | * | 1925 | 448.0 |
| | HCPOR | House Concrete Porch | 2 | * | 1925 | 224.0 |
| | HDECK | House Deck | 2 | * | 1925 | 656.0 |
| | CARPT | Carport (Table Not Dep) | 2 | * | 1925 | 336.0 |
| | BARN | Barn (Table Not Dep) | 1 | * | 1925 | 820.0 |
| | GARAG | Garage (Table Not Dep) | 2 | * | 1925 | 1344.0 |
| | BSMTU | House basement unfinished | 1 | * | 1925 | 840.0 |
| | SHED | Shed (Table Not Dep) | 2 | * | 1925 | 64.0 |
| | CONCD | Concrete Drive | 2 | * | 1925 | 1250.0 |
| | BARN | Barn (Table Not Dep) | 1 | * | 1925 | 720.0 |
Sketch
Property Image
Land
| 1 | 1776A | Terr/Mtn View >15-25 Acres | 11.5600 | 503553.60 | 0.00 | 0.00 | 0.00 | $79,475 | $0 |
| 2 | 4260-8775A | Terr View Acreage Used Primarily for Pasture | 6.0000 | 261360.00 | 0.00 | 0.00 | 0.00 | $26,400 | $0 |
| 3 | 4260-1375S | Residential Sites 1+/- Ac SomeTerritorial Views | 1.0000 | 43560.00 | 0.00 | 0.00 | 1.00 | $88,000 | $0 |
Roll Value History
| 2025 | N/A | N/A | N/A | N/A | N/A |
| 2024 | $119,745 | $185,063 | $0 | $304,808 | $304,808 |
| 2023 | $114,302 | $168,360 | $0 | $282,662 | $282,662 |
| 2022 | $104,814 | $157,580 | $0 | $262,394 | $262,394 |
| 2021 | $91,942 | $146,275 | $0 | $238,217 | $238,217 |
Deed and Sales History
| 1 | 01/19/2018 | QCD | Quit Claim Deed | SANDRA R RIGGLE | DON RIGGLE | | | | 129420 | |
| 2 | 01/19/2018 | QCD | Quit Claim Deed | | | | | | 129525 | |
Payout Agreement
| No payout information available.. |