Property
Account |
| Property ID: | 21695 | Abbreviated Legal Description: | S14 T29 R1W TAX 36 SUBJ/EASE |
| Parcel # / Geo ID: | 901142025 | Agent Code: | |
| Type: | Real | | |
| Tax Area: | 0211 - 1-49F1E1H2L1 | Land Use Code | 11 |
| Open Space: | N | DFL | N |
| Historic Property: | N | Remodel Property: | N |
| Multi-Family Redevelopment: | N | | |
| Township: | 29N | Section: | 14 |
| Range: | 1W |
Location |
| Address: | 9234 RHODY DR CHIMACUM, WA 98325 | Mapsco: | 211/046 |
| Neighborhood: | S14 T29N R1W & QUEEN ANNE ADDITION | Map ID: | |
| Neighborhood CD: | 4265 |
Owner |
| Name: | MICHAEL A ELDRIDGE | Owner ID: | 45363 |
| Mailing Address: | MICHAEL & SANDRA ELDRIDGE 7443 BEAVER VALLEY RD CHIMACUM, WA 98325-8703 | % Ownership: | 100.0000000000% |
| | | Exemptions: | |
Pay Tax Due
There is currently No Amount Due on this property.
Taxes and Assessment Details
Property Tax Information as of
10/24/2025
Click on "Statement Details" to expand or collapse a tax statement.
* Please enter a valid date ** Please enter a valid date *
Statement Details |
| | TOTAL: | $0.00 | $0.00 | $0.00 | $0.00 | $0.00 | $0.00 |
|
| | $0.00 | $0.00 | $0.00 | $0.00 | $0.00 | $0.00 |
Values
| (+) Improvement Homesite Value: | + | $222,407 | |
| (+) Improvement Non-Homesite Value: | + | $0 | |
| (+) Land Homesite Value: | + | $88,000 | |
| (+) Land Non-Homesite Value: | + | $0 | |
| (+) Curr Use (HS): | + | $0 | $0 |
| (+) Curr Use (NHS): | + | $0 | $0 |
| | | -------------------------- | |
| (=) Market Value: | = | $310,407 | |
| (–) Productivity Loss: | – | $0 | |
| | | -------------------------- | |
| (=) Subtotal: | = | $310,407 | |
| (+) Senior Appraised Value: | + | $0 | |
| (+) Non-Senior Appraised Value: | + | $310,407 | |
| | | -------------------------- | |
| (=) Total Appraised Value: | = | $310,407 | |
| (–) Senior Exemption Loss: | – | $0 | |
| (–) Exemption Loss: | – | $0 | |
| | | -------------------------- | |
| (=) Taxable Value: | = | $310,407 | |
Taxing Jurisdiction
| Owner: | MICHAEL A ELDRIDGE | | |
| % Ownership: | 100.0000000000% | | |
| Total Value: | N/A | | |
| Tax Area: | 0211 - 1-49F1E1H2L1 |
| CE | COUNTY CURRENT EXPENSE | N/A | N/A | N/A | N/A | | |
| CNTYDD | DEVELOPMENTAL DISABILITIES | N/A | N/A | N/A | N/A | | |
| CNTYVET | VETERANS RELIEF | N/A | N/A | N/A | N/A | | |
| MENTAL | MENTAL HEALTH | N/A | N/A | N/A | N/A | | |
| ROADS | COUNTY ROADS | N/A | N/A | N/A | N/A | | |
| ROADSCU | COUNTY ROADS TO CUR EXP | N/A | N/A | N/A | N/A | | |
| HOSP2CASH | HOSP DIST #2 GENERAL | N/A | N/A | N/A | N/A | | |
| SCH49CP | SCHOOL DIST #49 CAP PROJ | N/A | N/A | N/A | N/A | | |
| SCH49MO | SCHOOL DIST #49 EP & O | N/A | N/A | N/A | N/A | | |
| CONSERVE | CONSERVATION FUTURES | N/A | N/A | N/A | N/A | | |
| EMS1 | FIRE DIST #1 EMS | N/A | N/A | N/A | N/A | | |
| FD1 | FIRE DIST #1 GENERAL | N/A | N/A | N/A | N/A | | |
| LIB1 | LIBRARY DIST #1 GENERAL | N/A | N/A | N/A | N/A | | |
| PORTPT | PORT OF PT GENERAL | N/A | N/A | N/A | N/A | | |
| PORTPTIDD | PORT OF PT IDD 2019 | N/A | N/A | N/A | N/A | | |
| PUD1 | PUD #1 GENERAL | N/A | N/A | N/A | N/A | | |
| STATE | STATE SCHOOL PART 1 | N/A | N/A | N/A | N/A | | |
| STATE2 | STATE SCHOOL PART 2 | N/A | N/A | N/A | N/A | | |
| | Total Tax Rate: | N/A | | | | | |
| | | | | Taxes w/Current Exemptions: | N/A | | |
| | | | | Taxes w/o Exemptions: | N/A | | |
Improvement / Building
| Improvement #1: | Residential Bldg | State Code: | 11 | 1728.0 sqft | Value: | $222,407 |
| Bathrooms (#): | 1 (FULL) | Bedrooms (#): | 4 | | Exterior Wall: | SI/ST | Floor Construction: | FRAME | | Foundation: | CONPR | Heating/Cooling: | F/A | | Roof Cover: | COMP |   |   |
|
| | Type | Description | Class CD | Sub Class CD | Year Built | Area |
| | MA | Main Area | 3+ | 15SF | 1925 | 1152.0 |
| | MA2 | Second Floor Main Area | 3+ | 15SF | 1925 | 576.0 |
| | HWPOR | House Wood Porch | 3 | * | 1925 | 160.0 |
| | BSMTU | House basement unfinished | 3 | * | 1925 | 240.0 |
| | PATIO | House Patio | 3 | * | 1925 | 176.0 |
| | SHED | Shed (Table Not Dep) | 5 | * | 1925 | 64.0 |
| | SHED | Shed (Table Not Dep) | 1 | * | 1925 | 120.0 |
| | HCPOR | House Concrete Porch | 3 | * | 1925 | 60.0 |
Sketch
Property Image
Land
| 1 | 4265-1375S | Residential Sites 1+/- Ac SomeTerritorial Views | 0.0000 | 0.00 | 0.00 | 0.00 | 1.00 | $88,000 | $0 |
Roll Value History
| 2025 | N/A | N/A | N/A | N/A | N/A |
| 2024 | $212,737 | $84,000 | $0 | $296,737 | $296,737 |
| 2023 | $203,067 | $75,000 | $0 | $278,067 | $278,067 |
| 2022 | $172,470 | $70,000 | $0 | $242,470 | $242,470 |
| 2021 | $151,289 | $62,100 | $0 | $213,389 | $213,389 |
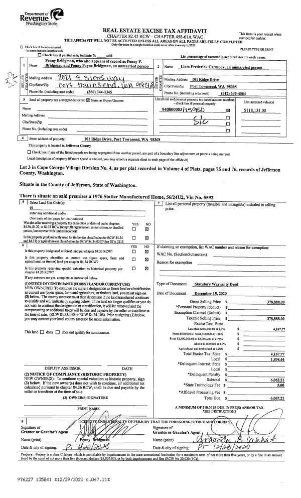
Deed and Sales History
| 1 | 01/20/2021 | PRD | Personal Representatives Deed | ELEANOR D ELDRIDGE | MICHAEL A ELDRIDGE | | | $140,000.00 | 135994 | |
Payout Agreement
| No payout information available.. |