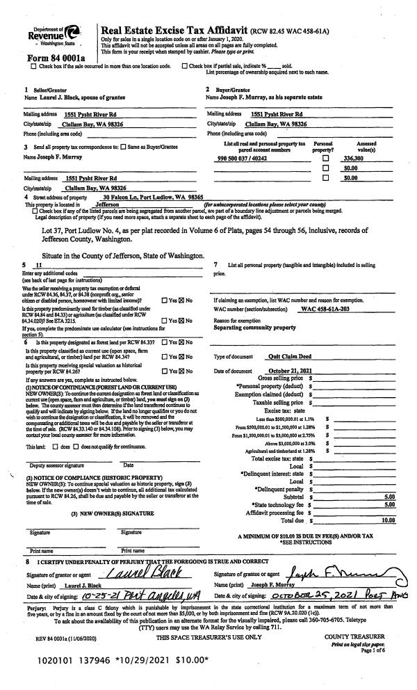
Property
Account |
| Property ID: | 21847 | Abbreviated Legal Description: | S19 T29 R1W TAX 35 |
| Parcel # / Geo ID: | 901192013 | Agent Code: | |
| Type: | Real | | |
| Tax Area: | 0151 - 1-50F5E5H2L1 | Land Use Code | 11 |
| Open Space: | N | DFL | N |
| Historic Property: | N | Remodel Property: | N |
| Multi-Family Redevelopment: | N | | |
| Township: | 29N | Section: | 19 |
| Range: | 1W |
Location |
| Address: | 74 FAIRMOUNT HILL RD PORT TOWNSEND, WA 98368 | Mapsco: | 077/039 |
| Neighborhood: | S16, 17, 18, 19 & 20 T29 R1W | Map ID: | |
| Neighborhood CD: | 5230 |
Owner |
| Name: | JEFFREY N & DAWN M MARTIN | Owner ID: | 107002 |
| Mailing Address: | 74 FAIRMOUNT HILL RD PORT TOWNSEND, WA 98368-8703 | % Ownership: | 100.0000000000% |
| | | Exemptions: | |
Pay Tax Due
There is currently No Amount Due on this property.
Taxes and Assessment Details
Property Tax Information as of
10/24/2025
Click on "Statement Details" to expand or collapse a tax statement.
* Please enter a valid date ** Please enter a valid date *
Statement Details |
| | TOTAL: | $0.00 | $0.00 | $0.00 | $0.00 | $0.00 | $0.00 |
|
| | $0.00 | $0.00 | $0.00 | $0.00 | $0.00 | $0.00 |
Values
| (+) Improvement Homesite Value: | + | $0 | |
| (+) Improvement Non-Homesite Value: | + | $137,473 | |
| (+) Land Homesite Value: | + | $0 | |
| (+) Land Non-Homesite Value: | + | $117,480 | |
| (+) Curr Use (HS): | + | $0 | $0 |
| (+) Curr Use (NHS): | + | $0 | $0 |
| | | -------------------------- | |
| (=) Market Value: | = | $254,953 | |
| (–) Productivity Loss: | – | $0 | |
| | | -------------------------- | |
| (=) Subtotal: | = | $254,953 | |
| (+) Senior Appraised Value: | + | $0 | |
| (+) Non-Senior Appraised Value: | + | $254,953 | |
| | | -------------------------- | |
| (=) Total Appraised Value: | = | $254,953 | |
| (–) Senior Exemption Loss: | – | $0 | |
| (–) Exemption Loss: | – | $0 | |
| | | -------------------------- | |
| (=) Taxable Value: | = | $254,953 | |
Taxing Jurisdiction
| Owner: | JEFFREY N & DAWN M MARTIN | | |
| % Ownership: | 100.0000000000% | | |
| Total Value: | N/A | | |
| Tax Area: | 0151 - 1-50F5E5H2L1 |
| CE | COUNTY CURRENT EXPENSE | N/A | N/A | N/A | N/A | | |
| CNTYDD | DEVELOPMENTAL DISABILITIES | N/A | N/A | N/A | N/A | | |
| CNTYVET | VETERANS RELIEF | N/A | N/A | N/A | N/A | | |
| MENTAL | MENTAL HEALTH | N/A | N/A | N/A | N/A | | |
| ROADS | COUNTY ROADS | N/A | N/A | N/A | N/A | | |
| ROADSCU | COUNTY ROADS TO CUR EXP | N/A | N/A | N/A | N/A | | |
| HOSP2CASH | HOSP DIST #2 GENERAL | N/A | N/A | N/A | N/A | | |
| SCH50BOND | SCHOOL DIST #50 BOND 2016 | N/A | N/A | N/A | N/A | | |
| SCH50CP | SCHOOL DIST #50 CAP PROJ | N/A | N/A | N/A | N/A | | |
| SCH50MO | SCHOOL DIST #50 EP & O | N/A | N/A | N/A | N/A | | |
| CONSERVE | CONSERVATION FUTURES | N/A | N/A | N/A | N/A | | |
| EMS5 | FIRE DIST #5 EMS | N/A | N/A | N/A | N/A | | |
| FD5 | FIRE DIST #5 GENERAL | N/A | N/A | N/A | N/A | | |
| FD5BOND | FIRE DIST #5 BOND 2016 | N/A | N/A | N/A | N/A | | |
| LIB1 | LIBRARY DIST #1 GENERAL | N/A | N/A | N/A | N/A | | |
| PORTPT | PORT OF PT GENERAL | N/A | N/A | N/A | N/A | | |
| PORTPTIDD | PORT OF PT IDD 2019 | N/A | N/A | N/A | N/A | | |
| PUD1 | PUD #1 GENERAL | N/A | N/A | N/A | N/A | | |
| STATE | STATE SCHOOL PART 1 | N/A | N/A | N/A | N/A | | |
| STATE2 | STATE SCHOOL PART 2 | N/A | N/A | N/A | N/A | | |
| | Total Tax Rate: | N/A | | | | | |
| | | | | Taxes w/Current Exemptions: | N/A | | |
| | | | | Taxes w/o Exemptions: | N/A | | |
Improvement / Building
| Improvement #1: | Manufactured Home | State Code: | 11 | 1627.0 sqft | Value: | $137,473 |
| Bathrooms (#): | 2 (FULL) | Bedrooms (#): | 3 | | Exterior Wall: | PL/T1 | Floor Construction: | FRAME | | Foundation: | PO&BL | Heating/Cooling: | F/A | | Inside Verify: | YES-FIX | Roof Cover: | COMP |
|
| | Type | Description | Class CD | Sub Class CD | Year Built | Area |
| | MA | Main Area | 4+ | MDBL | 1993 | 1627.0 |
| | MWPOR | MH Wood Porch | 4 | * | 1993 | 48.0 |
Sketch
| No sketches available for this property. |
Property Image
Land
| 1 | 5230-1355S | Avg Wtr View Sites 1+/- Acre | 0.0000 | 0.00 | 0.00 | 0.00 | 1.00 | $117,480 | $0 |
Roll Value History
| 2025 | N/A | N/A | N/A | N/A | N/A |
| 2024 | $137,473 | $117,480 | $0 | $254,953 | $254,953 |
| 2023 | $134,355 | $106,890 | $0 | $241,245 | $241,245 |
| 2022 | $122,141 | $96,800 | $0 | $218,941 | $218,941 |
| 2021 | $92,531 | $69,300 | $0 | $161,831 | $161,831 |
Deed and Sales History
| 1 | 05/16/2022 | QCD | Quit Claim Deed | JEFFREY MARTIN | JEFFREY N & DAWN M MARTIN | | | | 139115 | |
| 2 | 05/16/2022 | QCD | Quit Claim Deed | JEFF MARTIN | JEFFREY MARTIN | | | | 139114 | |
| 3 | 08/19/2004 | SWD | Statutory Warranty Deed | PURVIANCE, CRAIG D/DOREEN | MARTIN, JEFF/PEARCE MICHAEL & | 0 | 0 | $152,000.00 | 101214 | 0 |
| 4 | 02/09/2004 | QCD | Quit Claim Deed | PURVIANCE, DUANE D | PURVIANCE, CRAIG D & DOREEN L | 0 | 0 | $0.00 | 99453 | 0 |
Payout Agreement
| No payout information available.. |