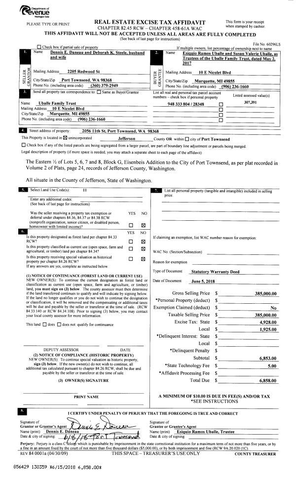
Property
Account |
| Property ID: | 21875 | Abbreviated Legal Description: | S20 T29 R1W TAX 10 INT IN COMM LT & SUNSET LAKE |
| Parcel # / Geo ID: | 901202005 | Agent Code: | |
| Type: | Real | | |
| Tax Area: | 0151 - 1-50F5E5H2L1 | Land Use Code | 76 |
| Open Space: | N | DFL | N |
| Historic Property: | N | Remodel Property: | N |
| Multi-Family Redevelopment: | N | | |
| Township: | 29N | Section: | 20 |
| Range: | 1W |
Location |
| Address: | | Mapsco: | 078/012 |
| Neighborhood: | S16, 17, 18, 19 & 20 T29 R1W | Map ID: | |
| Neighborhood CD: | 5230 |
Owner |
| Name: | MELINDA SHORT | Owner ID: | 100136 |
| Mailing Address: | 103 N LYTER AVE PORT TOWNSEND, WA 98368-2544 | % Ownership: | 100.0000000000% |
| | | Exemptions: | |
Pay Tax Due
There is currently No Amount Due on this property.
Taxes and Assessment Details
Property Tax Information as of
10/24/2025
Click on "Statement Details" to expand or collapse a tax statement.
* Please enter a valid date ** Please enter a valid date *
Statement Details |
| | TOTAL: | $0.00 | $0.00 | $0.00 | $0.00 | $0.00 | $0.00 |
|
| | $0.00 | $0.00 | $0.00 | $0.00 | $0.00 | $0.00 |
Values
| (+) Improvement Homesite Value: | + | $0 | |
| (+) Improvement Non-Homesite Value: | + | $36,318 | |
| (+) Land Homesite Value: | + | $0 | |
| (+) Land Non-Homesite Value: | + | $38,126 | |
| (+) Curr Use (HS): | + | $0 | $0 |
| (+) Curr Use (NHS): | + | $0 | $0 |
| | | -------------------------- | |
| (=) Market Value: | = | $74,444 | |
| (–) Productivity Loss: | – | $0 | |
| | | -------------------------- | |
| (=) Subtotal: | = | $74,444 | |
| (+) Senior Appraised Value: | + | $0 | |
| (+) Non-Senior Appraised Value: | + | $74,444 | |
| | | -------------------------- | |
| (=) Total Appraised Value: | = | $74,444 | |
| (–) Senior Exemption Loss: | – | $0 | |
| (–) Exemption Loss: | – | $0 | |
| | | -------------------------- | |
| (=) Taxable Value: | = | $74,444 | |
Taxing Jurisdiction
| Owner: | MELINDA SHORT | | |
| % Ownership: | 100.0000000000% | | |
| Total Value: | N/A | | |
| Tax Area: | 0151 - 1-50F5E5H2L1 |
| CE | COUNTY CURRENT EXPENSE | N/A | N/A | N/A | N/A | | |
| CNTYDD | DEVELOPMENTAL DISABILITIES | N/A | N/A | N/A | N/A | | |
| CNTYVET | VETERANS RELIEF | N/A | N/A | N/A | N/A | | |
| MENTAL | MENTAL HEALTH | N/A | N/A | N/A | N/A | | |
| ROADS | COUNTY ROADS | N/A | N/A | N/A | N/A | | |
| ROADSCU | COUNTY ROADS TO CUR EXP | N/A | N/A | N/A | N/A | | |
| HOSP2CASH | HOSP DIST #2 GENERAL | N/A | N/A | N/A | N/A | | |
| SCH50BOND | SCHOOL DIST #50 BOND 2016 | N/A | N/A | N/A | N/A | | |
| SCH50CP | SCHOOL DIST #50 CAP PROJ | N/A | N/A | N/A | N/A | | |
| SCH50MO | SCHOOL DIST #50 EP & O | N/A | N/A | N/A | N/A | | |
| CONSERVE | CONSERVATION FUTURES | N/A | N/A | N/A | N/A | | |
| EMS5 | FIRE DIST #5 EMS | N/A | N/A | N/A | N/A | | |
| FD5 | FIRE DIST #5 GENERAL | N/A | N/A | N/A | N/A | | |
| FD5BOND | FIRE DIST #5 BOND 2016 | N/A | N/A | N/A | N/A | | |
| LIB1 | LIBRARY DIST #1 GENERAL | N/A | N/A | N/A | N/A | | |
| PORTPT | PORT OF PT GENERAL | N/A | N/A | N/A | N/A | | |
| PORTPTIDD | PORT OF PT IDD 2019 | N/A | N/A | N/A | N/A | | |
| PUD1 | PUD #1 GENERAL | N/A | N/A | N/A | N/A | | |
| STATE | STATE SCHOOL PART 1 | N/A | N/A | N/A | N/A | | |
| STATE2 | STATE SCHOOL PART 2 | N/A | N/A | N/A | N/A | | |
| | Total Tax Rate: | N/A | | | | | |
| | | | | Taxes w/Current Exemptions: | N/A | | |
| | | | | Taxes w/o Exemptions: | N/A | | |
Improvement / Building
| Improvement #1: | Residential Bldg | State Code: | 19 | 720.0 sqft | Value: | $36,318 |
| Exterior Wall: | SI/ST | Foundation: | PO&BL | | Roof Cover: | METAL |   |   |
|
Sketch
| No sketches available for this property. |
Property Image
Land
| 1 | 5230-7215F | Lakefront Recreational Sites | 0.0000 | 0.00 | 0.00 | 0.00 | 0.00 | $35,046 | $0 |
| 2 | 5230-7215F | Lakefront Recreational Sites | 0.0000 | 0.00 | 0.00 | 0.00 | 0.00 | $3,080 | $0 |
Roll Value History
| 2025 | N/A | N/A | N/A | N/A | N/A |
| 2024 | $36,318 | $38,126 | $0 | $74,444 | $74,444 |
| 2023 | $0 | $36,393 | $0 | $36,393 | $36,393 |
| 2022 | $0 | $34,660 | $0 | $34,660 | $34,660 |
| 2021 | $0 | $33,361 | $0 | $33,361 | $33,361 |
Deed and Sales History
| 1 | 10/16/2018 | SWD | Statutory Warranty Deed | TIMOTHY R JOHNSON | MELINDA SHORT | | | $32,520.00 | 131303 | |
| 2 | 11/14/1997 | QCD | Quit Claim Deed | | | | | | 131305 | |
| 3 | 11/14/1997 | QCD | Quit Claim Deed | JOHNSON, PATRICIA ANN | SUNSET LAKE PROPERTY | 0 | 0 | $0.00 | 83182 | 0 |
Payout Agreement
| No payout information available.. |