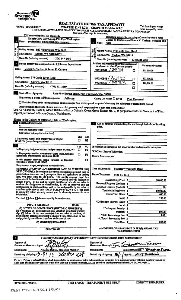
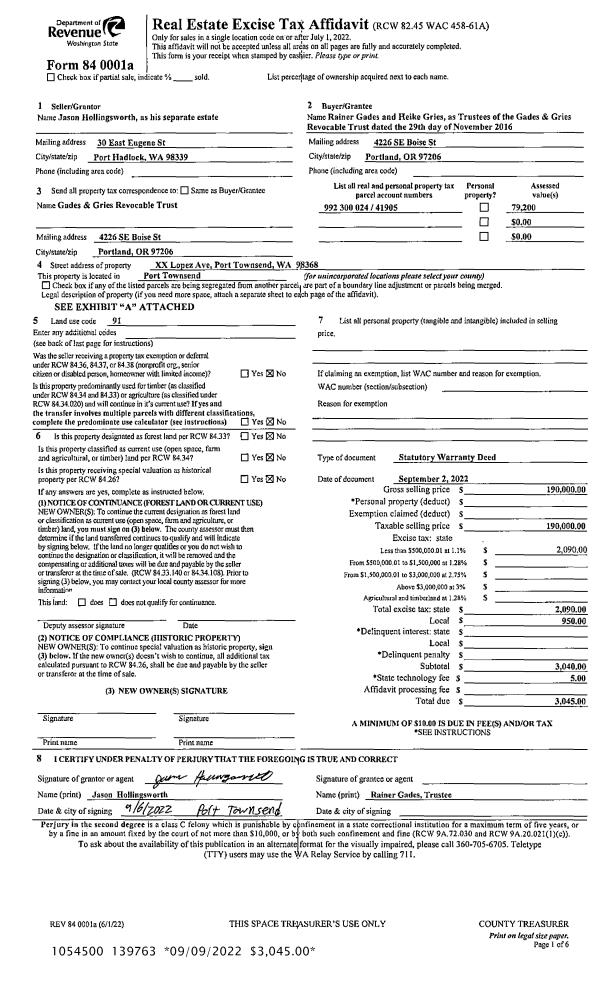
Property
Account |
| Property ID: | 21877 | Abbreviated Legal Description: | S21 T29 R1W W1/2 NE(LESS TAX 1,2) |
| Parcel # / Geo ID: | 901211004 | Agent Code: | |
| Type: | Real | | |
| Tax Area: | 0211 - 1-49F1E1H2L1 | Land Use Code | 83 |
| Open Space: | Y | DFL | N |
| Historic Property: | N | Remodel Property: | N |
| Multi-Family Redevelopment: | N | | |
| Township: | 29N | Section: | 21 |
| Range: | 1W |
Location |
| Address: | | Mapsco: | 214/005 |
| Neighborhood: | S21, 22,& 23 T29N R1W; MCNEIL PARK; STEWARTS GRDN; FAWN MDOW | Map ID: | |
| Neighborhood CD: | 4270 |
Owner |
| Name: | GLENN L DAVIS | Owner ID: | 14190 |
| Mailing Address: | NANCY L MC DANIEL PO BOX 550 CHIMACUM, WA 98325-0550 | % Ownership: | 100.0000000000% |
| | | Exemptions: | |
Pay Tax Due
There is currently No Amount Due on this property.
Taxes and Assessment Details
Property Tax Information as of
10/24/2025
Click on "Statement Details" to expand or collapse a tax statement.
* Please enter a valid date ** Please enter a valid date *
Statement Details |
| | TOTAL: | $0.00 | $0.00 | $0.00 | $0.00 | $0.00 | $0.00 |
|
| | $0.00 | $0.00 | $0.00 | $0.00 | $0.00 | $0.00 |
Values
| (+) Improvement Homesite Value: | + | $0 | |
| (+) Improvement Non-Homesite Value: | + | $7,261 | |
| (+) Land Homesite Value: | + | $0 | |
| (+) Land Non-Homesite Value: | + | $27,500 | |
| (+) Curr Use (HS): | + | $0 | $0 |
| (+) Curr Use (NHS): | + | $224,087 | $6,791 |
| | | -------------------------- | |
| (=) Market Value: | = | $258,848 | |
| (–) Productivity Loss: | – | $217,296 | |
| | | -------------------------- | |
| (=) Subtotal: | = | $41,552 | |
| (+) Senior Appraised Value: | + | $0 | |
| (+) Non-Senior Appraised Value: | + | $41,552 | |
| | | -------------------------- | |
| (=) Total Appraised Value: | = | $41,552 | |
| (–) Senior Exemption Loss: | – | $0 | |
| (–) Exemption Loss: | – | $0 | |
| | | -------------------------- | |
| (=) Taxable Value: | = | $41,552 | |
Taxing Jurisdiction
| Owner: | GLENN L DAVIS | | |
| % Ownership: | 100.0000000000% | | |
| Total Value: | N/A | | |
| Tax Area: | 0211 - 1-49F1E1H2L1 |
| CE | COUNTY CURRENT EXPENSE | N/A | N/A | N/A | N/A | | |
| CNTYDD | DEVELOPMENTAL DISABILITIES | N/A | N/A | N/A | N/A | | |
| CNTYVET | VETERANS RELIEF | N/A | N/A | N/A | N/A | | |
| MENTAL | MENTAL HEALTH | N/A | N/A | N/A | N/A | | |
| ROADS | COUNTY ROADS | N/A | N/A | N/A | N/A | | |
| ROADSCU | COUNTY ROADS TO CUR EXP | N/A | N/A | N/A | N/A | | |
| HOSP2CASH | HOSP DIST #2 GENERAL | N/A | N/A | N/A | N/A | | |
| SCH49CP | SCHOOL DIST #49 CAP PROJ | N/A | N/A | N/A | N/A | | |
| SCH49MO | SCHOOL DIST #49 EP & O | N/A | N/A | N/A | N/A | | |
| CONSERVE | CONSERVATION FUTURES | N/A | N/A | N/A | N/A | | |
| EMS1 | FIRE DIST #1 EMS | N/A | N/A | N/A | N/A | | |
| FD1 | FIRE DIST #1 GENERAL | N/A | N/A | N/A | N/A | | |
| LIB1 | LIBRARY DIST #1 GENERAL | N/A | N/A | N/A | N/A | | |
| PORTPT | PORT OF PT GENERAL | N/A | N/A | N/A | N/A | | |
| PORTPTIDD | PORT OF PT IDD 2019 | N/A | N/A | N/A | N/A | | |
| PUD1 | PUD #1 GENERAL | N/A | N/A | N/A | N/A | | |
| STATE | STATE SCHOOL PART 1 | N/A | N/A | N/A | N/A | | |
| STATE2 | STATE SCHOOL PART 2 | N/A | N/A | N/A | N/A | | |
| | Total Tax Rate: | N/A | | | | | |
| | | | | Taxes w/Current Exemptions: | N/A | | |
| | | | | Taxes w/o Exemptions: | N/A | | |
Improvement / Building
| Improvement #1: | Residential Bldg | State Code: | 19 | 0.0 sqft | Value: | $7,261 |
Sketch
Property Image
Land
| 1 | 1874A | Terr/Mtn/No View >25-40 Acres | 30.1800 | 1314640.80 | 0.00 | 0.00 | 0.00 | $224,087 | $6,791 |
| 2 | 4270-1375S | Residential Sites 1+/- Ac SomeTerritorial Views | 1.0000 | 43560.00 | 0.00 | 0.00 | 1.00 | $27,500 | $0 |
Roll Value History
| 2025 | N/A | N/A | N/A | N/A | N/A |
| 2024 | $6,945 | $240,151 | $6,791 | $39,986 | $39,986 |
| 2023 | $6,630 | $221,170 | $6,791 | $38,421 | $38,421 |
| 2022 | $730 | $206,080 | $6,791 | $32,521 | $32,521 |
| 2021 | $675 | $202,163 | $6,791 | $30,435 | $30,435 |
Deed and Sales History
| 1 | 02/11/2004 | MISC | MISC | MCDANIEL, LEONARD & AILEE | DAVIS, GLENN/MCDANIEL, NANCY | 0 | 0 | $0.00 | 99562 | 0 |
| 2 | 12/04/2003 | QCD | Quit Claim Deed | MCDANIEL, LEONARD A & AIL | DAVIS, GLENN L & MCDANIEL NANC | 0 | 0 | $0.00 | 98989 | 0 |
Payout Agreement
| No payout information available.. |