Property
Account |
| Property ID: | 21881 | Abbreviated Legal Description: | S21 T29 R1W TAX 3 |
| Parcel # / Geo ID: | 901211009 | Agent Code: | |
| Type: | Real | | |
| Tax Area: | 0211 - 1-49F1E1H2L1 | Land Use Code | 88 |
| Open Space: | N | DFL | Y |
| Historic Property: | N | Remodel Property: | N |
| Multi-Family Redevelopment: | N | | |
| Township: | 29N | Section: | 21 |
| Range: | 1W |
Location |
| Address: | 2220 VAN TROJEN RD CHIMACUM, WA 98325 | Mapsco: | 214/018 |
| Neighborhood: | S21, 22,& 23 T29N R1W; MCNEIL PARK; STEWARTS GRDN; FAWN MDOW | Map ID: | |
| Neighborhood CD: | 4270 |
Owner |
| Name: | NICOLE WITHAM & BLAKE THEDINGA | Owner ID: | 100356 |
| Mailing Address: | 2220 VAN TROJEN RD CHIMACUM, WA 98325 | % Ownership: | 100.0000000000% |
| | | Exemptions: | |
Pay Tax Due
There is currently No Amount Due on this property.
Taxes and Assessment Details
Property Tax Information as of
10/24/2025
Click on "Statement Details" to expand or collapse a tax statement.
* Please enter a valid date ** Please enter a valid date *
Statement Details |
| | TOTAL: | $0.00 | $0.00 | $0.00 | $0.00 | $0.00 | $0.00 |
|
| | $0.00 | $0.00 | $0.00 | $0.00 | $0.00 | $0.00 |
Values
| (+) Improvement Homesite Value: | + | $0 | |
| (+) Improvement Non-Homesite Value: | + | $24,257 | |
| (+) Land Homesite Value: | + | $0 | |
| (+) Land Non-Homesite Value: | + | $0 | |
| (+) Curr Use (HS): | + | $0 | $0 |
| (+) Curr Use (NHS): | + | $205,975 | $1,566 |
| | | -------------------------- | |
| (=) Market Value: | = | $230,232 | |
| (–) Productivity Loss: | – | $204,409 | |
| | | -------------------------- | |
| (=) Subtotal: | = | $25,823 | |
| (+) Senior Appraised Value: | + | $0 | |
| (+) Non-Senior Appraised Value: | + | $25,823 | |
| | | -------------------------- | |
| (=) Total Appraised Value: | = | $25,823 | |
| (–) Senior Exemption Loss: | – | $0 | |
| (–) Exemption Loss: | – | $0 | |
| | | -------------------------- | |
| (=) Taxable Value: | = | $25,823 | |
Taxing Jurisdiction
| Owner: | NICOLE WITHAM & BLAKE THEDINGA | | |
| % Ownership: | 100.0000000000% | | |
| Total Value: | N/A | | |
| Tax Area: | 0211 - 1-49F1E1H2L1 |
| CE | COUNTY CURRENT EXPENSE | N/A | N/A | N/A | N/A | | |
| CNTYDD | DEVELOPMENTAL DISABILITIES | N/A | N/A | N/A | N/A | | |
| CNTYVET | VETERANS RELIEF | N/A | N/A | N/A | N/A | | |
| MENTAL | MENTAL HEALTH | N/A | N/A | N/A | N/A | | |
| ROADS | COUNTY ROADS | N/A | N/A | N/A | N/A | | |
| ROADSCU | COUNTY ROADS TO CUR EXP | N/A | N/A | N/A | N/A | | |
| HOSP2CASH | HOSP DIST #2 GENERAL | N/A | N/A | N/A | N/A | | |
| SCH49CP | SCHOOL DIST #49 CAP PROJ | N/A | N/A | N/A | N/A | | |
| SCH49MO | SCHOOL DIST #49 EP & O | N/A | N/A | N/A | N/A | | |
| CONSERVE | CONSERVATION FUTURES | N/A | N/A | N/A | N/A | | |
| EMS1 | FIRE DIST #1 EMS | N/A | N/A | N/A | N/A | | |
| FD1 | FIRE DIST #1 GENERAL | N/A | N/A | N/A | N/A | | |
| LIB1 | LIBRARY DIST #1 GENERAL | N/A | N/A | N/A | N/A | | |
| PORTPT | PORT OF PT GENERAL | N/A | N/A | N/A | N/A | | |
| PORTPTIDD | PORT OF PT IDD 2019 | N/A | N/A | N/A | N/A | | |
| PUD1 | PUD #1 GENERAL | N/A | N/A | N/A | N/A | | |
| STATE | STATE SCHOOL PART 1 | N/A | N/A | N/A | N/A | | |
| STATE2 | STATE SCHOOL PART 2 | N/A | N/A | N/A | N/A | | |
| | Total Tax Rate: | N/A | | | | | |
| | | | | Taxes w/Current Exemptions: | N/A | | |
| | | | | Taxes w/o Exemptions: | N/A | | |
Improvement / Building
| Improvement #1: | Residential Bldg | State Code: | 19 | 120.0 sqft | Value: | $504 |
| Exterior Wall: | SI/ST | Fireplace: | WD ST-FAIR | | Floor Construction: | FRAME | Foundation: | PO&BL | | Heating/Cooling: | WD/NO | Roof Cover: | METAL |
|
| | Type | Description | Class CD | Sub Class CD | Year Built | Area |
| | MA | Main Area | 1 | C1S | 1975 | 120.0 |
| | SHED | Shed (Table Not Dep) | 1 | * | 2010 | 100.0 |
| | CARPT | Carport (Table Not Dep) | 1 | * | 1975 | 120.0 |
| Improvement #2: | Residential Bldg | State Code: | 11 | 0.0 sqft | Value: | $23,753 |
Sketch
Property Image
Land
| 1 | 4270-1375S | Residential Sites 1+/- Ac SomeTerritorial Views | 1.0000 | 43560.00 | 0.00 | 0.00 | 1.00 | $27,500 | $112 |
| 2 | 1673A | Terr/Mtn/No View 6-15 Acres | 12.9800 | 565408.80 | 0.00 | 0.00 | 0.00 | $178,475 | $1,454 |
Roll Value History
| 2025 | N/A | N/A | N/A | N/A | N/A |
| 2024 | $23,203 | $196,613 | $1,566 | $24,769 | $24,769 |
| 2023 | $22,148 | $180,760 | $1,538 | $23,686 | $23,686 |
| 2022 | $438 | $154,800 | $1,496 | $1,934 | $1,934 |
| 2021 | $405 | $160,882 | $1,496 | $1,901 | $1,901 |
Deed and Sales History
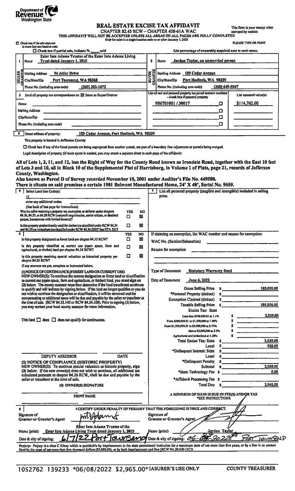
| 1 | 12/13/2018 | SWD | Statutory Warranty Deed | LAWRENCE G SCOVILLE | NICOLE WITHAM & BLAKE THEDINGA | | | $130,000.00 | 131585 | |
Payout Agreement
| No payout information available.. |