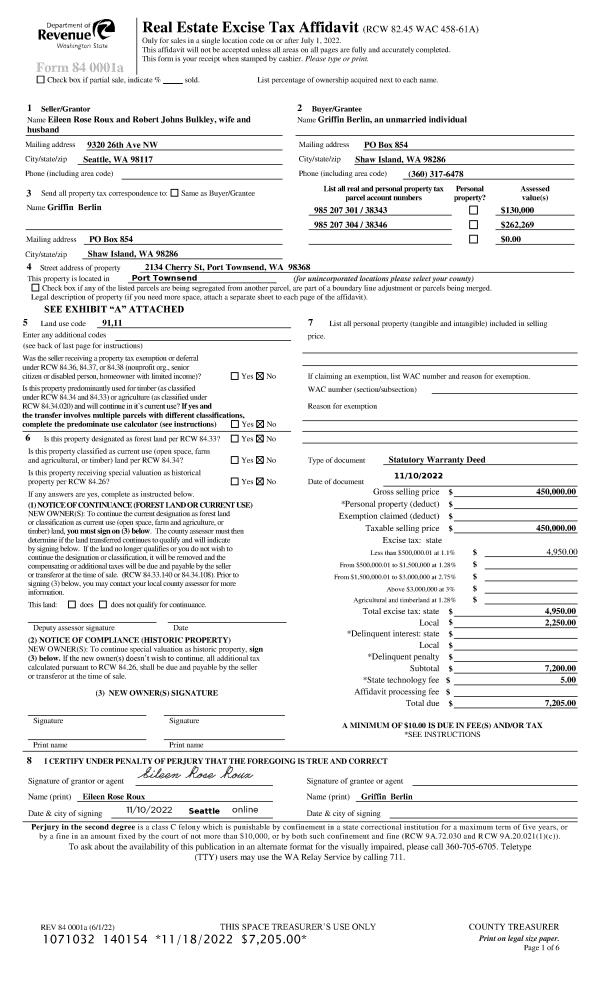
Property
Account |
| Property ID: | 21915 | Abbreviated Legal Description: | S22 T29 R1W TAX 8 LESS R/W |
| Parcel # / Geo ID: | 901221008 | Agent Code: | |
| Type: | Real | | |
| Tax Area: | 0211 - 1-49F1E1H2L1 | Land Use Code | 83 |
| Open Space: | Y | DFL | N |
| Historic Property: | N | Remodel Property: | N |
| Multi-Family Redevelopment: | N | | |
| Township: | 29N | Section: | 22 |
| Range: | 1W |
Location |
| Address: | 1311 WEST VALLEY RD CHIMACUM, WA 98325 | Mapsco: | 215/030 |
| Neighborhood: | S21, 22,& 23 T29N R1W; MCNEIL PARK; STEWARTS GRDN; FAWN MDOW | Map ID: | |
| Neighborhood CD: | 4270 |
Owner |
| Name: | CHARLES D BOGGS | Owner ID: | 11738 |
| Mailing Address: | JULIE M BOGGS 1311 W VALLEY RD CHIMACUM, WA 98325-9744 | % Ownership: | 100.0000000000% |
| | | Exemptions: | |
Pay Tax Due
There is currently No Amount Due on this property.
Taxes and Assessment Details
Property Tax Information as of
10/24/2025
Click on "Statement Details" to expand or collapse a tax statement.
* Please enter a valid date ** Please enter a valid date *
Statement Details |
| | TOTAL: | $0.00 | $0.00 | $0.00 | $0.00 | $0.00 | $0.00 |
|
| | $0.00 | $0.00 | $0.00 | $0.00 | $0.00 | $0.00 |
Values
| (+) Improvement Homesite Value: | + | $0 | |
| (+) Improvement Non-Homesite Value: | + | $277,325 | |
| (+) Land Homesite Value: | + | $22,000 | |
| (+) Land Non-Homesite Value: | + | $0 | |
| (+) Curr Use (HS): | + | $77,000 | $236 |
| (+) Curr Use (NHS): | + | $31,799 | $560 |
| | | -------------------------- | |
| (=) Market Value: | = | $408,124 | |
| (–) Productivity Loss: | – | $108,003 | |
| | | -------------------------- | |
| (=) Subtotal: | = | $300,121 | |
| (+) Senior Appraised Value: | + | $0 | |
| (+) Non-Senior Appraised Value: | + | $300,121 | |
| | | -------------------------- | |
| (=) Total Appraised Value: | = | $300,121 | |
| (–) Senior Exemption Loss: | – | $0 | |
| (–) Exemption Loss: | – | $0 | |
| | | -------------------------- | |
| (=) Taxable Value: | = | $300,121 | |
Taxing Jurisdiction
| Owner: | CHARLES D BOGGS | | |
| % Ownership: | 100.0000000000% | | |
| Total Value: | N/A | | |
| Tax Area: | 0211 - 1-49F1E1H2L1 |
| CE | COUNTY CURRENT EXPENSE | N/A | N/A | N/A | N/A | | |
| CNTYDD | DEVELOPMENTAL DISABILITIES | N/A | N/A | N/A | N/A | | |
| CNTYVET | VETERANS RELIEF | N/A | N/A | N/A | N/A | | |
| MENTAL | MENTAL HEALTH | N/A | N/A | N/A | N/A | | |
| ROADS | COUNTY ROADS | N/A | N/A | N/A | N/A | | |
| ROADSCU | COUNTY ROADS TO CUR EXP | N/A | N/A | N/A | N/A | | |
| HOSP2CASH | HOSP DIST #2 GENERAL | N/A | N/A | N/A | N/A | | |
| SCH49CP | SCHOOL DIST #49 CAP PROJ | N/A | N/A | N/A | N/A | | |
| SCH49MO | SCHOOL DIST #49 EP & O | N/A | N/A | N/A | N/A | | |
| CONSERVE | CONSERVATION FUTURES | N/A | N/A | N/A | N/A | | |
| EMS1 | FIRE DIST #1 EMS | N/A | N/A | N/A | N/A | | |
| FD1 | FIRE DIST #1 GENERAL | N/A | N/A | N/A | N/A | | |
| LIB1 | LIBRARY DIST #1 GENERAL | N/A | N/A | N/A | N/A | | |
| PORTPT | PORT OF PT GENERAL | N/A | N/A | N/A | N/A | | |
| PORTPTIDD | PORT OF PT IDD 2019 | N/A | N/A | N/A | N/A | | |
| PUD1 | PUD #1 GENERAL | N/A | N/A | N/A | N/A | | |
| STATE | STATE SCHOOL PART 1 | N/A | N/A | N/A | N/A | | |
| STATE2 | STATE SCHOOL PART 2 | N/A | N/A | N/A | N/A | | |
| | Total Tax Rate: | N/A | | | | | |
| | | | | Taxes w/Current Exemptions: | N/A | | |
| | | | | Taxes w/o Exemptions: | N/A | | |
Improvement / Building
| Improvement #1: | Residential Bldg | State Code: | 11 | 1796.0 sqft | Value: | $277,325 |
| Bathrooms (#): | 1 (FULL) | Bedrooms (#): | 3 | | Exterior Wall: | PL/T1 | Fireplace: | WD ST-GOOD | | Floor Construction: | FRAME | Foundation: | CONPR | | Heating/Cooling: | F/A | Roof Cover: | METAL |
|
| | Type | Description | Class CD | Sub Class CD | Year Built | Area |
| | MA | Main Area | 2+ | 1S | 1975 | 1796.0 |
| | HWPOR | House Wood Porch | 2 | * | 1975 | 292.0 |
| | GBLTIN | Builtin Garage | 3 | 1S | 1975 | 676.0 |
| | OTHER | Other | 3 | * | 1975 | 0.0 |
Sketch
Property Image
Land
| 1 | 4270-1374S | Residential Sites 1+/- Ac Fair/Avg Terr. Views | 1.0000 | 43560.00 | 0.00 | 0.00 | 1.00 | $77,000 | $236 |
| 2 | 1577A | Terr/Mtn/No View <6 Acres | 3.7300 | 162478.80 | 0.00 | 0.00 | 0.00 | $31,799 | $560 |
| 3 | 9810 | Well, Septic, & Power | 0.0000 | 0.00 | 0.00 | 0.00 | 1.00 | $22,000 | $0 |
Roll Value History
| 2025 | N/A | N/A | N/A | N/A | N/A |
| 2024 | $265,267 | $124,853 | $796 | $287,063 | $287,063 |
| 2023 | $253,210 | $117,975 | $796 | $274,006 | $274,006 |
| 2022 | $229,151 | $96,110 | $796 | $249,947 | $249,947 |
| 2021 | $212,177 | $92,663 | $796 | $231,723 | $231,723 |
Deed and Sales History
Payout Agreement
| No payout information available.. |