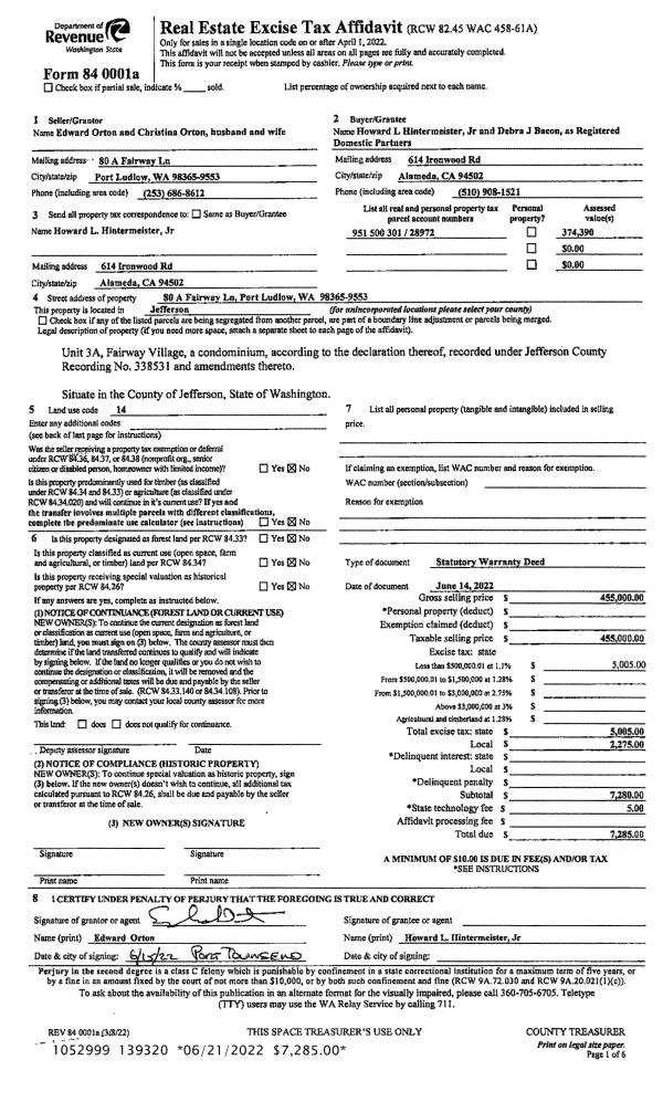
Property
Account |
| Property ID: | 21932 | Abbreviated Legal Description: | S22 T29 R1W W1/2 SE(E OF HWY)W/TAX 35(BND BY CC#10-2-00009-6) |
| Parcel # / Geo ID: | 901224005 | Agent Code: | |
| Type: | Real | | |
| Tax Area: | 0211 - 1-49F1E1H2L1 | Land Use Code | 83 |
| Open Space: | Y | DFL | N |
| Historic Property: | N | Remodel Property: | N |
| Multi-Family Redevelopment: | N | | |
| Township: | 29N | Section: | 22 |
| Range: | 1W |
Location |
| Address: | | Mapsco: | 215/023 |
| Neighborhood: | S21, 22,& 23 T29N R1W; MCNEIL PARK; STEWARTS GRDN; FAWN MDOW | Map ID: | |
| Neighborhood CD: | 4270 |
Owner |
| Name: | NORRIS L SHORT | Owner ID: | 27304 |
| Mailing Address: | BONNIE J SHORT 2081 W VALLEY RD CHIMACUM, WA 98325-9746 | % Ownership: | 100.0000000000% |
| | | Exemptions: | |
Pay Tax Due
There is currently No Amount Due on this property.
Taxes and Assessment Details
Property Tax Information as of
10/24/2025
Click on "Statement Details" to expand or collapse a tax statement.
* Please enter a valid date ** Please enter a valid date *
Statement Details |
| | TOTAL: | $0.00 | $0.00 | $0.00 | $0.00 | $0.00 | $0.00 |
|
| | $0.00 | $0.00 | $0.00 | $0.00 | $0.00 | $0.00 |
Values
| (+) Improvement Homesite Value: | + | $207,153 | |
| (+) Improvement Non-Homesite Value: | + | $0 | |
| (+) Land Homesite Value: | + | $88,000 | |
| (+) Land Non-Homesite Value: | + | $0 | |
| (+) Curr Use (HS): | + | $29,700 | $900 |
| (+) Curr Use (NHS): | + | $175,824 | $5,328 |
| | | -------------------------- | |
| (=) Market Value: | = | $500,677 | |
| (–) Productivity Loss: | – | $199,296 | |
| | | -------------------------- | |
| (=) Subtotal: | = | $301,381 | |
| (+) Senior Appraised Value: | + | $0 | |
| (+) Non-Senior Appraised Value: | + | $301,381 | |
| | | -------------------------- | |
| (=) Total Appraised Value: | = | $301,381 | |
| (–) Senior Exemption Loss: | – | $0 | |
| (–) Exemption Loss: | – | $0 | |
| | | -------------------------- | |
| (=) Taxable Value: | = | $301,381 | |
Taxing Jurisdiction
| Owner: | NORRIS L SHORT | | |
| % Ownership: | 100.0000000000% | | |
| Total Value: | N/A | | |
| Tax Area: | 0211 - 1-49F1E1H2L1 |
| CE | COUNTY CURRENT EXPENSE | N/A | N/A | N/A | N/A | | |
| CNTYDD | DEVELOPMENTAL DISABILITIES | N/A | N/A | N/A | N/A | | |
| CNTYVET | VETERANS RELIEF | N/A | N/A | N/A | N/A | | |
| MENTAL | MENTAL HEALTH | N/A | N/A | N/A | N/A | | |
| ROADS | COUNTY ROADS | N/A | N/A | N/A | N/A | | |
| ROADSCU | COUNTY ROADS TO CUR EXP | N/A | N/A | N/A | N/A | | |
| HOSP2CASH | HOSP DIST #2 GENERAL | N/A | N/A | N/A | N/A | | |
| SCH49CP | SCHOOL DIST #49 CAP PROJ | N/A | N/A | N/A | N/A | | |
| SCH49MO | SCHOOL DIST #49 EP & O | N/A | N/A | N/A | N/A | | |
| CONSERVE | CONSERVATION FUTURES | N/A | N/A | N/A | N/A | | |
| EMS1 | FIRE DIST #1 EMS | N/A | N/A | N/A | N/A | | |
| FD1 | FIRE DIST #1 GENERAL | N/A | N/A | N/A | N/A | | |
| LIB1 | LIBRARY DIST #1 GENERAL | N/A | N/A | N/A | N/A | | |
| PORTPT | PORT OF PT GENERAL | N/A | N/A | N/A | N/A | | |
| PORTPTIDD | PORT OF PT IDD 2019 | N/A | N/A | N/A | N/A | | |
| PUD1 | PUD #1 GENERAL | N/A | N/A | N/A | N/A | | |
| STATE | STATE SCHOOL PART 1 | N/A | N/A | N/A | N/A | | |
| STATE2 | STATE SCHOOL PART 2 | N/A | N/A | N/A | N/A | | |
| | Total Tax Rate: | N/A | | | | | |
| | | | | Taxes w/Current Exemptions: | N/A | | |
| | | | | Taxes w/o Exemptions: | N/A | | |
Improvement / Building
| Improvement #1: | Residential Bldg | State Code: | 11 | 1875.0 sqft | Value: | $207,153 |
| Bathrooms (#): | 2 (FULL) | Bedrooms (#): | 3 | | Exterior Wall: | PL/T1 | Fireplace: | WD ST-GOOD | | Floor Construction: | FRAME | Foundation: | CONPR | | Heating/Cooling: | ELBB | Roof Cover: | COMP |
|
| | Type | Description | Class CD | Sub Class CD | Year Built | Area |
| | MA | Main Area | 2+ | 1S | 1986 | 1875.0 |
| | HCPOR | House Concrete Porch | 2 | * | 1986 | 189.0 |
| | GATT | House Attached Garage | 2 | 1S | 1986 | 441.0 |
| | OTHER | Other | * | * | 1986 | 0.0 |
| | CARPT | Carport (Table Not Dep) | 2 | * | 1986 | 336.0 |
Sketch
Property Image
Land
| 1 | 4290-1375S | Residential Sites 1+/- Ac SomeTerritorial Views | 1.0000 | 43560.00 | 0.00 | 0.00 | 1.00 | $88,000 | $0 |
| 2 | 1874A | Terr/Mtn/No View >25-40 Acres | 4.0000 | 174240.00 | 0.00 | 0.00 | 0.00 | $29,700 | $900 |
| 3 | 1874A | Terr/Mtn/No View >25-40 Acres | 23.6800 | 1031500.80 | 0.00 | 0.00 | 0.00 | $175,824 | $5,328 |
Roll Value History
| 2025 | N/A | N/A | N/A | N/A | N/A |
| 2024 | $198,146 | $280,182 | $6,228 | $288,374 | $288,374 |
| 2023 | $189,140 | $254,920 | $6,228 | $270,368 | $270,368 |
| 2022 | $132,223 | $236,080 | $6,228 | $208,451 | $208,451 |
| 2021 | $122,429 | $229,038 | $6,228 | $193,345 | $193,345 |
Deed and Sales History
| 1 | 10/29/2009 | QCD | Quit Claim Deed | VALLEY VIEW N&L FAMILY TR | SHORT, NORRIS LEE/BONNIE JEANE | 0 | 0 | $0.00 | 113879 | 0 |
| 2 | 09/28/2000 | QCD | Quit Claim Deed | VALLEY VIEW N & L FAMILY | SHORT, NORRIS LEE/BONNIE J | 0 | 0 | $0.00 | 90721 | 0 |
Payout Agreement
| No payout information available.. |