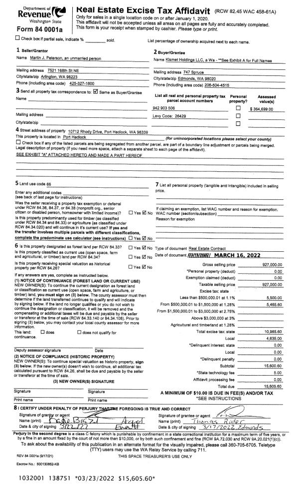
Property
Account |
| Property ID: | 21934 | Abbreviated Legal Description: | S22 T29 R1W TAX 11 LESS TAX 21 SUBJ/BLA |
| Parcel # / Geo ID: | 901224007 | Agent Code: | |
| Type: | Real | | |
| Tax Area: | 0211 - 1-49F1E1H2L1 | Land Use Code | 11 |
| Open Space: | N | DFL | N |
| Historic Property: | N | Remodel Property: | N |
| Multi-Family Redevelopment: | N | | |
| Township: | 29N | Section: | 22 |
| Range: | 1W |
Location |
| Address: | 2310 WEST VALLEY RD CHIMACUM, WA 98325 | Mapsco: | 215/032 |
| Neighborhood: | S21, 22,& 23 T29N R1W; MCNEIL PARK; STEWARTS GRDN; FAWN MDOW | Map ID: | |
| Neighborhood CD: | 4270 |
Owner |
| Name: | JOEL HARTSHORNE | Owner ID: | 107074 |
| Mailing Address: | 2310 W VALLEY RD CHIMACUM, WA 98325-9747 | % Ownership: | 100.0000000000% |
| | | Exemptions: | |
Pay Tax Due
There is currently No Amount Due on this property.
Taxes and Assessment Details
Property Tax Information as of
10/24/2025
Click on "Statement Details" to expand or collapse a tax statement.
* Please enter a valid date ** Please enter a valid date *
Statement Details |
| | TOTAL: | $0.00 | $0.00 | $0.00 | $0.00 | $0.00 | $0.00 |
|
| | $0.00 | $0.00 | $0.00 | $0.00 | $0.00 | $0.00 |
Values
| (+) Improvement Homesite Value: | + | $0 | |
| (+) Improvement Non-Homesite Value: | + | $431,260 | |
| (+) Land Homesite Value: | + | $0 | |
| (+) Land Non-Homesite Value: | + | $234,025 | |
| (+) Curr Use (HS): | + | $0 | $0 |
| (+) Curr Use (NHS): | + | $0 | $0 |
| | | -------------------------- | |
| (=) Market Value: | = | $665,285 | |
| (–) Productivity Loss: | – | $0 | |
| | | -------------------------- | |
| (=) Subtotal: | = | $665,285 | |
| (+) Senior Appraised Value: | + | $0 | |
| (+) Non-Senior Appraised Value: | + | $665,285 | |
| | | -------------------------- | |
| (=) Total Appraised Value: | = | $665,285 | |
| (–) Senior Exemption Loss: | – | $0 | |
| (–) Exemption Loss: | – | $0 | |
| | | -------------------------- | |
| (=) Taxable Value: | = | $665,285 | |
Taxing Jurisdiction
| Owner: | JOEL HARTSHORNE | | |
| % Ownership: | 100.0000000000% | | |
| Total Value: | N/A | | |
| Tax Area: | 0211 - 1-49F1E1H2L1 |
| CE | COUNTY CURRENT EXPENSE | N/A | N/A | N/A | N/A | | |
| CNTYDD | DEVELOPMENTAL DISABILITIES | N/A | N/A | N/A | N/A | | |
| CNTYVET | VETERANS RELIEF | N/A | N/A | N/A | N/A | | |
| MENTAL | MENTAL HEALTH | N/A | N/A | N/A | N/A | | |
| ROADS | COUNTY ROADS | N/A | N/A | N/A | N/A | | |
| ROADSCU | COUNTY ROADS TO CUR EXP | N/A | N/A | N/A | N/A | | |
| HOSP2CASH | HOSP DIST #2 GENERAL | N/A | N/A | N/A | N/A | | |
| SCH49CP | SCHOOL DIST #49 CAP PROJ | N/A | N/A | N/A | N/A | | |
| SCH49MO | SCHOOL DIST #49 EP & O | N/A | N/A | N/A | N/A | | |
| CONSERVE | CONSERVATION FUTURES | N/A | N/A | N/A | N/A | | |
| EMS1 | FIRE DIST #1 EMS | N/A | N/A | N/A | N/A | | |
| FD1 | FIRE DIST #1 GENERAL | N/A | N/A | N/A | N/A | | |
| LIB1 | LIBRARY DIST #1 GENERAL | N/A | N/A | N/A | N/A | | |
| PORTPT | PORT OF PT GENERAL | N/A | N/A | N/A | N/A | | |
| PORTPTIDD | PORT OF PT IDD 2019 | N/A | N/A | N/A | N/A | | |
| PUD1 | PUD #1 GENERAL | N/A | N/A | N/A | N/A | | |
| STATE | STATE SCHOOL PART 1 | N/A | N/A | N/A | N/A | | |
| STATE2 | STATE SCHOOL PART 2 | N/A | N/A | N/A | N/A | | |
| | Total Tax Rate: | N/A | | | | | |
| | | | | Taxes w/Current Exemptions: | N/A | | |
| | | | | Taxes w/o Exemptions: | N/A | | |
Improvement / Building
| Improvement #1: | Residential Bldg | State Code: | 11 | 1818.0 sqft | Value: | $431,260 |
| Bathrooms (#): | 2 (FULL) | Bedrooms (#): | 3 | | Exterior Wall: | PL/T1 | Floor Construction: | FRAME | | Foundation: | CONPR | Heating/Cooling: | HPUMP | | Roof Cover: | COMP |   |   |
|
| | Type | Description | Class CD | Sub Class CD | Year Built | Area |
| | MA | Main Area | 4+ | 1S | 1995 | 1818.0 |
| | HWPOR | House Wood Porch | 4 | * | 1995 | 30.0 |
| | GDET | Detached Garage | 4 | 1S | 1995 | 672.0 |
| | OTHER | Other | 4 | * | 1995 | 0.0 |
| | CONCD | Concrete Drive | 4 | * | 1995 | 400.0 |
| | SHED | Shed (Table Not Dep) | 1 | * | 1995 | 128.0 |
Sketch
Property Image
Land
| 1 | 4270-1373S | Residential Sites 1+/- Ac Good Territorial Views | 1.0000 | 43560.00 | 0.00 | 0.00 | 1.00 | $170,500 | $0 |
| 2 | 1571A | Terr/Mtn/No View <6 Acres | 2.7500 | 119790.00 | 0.00 | 0.00 | 0.00 | $63,525 | $0 |
Roll Value History
| 2025 | N/A | N/A | N/A | N/A | N/A |
| 2024 | $412,510 | $223,388 | $0 | $635,898 | $635,898 |
| 2023 | $393,759 | $205,000 | $0 | $598,759 | $598,759 |
| 2022 | $382,760 | $194,500 | $0 | $577,260 | $577,260 |
| 2021 | $221,500 | $105,000 | $0 | $326,500 | $326,500 |
Deed and Sales History
| 1 | 05/27/2022 | SWD | Statutory Warranty Deed | JEROMY A & KRISTINA A LARSEN | JOEL HARTSHORNE | | | $752,550.00 | 139202 | |
| 2 | 01/04/2016 | SWD | Statutory Warranty Deed | MARC D MANDEL TRUSTEE | JEROMY A & KRISTINA A LARSEN | | | $255,000.00 | 124689 | |
| 3 | 09/02/2010 | WD | Warranty Deed | FANNIE MAE AKA FEDERAL NA | MANDEL, MARC/GRIFALCONI, MIA | 0 | 0 | $226,000.00 | 114853 | 0 |
| 4 | 03/29/2010 | TRED | Trustee Deed | RECONTRUST CO NA | FEDERAL NATIONAL MORTGAGE | | | $0.00 | 114226 | 0 |
| 5 | 03/22/2007 | SWD | Statutory Warranty Deed | RUDOLPH, DARRYL/PATRICIA | MORRIS, MARGARET | 0 | 0 | $330,000.00 | 108882 | 0 |
| 6 | 11/17/1994 | QCD | Quit Claim Deed | KIMBALL, KATE M | RUDOLPH, DARRYL/PATRICIA | 0 | 0 | $0.00 | 75634 | 0 |
| 7 | 11/03/1994 | SWD | Statutory Warranty Deed | KIMBALL, KATE M | RUDOLPH, DARRYL/PATRICIA | 0 | 0 | $56,000.00 | 75633 | 0 |
Payout Agreement
| No payout information available.. |