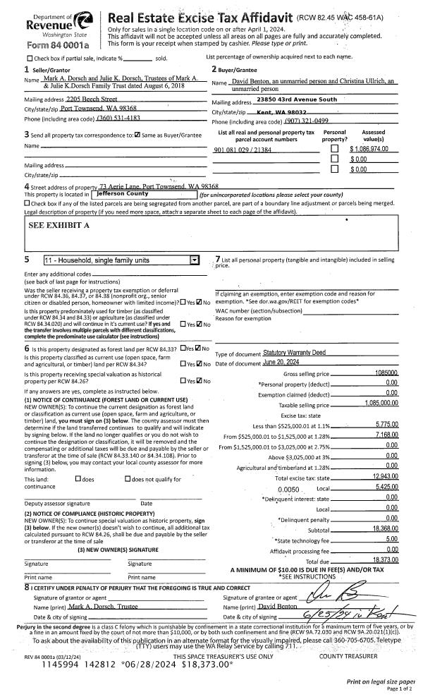
Property
Account |
| Property ID: | 21940 | Abbreviated Legal Description: | S22 T29 R1W TAX 17 |
| Parcel # / Geo ID: | 901224014 | Agent Code: | |
| Type: | Real | | |
| Tax Area: | 0211 - 1-49F1E1H2L1 | Land Use Code | 83 |
| Open Space: | Y | DFL | N |
| Historic Property: | N | Remodel Property: | N |
| Multi-Family Redevelopment: | N | | |
| Township: | 29N | Section: | 22 |
| Range: | 1W |
Location |
| Address: | 1833 WEST VALLEY RD CHIMACUM, WA 98325 | Mapsco: | 215/038 |
| Neighborhood: | S21, 22,& 23 T29N R1W; MCNEIL PARK; STEWARTS GRDN; FAWN MDOW | Map ID: | |
| Neighborhood CD: | 4270 |
Owner |
| Name: | CHARLOTTE & MARTIN FREDERICKSON | Owner ID: | 102531 |
| Mailing Address: | PO BOX 1012 CHIMACUM, WA 98325-1012 | % Ownership: | 100.0000000000% |
| | | Exemptions: | |
Pay Tax Due
There is currently No Amount Due on this property.
Taxes and Assessment Details
Property Tax Information as of
10/24/2025
Click on "Statement Details" to expand or collapse a tax statement.
* Please enter a valid date ** Please enter a valid date *
Statement Details |
| | TOTAL: | $0.00 | $0.00 | $0.00 | $0.00 | $0.00 | $0.00 |
|
| | $0.00 | $0.00 | $0.00 | $0.00 | $0.00 | $0.00 |
Values
| (+) Improvement Homesite Value: | + | $0 | |
| (+) Improvement Non-Homesite Value: | + | $338,443 | |
| (+) Land Homesite Value: | + | $0 | |
| (+) Land Non-Homesite Value: | + | $22,000 | |
| (+) Curr Use (HS): | + | $0 | $0 |
| (+) Curr Use (NHS): | + | $162,360 | $4,601 |
| | | -------------------------- | |
| (=) Market Value: | = | $522,803 | |
| (–) Productivity Loss: | – | $157,759 | |
| | | -------------------------- | |
| (=) Subtotal: | = | $365,044 | |
| (+) Senior Appraised Value: | + | $0 | |
| (+) Non-Senior Appraised Value: | + | $365,044 | |
| | | -------------------------- | |
| (=) Total Appraised Value: | = | $365,044 | |
| (–) Senior Exemption Loss: | – | $0 | |
| (–) Exemption Loss: | – | $0 | |
| | | -------------------------- | |
| (=) Taxable Value: | = | $365,044 | |
Taxing Jurisdiction
| Owner: | CHARLOTTE & MARTIN FREDERICKSON | | |
| % Ownership: | 100.0000000000% | | |
| Total Value: | N/A | | |
| Tax Area: | 0211 - 1-49F1E1H2L1 |
| CE | COUNTY CURRENT EXPENSE | N/A | N/A | N/A | N/A | | |
| CNTYDD | DEVELOPMENTAL DISABILITIES | N/A | N/A | N/A | N/A | | |
| CNTYVET | VETERANS RELIEF | N/A | N/A | N/A | N/A | | |
| MENTAL | MENTAL HEALTH | N/A | N/A | N/A | N/A | | |
| ROADS | COUNTY ROADS | N/A | N/A | N/A | N/A | | |
| ROADSCU | COUNTY ROADS TO CUR EXP | N/A | N/A | N/A | N/A | | |
| HOSP2CASH | HOSP DIST #2 GENERAL | N/A | N/A | N/A | N/A | | |
| SCH49CP | SCHOOL DIST #49 CAP PROJ | N/A | N/A | N/A | N/A | | |
| SCH49MO | SCHOOL DIST #49 EP & O | N/A | N/A | N/A | N/A | | |
| CONSERVE | CONSERVATION FUTURES | N/A | N/A | N/A | N/A | | |
| EMS1 | FIRE DIST #1 EMS | N/A | N/A | N/A | N/A | | |
| FD1 | FIRE DIST #1 GENERAL | N/A | N/A | N/A | N/A | | |
| LIB1 | LIBRARY DIST #1 GENERAL | N/A | N/A | N/A | N/A | | |
| PORTPT | PORT OF PT GENERAL | N/A | N/A | N/A | N/A | | |
| PORTPTIDD | PORT OF PT IDD 2019 | N/A | N/A | N/A | N/A | | |
| PUD1 | PUD #1 GENERAL | N/A | N/A | N/A | N/A | | |
| STATE | STATE SCHOOL PART 1 | N/A | N/A | N/A | N/A | | |
| STATE2 | STATE SCHOOL PART 2 | N/A | N/A | N/A | N/A | | |
| | Total Tax Rate: | N/A | | | | | |
| | | | | Taxes w/Current Exemptions: | N/A | | |
| | | | | Taxes w/o Exemptions: | N/A | | |
Improvement / Building
| Improvement #1: | Residential Bldg | State Code: | 83 | 0.0 sqft | Value: | $29,709 |
| Improvement #2: | Residential Bldg | State Code: | 11 | 1689.0 sqft | Value: | $308,734 |
| Bathrooms (#): | 2 (FULL) | Bedrooms (#): | 2 | | Exterior Wall: | PL/T1 | Foundation: | CONBL | | Heating/Cooling: | ELBB | Roof Cover: | COMP |
|
| | Type | Description | Class CD | Sub Class CD | Year Built | Area |
| | MA | Main Area | 4 | MFH | 2024 | 1689.0 |
| | SHED | Shed (Table Not Dep) | 3 | MFH | 2024 | 224.0 |
| | SHED | Shed (Table Not Dep) | 3 | MFH | 2024 | 160.0 |
Sketch
Property Image
Land
| 1 | 4270-8775A | Terr View Acreage Used Primarily for Pasture | 19.4000 | 845064.00 | 0.00 | 0.00 | 0.00 | $85,360 | $4,365 |
| 2 | 9810 | Well, Septic, & Power | 0.0000 | 0.00 | 0.00 | 0.00 | 1.00 | $22,000 | $0 |
| 3 | 4270-1374S | Residential Sites 1+/- Ac Fair/Avg Terr. Views | 1.0000 | 43560.00 | 0.00 | 0.00 | 1.00 | $77,000 | $236 |
Roll Value History
| 2025 | N/A | N/A | N/A | N/A | N/A |
| 2024 | $323,727 | $175,980 | $4,601 | $349,328 | $349,328 |
| 2023 | $31,299 | $147,600 | $4,601 | $35,900 | $35,900 |
| 2022 | $7,290 | $147,600 | $4,601 | $11,891 | $11,891 |
| 2021 | $6,750 | $126,250 | $4,601 | $11,351 | $11,351 |
Deed and Sales History
| 1 | 04/01/2020 | SWD | Statutory Warranty Deed | LORING R BEMIS | CHARLOTTE & MARTIN FREDERICKSON | | | $160,000.00 | 134225 | |
| 2 | 08/01/1995 | SWD | Statutory Warranty Deed | BEMIS, KELLY J/NANCY L | BEMIS, LORING R/MARTHA H | 0 | 0 | $71,500.00 | 77554 | 0 |
Payout Agreement
| No payout information available.. |