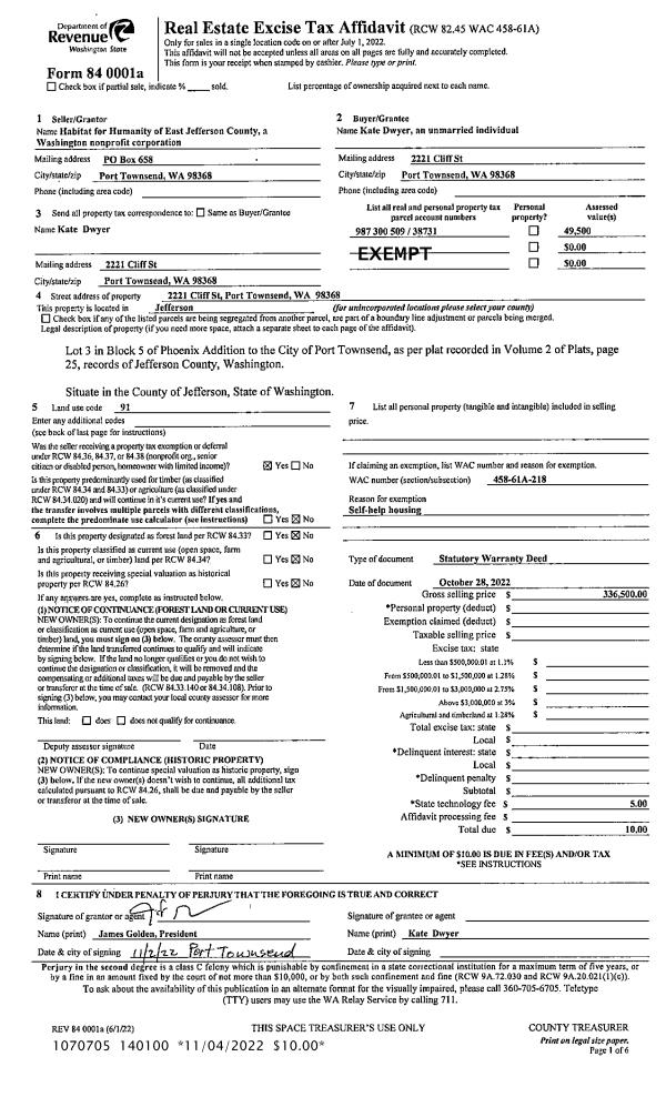
Property
Account |
| Property ID: | 21948 | Abbreviated Legal Description: | FAWN MEADOW LOT 6 W-S/EASE |
| Parcel # / Geo ID: | 901225006 | Agent Code: | |
| Type: | Real | | |
| Tax Area: | 0211 - 1-49F1E1H2L1 | Land Use Code | 11 |
| Open Space: | N | DFL | N |
| Historic Property: | N | Remodel Property: | N |
| Multi-Family Redevelopment: | N | | |
| Township: | 29N | Section: | 22 |
| Range: | 1W |
Location |
| Address: | 352 FAWN MEADOW RD CHIMACUM, WA 98325 | Mapsco: | 250/065 |
| Neighborhood: | S21, 22,& 23 T29N R1W; MCNEIL PARK; STEWARTS GRDN; FAWN MDOW | Map ID: | |
| Neighborhood CD: | 4270 |
Owner |
| Name: | CHRISTOPHER PAPPAS & KATHERINE CURTIS | Owner ID: | 105109 |
| Mailing Address: | 352 FAWN MEADOW RD CHIMACUM, WA 98325 | % Ownership: | 100.0000000000% |
| | | Exemptions: | |
Pay Tax Due
There is currently No Amount Due on this property.
Taxes and Assessment Details
Property Tax Information as of
10/24/2025
Click on "Statement Details" to expand or collapse a tax statement.
* Please enter a valid date ** Please enter a valid date *
Statement Details |
| | TOTAL: | $0.00 | $0.00 | $0.00 | $0.00 | $0.00 | $0.00 |
|
| | $0.00 | $0.00 | $0.00 | $0.00 | $0.00 | $0.00 |
Values
| (+) Improvement Homesite Value: | + | $0 | |
| (+) Improvement Non-Homesite Value: | + | $413,402 | |
| (+) Land Homesite Value: | + | $0 | |
| (+) Land Non-Homesite Value: | + | $144,100 | |
| (+) Curr Use (HS): | + | $0 | $0 |
| (+) Curr Use (NHS): | + | $0 | $0 |
| | | -------------------------- | |
| (=) Market Value: | = | $557,502 | |
| (–) Productivity Loss: | – | $0 | |
| | | -------------------------- | |
| (=) Subtotal: | = | $557,502 | |
| (+) Senior Appraised Value: | + | $0 | |
| (+) Non-Senior Appraised Value: | + | $557,502 | |
| | | -------------------------- | |
| (=) Total Appraised Value: | = | $557,502 | |
| (–) Senior Exemption Loss: | – | $0 | |
| (–) Exemption Loss: | – | $0 | |
| | | -------------------------- | |
| (=) Taxable Value: | = | $557,502 | |
Taxing Jurisdiction
| Owner: | CHRISTOPHER PAPPAS & KATHERINE CURTIS | | |
| % Ownership: | 100.0000000000% | | |
| Total Value: | N/A | | |
| Tax Area: | 0211 - 1-49F1E1H2L1 |
| CE | COUNTY CURRENT EXPENSE | N/A | N/A | N/A | N/A | | |
| CNTYDD | DEVELOPMENTAL DISABILITIES | N/A | N/A | N/A | N/A | | |
| CNTYVET | VETERANS RELIEF | N/A | N/A | N/A | N/A | | |
| MENTAL | MENTAL HEALTH | N/A | N/A | N/A | N/A | | |
| ROADS | COUNTY ROADS | N/A | N/A | N/A | N/A | | |
| ROADSCU | COUNTY ROADS TO CUR EXP | N/A | N/A | N/A | N/A | | |
| HOSP2CASH | HOSP DIST #2 GENERAL | N/A | N/A | N/A | N/A | | |
| SCH49CP | SCHOOL DIST #49 CAP PROJ | N/A | N/A | N/A | N/A | | |
| SCH49MO | SCHOOL DIST #49 EP & O | N/A | N/A | N/A | N/A | | |
| CONSERVE | CONSERVATION FUTURES | N/A | N/A | N/A | N/A | | |
| EMS1 | FIRE DIST #1 EMS | N/A | N/A | N/A | N/A | | |
| FD1 | FIRE DIST #1 GENERAL | N/A | N/A | N/A | N/A | | |
| LIB1 | LIBRARY DIST #1 GENERAL | N/A | N/A | N/A | N/A | | |
| PORTPT | PORT OF PT GENERAL | N/A | N/A | N/A | N/A | | |
| PORTPTIDD | PORT OF PT IDD 2019 | N/A | N/A | N/A | N/A | | |
| PUD1 | PUD #1 GENERAL | N/A | N/A | N/A | N/A | | |
| STATE | STATE SCHOOL PART 1 | N/A | N/A | N/A | N/A | | |
| STATE2 | STATE SCHOOL PART 2 | N/A | N/A | N/A | N/A | | |
| | Total Tax Rate: | N/A | | | | | |
| | | | | Taxes w/Current Exemptions: | N/A | | |
| | | | | Taxes w/o Exemptions: | N/A | | |
Improvement / Building
| Improvement #1: | Residential Bldg | State Code: | 11 | 1064.0 sqft | Value: | $413,402 |
| Exterior Wall: | LOG | Fireplace: | WD ST-GOOD | | Floor Construction: | FRAME | Foundation: | CONPR | | Heating/Cooling: | ELBB | Roof Cover: | METAL |
|
| | Type | Description | Class CD | Sub Class CD | Year Built | Area |
| | MA | Main Area | 5 | 1S | 1993 | 1064.0 |
| | HWPOR | House Wood Porch | 5 | * | 1993 | 322.0 |
| | HLOFT | House Loft | 5 | * | 1993 | 500.0 |
| | SHED | Shed (Table Not Dep) | 4 | * | 1993 | 120.0 |
| | SHED | Shed (Table Not Dep) | 3 | * | 1993 | 453.2 |
Sketch
Property Image
Land
| 1 | 4270-1374S | Residential Sites 1+/- Ac Fair/Avg Terr. Views | 1.0000 | 43560.00 | 0.00 | 0.00 | 1.00 | $110,000 | $0 |
| 2 | 1577A | Terr/Mtn/No View <6 Acres | 4.0000 | 174240.00 | 0.00 | 0.00 | 0.00 | $34,100 | $0 |
Roll Value History
| 2025 | N/A | N/A | N/A | N/A | N/A |
| 2024 | $395,428 | $137,550 | $0 | $532,978 | $532,978 |
| 2023 | $377,454 | $125,000 | $0 | $502,454 | $502,454 |
| 2022 | $334,361 | $118,000 | $0 | $452,361 | $452,361 |
| 2021 | $309,593 | $114,375 | $0 | $423,968 | $423,968 |
Deed and Sales History
| 1 | 06/22/2021 | SWD | Statutory Warranty Deed | STEPHANIE DUTTON | CHRISTOPHER PAPPAS & KATHERINE CURTIS | | | $465,000.00 | 137044 | |
| 2 | 08/23/2020 | SWD | Statutory Warranty Deed | COLE N SODJA & ELIZABETH J HART | STEPHANIE DUTTON | | | $426,000.00 | 134937 | |
| 3 | 04/25/2013 | SWD | Statutory Warranty Deed | FRANK C OHLY JR | COLE N SODJA & ELIZABETH J HART | | | $287,500.00 | 119168 | |
| 4 | 11/21/2006 | QCD | Quit Claim Deed | OHLY JR, FRANK C | OHLY JR, FRANK/VICKI | 0 | 0 | $0.00 | 108137 | 0 |
| 5 | 01/11/1993 | SWD | Statutory Warranty Deed | FOLEY, MYLES R/KIRSCH, JA | OHLY, FRANK | 0 | 0 | $30,400.00 | 70183 | 0 |
Payout Agreement
| No payout information available.. |