| 1 | 12/14/2023 | BSD | Bargain and Sale Deed | CHIMACUM RIDGE LLC | CHIMACUM RIDGE COMMUNITY FOREST LLC | | | $4,950,000.00 | 142029 | |
|   | |
| 2 | 07/29/2019 | GRTD | Grant Deed | CHIMACUM RIDGE LLC | JEFFERSON LAND TRUST | | | $3,300,000.00 | 132826 | |
|   | |
| 3 | 07/27/2016 | BSD | Bargain and Sale Deed | ECOTRUST FORESTS II LLC | CHIMACUM RIDGE LLC | | | | 125921 | |
| 4 | 07/18/2016 | CONS EASE | CONSERVATION EASEMENT | THE TRUST FOR PUBLIC LAND | UNITED STATES OF AMERICA | | | | 125902 | |
| 5 | 07/15/2016 | CONS EASE | CONSERVATION EASEMENT | ECOTRUST FORESTS II LLC | THE TRUST FOR PUBLIC LAND | | | $1,270,000.00 | 125901 | |
|   | |
| 6 | 09/25/2015 | BSD | Bargain and Sale Deed | | | | | | 0 | |
| 7 | 09/09/2015 | SWD | Statutory Warranty Deed | EPC HOLDINGS 849 LLC | ECOTRUST FORESTS II LLC | | | | 123948 | |
| 8 | 03/16/2015 | SWD | Statutory Warranty Deed | THE TRUST FOR PUBLIC LAND | EPC HOLDINGS 849 LLC | | | | 122837 | |
| 9 | 03/13/2015 | BSD | Bargain and Sale Deed | TIMBERLANDS HOLDING COMPANY WASHINGTON INC | THE TRUST FOR PUBLIC LAND | | | $5,200,000.00 | 122836 | |
|   | |
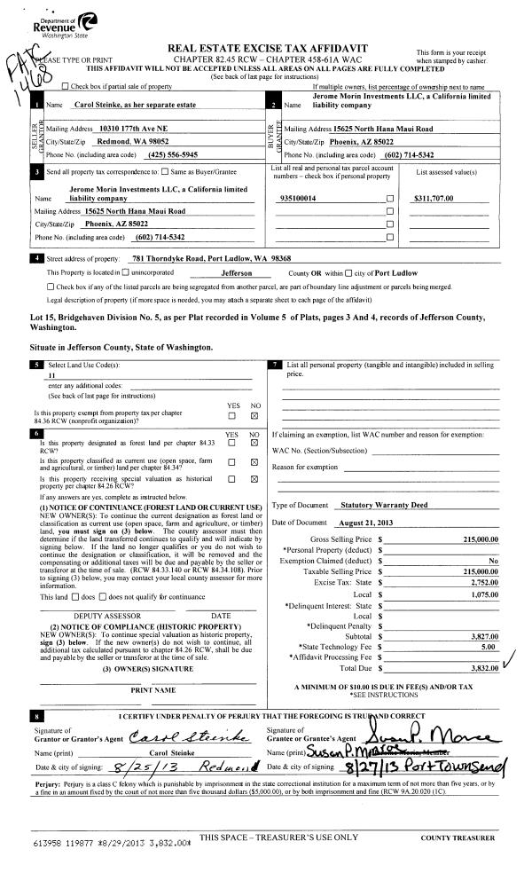
| 10 | 08/02/2013 | SWD | Statutory Warranty Deed | | | | | | 120093 | |
| 11 | 08/04/2013 | BSD | Bargain and Sale Deed | RAYONIER FOREST RESOURCES LP | TIMBERLANDS HOLDING COMPANY WASHINGTON INC | | | | 119758 | |
| 12 | 06/23/2006 | QCD | Quit Claim Deed | EPC HOLDINGS RAYONIER ANE | RAYONIER FOREST RESOURCES, L.P | | | $0.00 | 107120 | 0 |
| 13 | 09/29/2005 | SPWD | Special Warranty Deed | A N E FORESTS PUGET SOUN | RAYONIER FOREST RESOURCES L P | 0 | 0 | $0.00 | 104998 | 0 |
| 14 | 09/29/2005 | SPWD | Special Warranty Deed | A N E FORESTS PUGET SOUN | EPC HOLDINGS RAYONIER ANE FORE | 0 | 0 | $0.00 | 105002 | 0 |