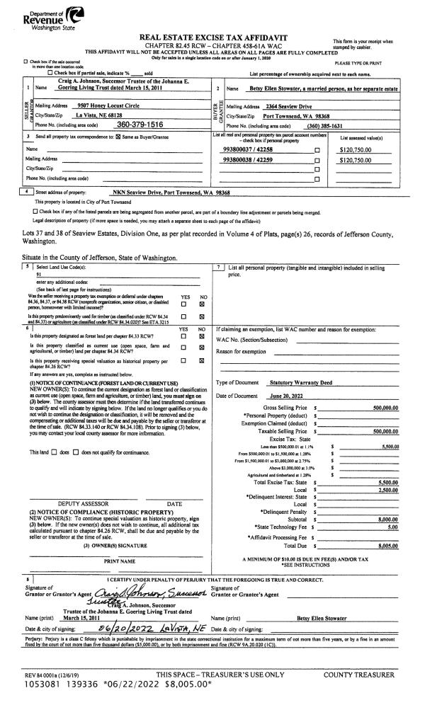
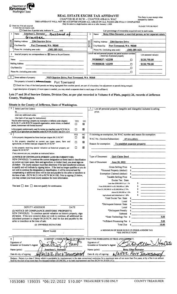
Property
Account |
| Property ID: | 21966 | Abbreviated Legal Description: | S23 T29 R1W S1/2 NW(E OF CO RD & S OF TX 6) |
| Parcel # / Geo ID: | 901232003 | Agent Code: | |
| Type: | Real | | |
| Tax Area: | 0211 - 1-49F1E1H2L1 | Land Use Code | 11 |
| Open Space: | N | DFL | N |
| Historic Property: | N | Remodel Property: | N |
| Multi-Family Redevelopment: | N | | |
| Township: | 29N | Section: | 23 |
| Range: | 1W |
Location |
| Address: | 1217 CENTER RD CHIMACUM, WA 98325 | Mapsco: | 216/007 |
| Neighborhood: | S21, 22,& 23 T29N R1W; MCNEIL PARK; STEWARTS GRDN; FAWN MDOW | Map ID: | |
| Neighborhood CD: | 4270 |
Owner |
| Name: | ANDREW W PERNSTEINER | Owner ID: | 24613 |
| Mailing Address: | MELISSA E PERNSTEINER PO BOX 87 PORT HADLOCK, WA 98339-0087 | % Ownership: | 100.0000000000% |
| | | Exemptions: | |
Pay Tax Due
There is currently No Amount Due on this property.
Taxes and Assessment Details
Property Tax Information as of
10/24/2025
Click on "Statement Details" to expand or collapse a tax statement.
* Please enter a valid date ** Please enter a valid date *
Statement Details |
| | TOTAL: | $0.00 | $0.00 | $0.00 | $0.00 | $0.00 | $0.00 |
|
| | $0.00 | $0.00 | $0.00 | $0.00 | $0.00 | $0.00 |
Values
| (+) Improvement Homesite Value: | + | $0 | |
| (+) Improvement Non-Homesite Value: | + | $355,347 | |
| (+) Land Homesite Value: | + | $0 | |
| (+) Land Non-Homesite Value: | + | $178,123 | |
| (+) Curr Use (HS): | + | $0 | $0 |
| (+) Curr Use (NHS): | + | $0 | $0 |
| | | -------------------------- | |
| (=) Market Value: | = | $533,470 | |
| (–) Productivity Loss: | – | $0 | |
| | | -------------------------- | |
| (=) Subtotal: | = | $533,470 | |
| (+) Senior Appraised Value: | + | $0 | |
| (+) Non-Senior Appraised Value: | + | $533,470 | |
| | | -------------------------- | |
| (=) Total Appraised Value: | = | $533,470 | |
| (–) Senior Exemption Loss: | – | $0 | |
| (–) Exemption Loss: | – | $0 | |
| | | -------------------------- | |
| (=) Taxable Value: | = | $533,470 | |
Taxing Jurisdiction
| Owner: | ANDREW W PERNSTEINER | | |
| % Ownership: | 100.0000000000% | | |
| Total Value: | N/A | | |
| Tax Area: | 0211 - 1-49F1E1H2L1 |
| CE | COUNTY CURRENT EXPENSE | N/A | N/A | N/A | N/A | | |
| CNTYDD | DEVELOPMENTAL DISABILITIES | N/A | N/A | N/A | N/A | | |
| CNTYVET | VETERANS RELIEF | N/A | N/A | N/A | N/A | | |
| MENTAL | MENTAL HEALTH | N/A | N/A | N/A | N/A | | |
| ROADS | COUNTY ROADS | N/A | N/A | N/A | N/A | | |
| ROADSCU | COUNTY ROADS TO CUR EXP | N/A | N/A | N/A | N/A | | |
| HOSP2CASH | HOSP DIST #2 GENERAL | N/A | N/A | N/A | N/A | | |
| SCH49CP | SCHOOL DIST #49 CAP PROJ | N/A | N/A | N/A | N/A | | |
| SCH49MO | SCHOOL DIST #49 EP & O | N/A | N/A | N/A | N/A | | |
| CONSERVE | CONSERVATION FUTURES | N/A | N/A | N/A | N/A | | |
| EMS1 | FIRE DIST #1 EMS | N/A | N/A | N/A | N/A | | |
| FD1 | FIRE DIST #1 GENERAL | N/A | N/A | N/A | N/A | | |
| LIB1 | LIBRARY DIST #1 GENERAL | N/A | N/A | N/A | N/A | | |
| PORTPT | PORT OF PT GENERAL | N/A | N/A | N/A | N/A | | |
| PORTPTIDD | PORT OF PT IDD 2019 | N/A | N/A | N/A | N/A | | |
| PUD1 | PUD #1 GENERAL | N/A | N/A | N/A | N/A | | |
| STATE | STATE SCHOOL PART 1 | N/A | N/A | N/A | N/A | | |
| STATE2 | STATE SCHOOL PART 2 | N/A | N/A | N/A | N/A | | |
| | Total Tax Rate: | N/A | | | | | |
| | | | | Taxes w/Current Exemptions: | N/A | | |
| | | | | Taxes w/o Exemptions: | N/A | | |
Improvement / Building
| Improvement #1: | Residential Bldg | State Code: | 11 | 1769.0 sqft | Value: | $355,347 |
| Bathrooms (#): | 2 (FULL) | Bedrooms (#): | 3 | | Exterior Wall: | SI/ST | Floor Construction: | FRAME | | Foundation: | CONPR | Heating/Cooling: | HPUMP | | Inside Verify: | NO | Roof Cover: | COMP |
|
| | Type | Description | Class CD | Sub Class CD | Year Built | Area |
| | MA | Main Area | 3+ | 1S | 1994 | 1769.0 |
| | HWPOR | House Wood Porch | 3 | * | 1994 | 190.0 |
| | HDECK | House Deck | 3 | * | 1994 | 64.0 |
| | GDET | Detached Garage | 4 | * | 1994 | 720.0 |
Sketch
Property Image
Land
| 1 | 4270-1373S | Residential Sites 1+/- Ac Good Territorial Views | 1.0000 | 43560.00 | 0.00 | 0.00 | 1.00 | $143,000 | $0 |
| 2 | 1577A | Terr/Mtn/No View <6 Acres | 4.1200 | 179467.20 | 0.00 | 0.00 | 0.00 | $35,123 | $0 |
Roll Value History
| 2025 | N/A | N/A | N/A | N/A | N/A |
| 2024 | $339,897 | $170,027 | $0 | $509,924 | $509,924 |
| 2023 | $324,447 | $155,900 | $0 | $480,347 | $480,347 |
| 2022 | $351,680 | $118,840 | $0 | $470,520 | $470,520 |
| 2021 | $293,067 | $115,275 | $0 | $408,342 | $408,342 |
Deed and Sales History
| 1 | 10/21/2011 | SWD | Statutory Warranty Deed | OTTESON, MARCIA A | PERNSTEINER, ANDREW W/MELISSA | 0 | 0 | $290,000.00 | 116717 | 0 |
| 2 | 05/24/2004 | SWD | Statutory Warranty Deed | THOMPSON, EDWARD & ANITA | OTTESON, MARCIA | 0 | 0 | $280,000.00 | 100403 | 0 |
| 3 | 01/26/1999 | QCD | Quit Claim Deed | THOMPSON, EDWARD L/ANITA | THOMPSON, EDWARD L & ANITA/TR | 0 | 0 | $0.00 | 86190 | 0 |
Payout Agreement
| No payout information available.. |