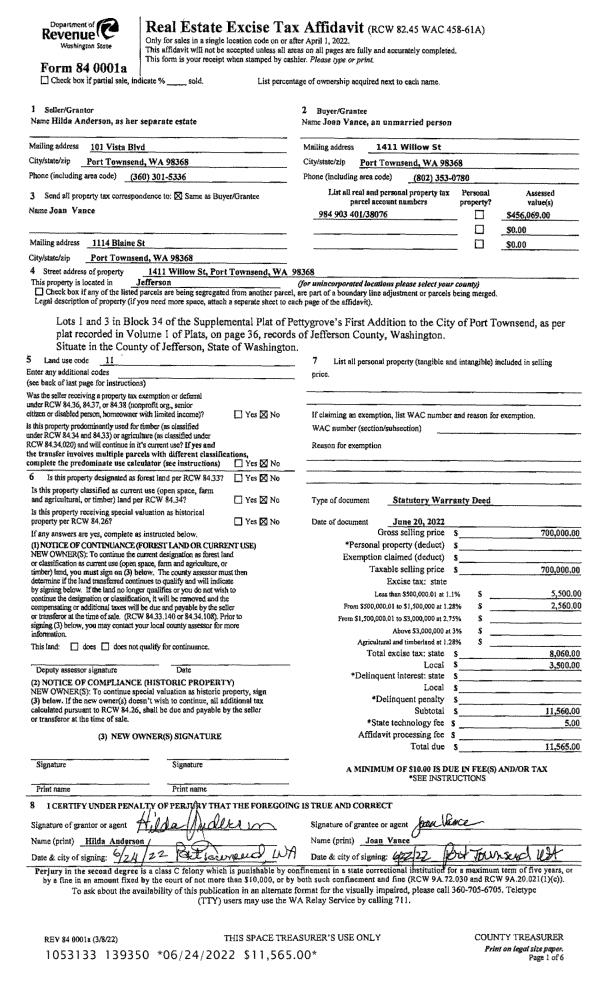
Property
Account |
| Property ID: | 21974 | Abbreviated Legal Description: | S23 T29 R1W TAX 34 BND BY BLA#140602 |
| Parcel # / Geo ID: | 901232012 | Agent Code: | |
| Type: | Real | | |
| Tax Area: | 0211 - 1-49F1E1H2L1 | Land Use Code | 11 |
| Open Space: | N | DFL | N |
| Historic Property: | N | Remodel Property: | N |
| Multi-Family Redevelopment: | N | | |
| Township: | 29N | Section: | 23 |
| Range: | 1W |
Location |
| Address: | 957 CENTER RD CHIMACUM, WA 98325 | Mapsco: | 216/044 |
| Neighborhood: | S21, 22,& 23 T29N R1W; MCNEIL PARK; STEWARTS GRDN; FAWN MDOW | Map ID: | |
| Neighborhood CD: | 4270 |
Owner |
| Name: | JUNE A NIQUETTE TRTEE | Owner ID: | 107859 |
| Mailing Address: | JUNE A NIQUETTE LIVING TR 9/28/2022 C/O DENISE ELDRIDGE PO BOX 324 CHIMAUCM, WA 98325 | % Ownership: | 100.0000000000% |
| | | Exemptions: | |
Pay Tax Due
There is currently No Amount Due on this property.
Taxes and Assessment Details
Property Tax Information as of
10/24/2025
Click on "Statement Details" to expand or collapse a tax statement.
* Please enter a valid date ** Please enter a valid date *
Statement Details |
| | TOTAL: | $0.00 | $0.00 | $0.00 | $0.00 | $0.00 | $0.00 |
|
| | $0.00 | $0.00 | $0.00 | $0.00 | $0.00 | $0.00 |
Values
| (+) Improvement Homesite Value: | + | $0 | |
| (+) Improvement Non-Homesite Value: | + | $397,150 | |
| (+) Land Homesite Value: | + | $0 | |
| (+) Land Non-Homesite Value: | + | $99,168 | |
| (+) Curr Use (HS): | + | $0 | $0 |
| (+) Curr Use (NHS): | + | $0 | $0 |
| | | -------------------------- | |
| (=) Market Value: | = | $496,318 | |
| (–) Productivity Loss: | – | $0 | |
| | | -------------------------- | |
| (=) Subtotal: | = | $496,318 | |
| (+) Senior Appraised Value: | + | $0 | |
| (+) Non-Senior Appraised Value: | + | $496,318 | |
| | | -------------------------- | |
| (=) Total Appraised Value: | = | $496,318 | |
| (–) Senior Exemption Loss: | – | $0 | |
| (–) Exemption Loss: | – | $0 | |
| | | -------------------------- | |
| (=) Taxable Value: | = | $496,318 | |
Taxing Jurisdiction
| Owner: | JUNE A NIQUETTE TRTEE | | |
| % Ownership: | 100.0000000000% | | |
| Total Value: | N/A | | |
| Tax Area: | 0211 - 1-49F1E1H2L1 |
| CE | COUNTY CURRENT EXPENSE | N/A | N/A | N/A | N/A | | |
| CNTYDD | DEVELOPMENTAL DISABILITIES | N/A | N/A | N/A | N/A | | |
| CNTYVET | VETERANS RELIEF | N/A | N/A | N/A | N/A | | |
| MENTAL | MENTAL HEALTH | N/A | N/A | N/A | N/A | | |
| ROADS | COUNTY ROADS | N/A | N/A | N/A | N/A | | |
| ROADSCU | COUNTY ROADS TO CUR EXP | N/A | N/A | N/A | N/A | | |
| HOSP2CASH | HOSP DIST #2 GENERAL | N/A | N/A | N/A | N/A | | |
| SCH49CP | SCHOOL DIST #49 CAP PROJ | N/A | N/A | N/A | N/A | | |
| SCH49MO | SCHOOL DIST #49 EP & O | N/A | N/A | N/A | N/A | | |
| CONSERVE | CONSERVATION FUTURES | N/A | N/A | N/A | N/A | | |
| EMS1 | FIRE DIST #1 EMS | N/A | N/A | N/A | N/A | | |
| FD1 | FIRE DIST #1 GENERAL | N/A | N/A | N/A | N/A | | |
| LIB1 | LIBRARY DIST #1 GENERAL | N/A | N/A | N/A | N/A | | |
| PORTPT | PORT OF PT GENERAL | N/A | N/A | N/A | N/A | | |
| PORTPTIDD | PORT OF PT IDD 2019 | N/A | N/A | N/A | N/A | | |
| PUD1 | PUD #1 GENERAL | N/A | N/A | N/A | N/A | | |
| STATE | STATE SCHOOL PART 1 | N/A | N/A | N/A | N/A | | |
| STATE2 | STATE SCHOOL PART 2 | N/A | N/A | N/A | N/A | | |
| | Total Tax Rate: | N/A | | | | | |
| | | | | Taxes w/Current Exemptions: | N/A | | |
| | | | | Taxes w/o Exemptions: | N/A | | |
Improvement / Building
| Improvement #1: | Residential Bldg | State Code: | 11 | 1980.0 sqft | Value: | $397,150 |
| Bathrooms (#): | 2 (FULL) | Bedrooms (#): | 3 | | Exterior Wall: | SI/ST | Foundation: | CONPR | | Heating/Cooling: | HPUMP | Roof Cover: | COMP |
|
| | Type | Description | Class CD | Sub Class CD | Year Built | Area |
| | MA | Main Area | 3+ | 1S | 2020 | 1980.0 |
| | HCPOR | House Concrete Porch | 3 | 1S | 2020 | 28.0 |
| | PATIO | House Patio | 3 | 1S | 2020 | 440.0 |
| | GATT | House Attached Garage | 3 | 1S | 2020 | 528.0 |
Sketch
Property Image
Land
| 1 | 4270-1375S | Residential Sites 1+/- Ac SomeTerritorial Views | 1.0000 | 43560.00 | 0.00 | 0.00 | 1.00 | $88,000 | $0 |
| 2 | 1577A | Terr/Mtn/No View <6 Acres | 1.3100 | 57063.60 | 0.00 | 0.00 | 0.00 | $11,168 | $0 |
Roll Value History
| 2025 | N/A | N/A | N/A | N/A | N/A |
| 2024 | $379,883 | $94,661 | $0 | $474,544 | $474,544 |
| 2023 | $362,615 | $84,825 | $0 | $447,440 | $447,440 |
| 2022 | $307,441 | $51,510 | $0 | $358,951 | $358,951 |
| 2021 | $284,668 | $48,694 | $0 | $333,362 | $333,362 |
Deed and Sales History
| 1 | 02/21/2023 | BLA | Boundary Line Adjustment | JUNE A NIQUETTE TRTEE | JUNE A NIQUETTE TRTEE | | | | 140602 | |
| 2 | 09/28/2022 | QCD | Quit Claim Deed | JAMES W NIQUETTE | JUNE A NIQUETTE TRTEE | | | | 139872 | |
| 3 | 10/26/1999 | SWD | Statutory Warranty Deed | HALL, LAURIE | NIQUETTE, JAMES/JUNE | 0 | 0 | $30,500.00 | 88211 | 0 |
| 4 | 10/19/1999 | QCD | Quit Claim Deed | HALL, GARY | HALL, LAURIE | 0 | 0 | $0.00 | 88210 | 0 |
| 5 | 04/06/1999 | QCD | Quit Claim Deed | HALL, GARY L | HALL, LAURIE L | 0 | 0 | $0.00 | 86803 | 0 |
Payout Agreement
| No payout information available.. |