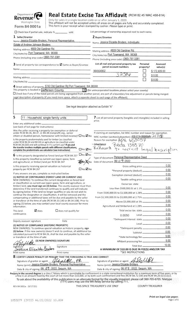
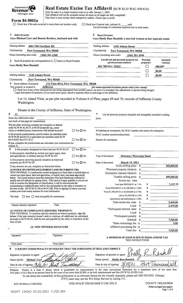
Property
Account |
| Property ID: | 21987 | Abbreviated Legal Description: | S23 T29 R1W TAX 28 |
| Parcel # / Geo ID: | 901233006 | Agent Code: | |
| Type: | Real | | |
| Tax Area: | 0211 - 1-49F1E1H2L1 | Land Use Code | 83 |
| Open Space: | Y | DFL | N |
| Historic Property: | N | Remodel Property: | N |
| Multi-Family Redevelopment: | N | | |
| Township: | 29N | Section: | 23 |
| Range: | 1W |
Location |
| Address: | | Mapsco: | 216/036 |
| Neighborhood: | S21, 22,& 23 T29N R1W; MCNEIL PARK; STEWARTS GRDN; FAWN MDOW | Map ID: | |
| Neighborhood CD: | 4270 |
Owner |
| Name: | BENJAMIN M & CRYSTAL TAGGART | Owner ID: | 105024 |
| Mailing Address: | 1390 CENTER RD CHIMCACUM, WA 98325-9771 | % Ownership: | 100.0000000000% |
| | | Exemptions: | |
Pay Tax Due
There is currently No Amount Due on this property.
Taxes and Assessment Details
Property Tax Information as of
10/24/2025
Click on "Statement Details" to expand or collapse a tax statement.
* Please enter a valid date ** Please enter a valid date *
Statement Details |
| | TOTAL: | $0.00 | $0.00 | $0.00 | $0.00 | $0.00 | $0.00 |
|
| | $0.00 | $0.00 | $0.00 | $0.00 | $0.00 | $0.00 |
Values
| (+) Improvement Homesite Value: | + | $0 | |
| (+) Improvement Non-Homesite Value: | + | $8,490 | |
| (+) Land Homesite Value: | + | $0 | |
| (+) Land Non-Homesite Value: | + | $0 | |
| (+) Curr Use (HS): | + | $0 | $0 |
| (+) Curr Use (NHS): | + | $105,149 | $2,518 |
| | | -------------------------- | |
| (=) Market Value: | = | $113,639 | |
| (–) Productivity Loss: | – | $102,631 | |
| | | -------------------------- | |
| (=) Subtotal: | = | $11,008 | |
| (+) Senior Appraised Value: | + | $0 | |
| (+) Non-Senior Appraised Value: | + | $11,008 | |
| | | -------------------------- | |
| (=) Total Appraised Value: | = | $11,008 | |
| (–) Senior Exemption Loss: | – | $0 | |
| (–) Exemption Loss: | – | $0 | |
| | | -------------------------- | |
| (=) Taxable Value: | = | $11,008 | |
Taxing Jurisdiction
| Owner: | BENJAMIN M & CRYSTAL TAGGART | | |
| % Ownership: | 100.0000000000% | | |
| Total Value: | N/A | | |
| Tax Area: | 0211 - 1-49F1E1H2L1 |
| CE | COUNTY CURRENT EXPENSE | N/A | N/A | N/A | N/A | | |
| CNTYDD | DEVELOPMENTAL DISABILITIES | N/A | N/A | N/A | N/A | | |
| CNTYVET | VETERANS RELIEF | N/A | N/A | N/A | N/A | | |
| MENTAL | MENTAL HEALTH | N/A | N/A | N/A | N/A | | |
| ROADS | COUNTY ROADS | N/A | N/A | N/A | N/A | | |
| ROADSCU | COUNTY ROADS TO CUR EXP | N/A | N/A | N/A | N/A | | |
| HOSP2CASH | HOSP DIST #2 GENERAL | N/A | N/A | N/A | N/A | | |
| SCH49CP | SCHOOL DIST #49 CAP PROJ | N/A | N/A | N/A | N/A | | |
| SCH49MO | SCHOOL DIST #49 EP & O | N/A | N/A | N/A | N/A | | |
| CONSERVE | CONSERVATION FUTURES | N/A | N/A | N/A | N/A | | |
| EMS1 | FIRE DIST #1 EMS | N/A | N/A | N/A | N/A | | |
| FD1 | FIRE DIST #1 GENERAL | N/A | N/A | N/A | N/A | | |
| LIB1 | LIBRARY DIST #1 GENERAL | N/A | N/A | N/A | N/A | | |
| PORTPT | PORT OF PT GENERAL | N/A | N/A | N/A | N/A | | |
| PORTPTIDD | PORT OF PT IDD 2019 | N/A | N/A | N/A | N/A | | |
| PUD1 | PUD #1 GENERAL | N/A | N/A | N/A | N/A | | |
| STATE | STATE SCHOOL PART 1 | N/A | N/A | N/A | N/A | | |
| STATE2 | STATE SCHOOL PART 2 | N/A | N/A | N/A | N/A | | |
| | Total Tax Rate: | N/A | | | | | |
| | | | | Taxes w/Current Exemptions: | N/A | | |
| | | | | Taxes w/o Exemptions: | N/A | | |
Improvement / Building
| Improvement #1: | Site Improvements | State Code: | 83 | 0.0 sqft | Value: | $8,490 |
| | Type | Description | Class CD | Sub Class CD | Year Built | Area |
| | BARN | Barn (Table Not Dep) | 1 | * | 1945 | 620.0 |
| | CARPT | Carport (Table Not Dep) | 1 | * | 1960 | 6480.0 |
| | CARPT | Carport (Table Not Dep) | 2 | * | 2016 | 400.0 |
Sketch
Property Image
Land
| 1 | 1574A | Terr/Mtn/No View <6 Acres | 0.6900 | 30056.40 | 0.00 | 0.00 | 0.00 | $8,349 | $155 |
| 2 | 4270-1375S | Residential Sites 1+/- Ac SomeTerritorial Views | 1.0000 | 43560.00 | 0.00 | 0.00 | 1.00 | $55,000 | $225 |
| 3 | 4270-8775A | Terr View Acreage Used Primarily for Pasture | 9.5000 | 413820.00 | 0.00 | 0.00 | 0.00 | $41,800 | $2,138 |
Roll Value History
| 2025 | N/A | N/A | N/A | N/A | N/A |
| 2024 | $8,121 | $100,370 | $2,518 | $10,639 | $10,639 |
| 2023 | $7,752 | $95,245 | $2,518 | $10,270 | $10,270 |
| 2022 | $7,801 | $94,555 | $2,518 | $10,319 | $10,319 |
| 2021 | $7,223 | $82,526 | $2,518 | $9,741 | $9,741 |
Deed and Sales History
| 1 | 06/25/2021 | SWD | Statutory Warranty Deed | KEVIN E DAVID | BENJAMIN M & CRYSTAL TAGGART | | | $825,000.00 | 137024 | |
|   | |
| 2 | 09/20/2002 | SWD | Statutory Warranty Deed | PAUL A/MARY E SCHMIDT | KEVIN DAVID/DEBBIE VAUGHN | 0 | 0 | $90,000.00 | 95603 | 0 |
| 3 | 04/19/1998 | QCD | Quit Claim Deed | PADDOCK, OLIVE A | SCHMIDT, PAUL A/MARY E | 0 | 0 | $0.00 | 84708 | 0 |
| 4 | 04/12/1996 | QCD | Quit Claim Deed | SCHMIDT, PAUL A/MARY E | PADDOCK, OLIVE A | 0 | 0 | $0.00 | 79303 | 0 |
Payout Agreement
| No payout information available.. |