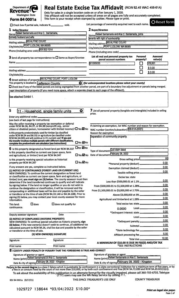
Property
Account |
| Property ID: | 22068 | Abbreviated Legal Description: | S25 T29 R1W N 1/2 N1/2 SE LYING WEST OF RD SUBJ/EASE |
| Parcel # / Geo ID: | 901254002 | Agent Code: | |
| Type: | Real | | |
| Tax Area: | 0211 - 1-49F1E1H2L1 | Land Use Code | 18 |
| Open Space: | N | DFL | N |
| Historic Property: | N | Remodel Property: | N |
| Multi-Family Redevelopment: | N | | |
| Township: | 29N | Section: | 25 |
| Range: | 1W |
Location |
| Address: | 6223 BEAVER VALLEY RD CHIMACUM, WA 98325 | Mapsco: | 218/017 |
| Neighborhood: | S13, S24, & S25 T29N R1W; VIEW RIDGE LARGE LOT SUBDIVISION | Map ID: | |
| Neighborhood CD: | 4260 |
Owner |
| Name: | NATHAN & DIANA AVILA | Owner ID: | 107283 |
| Mailing Address: | 4534 GRIFFIN AVE LOS ANGELES, CA 90031-1422 | % Ownership: | 100.0000000000% |
| | | Exemptions: | |
Pay Tax Due
There is currently No Amount Due on this property.
Taxes and Assessment Details
Property Tax Information as of
10/24/2025
Click on "Statement Details" to expand or collapse a tax statement.
* Please enter a valid date ** Please enter a valid date *
Statement Details |
| | TOTAL: | $0.00 | $0.00 | $0.00 | $0.00 | $0.00 | $0.00 |
|
| | $0.00 | $0.00 | $0.00 | $0.00 | $0.00 | $0.00 |
Values
| (+) Improvement Homesite Value: | + | $0 | |
| (+) Improvement Non-Homesite Value: | + | $64,429 | |
| (+) Land Homesite Value: | + | $0 | |
| (+) Land Non-Homesite Value: | + | $212,520 | |
| (+) Curr Use (HS): | + | $0 | $0 |
| (+) Curr Use (NHS): | + | $0 | $0 |
| | | -------------------------- | |
| (=) Market Value: | = | $276,949 | |
| (–) Productivity Loss: | – | $0 | |
| | | -------------------------- | |
| (=) Subtotal: | = | $276,949 | |
| (+) Senior Appraised Value: | + | $0 | |
| (+) Non-Senior Appraised Value: | + | $276,949 | |
| | | -------------------------- | |
| (=) Total Appraised Value: | = | $276,949 | |
| (–) Senior Exemption Loss: | – | $0 | |
| (–) Exemption Loss: | – | $0 | |
| | | -------------------------- | |
| (=) Taxable Value: | = | $276,949 | |
Taxing Jurisdiction
| Owner: | NATHAN & DIANA AVILA | | |
| % Ownership: | 100.0000000000% | | |
| Total Value: | N/A | | |
| Tax Area: | 0211 - 1-49F1E1H2L1 |
| CE | COUNTY CURRENT EXPENSE | N/A | N/A | N/A | N/A | | |
| CNTYDD | DEVELOPMENTAL DISABILITIES | N/A | N/A | N/A | N/A | | |
| CNTYVET | VETERANS RELIEF | N/A | N/A | N/A | N/A | | |
| MENTAL | MENTAL HEALTH | N/A | N/A | N/A | N/A | | |
| ROADS | COUNTY ROADS | N/A | N/A | N/A | N/A | | |
| ROADSCU | COUNTY ROADS TO CUR EXP | N/A | N/A | N/A | N/A | | |
| HOSP2CASH | HOSP DIST #2 GENERAL | N/A | N/A | N/A | N/A | | |
| SCH49CP | SCHOOL DIST #49 CAP PROJ | N/A | N/A | N/A | N/A | | |
| SCH49MO | SCHOOL DIST #49 EP & O | N/A | N/A | N/A | N/A | | |
| CONSERVE | CONSERVATION FUTURES | N/A | N/A | N/A | N/A | | |
| EMS1 | FIRE DIST #1 EMS | N/A | N/A | N/A | N/A | | |
| FD1 | FIRE DIST #1 GENERAL | N/A | N/A | N/A | N/A | | |
| LIB1 | LIBRARY DIST #1 GENERAL | N/A | N/A | N/A | N/A | | |
| PORTPT | PORT OF PT GENERAL | N/A | N/A | N/A | N/A | | |
| PORTPTIDD | PORT OF PT IDD 2019 | N/A | N/A | N/A | N/A | | |
| PUD1 | PUD #1 GENERAL | N/A | N/A | N/A | N/A | | |
| STATE | STATE SCHOOL PART 1 | N/A | N/A | N/A | N/A | | |
| STATE2 | STATE SCHOOL PART 2 | N/A | N/A | N/A | N/A | | |
| | Total Tax Rate: | N/A | | | | | |
| | | | | Taxes w/Current Exemptions: | N/A | | |
| | | | | Taxes w/o Exemptions: | N/A | | |
Improvement / Building
| Improvement #1: | Residential Bldg | State Code: | 18 | 0.0 sqft | Value: | $64,429 |
Sketch
Property Image
Land
| 1 | 4260-1373S | Residential Sites 1+/- Ac Excel Territorial Views | 1.0000 | 43560.00 | 0.00 | 0.00 | 1.00 | $126,500 | $0 |
| 2 | 4260-8775A | Terr View Acreage Used Primarily for Pasture | 19.5500 | 851598.00 | 0.00 | 0.00 | 0.00 | $86,020 | $0 |
Roll Value History
| 2025 | N/A | N/A | N/A | N/A | N/A |
| 2024 | $61,628 | $202,860 | $0 | $264,488 | $264,488 |
| 2023 | $58,826 | $191,200 | $0 | $250,026 | $250,026 |
| 2022 | $56,026 | $188,200 | $0 | $244,226 | $244,226 |
| 2021 | $25,211 | $97,070 | $0 | $122,281 | $122,281 |
Deed and Sales History
| 1 | 07/06/2022 | SWD | Statutory Warranty Deed | STANLEY A SHOOP | NATHAN & DIANA AVILA | | | $325,000.00 | 139423 | |
| 2 | 12/09/2005 | SWD | Statutory Warranty Deed | SHOOP, DENVER & CORAZON | SHOOP, STANLEY ADAM | 0 | 0 | $100,000.00 | 105568 | 0 |
| 3 | 09/15/1997 | SWD | Statutory Warranty Deed | SWANSON, HOWARD ALLEN | SHOOP, DENVER L/CORAZON TEANO | 0 | 0 | $40,000.00 | 82820 | 0 |
| 4 | 09/15/1997 | SWD | Statutory Warranty Deed | SWANSON, HOWARD ALLEN | SHOOP, DENVER L/CORAZON TANEO | 0 | 0 | $0.00 | 90184 | 0 |
| 5 | 07/05/1996 | QCD | Quit Claim Deed | SWANSON, SIGNE M | SWANSON, HOWARD ALLEN | 0 | 0 | $0.00 | 79999 | 0 |
Payout Agreement
| No payout information available.. |