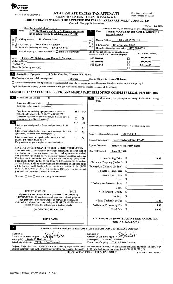
Property
Account |
| Property ID: | 22082 | Abbreviated Legal Description: | S26 T29 R1W NW1/4(W OF VALLEY RIDGELINE) SUBJ/CONS EASE EX#125752 |
| Parcel # / Geo ID: | 901262003 | Agent Code: | |
| Type: | Real | | |
| Tax Area: | 0211 - 1-49F1E1H2L1 | Land Use Code | 18 |
| Open Space: | N | DFL | N |
| Historic Property: | N | Remodel Property: | N |
| Multi-Family Redevelopment: | N | | |
| Township: | 29N | Section: | 26 |
| Range: | 1W |
Location |
| Address: | | Mapsco: | 219/007 |
| Neighborhood: | S26 & S27 T29N R1W | Map ID: | |
| Neighborhood CD: | 4280 |
Owner |
| Name: | PORT OF PORT TOWNSEND | Owner ID: | 25026 |
| Mailing Address: | PO BOX 1180 PORT TOWNSEND, WA 98368-0980 | % Ownership: | 100.0000000000% |
| | | Exemptions: | EX |
Pay Tax Due
There is currently No Amount Due on this property.
Taxes and Assessment Details
Property Tax Information as of
10/24/2025
Click on "Statement Details" to expand or collapse a tax statement.
* Please enter a valid date ** Please enter a valid date *
Statement Details |
| | TOTAL: | $0.00 | $0.00 | $0.00 | $0.00 | $0.00 | $0.00 |
|
| | $0.00 | $0.00 | $0.00 | $0.00 | $0.00 | $0.00 |
Values
| (+) Improvement Homesite Value: | + | $0 | |
| (+) Improvement Non-Homesite Value: | + | $6,707 | |
| (+) Land Homesite Value: | + | $0 | |
| (+) Land Non-Homesite Value: | + | $233,475 | |
| (+) Curr Use (HS): | + | $0 | $0 |
| (+) Curr Use (NHS): | + | $0 | $0 |
| | | -------------------------- | |
| (=) Market Value: | = | $240,182 | |
| (–) Productivity Loss: | – | $0 | |
| | | -------------------------- | |
| (=) Subtotal: | = | $240,182 | |
| (+) Senior Appraised Value: | + | $0 | |
| (+) Non-Senior Appraised Value: | + | $240,182 | |
| | | -------------------------- | |
| (=) Total Appraised Value: | = | $240,182 | |
| (–) Senior Exemption Loss: | – | $0 | |
| (–) Exemption Loss: | – | $240,182 | |
| | | -------------------------- | |
| (=) Taxable Value: | = | $0 | |
Taxing Jurisdiction
| Owner: | PORT OF PORT TOWNSEND | | |
| % Ownership: | 100.0000000000% | | |
| Total Value: | N/A | | |
| Tax Area: | 0211 - 1-49F1E1H2L1 |
| CE | COUNTY CURRENT EXPENSE | N/A | N/A | N/A | N/A | | |
| CNTYDD | DEVELOPMENTAL DISABILITIES | N/A | N/A | N/A | N/A | | |
| CNTYVET | VETERANS RELIEF | N/A | N/A | N/A | N/A | | |
| MENTAL | MENTAL HEALTH | N/A | N/A | N/A | N/A | | |
| ROADS | COUNTY ROADS | N/A | N/A | N/A | N/A | | |
| ROADSCU | COUNTY ROADS TO CUR EXP | N/A | N/A | N/A | N/A | | |
| HOSP2CASH | HOSP DIST #2 GENERAL | N/A | N/A | N/A | N/A | | |
| SCH49CP | SCHOOL DIST #49 CAP PROJ | N/A | N/A | N/A | N/A | | |
| SCH49MO | SCHOOL DIST #49 EP & O | N/A | N/A | N/A | N/A | | |
| CONSERVE | CONSERVATION FUTURES | N/A | N/A | N/A | N/A | | |
| EMS1 | FIRE DIST #1 EMS | N/A | N/A | N/A | N/A | | |
| FD1 | FIRE DIST #1 GENERAL | N/A | N/A | N/A | N/A | | |
| LIB1 | LIBRARY DIST #1 GENERAL | N/A | N/A | N/A | N/A | | |
| PORTPT | PORT OF PT GENERAL | N/A | N/A | N/A | N/A | | |
| PORTPTIDD | PORT OF PT IDD 2019 | N/A | N/A | N/A | N/A | | |
| PUD1 | PUD #1 GENERAL | N/A | N/A | N/A | N/A | | |
| STATE | STATE SCHOOL PART 1 | N/A | N/A | N/A | N/A | | |
| STATE2 | STATE SCHOOL PART 2 | N/A | N/A | N/A | N/A | | |
| | Total Tax Rate: | N/A | | | | | |
| | | | | Taxes w/Current Exemptions: | N/A | | |
| | | | | Taxes w/o Exemptions: | N/A | | |
Improvement / Building
| Improvement #1: | Site Improvements | State Code: | 83 | 0.0 sqft | Value: | $6,707 |
Sketch
| No sketches available for this property. |
Property Image
Land
| 1 | 4280-8775A | Terr View Acreage Used Primarily for Pasture | 25.4400 | 1108166.40 | 0.00 | 0.00 | 0.00 | $83,952 | $0 |
| 2 | 4280-8775A | Terr View Acreage Used Primarily for Pasture | 3.8300 | 166834.80 | 0.00 | 0.00 | 0.00 | $12,639 | $0 |
| 3 | 4280-8775A | Terr View Acreage Used Primarily for Pasture | 12.1300 | 528382.80 | 0.00 | 0.00 | 0.00 | $40,029 | $0 |
| 4 | 1975A | Terr/Mtn/No View >40 Acres | 2.3000 | 100188.00 | 0.00 | 0.00 | 0.00 | $12,650 | $0 |
| 5 | 1975A | Terr/Mtn/No View >40 Acres | 15.3100 | 666903.60 | 0.00 | 0.00 | 0.00 | $84,205 | $0 |
Roll Value History
| 2025 | N/A | N/A | N/A | N/A | N/A |
| 2024 | $6,415 | $222,864 | $0 | $229,279 | $0 |
| 2023 | $6,124 | $212,250 | $0 | $218,374 | $0 |
| 2022 | $5,832 | $203,445 | $7,868 | $13,700 | $0 |
| 2021 | $5,400 | $180,544 | $9,384 | $14,784 | $14,784 |
Deed and Sales History
| 1 | 09/01/2023 | SWD | Statutory Warranty Deed | PORT OF PORT TOWNSEND | PORT OF PORT TOWNSEND | | | | 141533 | RE-RECORD |
| 2 | 09/01/2023 | SWD | Statutory Warranty Deed | ROGER DEAN SHORT | PORT OF PORT TOWNSEND | | | $1,400,000.00 | 141499 | |
|   | |
| 3 | 01/24/2020 | QCD | Quit Claim Deed | ROGER DEAN SHORT | | | | | 136257 | |
| 4 | 01/24/2020 | QCD | Quit Claim Deed | ROGER D SHORT | ROGER DEAN SHORT | | | | 133858 | |
| 5 | 06/30/2016 | CONS EASE | CONSERVATION EASEMENT | ROGER D SHORT | JEFFERSON LAND TRUST | | | $800,000.00 | 125752 | |
|   | |
Payout Agreement
| No payout information available.. |