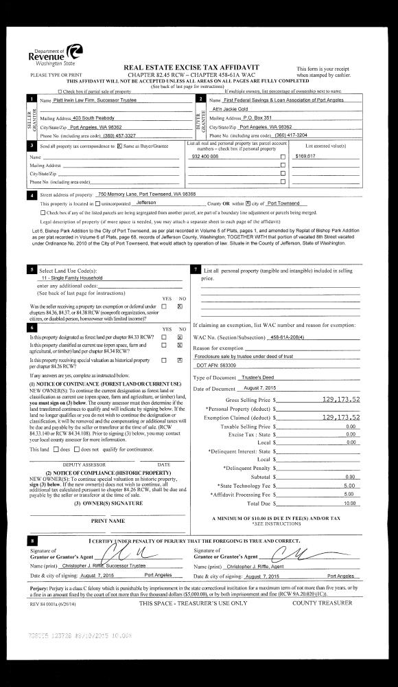
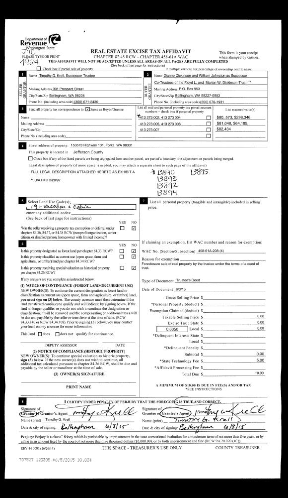
Property
Account |
| Property ID: | 22085 | Abbreviated Legal Description: | S26 T29 R1W TX 2 & TX 11(LS TX 4 & TX 14) |
| Parcel # / Geo ID: | 901263002 | Agent Code: | |
| Type: | Real | | |
| Tax Area: | 0211 - 1-49F1E1H2L1 | Land Use Code | 11 |
| Open Space: | N | DFL | N |
| Historic Property: | N | Remodel Property: | N |
| Multi-Family Redevelopment: | N | | |
| Township: | 29N | Section: | 26 |
| Range: | 1W |
Location |
| Address: | 2687 CENTER RD CHIMACUM, WA 98325 | Mapsco: | 219/012 |
| Neighborhood: | S26 & S27 T29N R1W | Map ID: | |
| Neighborhood CD: | 4280 |
Owner |
| Name: | ORREN BARBER | Owner ID: | 95656 |
| Mailing Address: | 631 57TH ST PORT TOWNSEND, WA 98368 | % Ownership: | 100.0000000000% |
| | | Exemptions: | |
Pay Tax Due
There is currently No Amount Due on this property.
Taxes and Assessment Details
Property Tax Information as of
10/24/2025
Click on "Statement Details" to expand or collapse a tax statement.
* Please enter a valid date ** Please enter a valid date *
Statement Details |
| | TOTAL: | $0.00 | $0.00 | $0.00 | $0.00 | $0.00 | $0.00 |
|
| | $0.00 | $0.00 | $0.00 | $0.00 | $0.00 | $0.00 |
Values
| (+) Improvement Homesite Value: | + | $0 | |
| (+) Improvement Non-Homesite Value: | + | $54,037 | |
| (+) Land Homesite Value: | + | $0 | |
| (+) Land Non-Homesite Value: | + | $135,826 | |
| (+) Curr Use (HS): | + | $0 | $0 |
| (+) Curr Use (NHS): | + | $0 | $0 |
| | | -------------------------- | |
| (=) Market Value: | = | $189,863 | |
| (–) Productivity Loss: | – | $0 | |
| | | -------------------------- | |
| (=) Subtotal: | = | $189,863 | |
| (+) Senior Appraised Value: | + | $0 | |
| (+) Non-Senior Appraised Value: | + | $189,863 | |
| | | -------------------------- | |
| (=) Total Appraised Value: | = | $189,863 | |
| (–) Senior Exemption Loss: | – | $0 | |
| (–) Exemption Loss: | – | $0 | |
| | | -------------------------- | |
| (=) Taxable Value: | = | $189,863 | |
Taxing Jurisdiction
| Owner: | ORREN BARBER | | |
| % Ownership: | 100.0000000000% | | |
| Total Value: | N/A | | |
| Tax Area: | 0211 - 1-49F1E1H2L1 |
| CE | COUNTY CURRENT EXPENSE | N/A | N/A | N/A | N/A | | |
| CNTYDD | DEVELOPMENTAL DISABILITIES | N/A | N/A | N/A | N/A | | |
| CNTYVET | VETERANS RELIEF | N/A | N/A | N/A | N/A | | |
| MENTAL | MENTAL HEALTH | N/A | N/A | N/A | N/A | | |
| ROADS | COUNTY ROADS | N/A | N/A | N/A | N/A | | |
| ROADSCU | COUNTY ROADS TO CUR EXP | N/A | N/A | N/A | N/A | | |
| HOSP2CASH | HOSP DIST #2 GENERAL | N/A | N/A | N/A | N/A | | |
| SCH49CP | SCHOOL DIST #49 CAP PROJ | N/A | N/A | N/A | N/A | | |
| SCH49MO | SCHOOL DIST #49 EP & O | N/A | N/A | N/A | N/A | | |
| CONSERVE | CONSERVATION FUTURES | N/A | N/A | N/A | N/A | | |
| EMS1 | FIRE DIST #1 EMS | N/A | N/A | N/A | N/A | | |
| FD1 | FIRE DIST #1 GENERAL | N/A | N/A | N/A | N/A | | |
| LIB1 | LIBRARY DIST #1 GENERAL | N/A | N/A | N/A | N/A | | |
| PORTPT | PORT OF PT GENERAL | N/A | N/A | N/A | N/A | | |
| PORTPTIDD | PORT OF PT IDD 2019 | N/A | N/A | N/A | N/A | | |
| PUD1 | PUD #1 GENERAL | N/A | N/A | N/A | N/A | | |
| STATE | STATE SCHOOL PART 1 | N/A | N/A | N/A | N/A | | |
| STATE2 | STATE SCHOOL PART 2 | N/A | N/A | N/A | N/A | | |
| | Total Tax Rate: | N/A | | | | | |
| | | | | Taxes w/Current Exemptions: | N/A | | |
| | | | | Taxes w/o Exemptions: | N/A | | |
Improvement / Building
| Improvement #1: | Residential Bldg | State Code: | 11 | 684.0 sqft | Value: | $54,037 |
| Bathrooms (#): | 1 (FULL) | Bedrooms (#): | 1 | | Exterior Wall: | PL/T1 | Fireplace: | WD ST-FAIR | | Floor Construction: | FRAME | Foundation: | PO&BL | | Heating/Cooling: | ELBB | Roof Cover: | SHAKE |
|
| | Type | Description | Class CD | Sub Class CD | Year Built | Area |
| | MA | Main Area | 4 | C2S | 1974 | 504.0 |
| | MA2 | Second Floor Main Area | 4 | 2S | 1974 | 180.0 |
| | CDECK | Cabin Deck | 4 | C2S | 1974 | 367.0 |
| | SHED | Shed (Table Not Dep) | 4 | * | 1974 | 80.0 |
| | CWPOR | Cabin Wood Porch | 4 | C2S | 1974 | 100.0 |
| | HBAL | House Balcony | 4 | C2S | 1974 | 104.0 |
Sketch
Property Image
Land
| 1 | 1577A | Terr/Mtn/No View <6 Acres | 5.6100 | 244371.60 | 0.00 | 0.00 | 0.00 | $47,826 | $0 |
| 2 | 4280-1375S | Residential Sites 1+/- Ac SomeTerritorial Views | 1.0000 | 43560.00 | 0.00 | 0.00 | 1.00 | $88,000 | $0 |
Roll Value History
| 2025 | N/A | N/A | N/A | N/A | N/A |
| 2024 | $51,688 | $129,652 | $0 | $181,340 | $181,340 |
| 2023 | $49,338 | $117,075 | $0 | $166,413 | $166,413 |
| 2022 | $47,929 | $109,270 | $0 | $157,199 | $157,199 |
| 2021 | $44,379 | $106,763 | $0 | $151,142 | $151,142 |
Deed and Sales History
| 1 | 06/27/2016 | QCD | Quit Claim Deed | | | | | | 125708 | |
| 2 | 03/17/2016 | SWD | Statutory Warranty Deed | FRASER NORRIS REVOCABLE TRUST | STEVEN LEMIEUX | | | $125,000.00 | 125017 | |
Payout Agreement
| No payout information available.. |