Property
Account |
| Property ID: | 22117 | Abbreviated Legal Description: | S27 T29 R1W NW NE, N1/2 SW NE(BOTH E/CO RD) SUBJ/EASE |
| Parcel # / Geo ID: | 901271011 | Agent Code: | |
| Type: | Real | | |
| Tax Area: | 0211 - 1-49F1E1H2L1 | Land Use Code | 83 |
| Open Space: | Y | DFL | N |
| Historic Property: | N | Remodel Property: | N |
| Multi-Family Redevelopment: | N | | |
| Township: | 29N | Section: | 27 |
| Range: | 1W |
Location |
| Address: | 2391 WEST VALLEY RD & 2581 CHIMACUM, WA 98325 | Mapsco: | 220/005 |
| Neighborhood: | S26 & S27 T29N R1W | Map ID: | |
| Neighborhood CD: | 4280 |
Owner |
| Name: | TEREVA BLACK | Owner ID: | 107703 |
| Mailing Address: | 2391 W VALLEY RD CHIMACUM, WA 98325-9747 | % Ownership: | 100.0000000000% |
| | | Exemptions: | |
Pay Tax Due
There is currently No Amount Due on this property.
Taxes and Assessment Details
Property Tax Information as of
10/24/2025
Click on "Statement Details" to expand or collapse a tax statement.
* Please enter a valid date ** Please enter a valid date *
Statement Details |
| | TOTAL: | $0.00 | $0.00 | $0.00 | $0.00 | $0.00 | $0.00 |
|
| | $0.00 | $0.00 | $0.00 | $0.00 | $0.00 | $0.00 |
Values
| (+) Improvement Homesite Value: | + | $5,795 | |
| (+) Improvement Non-Homesite Value: | + | $227,429 | |
| (+) Land Homesite Value: | + | $121,000 | |
| (+) Land Non-Homesite Value: | + | $0 | |
| (+) Curr Use (HS): | + | $55,000 | $236 |
| (+) Curr Use (NHS): | + | $135,333 | $9,227 |
| | | -------------------------- | |
| (=) Market Value: | = | $544,557 | |
| (–) Productivity Loss: | – | $180,870 | |
| | | -------------------------- | |
| (=) Subtotal: | = | $363,687 | |
| (+) Senior Appraised Value: | + | $0 | |
| (+) Non-Senior Appraised Value: | + | $363,687 | |
| | | -------------------------- | |
| (=) Total Appraised Value: | = | $363,687 | |
| (–) Senior Exemption Loss: | – | $0 | |
| (–) Exemption Loss: | – | $0 | |
| | | -------------------------- | |
| (=) Taxable Value: | = | $363,687 | |
Taxing Jurisdiction
| Owner: | TEREVA BLACK | | |
| % Ownership: | 100.0000000000% | | |
| Total Value: | N/A | | |
| Tax Area: | 0211 - 1-49F1E1H2L1 |
| CE | COUNTY CURRENT EXPENSE | N/A | N/A | N/A | N/A | | |
| CNTYDD | DEVELOPMENTAL DISABILITIES | N/A | N/A | N/A | N/A | | |
| CNTYVET | VETERANS RELIEF | N/A | N/A | N/A | N/A | | |
| MENTAL | MENTAL HEALTH | N/A | N/A | N/A | N/A | | |
| ROADS | COUNTY ROADS | N/A | N/A | N/A | N/A | | |
| ROADSCU | COUNTY ROADS TO CUR EXP | N/A | N/A | N/A | N/A | | |
| HOSP2CASH | HOSP DIST #2 GENERAL | N/A | N/A | N/A | N/A | | |
| SCH49CP | SCHOOL DIST #49 CAP PROJ | N/A | N/A | N/A | N/A | | |
| SCH49MO | SCHOOL DIST #49 EP & O | N/A | N/A | N/A | N/A | | |
| CONSERVE | CONSERVATION FUTURES | N/A | N/A | N/A | N/A | | |
| EMS1 | FIRE DIST #1 EMS | N/A | N/A | N/A | N/A | | |
| FD1 | FIRE DIST #1 GENERAL | N/A | N/A | N/A | N/A | | |
| LIB1 | LIBRARY DIST #1 GENERAL | N/A | N/A | N/A | N/A | | |
| PORTPT | PORT OF PT GENERAL | N/A | N/A | N/A | N/A | | |
| PORTPTIDD | PORT OF PT IDD 2019 | N/A | N/A | N/A | N/A | | |
| PUD1 | PUD #1 GENERAL | N/A | N/A | N/A | N/A | | |
| STATE | STATE SCHOOL PART 1 | N/A | N/A | N/A | N/A | | |
| STATE2 | STATE SCHOOL PART 2 | N/A | N/A | N/A | N/A | | |
| | Total Tax Rate: | N/A | | | | | |
| | | | | Taxes w/Current Exemptions: | N/A | | |
| | | | | Taxes w/o Exemptions: | N/A | | |
Improvement / Building
| Improvement #1: | Residential Bldg | State Code: | 83 | 1176.0 sqft | Value: | $227,429 |
| Bathrooms (#): | 2 (FULL) | Bedrooms (#): | 2 | | Exterior Wall: | LOG | Fireplace: | SIN 1-GOOD | | Fireplace: | WD ST-GOOD | Floor Construction: | FRAME | | Foundation: | CONPR | Heating/Cooling: | HPUMP | | Inside Verify: | NO | Roof Cover: | METAL |
|
| | Type | Description | Class CD | Sub Class CD | Year Built | Area |
| | MA | Main Area | 3 | 1S | 1982 | 1176.0 |
| | HDECK | House Deck | 2 | * | 1982 | 354.0 |
| | HENCL | House Enclosure | 3 | * | 1982 | 200.0 |
| | ADDN-D | Addition (Table Depreciated) | 3 | * | 1988 | 304.0 |
| | SHED | Shed (Table Not Dep) | 3 | * | 1982 | 336.0 |
| | OTHER | Other | 1 | * | 1982 | 0.0 |
| Improvement #2: | Manufactured Home | State Code: | 11 | 1056.0 sqft | Value: | $5,795 |
| Bathrooms (#): | 1 (FULL) | Bathrooms (#): | 1 (HALF) | | Bedrooms (#): | 2 | Exterior Wall: | PL/T1 | | Fireplace: | WD ST-GOOD | Floor Construction: | FRAME | | Foundation: | PO&BL | Heating/Cooling: | F/A | | Inside Verify: | NO | Roof Cover: | COMP |
|
| | Type | Description | Class CD | Sub Class CD | Year Built | Area |
| | MA | Main Area | 2- | MDBL | 1980 | 1056.0 |
| | SHED | Shed (Table Not Dep) | 3 | * | 1980 | 135.0 |
| | SHED | Shed (Table Not Dep) | 3 | * | 1980 | 96.0 |
Sketch
Property Image
Land
| 1 | 4280-8775A | Terr View Acreage Used Primarily for Pasture | 41.0100 | 1786395.60 | 0.00 | 0.00 | 0.00 | $135,333 | $9,227 |
| 2 | 4280-1375S | Residential Sites 1+/- Ac SomeTerritorial Views | 1.0000 | 43560.00 | 0.00 | 0.00 | 1.00 | $121,000 | $0 |
| 3 | 4280-1375S | Residential Sites 1+/- Ac SomeTerritorial Views | 1.0000 | 43560.00 | 0.00 | 0.00 | 1.00 | $55,000 | $236 |
Roll Value History
| 2025 | N/A | N/A | N/A | N/A | N/A |
| 2024 | $223,083 | $297,182 | $9,463 | $348,046 | $348,046 |
| 2023 | $212,943 | $273,030 | $9,463 | $322,406 | $322,406 |
| 2022 | $211,219 | $263,030 | $9,463 | $310,682 | $310,682 |
| 2021 | $195,574 | $231,901 | $9,463 | $288,475 | $288,475 |
Deed and Sales History
| 1 | 02/17/2023 | EASE | Assignment of Easement | TEREVA BLACK | JEFFERSON COUNTY | | | $1,500.00 | 140559 | TEMP CONST EASE |
| 2 | 02/17/2023 | EASE | Assignment of Easement | TEREVA BLACK | JEFFERSON COUNTY | | | $300.00 | 140558 | EASE |
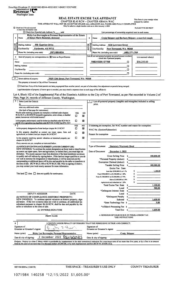
| 3 | 09/16/2022 | SWD | Statutory Warranty Deed | LESLIE ELLEN LINDEROTH | TEREVA BLACK | | | $278,000.00 | 139838 | |
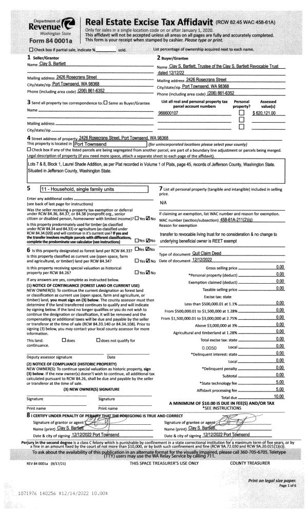
| 4 | 09/21/2021 | QCD | Quit Claim Deed | CLIFFORD E LINDEROTH JR | LESLIE ELLEN LINDEROTH | | | $0.00 | 137671 | |
| 5 | 06/17/2020 | LOP | Lack of Probate | NEOLA L HOOPS | LESLIE ELLEN LINDEROTH | | | | 134525 | |
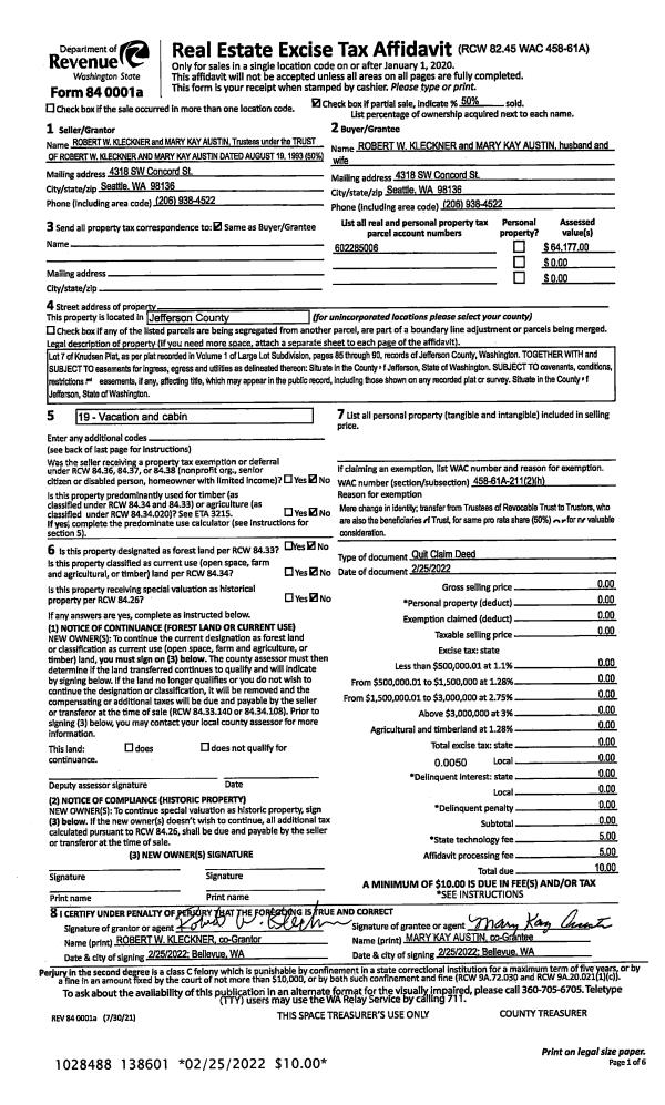
| 6 | 10/19/1998 | QCD | Quit Claim Deed | LINDEROTH, CLIFFORD E/JOA | LINDEROTH, CLIFFORD & JOAN/TR | 0 | 0 | $0.00 | 85645 | 0 |
Payout Agreement
| No payout information available.. |