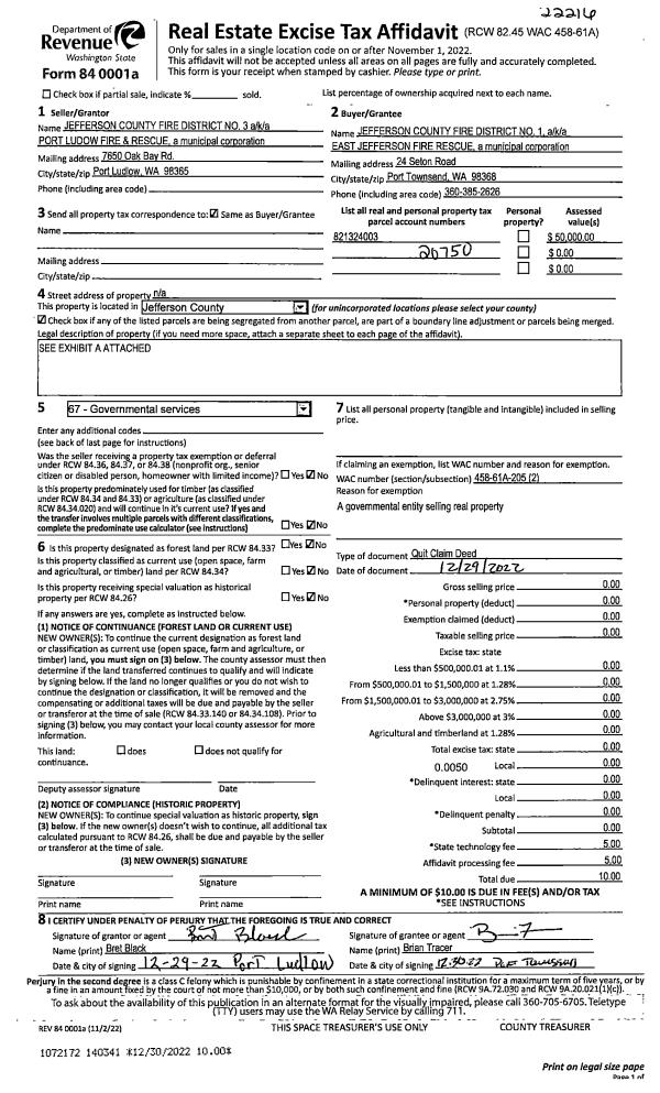
Property
Account |
| Property ID: | 22128 | Abbreviated Legal Description: | S27 T29 R1W TAX 16(PARCEL D SURVEY V8/P98-99) |
| Parcel # / Geo ID: | 901272011 | Agent Code: | |
| Type: | Real | | |
| Tax Area: | 0211 - 1-49F1E1H2L1 | Land Use Code | 91 |
| Open Space: | N | DFL | N |
| Historic Property: | N | Remodel Property: | N |
| Multi-Family Redevelopment: | N | | |
| Township: | 29N | Section: | 27 |
| Range: | 1W |
Location |
| Address: | | Mapsco: | 220/043 |
| Neighborhood: | S26 & S27 T29N R1W | Map ID: | |
| Neighborhood CD: | 4280 |
Owner |
| Name: | GILBERT R & MARGUERITE TORRES | Owner ID: | 95949 |
| Mailing Address: | 2475 TRUMAN AVE OAKLAND, CA 94605-4838 | % Ownership: | 100.0000000000% |
| | | Exemptions: | |
Pay Tax Due
There is currently No Amount Due on this property.
Taxes and Assessment Details
Property Tax Information as of
10/24/2025
Click on "Statement Details" to expand or collapse a tax statement.
* Please enter a valid date ** Please enter a valid date *
Statement Details |
| | TOTAL: | $0.00 | $0.00 | $0.00 | $0.00 | $0.00 | $0.00 |
|
| | $0.00 | $0.00 | $0.00 | $0.00 | $0.00 | $0.00 |
Values
| (+) Improvement Homesite Value: | + | $0 | |
| (+) Improvement Non-Homesite Value: | + | $0 | |
| (+) Land Homesite Value: | + | $0 | |
| (+) Land Non-Homesite Value: | + | $42,350 | |
| (+) Curr Use (HS): | + | $0 | $0 |
| (+) Curr Use (NHS): | + | $0 | $0 |
| | | -------------------------- | |
| (=) Market Value: | = | $42,350 | |
| (–) Productivity Loss: | – | $0 | |
| | | -------------------------- | |
| (=) Subtotal: | = | $42,350 | |
| (+) Senior Appraised Value: | + | $0 | |
| (+) Non-Senior Appraised Value: | + | $42,350 | |
| | | -------------------------- | |
| (=) Total Appraised Value: | = | $42,350 | |
| (–) Senior Exemption Loss: | – | $0 | |
| (–) Exemption Loss: | – | $0 | |
| | | -------------------------- | |
| (=) Taxable Value: | = | $42,350 | |
Taxing Jurisdiction
| Owner: | GILBERT R & MARGUERITE TORRES | | |
| % Ownership: | 100.0000000000% | | |
| Total Value: | N/A | | |
| Tax Area: | 0211 - 1-49F1E1H2L1 |
| CE | COUNTY CURRENT EXPENSE | N/A | N/A | N/A | N/A | | |
| CNTYDD | DEVELOPMENTAL DISABILITIES | N/A | N/A | N/A | N/A | | |
| CNTYVET | VETERANS RELIEF | N/A | N/A | N/A | N/A | | |
| MENTAL | MENTAL HEALTH | N/A | N/A | N/A | N/A | | |
| ROADS | COUNTY ROADS | N/A | N/A | N/A | N/A | | |
| ROADSCU | COUNTY ROADS TO CUR EXP | N/A | N/A | N/A | N/A | | |
| HOSP2CASH | HOSP DIST #2 GENERAL | N/A | N/A | N/A | N/A | | |
| SCH49CP | SCHOOL DIST #49 CAP PROJ | N/A | N/A | N/A | N/A | | |
| SCH49MO | SCHOOL DIST #49 EP & O | N/A | N/A | N/A | N/A | | |
| CONSERVE | CONSERVATION FUTURES | N/A | N/A | N/A | N/A | | |
| EMS1 | FIRE DIST #1 EMS | N/A | N/A | N/A | N/A | | |
| FD1 | FIRE DIST #1 GENERAL | N/A | N/A | N/A | N/A | | |
| LIB1 | LIBRARY DIST #1 GENERAL | N/A | N/A | N/A | N/A | | |
| PORTPT | PORT OF PT GENERAL | N/A | N/A | N/A | N/A | | |
| PORTPTIDD | PORT OF PT IDD 2019 | N/A | N/A | N/A | N/A | | |
| PUD1 | PUD #1 GENERAL | N/A | N/A | N/A | N/A | | |
| STATE | STATE SCHOOL PART 1 | N/A | N/A | N/A | N/A | | |
| STATE2 | STATE SCHOOL PART 2 | N/A | N/A | N/A | N/A | | |
| | Total Tax Rate: | N/A | | | | | |
| | | | | Taxes w/Current Exemptions: | N/A | | |
| | | | | Taxes w/o Exemptions: | N/A | | |
Improvement / Building
Sketch
| No sketches available for this property. |
Property Image
Land
| 1 | 1579A | Terr/Mtn/No View <6 Acres | 4.0000 | 174240.00 | 0.00 | 0.00 | 0.00 | $14,850 | $0 |
| 2 | 4280-1375S | Residential Sites 1+/- Ac SomeTerritorial Views | 1.0000 | 43560.00 | 0.00 | 0.00 | 1.00 | $27,500 | $0 |
Roll Value History
| 2025 | N/A | N/A | N/A | N/A | N/A |
| 2024 | $0 | $40,425 | $0 | $40,425 | $40,425 |
| 2023 | $0 | $38,000 | $0 | $38,000 | $38,000 |
| 2022 | $0 | $37,000 | $0 | $37,000 | $37,000 |
| 2021 | $0 | $35,469 | $0 | $35,469 | $35,469 |
Deed and Sales History
| 1 | 08/03/2016 | SWD | Statutory Warranty Deed | MAYA M BEWIG | GILBERT R & MARGUERITE TORRES | | | $29,500.00 | 126077 | |
| 2 | 09/25/2007 | SWD | Statutory Warranty Deed | NEWBERG, LEO G/COLLEEN L | BEWIG, MAYA | 0 | 0 | $34,000.00 | 110142 | 0 |
| 3 | 01/23/2006 | SWD | Statutory Warranty Deed | HIEB, PAUL A | NEWBERG, LEO & COLLEEN | 0 | 0 | $27,000.00 | 105899 | 0 |
| 4 | 03/17/2004 | SWD | Statutory Warranty Deed | MC DONALD, MICHAEL /PAMEL | HIEB, PAUL | 0 | 0 | $0.00 | 100274 | 0 |
| 5 | 03/17/2004 | SWD | Statutory Warranty Deed | MCDONALD, MICHAEL/PAMELA | HIEB, PAUL A | 0 | 0 | $15,000.00 | 99889 | 0 |
Payout Agreement
| No payout information available.. |