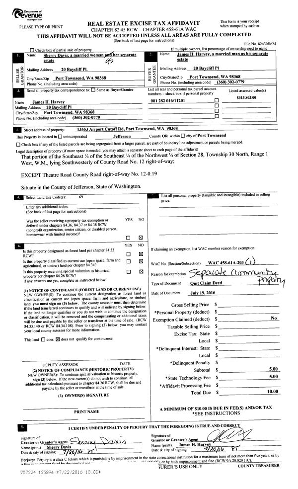
Property
Account |
| Property ID: | 22142 | Abbreviated Legal Description: | S27 T29 R1W TAX 4 SUBJ TO EASE |
| Parcel # / Geo ID: | 901274009 | Agent Code: | |
| Type: | Real | | |
| Tax Area: | 0211 - 1-49F1E1H2L1 | Land Use Code | 81 |
| Open Space: | N | DFL | N |
| Historic Property: | N | Remodel Property: | N |
| Multi-Family Redevelopment: | N | | |
| Township: | 29N | Section: | 27 |
| Range: | 1W |
Location |
| Address: | 333 COUNTRY MEADOW RD CHIMACUM, WA 98325 | Mapsco: | 220/031 |
| Neighborhood: | S26 & S27 T29N R1W | Map ID: | |
| Neighborhood CD: | 4280 |
Owner |
| Name: | JAYME M & THOMAS S BROOKE | Owner ID: | 106963 |
| Mailing Address: | 333 COUNTRY MEADOW RD CHIMACUM, WA 98325-8799 | % Ownership: | 100.0000000000% |
| | | Exemptions: | |
Pay Tax Due
There is currently No Amount Due on this property.
Taxes and Assessment Details
Property Tax Information as of
10/24/2025
Click on "Statement Details" to expand or collapse a tax statement.
* Please enter a valid date ** Please enter a valid date *
Statement Details |
| | TOTAL: | $0.00 | $0.00 | $0.00 | $0.00 | $0.00 | $0.00 |
|
| | $0.00 | $0.00 | $0.00 | $0.00 | $0.00 | $0.00 |
Values
| (+) Improvement Homesite Value: | + | $0 | |
| (+) Improvement Non-Homesite Value: | + | $136,291 | |
| (+) Land Homesite Value: | + | $0 | |
| (+) Land Non-Homesite Value: | + | $111,793 | |
| (+) Curr Use (HS): | + | $0 | $0 |
| (+) Curr Use (NHS): | + | $0 | $0 |
| | | -------------------------- | |
| (=) Market Value: | = | $248,084 | |
| (–) Productivity Loss: | – | $0 | |
| | | -------------------------- | |
| (=) Subtotal: | = | $248,084 | |
| (+) Senior Appraised Value: | + | $0 | |
| (+) Non-Senior Appraised Value: | + | $248,084 | |
| | | -------------------------- | |
| (=) Total Appraised Value: | = | $248,084 | |
| (–) Senior Exemption Loss: | – | $0 | |
| (–) Exemption Loss: | – | $0 | |
| | | -------------------------- | |
| (=) Taxable Value: | = | $248,084 | |
Taxing Jurisdiction
| Owner: | JAYME M & THOMAS S BROOKE | | |
| % Ownership: | 100.0000000000% | | |
| Total Value: | N/A | | |
| Tax Area: | 0211 - 1-49F1E1H2L1 |
| CE | COUNTY CURRENT EXPENSE | N/A | N/A | N/A | N/A | | |
| CNTYDD | DEVELOPMENTAL DISABILITIES | N/A | N/A | N/A | N/A | | |
| CNTYVET | VETERANS RELIEF | N/A | N/A | N/A | N/A | | |
| MENTAL | MENTAL HEALTH | N/A | N/A | N/A | N/A | | |
| ROADS | COUNTY ROADS | N/A | N/A | N/A | N/A | | |
| ROADSCU | COUNTY ROADS TO CUR EXP | N/A | N/A | N/A | N/A | | |
| HOSP2CASH | HOSP DIST #2 GENERAL | N/A | N/A | N/A | N/A | | |
| SCH49CP | SCHOOL DIST #49 CAP PROJ | N/A | N/A | N/A | N/A | | |
| SCH49MO | SCHOOL DIST #49 EP & O | N/A | N/A | N/A | N/A | | |
| CONSERVE | CONSERVATION FUTURES | N/A | N/A | N/A | N/A | | |
| EMS1 | FIRE DIST #1 EMS | N/A | N/A | N/A | N/A | | |
| FD1 | FIRE DIST #1 GENERAL | N/A | N/A | N/A | N/A | | |
| LIB1 | LIBRARY DIST #1 GENERAL | N/A | N/A | N/A | N/A | | |
| PORTPT | PORT OF PT GENERAL | N/A | N/A | N/A | N/A | | |
| PORTPTIDD | PORT OF PT IDD 2019 | N/A | N/A | N/A | N/A | | |
| PUD1 | PUD #1 GENERAL | N/A | N/A | N/A | N/A | | |
| STATE | STATE SCHOOL PART 1 | N/A | N/A | N/A | N/A | | |
| STATE2 | STATE SCHOOL PART 2 | N/A | N/A | N/A | N/A | | |
| | Total Tax Rate: | N/A | | | | | |
| | | | | Taxes w/Current Exemptions: | N/A | | |
| | | | | Taxes w/o Exemptions: | N/A | | |
Improvement / Building
| Improvement #1: | Residential Bldg | State Code: | 80 | 899.0 sqft | Value: | $136,291 |
| Bathrooms (#): | 1 (FULL) | Bedrooms (#): | 2 | | Exterior Wall: | SI/ST | Floor Construction: | FRAME | | Foundation: | PO&BL | Heating/Cooling: | WD/NO | | Inside Verify: | YES-FIX | Roof Cover: | COMP |
|
| | Type | Description | Class CD | Sub Class CD | Year Built | Area |
| | MA | Main Area | 4 | 1S | 1900 | 899.0 |
| | HENCL | House Enclosure | 4 | * | 1900 | 54.0 |
| | BARN | Barn (Table Not Dep) | 4 | * | 1900 | 700.0 |
| | HATTIC | House Attic | 4 | * | 1900 | 360.0 |
| | ADDN | Addition (Table Not Dep) | 4 | * | 2016 | 195.0 |
| | SHED | Shed (Table Not Dep) | 4 | * | 1900 | 64.0 |
| | SHED | Shed (Table Not Dep) | 4 | * | 1900 | 64.0 |
Sketch
Property Image
Land
| 1 | 4280-1375S | Residential Sites 1+/- Ac SomeTerritorial Views | 1.0000 | 43560.00 | 0.00 | 0.00 | 1.00 | $88,000 | $0 |
| 2 | 1571A | Terr/Mtn/No View <6 Acres | 1.0300 | 44866.80 | 0.00 | 0.00 | 0.00 | $23,793 | $0 |
Roll Value History
| 2025 | N/A | N/A | N/A | N/A | N/A |
| 2024 | $130,365 | $106,712 | $0 | $237,077 | $237,077 |
| 2023 | $124,440 | $95,600 | $0 | $220,040 | $220,040 |
| 2022 | $120,906 | $88,540 | $0 | $209,446 | $209,446 |
| 2021 | $48,597 | $72,413 | $0 | $121,010 | $121,010 |
Deed and Sales History
| 1 | 05/06/2022 | SWD | Statutory Warranty Deed | KIMBERLYE KAYE | JAYME M & THOMAS S BROOKE | | | $306,021.00 | 139099 | |
|   | |
| 2 | 05/06/2022 | QCD | Quit Claim Deed | KIMBERLYE KAYE REVOCABLE LIVING TRUST | KIMBERLYE KAYE | | | | 139098 | |
| 3 | 05/13/2019 | QCD | Quit Claim Deed | KIMBERLYE KAYE | KIMBERLYE KAYE REVOCABLE LIVING TRUST | | | | 132302 | |
| 4 | 09/28/2018 | QCD | Quit Claim Deed | KIMBERLYE KAYE TRUSTEE | KIMBERLYE KAYE | | | | 131115 | |
| 5 | 03/18/2010 | QCD | Quit Claim Deed | KAYE, KIMBERLYE | KAYE REVOCABLE LIVING TRUST | 0 | 0 | $0.00 | 114158 | 0 |
| 6 | 06/30/1998 | SWD | Statutory Warranty Deed | GUENTHER, C J/E L | COLE, KIMBERLYE | 0 | 0 | $0.00 | 84816 | 0 |
| 7 | 01/01/1991 | REC | Real Estate Contract | RUBY, MATTHEW C/ANGELA J | GUENTHER, CHRISTOPHER J/GINA | 0 | 0 | $0.00 | 67598 | 0 |
Payout Agreement
| No payout information available.. |