Property
Account |
| Property ID: | 22147 | Abbreviated Legal Description: | SHERWOOD FOREST LARGE LOT LOT A |
| Parcel # / Geo ID: | 901275001 | Agent Code: | |
| Type: | Real | | |
| Tax Area: | 0211 - 1-49F1E1H2L1 | Land Use Code | 19 |
| Open Space: | N | DFL | N |
| Historic Property: | N | Remodel Property: | N |
| Multi-Family Redevelopment: | N | | |
| Township: | 29N | Section: | 27 |
| Range: | 1W |
Location |
| Address: | 393 WINDRIDGE RD CHIMACUM, WA 98325 | Mapsco: | 254/017 |
| Neighborhood: | S26 & S27 T29N R1W | Map ID: | |
| Neighborhood CD: | 4280 |
Owner |
| Name: | TIMOTHY S JACKSON | Owner ID: | 97814 |
| Mailing Address: | 393 WINDRIDGE RD CHIMACUM, WA 98325-9767 | % Ownership: | 100.0000000000% |
| | | Exemptions: | |
Pay Tax Due
There is currently No Amount Due on this property.
Taxes and Assessment Details
Property Tax Information as of
10/24/2025
Click on "Statement Details" to expand or collapse a tax statement.
* Please enter a valid date ** Please enter a valid date *
Statement Details |
| | TOTAL: | $0.00 | $0.00 | $0.00 | $0.00 | $0.00 | $0.00 |
|
| | $0.00 | $0.00 | $0.00 | $0.00 | $0.00 | $0.00 |
Values
| (+) Improvement Homesite Value: | + | $0 | |
| (+) Improvement Non-Homesite Value: | + | $326,270 | |
| (+) Land Homesite Value: | + | $0 | |
| (+) Land Non-Homesite Value: | + | $122,271 | |
| (+) Curr Use (HS): | + | $0 | $0 |
| (+) Curr Use (NHS): | + | $0 | $0 |
| | | -------------------------- | |
| (=) Market Value: | = | $448,541 | |
| (–) Productivity Loss: | – | $0 | |
| | | -------------------------- | |
| (=) Subtotal: | = | $448,541 | |
| (+) Senior Appraised Value: | + | $0 | |
| (+) Non-Senior Appraised Value: | + | $448,541 | |
| | | -------------------------- | |
| (=) Total Appraised Value: | = | $448,541 | |
| (–) Senior Exemption Loss: | – | $0 | |
| (–) Exemption Loss: | – | $0 | |
| | | -------------------------- | |
| (=) Taxable Value: | = | $448,541 | |
Taxing Jurisdiction
| Owner: | TIMOTHY S JACKSON | | |
| % Ownership: | 100.0000000000% | | |
| Total Value: | N/A | | |
| Tax Area: | 0211 - 1-49F1E1H2L1 |
| CE | COUNTY CURRENT EXPENSE | N/A | N/A | N/A | N/A | | |
| CNTYDD | DEVELOPMENTAL DISABILITIES | N/A | N/A | N/A | N/A | | |
| CNTYVET | VETERANS RELIEF | N/A | N/A | N/A | N/A | | |
| MENTAL | MENTAL HEALTH | N/A | N/A | N/A | N/A | | |
| ROADS | COUNTY ROADS | N/A | N/A | N/A | N/A | | |
| ROADSCU | COUNTY ROADS TO CUR EXP | N/A | N/A | N/A | N/A | | |
| HOSP2CASH | HOSP DIST #2 GENERAL | N/A | N/A | N/A | N/A | | |
| SCH49CP | SCHOOL DIST #49 CAP PROJ | N/A | N/A | N/A | N/A | | |
| SCH49MO | SCHOOL DIST #49 EP & O | N/A | N/A | N/A | N/A | | |
| CONSERVE | CONSERVATION FUTURES | N/A | N/A | N/A | N/A | | |
| EMS1 | FIRE DIST #1 EMS | N/A | N/A | N/A | N/A | | |
| FD1 | FIRE DIST #1 GENERAL | N/A | N/A | N/A | N/A | | |
| LIB1 | LIBRARY DIST #1 GENERAL | N/A | N/A | N/A | N/A | | |
| PORTPT | PORT OF PT GENERAL | N/A | N/A | N/A | N/A | | |
| PORTPTIDD | PORT OF PT IDD 2019 | N/A | N/A | N/A | N/A | | |
| PUD1 | PUD #1 GENERAL | N/A | N/A | N/A | N/A | | |
| STATE | STATE SCHOOL PART 1 | N/A | N/A | N/A | N/A | | |
| STATE2 | STATE SCHOOL PART 2 | N/A | N/A | N/A | N/A | | |
| | Total Tax Rate: | N/A | | | | | |
| | | | | Taxes w/Current Exemptions: | N/A | | |
| | | | | Taxes w/o Exemptions: | N/A | | |
Improvement / Building
| Improvement #1: | Residential Bldg | State Code: | 19 | 1935.0 sqft | Value: | $326,270 |
| Bathrooms (#): | 2 (FULL) | Bedrooms (#): | 3 | | Exterior Wall: | PL/T1 | Fireplace: | WD ST-GOOD | | Floor Construction: | FRAME | Foundation: | PO&BL | | Roof Cover: | METAL |   |   |
|
| | Type | Description | Class CD | Sub Class CD | Year Built | Area |
| | MA | Main Area | 3+ | 15SF | 1995 | 1110.0 |
| | MA2 | Second Floor Main Area | 3 | 15SF | 1995 | 825.0 |
| | GDET | Detached Garage | 3 | 15SF | 1995 | 609.0 |
| | SHED | Shed (Table Not Dep) | 3 | * | 1995 | 120.0 |
| | HCPOR | House Concrete Porch | 3 | * | 1995 | 135.0 |
| | CDECK | Cabin Deck | 3 | * | 1995 | 359.0 |
Sketch
Property Image
Land
| 1 | 4280-1375S | Residential Sites 1+/- Ac SomeTerritorial Views | 1.0000 | 43560.00 | 0.00 | 0.00 | 1.00 | $88,000 | $0 |
| 2 | 1577A | Terr/Mtn/No View <6 Acres | 4.0200 | 175111.20 | 0.00 | 0.00 | 0.00 | $34,271 | $0 |
Roll Value History
| 2025 | N/A | N/A | N/A | N/A | N/A |
| 2024 | $312,084 | $116,713 | $0 | $428,797 | $428,797 |
| 2023 | $297,899 | $105,150 | $0 | $403,049 | $403,049 |
| 2022 | $289,259 | $98,140 | $0 | $387,399 | $387,399 |
| 2021 | $241,049 | $94,838 | $0 | $335,887 | $335,887 |
Deed and Sales History
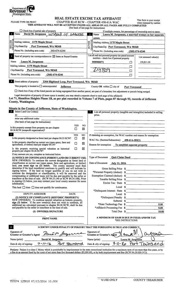
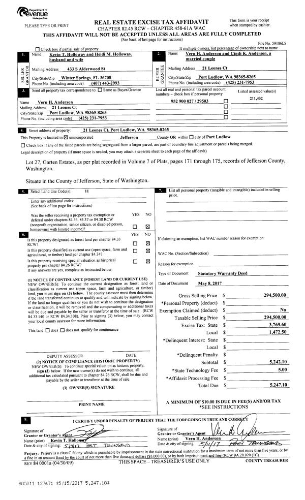
| 1 | 07/26/2017 | SWD | Statutory Warranty Deed | PATRICIA M TERHELL | TIMOTHY S JACKSON | | | $393,000.00 | 128415 | |
|   | |
| 2 | 07/26/2017 | QCD | Quit Claim Deed | | | | | | 128414 | |
| 3 | 07/23/2009 | SWD | Statutory Warranty Deed | VALA, VALERIE J/ETHERINGT | MCCAULEY, PATRICIA TERHELL | | | $330,000.00 | 113189 | 0 |
Payout Agreement
| No payout information available.. |