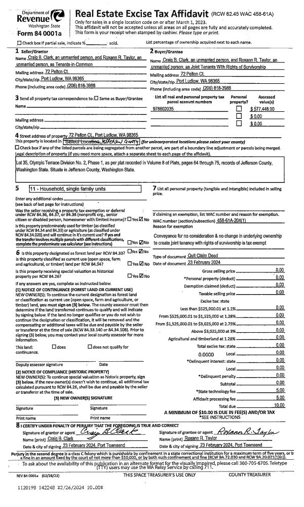
Property
Account |
| Property ID: | 22225 | Abbreviated Legal Description: | S31&32 T29 R1W TAX 15 |
| Parcel # / Geo ID: | 901314015 | Agent Code: | |
| Type: | Real | | |
| Tax Area: | 0151 - 1-50F5E5H2L1 | Land Use Code | 83 |
| Open Space: | Y | DFL | N |
| Historic Property: | N | Remodel Property: | N |
| Multi-Family Redevelopment: | N | | |
| Township: | 29N | Section: | 31 |
| Range: | 1W |
Location |
| Address: | 2350 EAGLEMOUNT RD PORT TOWNSEND, WA 98368 | Mapsco: | 079/051 |
| Neighborhood: | S29, 30, 31, & 32 T29 R1W | Map ID: | |
| Neighborhood CD: | 5240 |
Owner |
| Name: | JAMES L DAVIS | Owner ID: | 14195 |
| Mailing Address: | PO BOX 2014 PORT TOWNSEND, WA 98368-0089 | % Ownership: | 100.0000000000% |
| | | Exemptions: | |
Pay Tax Due
There is currently No Amount Due on this property.
Taxes and Assessment Details
Property Tax Information as of
10/24/2025
Click on "Statement Details" to expand or collapse a tax statement.
* Please enter a valid date ** Please enter a valid date *
Statement Details |
| | TOTAL: | $0.00 | $0.00 | $0.00 | $0.00 | $0.00 | $0.00 |
|
| | $0.00 | $0.00 | $0.00 | $0.00 | $0.00 | $0.00 |
Values
| (+) Improvement Homesite Value: | + | $0 | |
| (+) Improvement Non-Homesite Value: | + | $173,006 | |
| (+) Land Homesite Value: | + | $0 | |
| (+) Land Non-Homesite Value: | + | $72,325 | |
| (+) Curr Use (HS): | + | $0 | $0 |
| (+) Curr Use (NHS): | + | $134,407 | $4,781 |
| | | -------------------------- | |
| (=) Market Value: | = | $379,738 | |
| (–) Productivity Loss: | – | $129,626 | |
| | | -------------------------- | |
| (=) Subtotal: | = | $250,112 | |
| (+) Senior Appraised Value: | + | $0 | |
| (+) Non-Senior Appraised Value: | + | $250,112 | |
| | | -------------------------- | |
| (=) Total Appraised Value: | = | $250,112 | |
| (–) Senior Exemption Loss: | – | $0 | |
| (–) Exemption Loss: | – | $0 | |
| | | -------------------------- | |
| (=) Taxable Value: | = | $250,112 | |
Taxing Jurisdiction
| Owner: | JAMES L DAVIS | | |
| % Ownership: | 100.0000000000% | | |
| Total Value: | N/A | | |
| Tax Area: | 0151 - 1-50F5E5H2L1 |
| CE | COUNTY CURRENT EXPENSE | N/A | N/A | N/A | N/A | | |
| CNTYDD | DEVELOPMENTAL DISABILITIES | N/A | N/A | N/A | N/A | | |
| CNTYVET | VETERANS RELIEF | N/A | N/A | N/A | N/A | | |
| MENTAL | MENTAL HEALTH | N/A | N/A | N/A | N/A | | |
| ROADS | COUNTY ROADS | N/A | N/A | N/A | N/A | | |
| ROADSCU | COUNTY ROADS TO CUR EXP | N/A | N/A | N/A | N/A | | |
| HOSP2CASH | HOSP DIST #2 GENERAL | N/A | N/A | N/A | N/A | | |
| SCH50BOND | SCHOOL DIST #50 BOND 2016 | N/A | N/A | N/A | N/A | | |
| SCH50CP | SCHOOL DIST #50 CAP PROJ | N/A | N/A | N/A | N/A | | |
| SCH50MO | SCHOOL DIST #50 EP & O | N/A | N/A | N/A | N/A | | |
| CONSERVE | CONSERVATION FUTURES | N/A | N/A | N/A | N/A | | |
| EMS5 | FIRE DIST #5 EMS | N/A | N/A | N/A | N/A | | |
| FD5 | FIRE DIST #5 GENERAL | N/A | N/A | N/A | N/A | | |
| FD5BOND | FIRE DIST #5 BOND 2016 | N/A | N/A | N/A | N/A | | |
| LIB1 | LIBRARY DIST #1 GENERAL | N/A | N/A | N/A | N/A | | |
| PORTPT | PORT OF PT GENERAL | N/A | N/A | N/A | N/A | | |
| PORTPTIDD | PORT OF PT IDD 2019 | N/A | N/A | N/A | N/A | | |
| PUD1 | PUD #1 GENERAL | N/A | N/A | N/A | N/A | | |
| STATE | STATE SCHOOL PART 1 | N/A | N/A | N/A | N/A | | |
| STATE2 | STATE SCHOOL PART 2 | N/A | N/A | N/A | N/A | | |
| | Total Tax Rate: | N/A | | | | | |
| | | | | Taxes w/Current Exemptions: | N/A | | |
| | | | | Taxes w/o Exemptions: | N/A | | |
Improvement / Building
| Improvement #1: | Residential Bldg | State Code: | 11 | 1181.0 sqft | Value: | $173,006 |
| Bathrooms (#): | 1 (FULL) | Bedrooms (#): | 1 | | Exterior Wall: | PL/T1 | Floor Construction: | FRAME | | Foundation: | CONBL | Heating/Cooling: | HPUMP | | Inside Verify: | YES-FIX | Interior Finish: | FIN | | Roof Cover: | METAL |   |   |
|
| | Type | Description | Class CD | Sub Class CD | Year Built | Area |
| | MA | Main Area | 4+ | C1S | 0 | 1181.0 |
| | CLOFT | Cabin Loft | 4 | * | 0 | 500.0 |
| | CWPOR | Cabin Wood Porch | 4 | * | 0 | 44.0 |
| | CENCL | Cabin Enclosure | 4 | * | 0 | 634.0 |
| | OTHER | Other | * | * | 0 | 0.0 |
| | GARAG | Garage (Table Not Dep) | 2 | * | 0 | 672.0 |
| | CCARPTF | Cabin Carport W/Floor | 3 | * | 0 | 418.0 |
| | GARAG | Garage (Table Not Dep) | 3 | * | 0 | 1632.0 |
Sketch
| No sketches available for this property. |
Property Image
Land
| 1 | 5240-1385S | Limited/No View Sites 1 +/- Acre | 1.0000 | 43560.00 | 0.00 | 0.00 | 1.00 | $66,000 | $0 |
| 2 | 1778A | Terr/Mtn View >15-25 Acres | 1.0000 | 43560.00 | 0.00 | 0.00 | 0.00 | $6,325 | $0 |
| 3 | 1778A | Terr/Mtn View >15-25 Acres | 21.2500 | 925650.00 | 0.00 | 0.00 | 0.00 | $134,407 | $4,781 |
Roll Value History
| 2025 | N/A | N/A | N/A | N/A | N/A |
| 2024 | $173,006 | $206,732 | $4,781 | $250,112 | $250,112 |
| 2023 | $175,375 | $186,244 | $4,781 | $243,681 | $243,681 |
| 2022 | $159,432 | $161,250 | $4,781 | $219,213 | $219,213 |
| 2021 | $120,782 | $136,400 | $4,781 | $168,463 | $168,463 |
Deed and Sales History
Payout Agreement
| No payout information available.. |