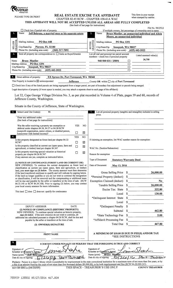
Property
Account |
| Property ID: | 22263 | Abbreviated Legal Description: | ROBERT STIEWE SHORT PLAT LOT 3(TAX 14) SUBJ/EASE PARCEL C |
| Parcel # / Geo ID: | 901334010 | Agent Code: | |
| Type: | Real | | |
| Tax Area: | 0211 - 1-49F1E1H2L1 | Land Use Code | 11 |
| Open Space: | N | DFL | N |
| Historic Property: | N | Remodel Property: | N |
| Multi-Family Redevelopment: | N | | |
| Township: | 29N | Section: | 33 |
| Range: | 1W |
Location |
| Address: | 210 W EGG & I RD CHIMACUM, WA 98325 | Mapsco: | 244/024 |
| Neighborhood: | S28, S33, & S34 T29N R1W; PUTAS, LOWELL DAY A&B, STIEVE SPLT | Map ID: | |
| Neighborhood CD: | 4285 |
Owner |
| Name: | HELEN L SHEWMAN | Owner ID: | 27239 |
| Mailing Address: | LAURENCE K SAMMONS 210 W EGG & I RD CHIMACUM, WA 98325 | % Ownership: | 100.0000000000% |
| | | Exemptions: | |
Pay Tax Due
There is currently No Amount Due on this property.
Taxes and Assessment Details
Property Tax Information as of
10/24/2025
Click on "Statement Details" to expand or collapse a tax statement.
* Please enter a valid date ** Please enter a valid date *
Statement Details |
| | TOTAL: | $0.00 | $0.00 | $0.00 | $0.00 | $0.00 | $0.00 |
|
| | $0.00 | $0.00 | $0.00 | $0.00 | $0.00 | $0.00 |
Values
| (+) Improvement Homesite Value: | + | $0 | |
| (+) Improvement Non-Homesite Value: | + | $310,784 | |
| (+) Land Homesite Value: | + | $0 | |
| (+) Land Non-Homesite Value: | + | $145,635 | |
| (+) Curr Use (HS): | + | $0 | $0 |
| (+) Curr Use (NHS): | + | $0 | $0 |
| | | -------------------------- | |
| (=) Market Value: | = | $456,419 | |
| (–) Productivity Loss: | – | $0 | |
| | | -------------------------- | |
| (=) Subtotal: | = | $456,419 | |
| (+) Senior Appraised Value: | + | $0 | |
| (+) Non-Senior Appraised Value: | + | $456,419 | |
| | | -------------------------- | |
| (=) Total Appraised Value: | = | $456,419 | |
| (–) Senior Exemption Loss: | – | $0 | |
| (–) Exemption Loss: | – | $0 | |
| | | -------------------------- | |
| (=) Taxable Value: | = | $456,419 | |
Taxing Jurisdiction
| Owner: | HELEN L SHEWMAN | | |
| % Ownership: | 100.0000000000% | | |
| Total Value: | N/A | | |
| Tax Area: | 0211 - 1-49F1E1H2L1 |
| CE | COUNTY CURRENT EXPENSE | N/A | N/A | N/A | N/A | | |
| CNTYDD | DEVELOPMENTAL DISABILITIES | N/A | N/A | N/A | N/A | | |
| CNTYVET | VETERANS RELIEF | N/A | N/A | N/A | N/A | | |
| MENTAL | MENTAL HEALTH | N/A | N/A | N/A | N/A | | |
| ROADS | COUNTY ROADS | N/A | N/A | N/A | N/A | | |
| ROADSCU | COUNTY ROADS TO CUR EXP | N/A | N/A | N/A | N/A | | |
| HOSP2CASH | HOSP DIST #2 GENERAL | N/A | N/A | N/A | N/A | | |
| SCH49CP | SCHOOL DIST #49 CAP PROJ | N/A | N/A | N/A | N/A | | |
| SCH49MO | SCHOOL DIST #49 EP & O | N/A | N/A | N/A | N/A | | |
| CONSERVE | CONSERVATION FUTURES | N/A | N/A | N/A | N/A | | |
| EMS1 | FIRE DIST #1 EMS | N/A | N/A | N/A | N/A | | |
| FD1 | FIRE DIST #1 GENERAL | N/A | N/A | N/A | N/A | | |
| LIB1 | LIBRARY DIST #1 GENERAL | N/A | N/A | N/A | N/A | | |
| PORTPT | PORT OF PT GENERAL | N/A | N/A | N/A | N/A | | |
| PORTPTIDD | PORT OF PT IDD 2019 | N/A | N/A | N/A | N/A | | |
| PUD1 | PUD #1 GENERAL | N/A | N/A | N/A | N/A | | |
| STATE | STATE SCHOOL PART 1 | N/A | N/A | N/A | N/A | | |
| STATE2 | STATE SCHOOL PART 2 | N/A | N/A | N/A | N/A | | |
| | Total Tax Rate: | N/A | | | | | |
| | | | | Taxes w/Current Exemptions: | N/A | | |
| | | | | Taxes w/o Exemptions: | N/A | | |
Improvement / Building
| Improvement #1: | Residential Bldg | State Code: | 11 | 1644.0 sqft | Value: | $310,784 |
| Bathrooms (#): | 1 (FULL) | Bedrooms (#): | 1 | | Exterior Wall: | SI/ST | Fireplace: | WD ST-GOOD | | Floor Construction: | FRAME | Foundation: | CONBL | | Heating/Cooling: | ELBB | Roof Cover: | COMP |
|
| | Type | Description | Class CD | Sub Class CD | Year Built | Area |
| | MA | Main Area | 3+ | 15SF | 1990 | 1104.0 |
| | MA2 | Second Floor Main Area | 3 | 15SF | 1990 | 540.0 |
| | HWPOR | House Wood Porch | 3 | * | 1990 | 48.0 |
| | HDECK | House Deck | 3 | * | 1990 | 180.0 |
| | GDET | Detached Garage | 3 | 15SF | 1994 | 400.0 |
| | BARN | Barn (Table Not Dep) | 4 | * | 2012 | 1152.0 |
| | SHED | Shed (Table Not Dep) | 4 | * | 1990 | 120.0 |
Sketch
Property Image
Land
| 1 | 4285-1374S | Residential Sites 1+/- Ac Fair/Avg Terr. Views | 1.0000 | 43560.00 | 0.00 | 0.00 | 1.00 | $110,000 | $0 |
| 2 | 1577A | Terr/Mtn/No View <6 Acres | 4.1800 | 182080.80 | 0.00 | 0.00 | 0.00 | $35,635 | $0 |
Roll Value History
| 2025 | N/A | N/A | N/A | N/A | N/A |
| 2024 | $297,272 | $139,015 | $0 | $436,287 | $436,287 |
| 2023 | $270,247 | $126,350 | $0 | $396,597 | $396,597 |
| 2022 | $229,258 | $99,260 | $0 | $328,518 | $328,518 |
| 2021 | $212,275 | $96,038 | $0 | $308,313 | $308,313 |
Deed and Sales History
| 1 | 10/13/2008 | SWD | Statutory Warranty Deed | MCNERNEY, JOHN J/IRIS I T | SAMMONS, LAURENCE K/HELEN L | 0 | 0 | $380,000.00 | 112062 | 0 |
| 2 | 10/26/1999 | QCD | Quit Claim Deed | MC NERNEY, JOHN/IRIS | MC NERNEY TRUSTEES JOHN/IRIS | 0 | 0 | $0.00 | 88228 | 0 |
Payout Agreement
| No payout information available.. |