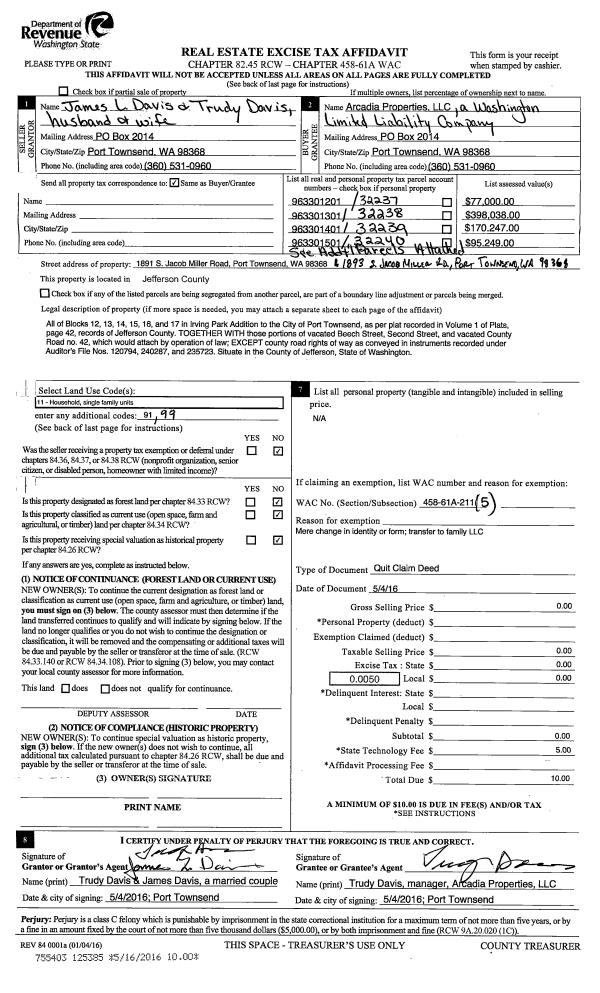
Property
Account |
| Property ID: | 22329 | Abbreviated Legal Description: | BISHOP SHORT PLAT LOT 1 |
| Parcel # / Geo ID: | 901353006 | Agent Code: | |
| Type: | Real | | |
| Tax Area: | 0211 - 1-49F1E1H2L1 | Land Use Code | 11 |
| Open Space: | N | DFL | N |
| Historic Property: | N | Remodel Property: | N |
| Multi-Family Redevelopment: | N | | |
| Township: | 29N | Section: | 35 |
| Range: | 1W |
Location |
| Address: | 233 EGG & I RIDGE RD CHIMACUM, WA 98325 | Mapsco: | 226/030 |
| Neighborhood: | S35 & S36 T29N R1W; BISHOP RIDGE; BISHOP & HUGGINS SP | Map ID: | |
| Neighborhood CD: | 4290 |
Owner |
| Name: | JANE RIOSECO | Owner ID: | 112769 |
| Mailing Address: | 413 UMATILLA AVE PORT TOWNSEND, WA 98368-5035 | % Ownership: | 100.0000000000% |
| | | Exemptions: | |
Pay Tax Due
There is currently No Amount Due on this property.
Taxes and Assessment Details
Property Tax Information as of
10/24/2025
Click on "Statement Details" to expand or collapse a tax statement.
* Please enter a valid date ** Please enter a valid date *
Statement Details |
| | TOTAL: | $0.00 | $0.00 | $0.00 | $0.00 | $0.00 | $0.00 |
|
| | $0.00 | $0.00 | $0.00 | $0.00 | $0.00 | $0.00 |
Values
| (+) Improvement Homesite Value: | + | $0 | |
| (+) Improvement Non-Homesite Value: | + | $285,867 | |
| (+) Land Homesite Value: | + | $0 | |
| (+) Land Non-Homesite Value: | + | $123,726 | |
| (+) Curr Use (HS): | + | $0 | $0 |
| (+) Curr Use (NHS): | + | $0 | $0 |
| | | -------------------------- | |
| (=) Market Value: | = | $409,593 | |
| (–) Productivity Loss: | – | $0 | |
| | | -------------------------- | |
| (=) Subtotal: | = | $409,593 | |
| (+) Senior Appraised Value: | + | $0 | |
| (+) Non-Senior Appraised Value: | + | $409,593 | |
| | | -------------------------- | |
| (=) Total Appraised Value: | = | $409,593 | |
| (–) Senior Exemption Loss: | – | $0 | |
| (–) Exemption Loss: | – | $0 | |
| | | -------------------------- | |
| (=) Taxable Value: | = | $409,593 | |
Taxing Jurisdiction
| Owner: | JANE RIOSECO | | |
| % Ownership: | 100.0000000000% | | |
| Total Value: | N/A | | |
| Tax Area: | 0211 - 1-49F1E1H2L1 |
| CE | COUNTY CURRENT EXPENSE | N/A | N/A | N/A | N/A | | |
| CNTYDD | DEVELOPMENTAL DISABILITIES | N/A | N/A | N/A | N/A | | |
| CNTYVET | VETERANS RELIEF | N/A | N/A | N/A | N/A | | |
| MENTAL | MENTAL HEALTH | N/A | N/A | N/A | N/A | | |
| ROADS | COUNTY ROADS | N/A | N/A | N/A | N/A | | |
| ROADSCU | COUNTY ROADS TO CUR EXP | N/A | N/A | N/A | N/A | | |
| HOSP2CASH | HOSP DIST #2 GENERAL | N/A | N/A | N/A | N/A | | |
| SCH49CP | SCHOOL DIST #49 CAP PROJ | N/A | N/A | N/A | N/A | | |
| SCH49MO | SCHOOL DIST #49 EP & O | N/A | N/A | N/A | N/A | | |
| CONSERVE | CONSERVATION FUTURES | N/A | N/A | N/A | N/A | | |
| EMS1 | FIRE DIST #1 EMS | N/A | N/A | N/A | N/A | | |
| FD1 | FIRE DIST #1 GENERAL | N/A | N/A | N/A | N/A | | |
| LIB1 | LIBRARY DIST #1 GENERAL | N/A | N/A | N/A | N/A | | |
| PORTPT | PORT OF PT GENERAL | N/A | N/A | N/A | N/A | | |
| PORTPTIDD | PORT OF PT IDD 2019 | N/A | N/A | N/A | N/A | | |
| PUD1 | PUD #1 GENERAL | N/A | N/A | N/A | N/A | | |
| STATE | STATE SCHOOL PART 1 | N/A | N/A | N/A | N/A | | |
| STATE2 | STATE SCHOOL PART 2 | N/A | N/A | N/A | N/A | | |
| | Total Tax Rate: | N/A | | | | | |
| | | | | Taxes w/Current Exemptions: | N/A | | |
| | | | | Taxes w/o Exemptions: | N/A | | |
Improvement / Building
| Improvement #1: | Residential Bldg | State Code: | 11 | 1245.0 sqft | Value: | $285,867 |
| Bathrooms (#): | 2 (FULL) | Bedrooms (#): | 2 | | Exterior Wall: | SI/ST | Fireplace: | SIN 2-GOOD | | Floor Construction: | FRAME | Foundation: | CONPR | | Heating/Cooling: | ELBB | Roof Cover: | COMP |
|
| | Type | Description | Class CD | Sub Class CD | Year Built | Area |
| | MA | Main Area | 4+ | 2S | 1992 | 805.0 |
| | MA2 | Second Floor Main Area | 4+ | 2S | 1992 | 440.0 |
| | HENCL | House Enclosure | 4 | * | 2008 | 80.0 |
| | HDECK | House Deck | 4 | * | 1992 | 529.0 |
| | HCPOR | House Concrete Porch | 4 | * | 2008 | 24.0 |
| | SHED | Shed (Table Not Dep) | 3 | * | 1992 | 96.0 |
Sketch
Property Image
Land
| 1 | 4290-1374S | Residential Sites 1+/- Ac Fair/Avg Terr. Views | 1.0000 | 43560.00 | 0.00 | 0.00 | 1.00 | $110,000 | $0 |
| 2 | 1577A | Terr/Mtn/No View <6 Acres | 1.6100 | 70131.60 | 0.00 | 0.00 | 0.00 | $13,726 | $0 |
Roll Value History
| 2025 | N/A | N/A | N/A | N/A | N/A |
| 2024 | $273,438 | $118,102 | $0 | $391,540 | $391,540 |
| 2023 | $261,009 | $107,075 | $0 | $368,084 | $368,084 |
| 2022 | $231,476 | $101,270 | $0 | $332,746 | $332,746 |
| 2021 | $214,330 | $96,450 | $0 | $310,780 | $310,780 |
Deed and Sales History
| 1 | 06/10/2025 | QCD | Quit Claim Deed | RIOSECO FAMILY TRUST | JANE RIOSECO | | | | 144429 | |
| 2 | 03/17/2017 | QCD | Quit Claim Deed | JANE RIOSECO | RIOSECO FAMILY TRUST | | | | 127343 | |
| 3 | 09/28/2005 | SWD | Statutory Warranty Deed | JORGENSEN, SALLY B | RIOSECO, JANE & GONZALO | 0 | 0 | $255,000.00 | 104931 | 0 |
| 4 | 08/22/2005 | QCD | Quit Claim Deed | JORGENSEN, CHARLES | JORGENSEN, SALLY B | 0 | 0 | $0.00 | 104566 | 0 |
| 5 | 05/13/2004 | SWD | Statutory Warranty Deed | KRABILL, DAVID H & ANNE E | JORGENSEN, SALLY B | 0 | 0 | $220,000.00 | 100305 | 0 |
| 6 | 08/20/1998 | SWD | Statutory Warranty Deed | GORDON, ALAN K J | KRABILL, DAVID H/ANNE E | 0 | 0 | $150,000.00 | 85218 | 0 |
| 7 | 08/15/1997 | QCD | Quit Claim Deed | GORDON, ALAN K J/PAMELA M | GORDON, ALAN K J | 0 | 0 | $0.00 | 82529 | 0 |
Payout Agreement
| No payout information available.. |