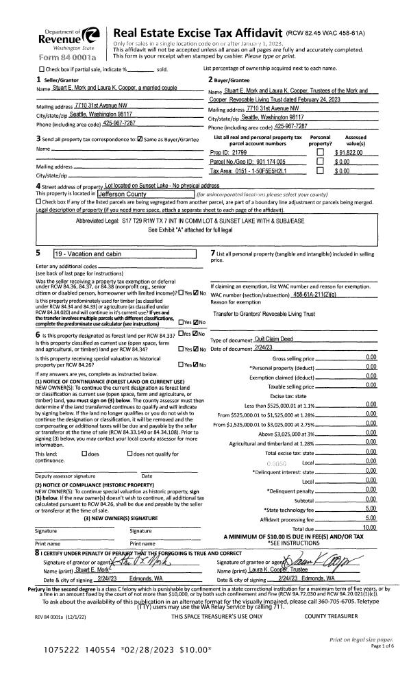
Property
Account |
| Property ID: | 22338 | Abbreviated Legal Description: | BISHOP SHORT PLAT LOT 4(TAX 15) |
| Parcel # / Geo ID: | 901353015 | Agent Code: | |
| Type: | Real | | |
| Tax Area: | 0211 - 1-49F1E1H2L1 | Land Use Code | 11 |
| Open Space: | N | DFL | N |
| Historic Property: | N | Remodel Property: | N |
| Multi-Family Redevelopment: | N | | |
| Township: | 29N | Section: | 35 |
| Range: | 1W |
Location |
| Address: | 425 EGG & I RIDGE RD CHIMACUM, WA 98325 | Mapsco: | 226/036 |
| Neighborhood: | S35 & S36 T29N R1W; BISHOP RIDGE; BISHOP & HUGGINS SP | Map ID: | |
| Neighborhood CD: | 4290 |
Owner |
| Name: | DAVE L MUNDY | Owner ID: | 23139 |
| Mailing Address: | MICHELE D MORIARTY 425 EGG AND I RIDGE RD CHIMACUM, WA 98325-9799 | % Ownership: | 100.0000000000% |
| | | Exemptions: | |
Pay Tax Due
There is currently No Amount Due on this property.
Taxes and Assessment Details
Property Tax Information as of
10/24/2025
Click on "Statement Details" to expand or collapse a tax statement.
* Please enter a valid date ** Please enter a valid date *
Statement Details |
| | TOTAL: | $0.00 | $0.00 | $0.00 | $0.00 | $0.00 | $0.00 |
|
| | $0.00 | $0.00 | $0.00 | $0.00 | $0.00 | $0.00 |
Values
| (+) Improvement Homesite Value: | + | $0 | |
| (+) Improvement Non-Homesite Value: | + | $387,457 | |
| (+) Land Homesite Value: | + | $0 | |
| (+) Land Non-Homesite Value: | + | $146,487 | |
| (+) Curr Use (HS): | + | $0 | $0 |
| (+) Curr Use (NHS): | + | $0 | $0 |
| | | -------------------------- | |
| (=) Market Value: | = | $533,944 | |
| (–) Productivity Loss: | – | $0 | |
| | | -------------------------- | |
| (=) Subtotal: | = | $533,944 | |
| (+) Senior Appraised Value: | + | $0 | |
| (+) Non-Senior Appraised Value: | + | $533,944 | |
| | | -------------------------- | |
| (=) Total Appraised Value: | = | $533,944 | |
| (–) Senior Exemption Loss: | – | $0 | |
| (–) Exemption Loss: | – | $0 | |
| | | -------------------------- | |
| (=) Taxable Value: | = | $533,944 | |
Taxing Jurisdiction
| Owner: | DAVE L MUNDY | | |
| % Ownership: | 100.0000000000% | | |
| Total Value: | N/A | | |
| Tax Area: | 0211 - 1-49F1E1H2L1 |
| CE | COUNTY CURRENT EXPENSE | N/A | N/A | N/A | N/A | | |
| CNTYDD | DEVELOPMENTAL DISABILITIES | N/A | N/A | N/A | N/A | | |
| CNTYVET | VETERANS RELIEF | N/A | N/A | N/A | N/A | | |
| MENTAL | MENTAL HEALTH | N/A | N/A | N/A | N/A | | |
| ROADS | COUNTY ROADS | N/A | N/A | N/A | N/A | | |
| ROADSCU | COUNTY ROADS TO CUR EXP | N/A | N/A | N/A | N/A | | |
| HOSP2CASH | HOSP DIST #2 GENERAL | N/A | N/A | N/A | N/A | | |
| SCH49CP | SCHOOL DIST #49 CAP PROJ | N/A | N/A | N/A | N/A | | |
| SCH49MO | SCHOOL DIST #49 EP & O | N/A | N/A | N/A | N/A | | |
| CONSERVE | CONSERVATION FUTURES | N/A | N/A | N/A | N/A | | |
| EMS1 | FIRE DIST #1 EMS | N/A | N/A | N/A | N/A | | |
| FD1 | FIRE DIST #1 GENERAL | N/A | N/A | N/A | N/A | | |
| LIB1 | LIBRARY DIST #1 GENERAL | N/A | N/A | N/A | N/A | | |
| PORTPT | PORT OF PT GENERAL | N/A | N/A | N/A | N/A | | |
| PORTPTIDD | PORT OF PT IDD 2019 | N/A | N/A | N/A | N/A | | |
| PUD1 | PUD #1 GENERAL | N/A | N/A | N/A | N/A | | |
| STATE | STATE SCHOOL PART 1 | N/A | N/A | N/A | N/A | | |
| STATE2 | STATE SCHOOL PART 2 | N/A | N/A | N/A | N/A | | |
| | Total Tax Rate: | N/A | | | | | |
| | | | | Taxes w/Current Exemptions: | N/A | | |
| | | | | Taxes w/o Exemptions: | N/A | | |
Improvement / Building
| Improvement #1: | Residential Bldg | State Code: | 19 | 0.0 sqft | Value: | $5,750 |
| Improvement #2: | Residential Bldg | State Code: | 11 | 1080.0 sqft | Value: | $381,707 |
| Bathrooms (#): | 1 (FULL) | Bedrooms (#): | 1 | | Exterior Wall: | SI/ST | Fireplace: | WD ST-GOOD | | Foundation: | CONPR | Heating/Cooling: | HPUMP | | Roof Cover: | METAL |   |   |
|
| | Type | Description | Class CD | Sub Class CD | Year Built | Area |
| | MA | Main Area | 4 | 1S | 2013 | 1080.0 |
| | PATIO | House Patio | 5 | 1S | 2017 | 384.0 |
| | HCPOR | House Concrete Porch | 5 | 1S | 2017 | 240.0 |
| | ADDN-D | Addition (Table Depreciated) | 5 | 1S | 2022 | 660.0 |
Sketch
| No sketches available for this property. |
Property Image
Land
| 1 | 4290-1374S | Residential Sites 1+/- Ac Fair/Avg Terr. Views | 1.0000 | 43560.00 | 0.00 | 0.00 | 1.00 | $110,000 | $0 |
| 2 | 1577A | Terr/Mtn/No View <6 Acres | 4.2800 | 186436.80 | 0.00 | 0.00 | 0.00 | $36,487 | $0 |
Roll Value History
| 2025 | N/A | N/A | N/A | N/A | N/A |
| 2024 | $370,611 | $139,829 | $0 | $510,440 | $510,440 |
| 2023 | $335,337 | $127,100 | $0 | $462,437 | $462,437 |
| 2022 | $288,668 | $119,960 | $0 | $408,628 | $408,628 |
| 2021 | $208,104 | $116,475 | $0 | $324,579 | $324,579 |
Deed and Sales History
| 1 | 02/19/2002 | SWD | Statutory Warranty Deed | SPARKMAN, DAVID R, BOOKHE | MUNDY, DAVE L, MORIARTY, MICHE | 0 | 0 | $75,000.00 | 94061 | 0 |
| 2 | 08/23/1995 | SWD | Statutory Warranty Deed | CASERIA, LAWRENCE R | SPARKMAN, DAVID R/BOOKHEIM, BE | 0 | 0 | $67,000.00 | 77667 | 0 |
Payout Agreement
| No payout information available.. |