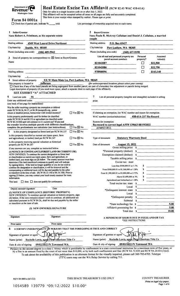
Property
Account |
| Property ID: | 22370 | Abbreviated Legal Description: | MOUNTAIN VIEW LARGE LOT LOT 1 (REVISED V1P98) |
| Parcel # / Geo ID: | 901361009 | Agent Code: | |
| Type: | Real | | |
| Tax Area: | 0211 - 1-49F1E1H2L1 | Land Use Code | 11 |
| Open Space: | N | DFL | N |
| Historic Property: | N | Remodel Property: | N |
| Multi-Family Redevelopment: | N | | |
| Township: | 29N | Section: | 36 |
| Range: | 1W |
Location |
| Address: | 117 TEMPLET DR CHIMACUM, WA 98325 | Mapsco: | 251/046 |
| Neighborhood: | S35 & S36 T29N R1W; BISHOP RIDGE; BISHOP & HUGGINS SP | Map ID: | |
| Neighborhood CD: | 4290 |
Owner |
| Name: | HARRISON HOLDINGS TRUST | Owner ID: | 93609 |
| Mailing Address: | 1240 W SIMS WAY #279 PORT TOWNSEND, WA 98368-3058 | % Ownership: | 100.0000000000% |
| | | Exemptions: | |
Pay Tax Due
There is currently No Amount Due on this property.
Taxes and Assessment Details
Property Tax Information as of
10/24/2025
Click on "Statement Details" to expand or collapse a tax statement.
* Please enter a valid date ** Please enter a valid date *
Statement Details |
| | TOTAL: | $0.00 | $0.00 | $0.00 | $0.00 | $0.00 | $0.00 |
|
| | $0.00 | $0.00 | $0.00 | $0.00 | $0.00 | $0.00 |
Values
| (+) Improvement Homesite Value: | + | $0 | |
| (+) Improvement Non-Homesite Value: | + | $143,858 | |
| (+) Land Homesite Value: | + | $0 | |
| (+) Land Non-Homesite Value: | + | $119,334 | |
| (+) Curr Use (HS): | + | $0 | $0 |
| (+) Curr Use (NHS): | + | $0 | $0 |
| | | -------------------------- | |
| (=) Market Value: | = | $263,192 | |
| (–) Productivity Loss: | – | $0 | |
| | | -------------------------- | |
| (=) Subtotal: | = | $263,192 | |
| (+) Senior Appraised Value: | + | $0 | |
| (+) Non-Senior Appraised Value: | + | $263,192 | |
| | | -------------------------- | |
| (=) Total Appraised Value: | = | $263,192 | |
| (–) Senior Exemption Loss: | – | $0 | |
| (–) Exemption Loss: | – | $0 | |
| | | -------------------------- | |
| (=) Taxable Value: | = | $263,192 | |
Taxing Jurisdiction
| Owner: | HARRISON HOLDINGS TRUST | | |
| % Ownership: | 100.0000000000% | | |
| Total Value: | N/A | | |
| Tax Area: | 0211 - 1-49F1E1H2L1 |
| CE | COUNTY CURRENT EXPENSE | N/A | N/A | N/A | N/A | | |
| CNTYDD | DEVELOPMENTAL DISABILITIES | N/A | N/A | N/A | N/A | | |
| CNTYVET | VETERANS RELIEF | N/A | N/A | N/A | N/A | | |
| MENTAL | MENTAL HEALTH | N/A | N/A | N/A | N/A | | |
| ROADS | COUNTY ROADS | N/A | N/A | N/A | N/A | | |
| ROADSCU | COUNTY ROADS TO CUR EXP | N/A | N/A | N/A | N/A | | |
| HOSP2CASH | HOSP DIST #2 GENERAL | N/A | N/A | N/A | N/A | | |
| SCH49CP | SCHOOL DIST #49 CAP PROJ | N/A | N/A | N/A | N/A | | |
| SCH49MO | SCHOOL DIST #49 EP & O | N/A | N/A | N/A | N/A | | |
| CONSERVE | CONSERVATION FUTURES | N/A | N/A | N/A | N/A | | |
| EMS1 | FIRE DIST #1 EMS | N/A | N/A | N/A | N/A | | |
| FD1 | FIRE DIST #1 GENERAL | N/A | N/A | N/A | N/A | | |
| LIB1 | LIBRARY DIST #1 GENERAL | N/A | N/A | N/A | N/A | | |
| PORTPT | PORT OF PT GENERAL | N/A | N/A | N/A | N/A | | |
| PORTPTIDD | PORT OF PT IDD 2019 | N/A | N/A | N/A | N/A | | |
| PUD1 | PUD #1 GENERAL | N/A | N/A | N/A | N/A | | |
| STATE | STATE SCHOOL PART 1 | N/A | N/A | N/A | N/A | | |
| STATE2 | STATE SCHOOL PART 2 | N/A | N/A | N/A | N/A | | |
| | Total Tax Rate: | N/A | | | | | |
| | | | | Taxes w/Current Exemptions: | N/A | | |
| | | | | Taxes w/o Exemptions: | N/A | | |
Improvement / Building
| Improvement #1: | Manufactured Home | State Code: | 11 | 1344.0 sqft | Value: | $143,858 |
| Bathrooms (#): | 2 (FULL) | Bedrooms (#): | 3 | | Exterior Wall: | PL/T1 | Fireplace: | WD ST-GOOD | | Floor Construction: | FRAME | Foundation: | PO&BL | | Heating/Cooling: | F/A | Roof Cover: | COMP |
|
| | Type | Description | Class CD | Sub Class CD | Year Built | Area |
| | MA | Main Area | 4- | MDBL | 2004 | 1344.0 |
| | MDECK | MH Deck | 4 | * | 2004 | 96.0 |
| | BARN | Barn (Table Not Dep) | 3 | * | 2004 | 800.0 |
| | ADDN | Addition (Table Not Dep) | 1 | * | 2004 | 72.0 |
| | MSKIRT_WD | MH Skirting - Wood | 4 | * | 2004 | 152.0 |
Sketch
Property Image
Land
| 1 | 4290-1375S | Residential Sites 1+/- Ac SomeTerritorial Views | 1.0000 | 43560.00 | 0.00 | 0.00 | 1.00 | $88,000 | $0 |
| 2 | 1677A | Terr/Mtn/No View 6-15 Acres | 8.4400 | 367646.40 | 0.00 | 0.00 | 0.00 | $31,334 | $0 |
Roll Value History
| 2025 | N/A | N/A | N/A | N/A | N/A |
| 2024 | $137,603 | $113,909 | $0 | $251,512 | $251,512 |
| 2023 | $131,349 | $102,430 | $0 | $233,779 | $233,779 |
| 2022 | $122,898 | $95,320 | $0 | $218,218 | $218,218 |
| 2021 | $113,794 | $91,063 | $0 | $204,857 | $204,857 |
Deed and Sales History
| 1 | 05/27/2015 | QCD | Quit Claim Deed | CHARLES V PACE | HARRISON HOLDINGS TRUST | | | | 123249 | |
| 2 | 09/16/2013 | BSD | Bargain and Sale Deed | BENEFICIAL FINANCIAL INC | CHARLES V PACE | | | $99,000.00 | 120017 | |
| 3 | 10/15/2010 | SWD | Statutory Warranty Deed | SCHLEIGER, JOHN L | BENEFICIAL FINANCIAL INC | | | $0.00 | 116129 | 0 |
| 4 | 09/24/2003 | QCD | Quit Claim Deed | ASKIN, KAREN | SCHLEIGER, JON L | 0 | 0 | $29,702.00 | 98360 | 0 |
| 5 | 10/03/1999 | SWD | Statutory Warranty Deed | TEMPLET, ALLEN PAUL/BETH | ASKIN, KAREN | 0 | 0 | $53,000.00 | 88270 | 0 |
Payout Agreement
| No payout information available.. |