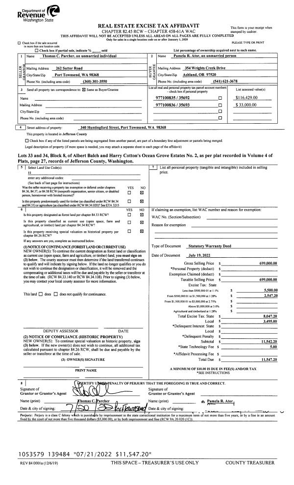
Property
Account |
| Property ID: | 22376 | Abbreviated Legal Description: | FERN LEAF FARM SHORT PLAT LOT 1 SUBJ/REST COVT#538112 |
| Parcel # / Geo ID: | 901361021 | Agent Code: | |
| Type: | Real | | |
| Tax Area: | 0211 - 1-49F1E1H2L1 | Land Use Code | 19 |
| Open Space: | N | DFL | N |
| Historic Property: | N | Remodel Property: | N |
| Multi-Family Redevelopment: | N | | |
| Township: | 29N | Section: | 36 |
| Range: | 1W |
Location |
| Address: | 501 TALL TREE LN CHIMACUM, WA 98325 | Mapsco: | 230/001 |
| Neighborhood: | S35 & S36 T29N R1W; BISHOP RIDGE; BISHOP & HUGGINS SP | Map ID: | |
| Neighborhood CD: | 4290 |
Owner |
| Name: | NOVA FARM LLC | Owner ID: | 98921 |
| Mailing Address: | 42 TALL TREE LN CHIMACUM, WA 98325-7727 | % Ownership: | 100.0000000000% |
| | | Exemptions: | |
Pay Tax Due
There is currently No Amount Due on this property.
Taxes and Assessment Details
Property Tax Information as of
10/24/2025
Click on "Statement Details" to expand or collapse a tax statement.
* Please enter a valid date ** Please enter a valid date *
Statement Details |
| | TOTAL: | $0.00 | $0.00 | $0.00 | $0.00 | $0.00 | $0.00 |
|
| | $0.00 | $0.00 | $0.00 | $0.00 | $0.00 | $0.00 |
Values
| (+) Improvement Homesite Value: | + | $0 | |
| (+) Improvement Non-Homesite Value: | + | $80,688 | |
| (+) Land Homesite Value: | + | $0 | |
| (+) Land Non-Homesite Value: | + | $242,064 | |
| (+) Curr Use (HS): | + | $0 | $0 |
| (+) Curr Use (NHS): | + | $0 | $0 |
| | | -------------------------- | |
| (=) Market Value: | = | $322,752 | |
| (–) Productivity Loss: | – | $0 | |
| | | -------------------------- | |
| (=) Subtotal: | = | $322,752 | |
| (+) Senior Appraised Value: | + | $0 | |
| (+) Non-Senior Appraised Value: | + | $322,752 | |
| | | -------------------------- | |
| (=) Total Appraised Value: | = | $322,752 | |
| (–) Senior Exemption Loss: | – | $0 | |
| (–) Exemption Loss: | – | $0 | |
| | | -------------------------- | |
| (=) Taxable Value: | = | $322,752 | |
Taxing Jurisdiction
| Owner: | NOVA FARM LLC | | |
| % Ownership: | 100.0000000000% | | |
| Total Value: | N/A | | |
| Tax Area: | 0211 - 1-49F1E1H2L1 |
| CE | COUNTY CURRENT EXPENSE | N/A | N/A | N/A | N/A | | |
| CNTYDD | DEVELOPMENTAL DISABILITIES | N/A | N/A | N/A | N/A | | |
| CNTYVET | VETERANS RELIEF | N/A | N/A | N/A | N/A | | |
| MENTAL | MENTAL HEALTH | N/A | N/A | N/A | N/A | | |
| ROADS | COUNTY ROADS | N/A | N/A | N/A | N/A | | |
| ROADSCU | COUNTY ROADS TO CUR EXP | N/A | N/A | N/A | N/A | | |
| HOSP2CASH | HOSP DIST #2 GENERAL | N/A | N/A | N/A | N/A | | |
| SCH49CP | SCHOOL DIST #49 CAP PROJ | N/A | N/A | N/A | N/A | | |
| SCH49MO | SCHOOL DIST #49 EP & O | N/A | N/A | N/A | N/A | | |
| CONSERVE | CONSERVATION FUTURES | N/A | N/A | N/A | N/A | | |
| EMS1 | FIRE DIST #1 EMS | N/A | N/A | N/A | N/A | | |
| FD1 | FIRE DIST #1 GENERAL | N/A | N/A | N/A | N/A | | |
| LIB1 | LIBRARY DIST #1 GENERAL | N/A | N/A | N/A | N/A | | |
| PORTPT | PORT OF PT GENERAL | N/A | N/A | N/A | N/A | | |
| PORTPTIDD | PORT OF PT IDD 2019 | N/A | N/A | N/A | N/A | | |
| PUD1 | PUD #1 GENERAL | N/A | N/A | N/A | N/A | | |
| STATE | STATE SCHOOL PART 1 | N/A | N/A | N/A | N/A | | |
| STATE2 | STATE SCHOOL PART 2 | N/A | N/A | N/A | N/A | | |
| | Total Tax Rate: | N/A | | | | | |
| | | | | Taxes w/Current Exemptions: | N/A | | |
| | | | | Taxes w/o Exemptions: | N/A | | |
Improvement / Building
| Improvement #1: | Residential Bldg | State Code: | 19 | 248.0 sqft | Value: | $38,388 |
| Exterior Wall: | SI/ST | Floor Construction: | FRAME | | Foundation: | PO&BL | Heating/Cooling: | OTHER | | Inside Verify: | NO | Interior Finish: | FIN | | Roof Cover: | COMP |   |   |
|
| | Type | Description | Class CD | Sub Class CD | Year Built | Area |
| | MA | Main Area | 4 | C1S | 2023 | 248.0 |
| | CDECK | Cabin Deck | 4 | C1S | 2023 | 200.0 |
| | SHED | Shed (Table Not Dep) | 3 | C1S | 2023 | 40.0 |
| Improvement #2: | Residential Bldg | State Code: | 19 | 416.0 sqft | Value: | $42,300 |
| Exterior Wall: | PL/T1 | Floor Construction: | FRAME | | Foundation: | PO&BL | Heating/Cooling: | ELBB | | Interior Finish: | FIN | Roof Cover: | COMP |
|
| | Type | Description | Class CD | Sub Class CD | Year Built | Area |
| | MA | Main Area | 3+ | C2S | 2021 | 200.0 |
| | MA2 | Second Floor Main Area | 3 | C2S | 2021 | 216.0 |
| | SHED | Shed (Table Not Dep) | 3 | * | 2021 | 192.0 |
Sketch
Property Image
Land
| 1 | 1775A | Terr/Mtn View >15-25 Acres | 21.4900 | 936104.40 | 0.00 | 0.00 | 0.00 | $159,564 | $0 |
| 2 | 4290-1374S | Residential Sites 1+/- Ac Fair/Avg Terr. Views | 1.0000 | 43560.00 | 0.00 | 0.00 | 1.00 | $82,500 | $0 |
Roll Value History
| 2025 | N/A | N/A | N/A | N/A | N/A |
| 2024 | $77,180 | $231,061 | $0 | $308,241 | $308,241 |
| 2023 | $73,672 | $213,685 | $0 | $287,357 | $287,357 |
| 2022 | $0 | $198,940 | $0 | $198,940 | $198,940 |
| 2021 | $0 | $199,938 | $0 | $199,938 | $199,938 |
Deed and Sales History
| 1 | 03/26/2018 | SWD | Statutory Warranty Deed | JAMES PRYDE | NOVA FARM LLC | | | $400,000.00 | 129840 | |
|   | |
Payout Agreement
| No payout information available.. |