Property
Account |
| Property ID: | 22391 | Abbreviated Legal Description: | VIEW RIDGE LARGE LOT SUBDIVISION LOT C SUBJ/EASE |
| Parcel # / Geo ID: | 901365001 | Agent Code: | |
| Type: | Real | | |
| Tax Area: | 0211 - 1-49F1E1H2L1 | Land Use Code | 11 |
| Open Space: | N | DFL | N |
| Historic Property: | N | Remodel Property: | N |
| Multi-Family Redevelopment: | N | | |
| Township: | 29N | Section: | 36 |
| Range: | 1W |
Location |
| Address: | 5690 BEAVER VALLEY RD CHIMACUM, WA 98325 | Mapsco: | 254/082 |
| Neighborhood: | S13, S24, & S25 T29N R1W; VIEW RIDGE LARGE LOT SUBDIVISION | Map ID: | |
| Neighborhood CD: | 4260 |
Owner |
| Name: | JOSE C BORRAYO-JUAREZ & JILLIAN BORRAYO | Owner ID: | 89516 |
| Mailing Address: | 5690 BEAVER VALLEY RD CHIMACUM, WA 98325-8705 | % Ownership: | 100.0000000000% |
| | | Exemptions: | |
Pay Tax Due
There is currently No Amount Due on this property.
Taxes and Assessment Details
Property Tax Information as of
10/24/2025
Click on "Statement Details" to expand or collapse a tax statement.
* Please enter a valid date ** Please enter a valid date *
Statement Details |
| | TOTAL: | $0.00 | $0.00 | $0.00 | $0.00 | $0.00 | $0.00 |
|
| | $0.00 | $0.00 | $0.00 | $0.00 | $0.00 | $0.00 |
Values
| (+) Improvement Homesite Value: | + | $0 | |
| (+) Improvement Non-Homesite Value: | + | $444,400 | |
| (+) Land Homesite Value: | + | $0 | |
| (+) Land Non-Homesite Value: | + | $175,208 | |
| (+) Curr Use (HS): | + | $0 | $0 |
| (+) Curr Use (NHS): | + | $0 | $0 |
| | | -------------------------- | |
| (=) Market Value: | = | $619,608 | |
| (–) Productivity Loss: | – | $0 | |
| | | -------------------------- | |
| (=) Subtotal: | = | $619,608 | |
| (+) Senior Appraised Value: | + | $0 | |
| (+) Non-Senior Appraised Value: | + | $619,608 | |
| | | -------------------------- | |
| (=) Total Appraised Value: | = | $619,608 | |
| (–) Senior Exemption Loss: | – | $0 | |
| (–) Exemption Loss: | – | $0 | |
| | | -------------------------- | |
| (=) Taxable Value: | = | $619,608 | |
Taxing Jurisdiction
| Owner: | JOSE C BORRAYO-JUAREZ & JILLIAN BORRAYO | | |
| % Ownership: | 100.0000000000% | | |
| Total Value: | N/A | | |
| Tax Area: | 0211 - 1-49F1E1H2L1 |
| CE | COUNTY CURRENT EXPENSE | N/A | N/A | N/A | N/A | | |
| CNTYDD | DEVELOPMENTAL DISABILITIES | N/A | N/A | N/A | N/A | | |
| CNTYVET | VETERANS RELIEF | N/A | N/A | N/A | N/A | | |
| MENTAL | MENTAL HEALTH | N/A | N/A | N/A | N/A | | |
| ROADS | COUNTY ROADS | N/A | N/A | N/A | N/A | | |
| ROADSCU | COUNTY ROADS TO CUR EXP | N/A | N/A | N/A | N/A | | |
| HOSP2CASH | HOSP DIST #2 GENERAL | N/A | N/A | N/A | N/A | | |
| SCH49CP | SCHOOL DIST #49 CAP PROJ | N/A | N/A | N/A | N/A | | |
| SCH49MO | SCHOOL DIST #49 EP & O | N/A | N/A | N/A | N/A | | |
| CONSERVE | CONSERVATION FUTURES | N/A | N/A | N/A | N/A | | |
| EMS1 | FIRE DIST #1 EMS | N/A | N/A | N/A | N/A | | |
| FD1 | FIRE DIST #1 GENERAL | N/A | N/A | N/A | N/A | | |
| LIB1 | LIBRARY DIST #1 GENERAL | N/A | N/A | N/A | N/A | | |
| PORTPT | PORT OF PT GENERAL | N/A | N/A | N/A | N/A | | |
| PORTPTIDD | PORT OF PT IDD 2019 | N/A | N/A | N/A | N/A | | |
| PUD1 | PUD #1 GENERAL | N/A | N/A | N/A | N/A | | |
| STATE | STATE SCHOOL PART 1 | N/A | N/A | N/A | N/A | | |
| STATE2 | STATE SCHOOL PART 2 | N/A | N/A | N/A | N/A | | |
| | Total Tax Rate: | N/A | | | | | |
| | | | | Taxes w/Current Exemptions: | N/A | | |
| | | | | Taxes w/o Exemptions: | N/A | | |
Improvement / Building
| Improvement #1: | Residential Bldg | State Code: | 11 | 1775.0 sqft | Value: | $444,400 |
| Bathrooms (#): | 3 (FULL) | Bedrooms (#): | 3 | | Exterior Wall: | SI/ST | Fireplace: | SIN 2-GOOD | | Fireplace: | WD ST-GOOD | Floor Construction: | FRAME | | Foundation: | CONPR | Heating/Cooling: | F/A | | Roof Cover: | COMP |   |   |
|
| | Type | Description | Class CD | Sub Class CD | Year Built | Area |
| | MA | Main Area | 4 | 15SF | 1996 | 1280.0 |
| | MA2 | Second Floor Main Area | 4 | 15SF | 1996 | 495.0 |
| | PATIO | House Patio | 4 | * | 1996 | 350.0 |
| | HDECK | House Deck | 4 | * | 1996 | 620.0 |
| | BSMTU | House basement unfinished | 2 | 15SF | 1996 | 640.0 |
| | SHED | Shed (Table Not Dep) | 3 | * | 1996 | 192.0 |
| | BSMTF | House basement finished | 3 | * | 1996 | 640.0 |
| | HLOFT | House Loft | 4 | * | 1996 | 255.0 |
| | HRPO | House Roof Patio | 4 | * | 1996 | 24.0 |
| | CONCD | Concrete Drive | 3 | * | 1996 | 665.0 |
Sketch
Property Image
Land
| 1 | 1573A | Terr/Mtn/No View <6 Acres | 4.6000 | 200376.00 | 0.00 | 0.00 | 0.00 | $59,708 | $0 |
| 2 | 4260-1374S | Residential Sites 1+/- Ac VG Territorial Views | 1.0000 | 43560.00 | 0.00 | 0.00 | 1.00 | $115,500 | $0 |
Roll Value History
| 2025 | N/A | N/A | N/A | N/A | N/A |
| 2024 | $425,079 | $167,244 | $0 | $592,323 | $592,323 |
| 2023 | $405,757 | $151,520 | $0 | $557,277 | $557,277 |
| 2022 | $395,640 | $114,160 | $0 | $509,800 | $509,800 |
| 2021 | $347,053 | $108,500 | $0 | $455,553 | $455,553 |
Deed and Sales History
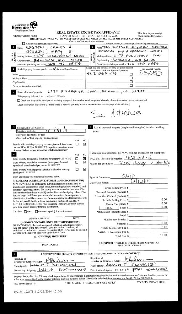
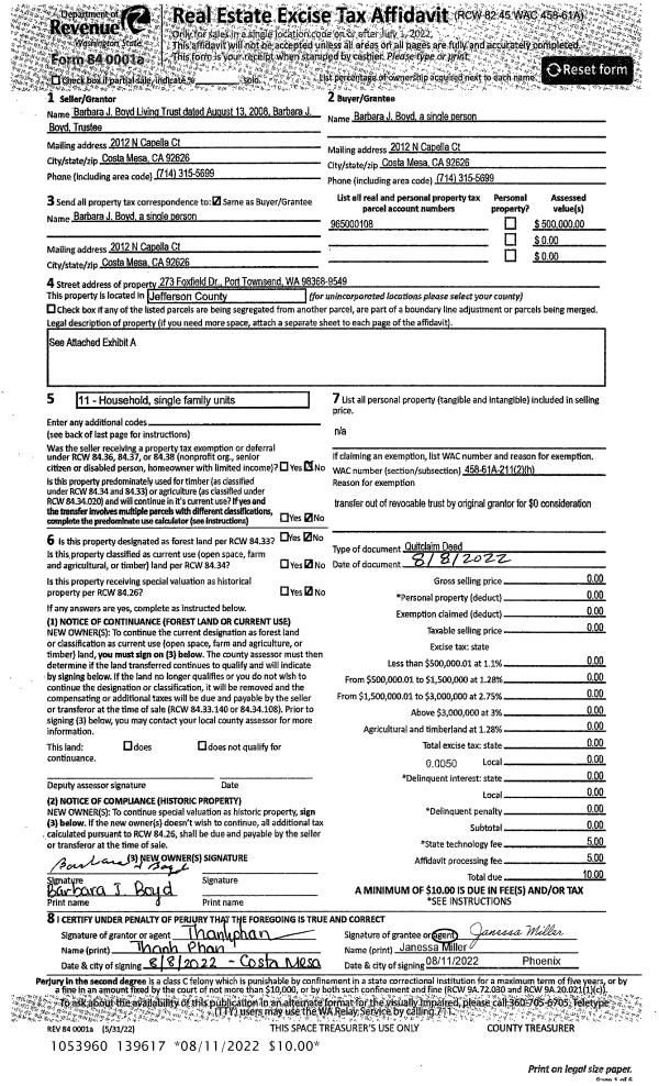
| 1 | 08/01/2019 | SWD | Statutory Warranty Deed | KEVIN W & AMANDA J NEEDLES | JOSE C BORRAYO-JUAREZ & JILLIAN BORRAYO | | | $464,000.00 | 132923 | |
| 2 | 12/28/2015 | SWD | Statutory Warranty Deed | ROBERT M BROWN III TRSTE | KEVIN W & AMANDA J NEEDLES | | | $310,000.00 | 124692 | |
| 3 | 01/09/2014 | SWD | Statutory Warranty Deed | EXPERIENCE MISSION INC | ROBERT M BROWN III TRSTE | | | $270,000.00 | 120594 | |
| 4 | 03/25/2008 | SWD | Statutory Warranty Deed | TOY, RANDY W/SANDRA K | EXPERIENCE MISSION INC | | | $400,000.00 | 111057 | 0 |
| 5 | 12/15/2003 | SWD | Statutory Warranty Deed | CRANSTON, RANDY/DIANNE R | TOY, RANDY W/SANDRA K | 0 | 0 | $289,000.00 | 99172 | 0 |
Payout Agreement
| No payout information available.. |