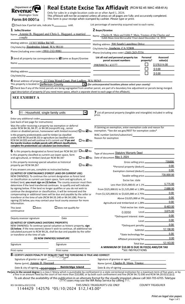
Property
Account |
| Property ID: | 22813 | Abbreviated Legal Description: | S25 T29 R2W S1/2 NE NE TGTH/EASE #501728 |
| Parcel # / Geo ID: | 902251005 | Agent Code: | |
| Type: | Real | | |
| Tax Area: | 0151 - 1-50F5E5H2L1 | Land Use Code | 18 |
| Open Space: | N | DFL | N |
| Historic Property: | N | Remodel Property: | N |
| Multi-Family Redevelopment: | N | | |
| Township: | 29N | Section: | 25 |
| Range: | 2W |
Location |
| Address: | 196 BENTLEY PL PORT TOWNSEND, WA 98368 | Mapsco: | 115/004 |
| Neighborhood: | S25 - 28 T29 R2W | Map ID: | |
| Neighborhood CD: | 5470 |
Owner |
| Name: | CHESTER W MC VAY | Owner ID: | 104570 |
| Mailing Address: | 3611 TAHOMA PL W UNIVERSITY PLACE, WA 98466-2142 | % Ownership: | 100.0000000000% |
| | | Exemptions: | |
Pay Tax Due
There is currently No Amount Due on this property.
Taxes and Assessment Details
Property Tax Information as of
10/24/2025
Click on "Statement Details" to expand or collapse a tax statement.
* Please enter a valid date ** Please enter a valid date *
Statement Details |
| | TOTAL: | $0.00 | $0.00 | $0.00 | $0.00 | $0.00 | $0.00 |
|
| | $0.00 | $0.00 | $0.00 | $0.00 | $0.00 | $0.00 |
Values
| (+) Improvement Homesite Value: | + | $0 | |
| (+) Improvement Non-Homesite Value: | + | $23,000 | |
| (+) Land Homesite Value: | + | $0 | |
| (+) Land Non-Homesite Value: | + | $155,877 | |
| (+) Curr Use (HS): | + | $0 | $0 |
| (+) Curr Use (NHS): | + | $0 | $0 |
| | | -------------------------- | |
| (=) Market Value: | = | $178,877 | |
| (–) Productivity Loss: | – | $0 | |
| | | -------------------------- | |
| (=) Subtotal: | = | $178,877 | |
| (+) Senior Appraised Value: | + | $0 | |
| (+) Non-Senior Appraised Value: | + | $178,877 | |
| | | -------------------------- | |
| (=) Total Appraised Value: | = | $178,877 | |
| (–) Senior Exemption Loss: | – | $0 | |
| (–) Exemption Loss: | – | $0 | |
| | | -------------------------- | |
| (=) Taxable Value: | = | $178,877 | |
Taxing Jurisdiction
| Owner: | CHESTER W MC VAY | | |
| % Ownership: | 100.0000000000% | | |
| Total Value: | N/A | | |
| Tax Area: | 0151 - 1-50F5E5H2L1 |
| CE | COUNTY CURRENT EXPENSE | N/A | N/A | N/A | N/A | | |
| CNTYDD | DEVELOPMENTAL DISABILITIES | N/A | N/A | N/A | N/A | | |
| CNTYVET | VETERANS RELIEF | N/A | N/A | N/A | N/A | | |
| MENTAL | MENTAL HEALTH | N/A | N/A | N/A | N/A | | |
| ROADS | COUNTY ROADS | N/A | N/A | N/A | N/A | | |
| ROADSCU | COUNTY ROADS TO CUR EXP | N/A | N/A | N/A | N/A | | |
| HOSP2CASH | HOSP DIST #2 GENERAL | N/A | N/A | N/A | N/A | | |
| SCH50BOND | SCHOOL DIST #50 BOND 2016 | N/A | N/A | N/A | N/A | | |
| SCH50CP | SCHOOL DIST #50 CAP PROJ | N/A | N/A | N/A | N/A | | |
| SCH50MO | SCHOOL DIST #50 EP & O | N/A | N/A | N/A | N/A | | |
| CONSERVE | CONSERVATION FUTURES | N/A | N/A | N/A | N/A | | |
| EMS5 | FIRE DIST #5 EMS | N/A | N/A | N/A | N/A | | |
| FD5 | FIRE DIST #5 GENERAL | N/A | N/A | N/A | N/A | | |
| FD5BOND | FIRE DIST #5 BOND 2016 | N/A | N/A | N/A | N/A | | |
| LIB1 | LIBRARY DIST #1 GENERAL | N/A | N/A | N/A | N/A | | |
| PORTPT | PORT OF PT GENERAL | N/A | N/A | N/A | N/A | | |
| PORTPTIDD | PORT OF PT IDD 2019 | N/A | N/A | N/A | N/A | | |
| PUD1 | PUD #1 GENERAL | N/A | N/A | N/A | N/A | | |
| STATE | STATE SCHOOL PART 1 | N/A | N/A | N/A | N/A | | |
| STATE2 | STATE SCHOOL PART 2 | N/A | N/A | N/A | N/A | | |
| | Total Tax Rate: | N/A | | | | | |
| | | | | Taxes w/Current Exemptions: | N/A | | |
| | | | | Taxes w/o Exemptions: | N/A | | |
Improvement / Building
| Improvement #1: | Residential Bldg | State Code: | 88 | 0.0 sqft | Value: | $23,000 |
Sketch
| No sketches available for this property. |
Property Image
Land
| 1 | 9810 | Well, Septic, & Power | 1.0000 | 43560.00 | 0.00 | 0.00 | 1.00 | $8,800 | $0 |
| 2 | 5470-1375S | Terr/Fair View Sites 1+/- Acre | 1.0000 | 43560.00 | 0.00 | 0.00 | 1.00 | $55,000 | $0 |
| 3 | 1778A | Terr/Mtn View >15-25 Acres | 6.3400 | 276170.40 | 0.00 | 0.00 | 0.00 | $30,075 | $0 |
| 4 | 1778A | Terr/Mtn View >15-25 Acres | 13.0700 | 569329.20 | 0.00 | 0.00 | 0.00 | $62,002 | $0 |
Roll Value History
| 2025 | N/A | N/A | N/A | N/A | N/A |
| 2024 | $23,000 | $155,877 | $0 | $178,877 | $178,877 |
| 2023 | $23,760 | $144,971 | $0 | $168,731 | $168,731 |
| 2022 | $21,600 | $130,788 | $0 | $152,388 | $152,388 |
| 2021 | $18,000 | $114,115 | $0 | $132,115 | $132,115 |
Deed and Sales History
| 1 | 08/31/2021 | QCD | Quit Claim Deed | CHESTER W & JEAN A MC VAY | CHESTER W MC VAY | | | | 137766 | |
| 2 | 12/07/2016 | BSD | Bargain and Sale Deed | UMPQUA BANK | CHESTER W & JEAN A MC VAY | | | | 126799 | |
| 3 | 04/06/2016 | TRED | Trustee Deed | EDWIN VYHMEISTER | UMPQUA BANK | | | | 125354 | |
| 4 | 07/12/1993 | REC | Real Estate Contract | BARNETT, LYNN/MARLENE | VYHEISTER, EDWIN/INGRID | 0 | 0 | $0.00 | 71654 | 0 |
Payout Agreement
| No payout information available.. |