Property
Account |
| Property ID: | 22960 | Abbreviated Legal Description: | S4 T29 R1E TX 19&S 8'OF N410'OF W412.5'IN N1/2 SW1/4 NW1/4 |
| Parcel # / Geo ID: | 921042015 | Agent Code: | |
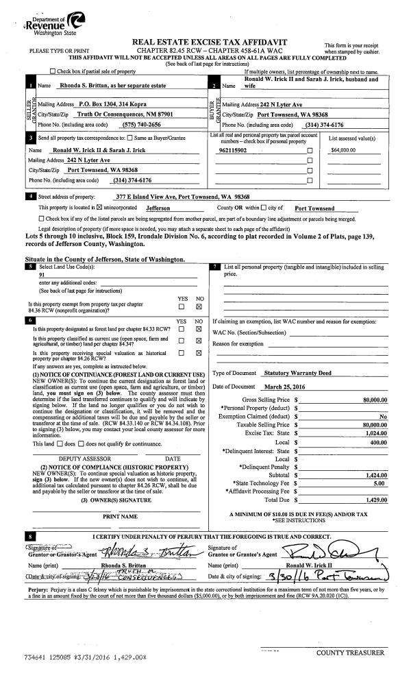
| Type: | Real | | |
| Tax Area: | 0211 - 1-49F1E1H2L1 | Land Use Code | 11 |
| Open Space: | N | DFL | N |
| Historic Property: | N | Remodel Property: | N |
| Multi-Family Redevelopment: | N | | |
| Township: | 29N | Section: | 4 |
| Range: | 1E |
Location |
| Address: | 61 MEADE RD NORDLAND, WA 98358 | Mapsco: | 166/001 |
| Neighborhood: | SEC 4,5 T29 R1E LESS PLATTED INCL MINNIHAN & DR BILLS SP | Map ID: | |
| Neighborhood CD: | 4610 |
Owner |
| Name: | MARCIA G WOOTAN | Owner ID: | 88064 |
| Mailing Address: | 61 MEADE RD NORDLAND, WA 98358-9666 | % Ownership: | 100.0000000000% |
| | | Exemptions: | |
Pay Tax Due
There is currently No Amount Due on this property.
Taxes and Assessment Details
Property Tax Information as of
10/24/2025
Click on "Statement Details" to expand or collapse a tax statement.
* Please enter a valid date ** Please enter a valid date *
Statement Details |
| | TOTAL: | $0.00 | $0.00 | $0.00 | $0.00 | $0.00 | $0.00 |
|
| | $0.00 | $0.00 | $0.00 | $0.00 | $0.00 | $0.00 |
Values
| (+) Improvement Homesite Value: | + | $0 | |
| (+) Improvement Non-Homesite Value: | + | $312,913 | |
| (+) Land Homesite Value: | + | $0 | |
| (+) Land Non-Homesite Value: | + | $256,619 | |
| (+) Curr Use (HS): | + | $0 | $0 |
| (+) Curr Use (NHS): | + | $0 | $0 |
| | | -------------------------- | |
| (=) Market Value: | = | $569,532 | |
| (–) Productivity Loss: | – | $0 | |
| | | -------------------------- | |
| (=) Subtotal: | = | $569,532 | |
| (+) Senior Appraised Value: | + | $0 | |
| (+) Non-Senior Appraised Value: | + | $569,532 | |
| | | -------------------------- | |
| (=) Total Appraised Value: | = | $569,532 | |
| (–) Senior Exemption Loss: | – | $0 | |
| (–) Exemption Loss: | – | $0 | |
| | | -------------------------- | |
| (=) Taxable Value: | = | $569,532 | |
Taxing Jurisdiction
| Owner: | MARCIA G WOOTAN | | |
| % Ownership: | 100.0000000000% | | |
| Total Value: | N/A | | |
| Tax Area: | 0211 - 1-49F1E1H2L1 |
| CE | COUNTY CURRENT EXPENSE | N/A | N/A | N/A | N/A | | |
| CNTYDD | DEVELOPMENTAL DISABILITIES | N/A | N/A | N/A | N/A | | |
| CNTYVET | VETERANS RELIEF | N/A | N/A | N/A | N/A | | |
| MENTAL | MENTAL HEALTH | N/A | N/A | N/A | N/A | | |
| ROADS | COUNTY ROADS | N/A | N/A | N/A | N/A | | |
| ROADSCU | COUNTY ROADS TO CUR EXP | N/A | N/A | N/A | N/A | | |
| HOSP2CASH | HOSP DIST #2 GENERAL | N/A | N/A | N/A | N/A | | |
| SCH49CP | SCHOOL DIST #49 CAP PROJ | N/A | N/A | N/A | N/A | | |
| SCH49MO | SCHOOL DIST #49 EP & O | N/A | N/A | N/A | N/A | | |
| CONSERVE | CONSERVATION FUTURES | N/A | N/A | N/A | N/A | | |
| EMS1 | FIRE DIST #1 EMS | N/A | N/A | N/A | N/A | | |
| FD1 | FIRE DIST #1 GENERAL | N/A | N/A | N/A | N/A | | |
| LIB1 | LIBRARY DIST #1 GENERAL | N/A | N/A | N/A | N/A | | |
| PORTPT | PORT OF PT GENERAL | N/A | N/A | N/A | N/A | | |
| PORTPTIDD | PORT OF PT IDD 2019 | N/A | N/A | N/A | N/A | | |
| PUD1 | PUD #1 GENERAL | N/A | N/A | N/A | N/A | | |
| STATE | STATE SCHOOL PART 1 | N/A | N/A | N/A | N/A | | |
| STATE2 | STATE SCHOOL PART 2 | N/A | N/A | N/A | N/A | | |
| | Total Tax Rate: | N/A | | | | | |
| | | | | Taxes w/Current Exemptions: | N/A | | |
| | | | | Taxes w/o Exemptions: | N/A | | |
Improvement / Building
| Improvement #1: | Residential Bldg | State Code: | 11 | 1774.0 sqft | Value: | $312,913 |
| Bathrooms (#): | 2 (FULL) | Bedrooms (#): | 3 | | Exterior Wall: | SI/ST | Fireplace: | WD ST-AVG | | Floor Construction: | FRAME | Foundation: | CONPR | | Heating/Cooling: | ELBB | Inside Verify: | YES-FIX | | Roof Cover: | METAL |   |   |
|
| | Type | Description | Class CD | Sub Class CD | Year Built | Area |
| | MA | Main Area | 3 | 1S | 1974 | 1774.0 |
| | HDECK | House Deck | 3 | 1S | 1974 | 272.0 |
| | HENCL | House Enclosure | 3 | 1S | 1974 | 280.0 |
| | GATT | House Attached Garage | 3 | 1S | 1974 | 480.0 |
| | CARPTN | Carport W/O Floor | 2 | 1S | 1974 | 680.0 |
| | GDET | Detached Garage | 2 | 1S | 1974 | 1440.0 |
Sketch
Property Image
Land
| 1 | 4610-1355S | Residential Sites 1+/- Ac Water Views | 1.0000 | 43560.00 | 0.00 | 0.00 | 1.00 | $209,000 | $0 |
| 2 | 4610-1545A | Marrowstone Is Excellent Wtr View <6 Acres | 1.1700 | 50965.20 | 0.00 | 0.00 | 0.00 | $47,619 | $0 |
Roll Value History
| 2025 | N/A | N/A | N/A | N/A | N/A |
| 2024 | $299,308 | $244,955 | $0 | $544,263 | $544,263 |
| 2023 | $285,703 | $228,290 | $0 | $513,993 | $513,993 |
| 2022 | $275,965 | $220,950 | $0 | $496,915 | $496,915 |
| 2021 | $242,075 | $197,100 | $0 | $439,175 | $439,175 |
Deed and Sales History
| 1 | 09/10/2019 | LOP | Lack of Probate | MARCIA G W WOOTAN | MARCIA G WOOTAN | | | | 133100 | |
| 2 | 12/08/2009 | QCD | Quit Claim Deed | WOOTAN, MARCIA G W AKA WI | WOOTAN, MARCIA G W, WOOTAN, GE | 0 | 0 | $0.00 | 113774 | 0 |
| 3 | 03/01/1993 | SWD | Statutory Warranty Deed | WERSCHKULL, PAUL T | WIECHERT, JOHN H/MARCIA G | 0 | 0 | $257,500.00 | 70521 | 0 |
Payout Agreement
| No payout information available.. |