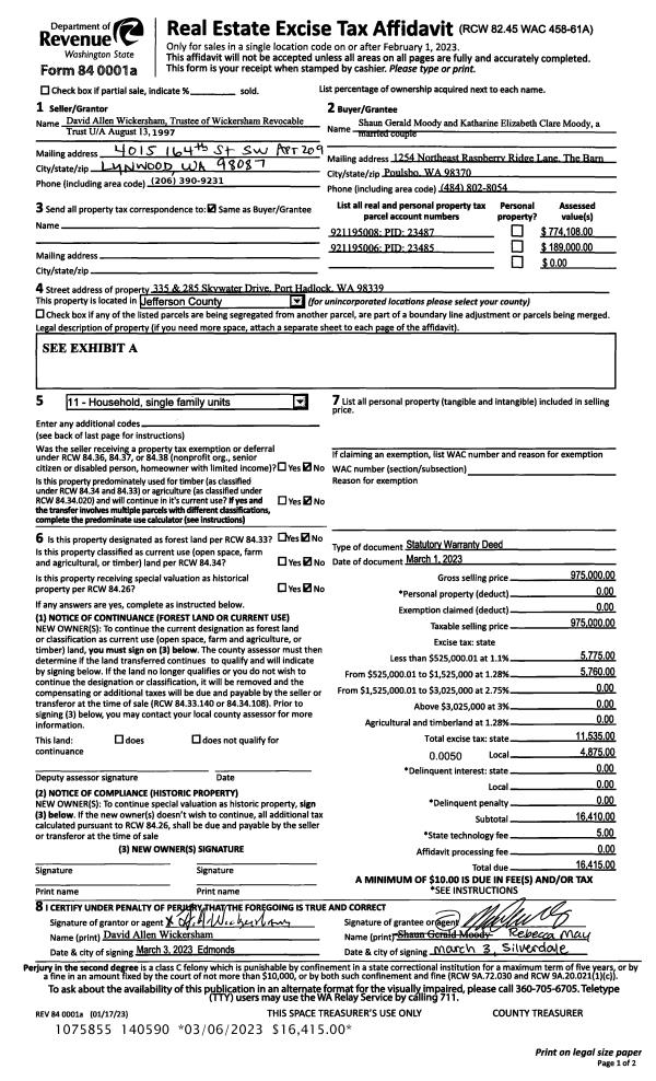
Property
Account |
| Property ID: | 23023 | Abbreviated Legal Description: | S4 T29 R1E TAX 70 WITH EASE |
| Parcel # / Geo ID: | 921043029 | Agent Code: | |
| Type: | Real | | |
| Tax Area: | 0211 - 1-49F1E1H2L1 | Land Use Code | 11 |
| Open Space: | N | DFL | N |
| Historic Property: | N | Remodel Property: | N |
| Multi-Family Redevelopment: | N | | |
| Township: | 29N | Section: | 4 |
| Range: | 1E |
Location |
| Address: | 1109 EAST MARROWSTONE RD NORDLAND, WA 98358 | Mapsco: | 166/026 |
| Neighborhood: | SEC 4,5 T29 R1E LESS PLATTED INCL MINNIHAN & DR BILLS SP | Map ID: | |
| Neighborhood CD: | 4610 |
Owner |
| Name: | DAVID A LORD TRUSTEE | Owner ID: | 21090 |
| Mailing Address: | JEANNETTE M LORD TRUSTEE LORD LIVING TRUST 1109 E MARROWSTONE RD NORDLAND, WA 98358-9677 | % Ownership: | 100.0000000000% |
| | | Exemptions: | |
Pay Tax Due
There is currently No Amount Due on this property.
Taxes and Assessment Details
Property Tax Information as of
10/24/2025
Click on "Statement Details" to expand or collapse a tax statement.
* Please enter a valid date ** Please enter a valid date *
Statement Details |
| | TOTAL: | $0.00 | $0.00 | $0.00 | $0.00 | $0.00 | $0.00 |
|
| | $0.00 | $0.00 | $0.00 | $0.00 | $0.00 | $0.00 |
Values
| (+) Improvement Homesite Value: | + | $267,322 | |
| (+) Improvement Non-Homesite Value: | + | $21,042 | |
| (+) Land Homesite Value: | + | $213,400 | |
| (+) Land Non-Homesite Value: | + | $649 | |
| (+) Curr Use (HS): | + | $0 | $0 |
| (+) Curr Use (NHS): | + | $0 | $0 |
| | | -------------------------- | |
| (=) Market Value: | = | $502,413 | |
| (–) Productivity Loss: | – | $0 | |
| | | -------------------------- | |
| (=) Subtotal: | = | $502,413 | |
| (+) Senior Appraised Value: | + | $0 | |
| (+) Non-Senior Appraised Value: | + | $502,413 | |
| | | -------------------------- | |
| (=) Total Appraised Value: | = | $502,413 | |
| (–) Senior Exemption Loss: | – | $0 | |
| (–) Exemption Loss: | – | $0 | |
| | | -------------------------- | |
| (=) Taxable Value: | = | $502,413 | |
Taxing Jurisdiction
| Owner: | DAVID A LORD TRUSTEE | | |
| % Ownership: | 100.0000000000% | | |
| Total Value: | N/A | | |
| Tax Area: | 0211 - 1-49F1E1H2L1 |
| CE | COUNTY CURRENT EXPENSE | N/A | N/A | N/A | N/A | | |
| CNTYDD | DEVELOPMENTAL DISABILITIES | N/A | N/A | N/A | N/A | | |
| CNTYVET | VETERANS RELIEF | N/A | N/A | N/A | N/A | | |
| MENTAL | MENTAL HEALTH | N/A | N/A | N/A | N/A | | |
| ROADS | COUNTY ROADS | N/A | N/A | N/A | N/A | | |
| ROADSCU | COUNTY ROADS TO CUR EXP | N/A | N/A | N/A | N/A | | |
| HOSP2CASH | HOSP DIST #2 GENERAL | N/A | N/A | N/A | N/A | | |
| SCH49CP | SCHOOL DIST #49 CAP PROJ | N/A | N/A | N/A | N/A | | |
| SCH49MO | SCHOOL DIST #49 EP & O | N/A | N/A | N/A | N/A | | |
| CONSERVE | CONSERVATION FUTURES | N/A | N/A | N/A | N/A | | |
| EMS1 | FIRE DIST #1 EMS | N/A | N/A | N/A | N/A | | |
| FD1 | FIRE DIST #1 GENERAL | N/A | N/A | N/A | N/A | | |
| LIB1 | LIBRARY DIST #1 GENERAL | N/A | N/A | N/A | N/A | | |
| PORTPT | PORT OF PT GENERAL | N/A | N/A | N/A | N/A | | |
| PORTPTIDD | PORT OF PT IDD 2019 | N/A | N/A | N/A | N/A | | |
| PUD1 | PUD #1 GENERAL | N/A | N/A | N/A | N/A | | |
| STATE | STATE SCHOOL PART 1 | N/A | N/A | N/A | N/A | | |
| STATE2 | STATE SCHOOL PART 2 | N/A | N/A | N/A | N/A | | |
| | Total Tax Rate: | N/A | | | | | |
| | | | | Taxes w/Current Exemptions: | N/A | | |
| | | | | Taxes w/o Exemptions: | N/A | | |
Improvement / Building
| Improvement #1: | Residential Bldg | State Code: | 11 | 720.0 sqft | Value: | $267,322 |
| Bathrooms (#): | 1 (FULL) | Bedrooms (#): | 1 | | Exterior Wall: | SI/ST | Fireplace: | WD ST-AVG | | Floor Construction: | FRAME | Foundation: | CONPR | | Heating/Cooling: | OTHER | Inside Verify: | YES-FIX | | Roof Cover: | COMP |   |   |
|
| | Type | Description | Class CD | Sub Class CD | Year Built | Area |
| | MA | Main Area | 4 | 15SF | 1992 | 720.0 |
| | HBAL | House Balcony | 4 | 15SF | 1992 | 256.0 |
| | GBLTIN | Builtin Garage | 4 | 15SF | 1992 | 1684.0 |
| | ADDN-D | Addition (Table Depreciated) | 3 | 15SF | 1992 | 275.0 |
| Improvement #2: | Residential Bldg | State Code: | 11 | 0.0 sqft | Value: | $21,042 |
Sketch
Property Image
Land
| 1 | 1573A | Terr/Mtn/No View <6 Acres | 4.0000 | 174240.00 | 0.00 | 0.00 | 0.00 | $64,900 | $0 |
| 2 | 1573A | Terr/Mtn/No View <6 Acres | 0.0400 | 1742.40 | 0.00 | 0.00 | 0.00 | $649 | $0 |
| 3 | 4610-1375S | Residential Sites 1+/- Ac Territorial Views | 1.0000 | 43560.00 | 0.00 | 0.00 | 1.00 | $148,500 | $0 |
Roll Value History
| 2025 | N/A | N/A | N/A | N/A | N/A |
| 2024 | $275,826 | $204,320 | $0 | $480,146 | $480,146 |
| 2023 | $263,289 | $186,560 | $0 | $449,849 | $449,849 |
| 2022 | $273,906 | $173,480 | $0 | $447,386 | $130,859 |
| 2021 | $143,752 | $162,480 | $0 | $306,232 | $130,492 |
Deed and Sales History
| 1 | 06/18/2009 | QCD | Quit Claim Deed | LORD, DAVID/JEANNETTE | LORD TRUST | | | $0.00 | 112993 | 0 |
Payout Agreement
| No payout information available.. |