Property
Account |
| Property ID: | 23056 | Abbreviated Legal Description: | S5 T29 R1E TAX 22 |
| Parcel # / Geo ID: | 921051023 | Agent Code: | |
| Type: | Real | | |
| Tax Area: | 0211 - 1-49F1E1H2L1 | Land Use Code | 11 |
| Open Space: | N | DFL | N |
| Historic Property: | N | Remodel Property: | N |
| Multi-Family Redevelopment: | N | | |
| Township: | 29N | Section: | 5 |
| Range: | 1E |
Location |
| Address: | 6193 FLAGLER RD NORDLAND, WA 98358 | Mapsco: | 167/038 |
| Neighborhood: | SEC 4,5 T29 R1E LESS PLATTED INCL MINNIHAN & DR BILLS SP | Map ID: | |
| Neighborhood CD: | 4610 |
Owner |
| Name: | STEVEN J BRANTNER | Owner ID: | 11993 |
| Mailing Address: | MARIJO C BRANTNER PO BOX 300 PORT HADLOCK, WA 98339-0300 | % Ownership: | 100.0000000000% |
| | | Exemptions: | |
Pay Tax Due
There is currently No Amount Due on this property.
Taxes and Assessment Details
Property Tax Information as of
10/24/2025
Click on "Statement Details" to expand or collapse a tax statement.
* Please enter a valid date ** Please enter a valid date *
Statement Details |
| | TOTAL: | $0.00 | $0.00 | $0.00 | $0.00 | $0.00 | $0.00 |
|
| | $0.00 | $0.00 | $0.00 | $0.00 | $0.00 | $0.00 |
Values
| (+) Improvement Homesite Value: | + | $0 | |
| (+) Improvement Non-Homesite Value: | + | $814,914 | |
| (+) Land Homesite Value: | + | $0 | |
| (+) Land Non-Homesite Value: | + | $268,708 | |
| (+) Curr Use (HS): | + | $0 | $0 |
| (+) Curr Use (NHS): | + | $0 | $0 |
| | | -------------------------- | |
| (=) Market Value: | = | $1,083,622 | |
| (–) Productivity Loss: | – | $0 | |
| | | -------------------------- | |
| (=) Subtotal: | = | $1,083,622 | |
| (+) Senior Appraised Value: | + | $0 | |
| (+) Non-Senior Appraised Value: | + | $1,083,622 | |
| | | -------------------------- | |
| (=) Total Appraised Value: | = | $1,083,622 | |
| (–) Senior Exemption Loss: | – | $0 | |
| (–) Exemption Loss: | – | $0 | |
| | | -------------------------- | |
| (=) Taxable Value: | = | $1,083,622 | |
Taxing Jurisdiction
| Owner: | STEVEN J BRANTNER | | |
| % Ownership: | 100.0000000000% | | |
| Total Value: | N/A | | |
| Tax Area: | 0211 - 1-49F1E1H2L1 |
| CE | COUNTY CURRENT EXPENSE | N/A | N/A | N/A | N/A | | |
| CNTYDD | DEVELOPMENTAL DISABILITIES | N/A | N/A | N/A | N/A | | |
| CNTYVET | VETERANS RELIEF | N/A | N/A | N/A | N/A | | |
| MENTAL | MENTAL HEALTH | N/A | N/A | N/A | N/A | | |
| ROADS | COUNTY ROADS | N/A | N/A | N/A | N/A | | |
| ROADSCU | COUNTY ROADS TO CUR EXP | N/A | N/A | N/A | N/A | | |
| HOSP2CASH | HOSP DIST #2 GENERAL | N/A | N/A | N/A | N/A | | |
| SCH49CP | SCHOOL DIST #49 CAP PROJ | N/A | N/A | N/A | N/A | | |
| SCH49MO | SCHOOL DIST #49 EP & O | N/A | N/A | N/A | N/A | | |
| CONSERVE | CONSERVATION FUTURES | N/A | N/A | N/A | N/A | | |
| EMS1 | FIRE DIST #1 EMS | N/A | N/A | N/A | N/A | | |
| FD1 | FIRE DIST #1 GENERAL | N/A | N/A | N/A | N/A | | |
| LIB1 | LIBRARY DIST #1 GENERAL | N/A | N/A | N/A | N/A | | |
| PORTPT | PORT OF PT GENERAL | N/A | N/A | N/A | N/A | | |
| PORTPTIDD | PORT OF PT IDD 2019 | N/A | N/A | N/A | N/A | | |
| PUD1 | PUD #1 GENERAL | N/A | N/A | N/A | N/A | | |
| STATE | STATE SCHOOL PART 1 | N/A | N/A | N/A | N/A | | |
| STATE2 | STATE SCHOOL PART 2 | N/A | N/A | N/A | N/A | | |
| | Total Tax Rate: | N/A | | | | | |
| | | | | Taxes w/Current Exemptions: | N/A | | |
| | | | | Taxes w/o Exemptions: | N/A | | |
Improvement / Building
| Improvement #1: | Residential Bldg | State Code: | 11 | 550.0 sqft | Value: | $200,927 |
| Bathrooms (#): | 1 (FULL) | Bedrooms (#): | 1 | | Exterior Wall: | SI/ST | Foundation: | CONPR | | Heating/Cooling: | F/A | Roof Cover: | METAL |
|
| | Type | Description | Class CD | Sub Class CD | Year Built | Area |
| | MA | Main Area | 3+ | 1S | 2014 | 550.0 |
| | BSMTF | House basement finished | 2 | 1S | 2014 | 550.0 |
| | GATT | House Attached Garage | 3 | 1S | 2014 | 600.0 |
| | SOLAR | Solar Panel | 4 | 1S | 2014 | 0.0 |
| Improvement #2: | Residential Bldg | State Code: | 11 | 2375.0 sqft | Value: | $613,987 |
| Bathrooms (#): | 2 (FULL) | Bedrooms (#): | 2 | | Exterior Wall: | SI/ST | Fireplace: | WD ST-GOOD | | Foundation: | CONPR | Heating/Cooling: | HPUMP | | Roof Cover: | METAL |   |   |
|
| | Type | Description | Class CD | Sub Class CD | Year Built | Area |
| | MA | Main Area | 4+ | 1S | 2017 | 2375.0 |
| | BSMTF | House basement finished | 1 | 1S | 2017 | 714.0 |
| | HCPOR | House Concrete Porch | 3 | 1S | 2017 | 287.0 |
Sketch
Property Image
Land
| 1 | 4610-1545A | Marrowstone Is Excellent Wtr View <6 Acres | 0.6900 | 30056.40 | 0.00 | 0.00 | 0.00 | $28,083 | $0 |
| 2 | 4610-1355S | Residential Sites 1+/- Ac Water Views | 1.0000 | 43560.00 | 0.00 | 0.00 | 1.00 | $240,625 | $0 |
Roll Value History
| 2025 | N/A | N/A | N/A | N/A | N/A |
| 2024 | $779,483 | $256,495 | $0 | $1,035,978 | $1,035,978 |
| 2023 | $744,052 | $244,280 | $0 | $988,332 | $988,332 |
| 2022 | $716,971 | $242,900 | $0 | $959,871 | $959,871 |
| 2021 | $628,922 | $223,200 | $0 | $852,122 | $852,122 |
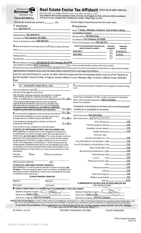
Deed and Sales History
| 1 | 12/22/2009 | SWD | Statutory Warranty Deed | FRENZL, STEPHEL | BRANTNER, STEVEN/MARIJO | 0 | 0 | $214,000.00 | 113849 | 0 |
| 2 | 01/31/2008 | QCD | Quit Claim Deed | YALSOVAC, NICOLE | FRENZL, STEPHEN | 0 | 0 | $0.00 | 110771 | 0 |
| 3 | 05/03/2007 | SWD | Statutory Warranty Deed | FELBER, MICHAEL J, HACKEN | FRENZL, STEPHEN/YALSOVAC | | | $215,000.00 | 109147 | 0 |
| 4 | 02/16/2005 | WD | Warranty Deed | HERSLOFF, MARCIA WATTS, E | FELBER, MICHAEL/HACKENBERG, | 0 | 0 | $175,000.00 | 102793 | 0 |
| 5 | 07/14/1993 | QCD | Quit Claim Deed | MARCIA W HERSLOFF REVOC T | HERSLOFF, MARCIA W | 0 | 0 | $0.00 | 71699 | 0 |
| 6 | 03/12/1992 | SWD | Statutory Warranty Deed | WILLIAMS, FRED T/HALLIE J | HERSLOFF, MARCIA W TRUST | 0 | 0 | $45,000.00 | 68018 | 0 |
Payout Agreement
| No payout information available.. |