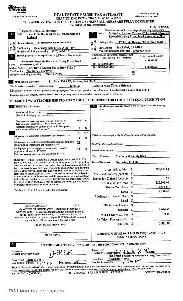
Property
Account |
| Property ID: | 23136 | Abbreviated Legal Description: | S8 T29 R1E TAX 45 & PTN TLTX L ADJ |
| Parcel # / Geo ID: | 921081015 | Agent Code: | |
| Type: | Real | | |
| Tax Area: | 0211 - 1-49F1E1H2L1 | Land Use Code | 11 |
| Open Space: | N | DFL | N |
| Historic Property: | N | Remodel Property: | N |
| Multi-Family Redevelopment: | N | | |
| Township: | 29N | Section: | 8 |
| Range: | 1E |
Location |
| Address: | 5123 FLAGLER RD NORDLAND, WA 98358 | Mapsco: | 169/080 |
| Neighborhood: | SEC 8 T29 R1E INCLUDING ROBBINS RD & THURLOW SP | Map ID: | |
| Neighborhood CD: | 4630 |
Owner |
| Name: | BLAISE M HOLLY | Owner ID: | 18354 |
| Mailing Address: | HOLLY I HOLLY PO BOX 34 PORT HADLOCK, WA 98339-0034 | % Ownership: | 100.0000000000% |
| | | Exemptions: | |
Pay Tax Due
There is currently No Amount Due on this property.
Taxes and Assessment Details
Property Tax Information as of
10/24/2025
Click on "Statement Details" to expand or collapse a tax statement.
* Please enter a valid date ** Please enter a valid date *
Statement Details |
| | TOTAL: | $0.00 | $0.00 | $0.00 | $0.00 | $0.00 | $0.00 |
|
| | $0.00 | $0.00 | $0.00 | $0.00 | $0.00 | $0.00 |
Values
| (+) Improvement Homesite Value: | + | $0 | |
| (+) Improvement Non-Homesite Value: | + | $443,541 | |
| (+) Land Homesite Value: | + | $0 | |
| (+) Land Non-Homesite Value: | + | $440,100 | |
| (+) Curr Use (HS): | + | $0 | $0 |
| (+) Curr Use (NHS): | + | $0 | $0 |
| | | -------------------------- | |
| (=) Market Value: | = | $883,641 | |
| (–) Productivity Loss: | – | $0 | |
| | | -------------------------- | |
| (=) Subtotal: | = | $883,641 | |
| (+) Senior Appraised Value: | + | $0 | |
| (+) Non-Senior Appraised Value: | + | $883,641 | |
| | | -------------------------- | |
| (=) Total Appraised Value: | = | $883,641 | |
| (–) Senior Exemption Loss: | – | $0 | |
| (–) Exemption Loss: | – | $0 | |
| | | -------------------------- | |
| (=) Taxable Value: | = | $883,641 | |
Taxing Jurisdiction
| Owner: | BLAISE M HOLLY | | |
| % Ownership: | 100.0000000000% | | |
| Total Value: | N/A | | |
| Tax Area: | 0211 - 1-49F1E1H2L1 |
| CE | COUNTY CURRENT EXPENSE | N/A | N/A | N/A | N/A | | |
| CNTYDD | DEVELOPMENTAL DISABILITIES | N/A | N/A | N/A | N/A | | |
| CNTYVET | VETERANS RELIEF | N/A | N/A | N/A | N/A | | |
| MENTAL | MENTAL HEALTH | N/A | N/A | N/A | N/A | | |
| ROADS | COUNTY ROADS | N/A | N/A | N/A | N/A | | |
| ROADSCU | COUNTY ROADS TO CUR EXP | N/A | N/A | N/A | N/A | | |
| HOSP2CASH | HOSP DIST #2 GENERAL | N/A | N/A | N/A | N/A | | |
| SCH49CP | SCHOOL DIST #49 CAP PROJ | N/A | N/A | N/A | N/A | | |
| SCH49MO | SCHOOL DIST #49 EP & O | N/A | N/A | N/A | N/A | | |
| CONSERVE | CONSERVATION FUTURES | N/A | N/A | N/A | N/A | | |
| EMS1 | FIRE DIST #1 EMS | N/A | N/A | N/A | N/A | | |
| FD1 | FIRE DIST #1 GENERAL | N/A | N/A | N/A | N/A | | |
| LIB1 | LIBRARY DIST #1 GENERAL | N/A | N/A | N/A | N/A | | |
| PORTPT | PORT OF PT GENERAL | N/A | N/A | N/A | N/A | | |
| PORTPTIDD | PORT OF PT IDD 2019 | N/A | N/A | N/A | N/A | | |
| PUD1 | PUD #1 GENERAL | N/A | N/A | N/A | N/A | | |
| STATE | STATE SCHOOL PART 1 | N/A | N/A | N/A | N/A | | |
| STATE2 | STATE SCHOOL PART 2 | N/A | N/A | N/A | N/A | | |
| | Total Tax Rate: | N/A | | | | | |
| | | | | Taxes w/Current Exemptions: | N/A | | |
| | | | | Taxes w/o Exemptions: | N/A | | |
Improvement / Building
| Improvement #1: | Residential Bldg | State Code: | 11 | 1760.0 sqft | Value: | $377,422 |
| Bathrooms (#): | 2 (FULL) | Bedrooms (#): | 2 | | Exterior Wall: | SI/ST | Foundation: | CONPR | | Heating/Cooling: | ELBB | Inside Verify: | NO | | Roof Cover: | METAL |   |   |
|
| | Type | Description | Class CD | Sub Class CD | Year Built | Area |
| | MA | Main Area | 4 | 2S | 2017 | 990.0 |
| | MA2 | Second Floor Main Area | 4 | 2S | 2017 | 770.0 |
| | HDECK | House Deck | 4 | 2S | 2017 | 224.0 |
| | HWPOR | House Wood Porch | 4 | 2S | 2017 | 66.0 |
| | HBAL | House Balcony | 4 | 2S | 2017 | 24.0 |
| Improvement #2: | Residential Bldg | State Code: | 11 | 0.0 sqft | Value: | $66,119 |
Sketch
Property Image
Land
| 1 | 1573A | Terr/Mtn/No View <6 Acres | 4.3300 | 188614.80 | 0.00 | 0.00 | 0.00 | $67,061 | $0 |
| 2 | 4630-1535F | High Bank Waterfront Marrowstone | 0.0000 | 0.00 | 0.00 | 0.00 | 0.00 | $260,190 | $0 |
| 3 | 9301F | Tidelands | 0.0000 | 0.00 | 0.00 | 0.00 | 0.00 | $2,599 | $0 |
| 4 | 4630-1375S | Residential Sites 1+/- Ac Territorial Views | 1.0000 | 43560.00 | 0.00 | 0.00 | 1.00 | $110,250 | $0 |
Roll Value History
| 2025 | N/A | N/A | N/A | N/A | N/A |
| 2024 | $443,541 | $440,100 | $0 | $883,641 | $883,641 |
| 2023 | $403,618 | $410,895 | $0 | $814,513 | $814,513 |
| 2022 | $370,723 | $397,235 | $0 | $767,958 | $767,958 |
| 2021 | $295,753 | $377,424 | $0 | $673,177 | $673,177 |
Deed and Sales History
| 1 | 01/13/2016 | SWD | Statutory Warranty Deed | ELLIN H LARIMER | BLAISE M HOLLY | | | $175,000.00 | 124743 | |
| 2 | 12/23/2010 | WD | Warranty Deed | LARIMER, JAMES R ESTATE O | LARIMER, ELLIN H | 0 | 0 | $0.00 | 115421 | 0 |
| 3 | 07/22/2009 | TRED | Trustee Deed | RUFF, BEAU TRUSTEE | LARIMER, JAMES/ELLIN | | | $0.00 | 113194 | 0 |
| 4 | 07/27/2007 | SWD | Statutory Warranty Deed | LARIMER, JAMES/ELLIN | FLORES, FREDERICK A | 0 | 0 | $345,130.00 | 109776 | 0 |
| 5 | 04/27/2005 | SWD | Statutory Warranty Deed | MOORE, G/BRITT, P | LARIMER, JAMES/ELLIN | | | $0.00 | 103564 | 0 |
| 6 | 04/27/2005 | SWD | Statutory Warranty Deed | MOORE, GB/BRITT, P | LARIMER, JAMES/ELLIN | | | $230,000.00 | 103376 | 0 |
Payout Agreement
| No payout information available.. |