Property
Account |
| Property ID: | 23163 | Abbreviated Legal Description: | S8 T29 R1E TAX 30 LESS R/W |
| Parcel # / Geo ID: | 921084015 | Agent Code: | |
| Type: | Real | | |
| Tax Area: | 0211 - 1-49F1E1H2L1 | Land Use Code | 11 |
| Open Space: | N | DFL | N |
| Historic Property: | N | Remodel Property: | N |
| Multi-Family Redevelopment: | N | | |
| Township: | 29N | Section: | 8 |
| Range: | 1E |
Location |
| Address: | 53 ROBBINS RD NORDLAND, WA 98358 | Mapsco: | 169/066 |
| Neighborhood: | SEC 8 T29 R1E INCLUDING ROBBINS RD & THURLOW SP | Map ID: | |
| Neighborhood CD: | 4630 |
Owner |
| Name: | MELISSA J & MATTHEW D BLAIR | Owner ID: | 97008 |
| Mailing Address: | 53 ROBBINS RD NORDLAND, WA 98358-9607 | % Ownership: | 100.0000000000% |
| | | Exemptions: | |
Pay Tax Due
There is currently No Amount Due on this property.
Taxes and Assessment Details
Property Tax Information as of
10/24/2025
Click on "Statement Details" to expand or collapse a tax statement.
* Please enter a valid date ** Please enter a valid date *
Statement Details |
| | TOTAL: | $0.00 | $0.00 | $0.00 | $0.00 | $0.00 | $0.00 |
|
| | $0.00 | $0.00 | $0.00 | $0.00 | $0.00 | $0.00 |
Values
| (+) Improvement Homesite Value: | + | $130,974 | |
| (+) Improvement Non-Homesite Value: | + | $0 | |
| (+) Land Homesite Value: | + | $245,196 | |
| (+) Land Non-Homesite Value: | + | $0 | |
| (+) Curr Use (HS): | + | $0 | $0 |
| (+) Curr Use (NHS): | + | $0 | $0 |
| | | -------------------------- | |
| (=) Market Value: | = | $376,170 | |
| (–) Productivity Loss: | – | $0 | |
| | | -------------------------- | |
| (=) Subtotal: | = | $376,170 | |
| (+) Senior Appraised Value: | + | $0 | |
| (+) Non-Senior Appraised Value: | + | $376,170 | |
| | | -------------------------- | |
| (=) Total Appraised Value: | = | $376,170 | |
| (–) Senior Exemption Loss: | – | $0 | |
| (–) Exemption Loss: | – | $0 | |
| | | -------------------------- | |
| (=) Taxable Value: | = | $376,170 | |
Taxing Jurisdiction
| Owner: | MELISSA J & MATTHEW D BLAIR | | |
| % Ownership: | 100.0000000000% | | |
| Total Value: | N/A | | |
| Tax Area: | 0211 - 1-49F1E1H2L1 |
| CE | COUNTY CURRENT EXPENSE | N/A | N/A | N/A | N/A | | |
| CNTYDD | DEVELOPMENTAL DISABILITIES | N/A | N/A | N/A | N/A | | |
| CNTYVET | VETERANS RELIEF | N/A | N/A | N/A | N/A | | |
| MENTAL | MENTAL HEALTH | N/A | N/A | N/A | N/A | | |
| ROADS | COUNTY ROADS | N/A | N/A | N/A | N/A | | |
| ROADSCU | COUNTY ROADS TO CUR EXP | N/A | N/A | N/A | N/A | | |
| HOSP2CASH | HOSP DIST #2 GENERAL | N/A | N/A | N/A | N/A | | |
| SCH49CP | SCHOOL DIST #49 CAP PROJ | N/A | N/A | N/A | N/A | | |
| SCH49MO | SCHOOL DIST #49 EP & O | N/A | N/A | N/A | N/A | | |
| CONSERVE | CONSERVATION FUTURES | N/A | N/A | N/A | N/A | | |
| EMS1 | FIRE DIST #1 EMS | N/A | N/A | N/A | N/A | | |
| FD1 | FIRE DIST #1 GENERAL | N/A | N/A | N/A | N/A | | |
| LIB1 | LIBRARY DIST #1 GENERAL | N/A | N/A | N/A | N/A | | |
| PORTPT | PORT OF PT GENERAL | N/A | N/A | N/A | N/A | | |
| PORTPTIDD | PORT OF PT IDD 2019 | N/A | N/A | N/A | N/A | | |
| PUD1 | PUD #1 GENERAL | N/A | N/A | N/A | N/A | | |
| STATE | STATE SCHOOL PART 1 | N/A | N/A | N/A | N/A | | |
| STATE2 | STATE SCHOOL PART 2 | N/A | N/A | N/A | N/A | | |
| | Total Tax Rate: | N/A | | | | | |
| | | | | Taxes w/Current Exemptions: | N/A | | |
| | | | | Taxes w/o Exemptions: | N/A | | |
Improvement / Building
| Improvement #1: | Residential Bldg | State Code: | 11 | 1232.0 sqft | Value: | $130,974 |
| Bathrooms (#): | 1 (FULL) | Bathrooms (#): | 1 (HALF) | | Bedrooms (#): | 2 | Exterior Wall: | PL/T1 | | Fireplace: | WD ST-GOOD | Floor Construction: | FRAME | | Foundation: | CONPR | Heating/Cooling: | ELBB | | Inside Verify: | YES-FIX | Roof Cover: | METAL |
|
| | Type | Description | Class CD | Sub Class CD | Year Built | Area |
| | MA | Main Area | 2 | 2S | 1977 | 616.0 |
| | MA2 | Second Floor Main Area | 2 | 2S | 1977 | 616.0 |
| | HBAL | House Balcony | 2 | 2S | 1977 | 12.0 |
| | HDECK | House Deck | 2 | 2S | 1977 | 374.0 |
| | HENCL | House Enclosure | 2 | 2S | 1977 | 154.0 |
| | CARPTN | Carport W/O Floor | 1 | 2S | 1977 | 528.0 |
| | GDET | Detached Garage | 1 | 2S | 1977 | 528.0 |
Sketch
Property Image
Land
| 1 | 4630-1555A | Marrowstone Is Avg Wtr View <6 Acres | 1.3600 | 59241.60 | 0.00 | 0.00 | 0.00 | $45,696 | $0 |
| 2 | 4630-1355S | Residential Sites 1+/- Ac Water Views | 1.0000 | 43560.00 | 0.00 | 0.00 | 1.00 | $199,500 | $0 |
Roll Value History
| 2025 | N/A | N/A | N/A | N/A | N/A |
| 2024 | $130,974 | $245,196 | $0 | $376,170 | $376,170 |
| 2023 | $125,020 | $228,520 | $0 | $353,540 | $353,540 |
| 2022 | $108,196 | $220,800 | $0 | $328,996 | $328,996 |
| 2021 | $90,163 | $194,640 | $0 | $284,803 | $284,803 |
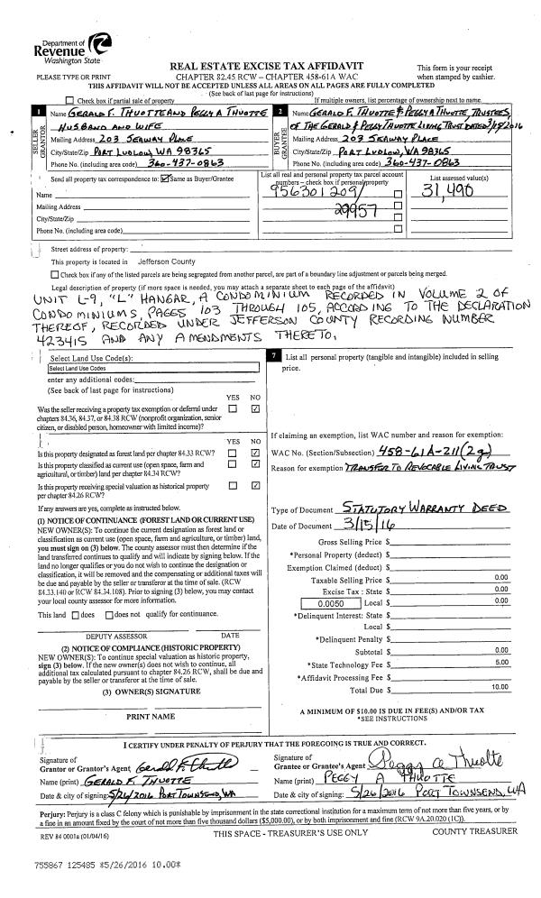
Deed and Sales History
| 1 | 03/30/2017 | QCD | Quit Claim Deed | MATTHEW D BLAIR | MELISSA J & MATTHEW D BLAIR | | | | 127437 | |
| 2 | 03/15/2017 | QCD | Quit Claim Deed | | | | | $167,500.00 | 127341 | |
| 3 | 12/28/2016 | QCD | Quit Claim Deed | GILBERT H FULKERSON JR LIVING TRUST | ANGELA L HAVILAND | | | | 126811 | |
| 4 | 09/03/2015 | QCD | Quit Claim Deed | GILBERT H FULKERSON | GILBERT H FULKERSON JR LIVING TRUST | | | | 123939 | |
Payout Agreement
| No payout information available.. |