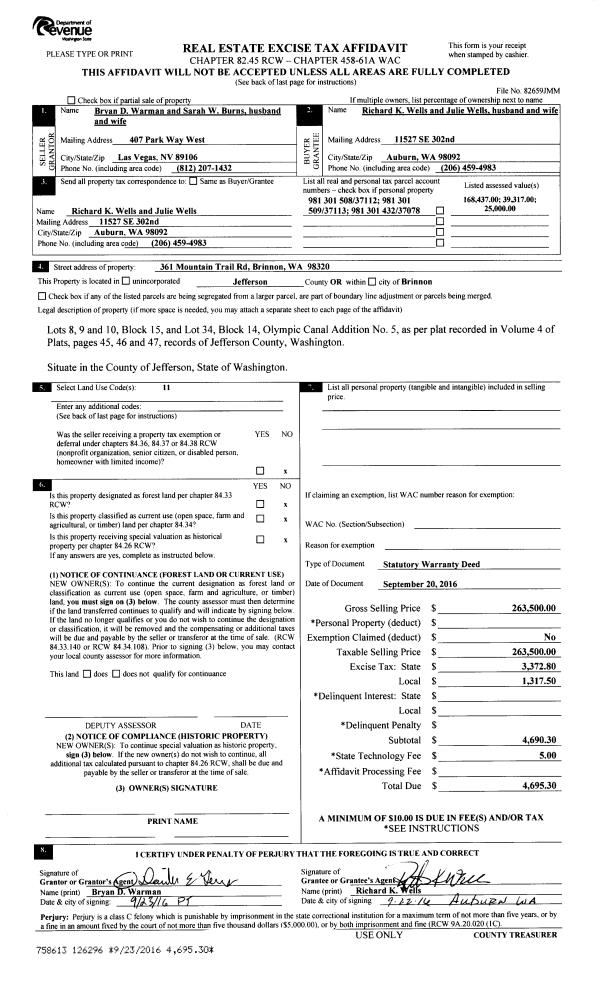
Property
Account |
| Property ID: | 23176 | Abbreviated Legal Description: | ROBBINS ROAD SHORT PLAT LOT 2 |
| Parcel # / Geo ID: | 921084032 | Agent Code: | |
| Type: | Real | | |
| Tax Area: | 0211 - 1-49F1E1H2L1 | Land Use Code | 11 |
| Open Space: | N | DFL | N |
| Historic Property: | N | Remodel Property: | N |
| Multi-Family Redevelopment: | N | | |
| Township: | 29N | Section: | 8 |
| Range: | 1E |
Location |
| Address: | 320 ROBBINS RD NORDLAND, WA 98358 | Mapsco: | 241/024 |
| Neighborhood: | SEC 8 T29 R1E INCLUDING ROBBINS RD & THURLOW SP | Map ID: | |
| Neighborhood CD: | 4630 |
Owner |
| Name: | VIRGINIA S MCNEW | Owner ID: | 104359 |
| Mailing Address: | 320 ROBBINS RD NORDLAND, WA 98358-9670 | % Ownership: | 100.0000000000% |
| | | Exemptions: | |
Pay Tax Due
There is currently No Amount Due on this property.
Taxes and Assessment Details
Property Tax Information as of
10/24/2025
Click on "Statement Details" to expand or collapse a tax statement.
* Please enter a valid date ** Please enter a valid date *
Statement Details |
| | TOTAL: | $0.00 | $0.00 | $0.00 | $0.00 | $0.00 | $0.00 |
|
| | $0.00 | $0.00 | $0.00 | $0.00 | $0.00 | $0.00 |
Values
| (+) Improvement Homesite Value: | + | $0 | |
| (+) Improvement Non-Homesite Value: | + | $341,987 | |
| (+) Land Homesite Value: | + | $0 | |
| (+) Land Non-Homesite Value: | + | $163,107 | |
| (+) Curr Use (HS): | + | $0 | $0 |
| (+) Curr Use (NHS): | + | $0 | $0 |
| | | -------------------------- | |
| (=) Market Value: | = | $505,094 | |
| (–) Productivity Loss: | – | $0 | |
| | | -------------------------- | |
| (=) Subtotal: | = | $505,094 | |
| (+) Senior Appraised Value: | + | $0 | |
| (+) Non-Senior Appraised Value: | + | $505,094 | |
| | | -------------------------- | |
| (=) Total Appraised Value: | = | $505,094 | |
| (–) Senior Exemption Loss: | – | $0 | |
| (–) Exemption Loss: | – | $0 | |
| | | -------------------------- | |
| (=) Taxable Value: | = | $505,094 | |
Taxing Jurisdiction
| Owner: | VIRGINIA S MCNEW | | |
| % Ownership: | 100.0000000000% | | |
| Total Value: | N/A | | |
| Tax Area: | 0211 - 1-49F1E1H2L1 |
| CE | COUNTY CURRENT EXPENSE | N/A | N/A | N/A | N/A | | |
| CNTYDD | DEVELOPMENTAL DISABILITIES | N/A | N/A | N/A | N/A | | |
| CNTYVET | VETERANS RELIEF | N/A | N/A | N/A | N/A | | |
| MENTAL | MENTAL HEALTH | N/A | N/A | N/A | N/A | | |
| ROADS | COUNTY ROADS | N/A | N/A | N/A | N/A | | |
| ROADSCU | COUNTY ROADS TO CUR EXP | N/A | N/A | N/A | N/A | | |
| HOSP2CASH | HOSP DIST #2 GENERAL | N/A | N/A | N/A | N/A | | |
| SCH49CP | SCHOOL DIST #49 CAP PROJ | N/A | N/A | N/A | N/A | | |
| SCH49MO | SCHOOL DIST #49 EP & O | N/A | N/A | N/A | N/A | | |
| CONSERVE | CONSERVATION FUTURES | N/A | N/A | N/A | N/A | | |
| EMS1 | FIRE DIST #1 EMS | N/A | N/A | N/A | N/A | | |
| FD1 | FIRE DIST #1 GENERAL | N/A | N/A | N/A | N/A | | |
| LIB1 | LIBRARY DIST #1 GENERAL | N/A | N/A | N/A | N/A | | |
| PORTPT | PORT OF PT GENERAL | N/A | N/A | N/A | N/A | | |
| PORTPTIDD | PORT OF PT IDD 2019 | N/A | N/A | N/A | N/A | | |
| PUD1 | PUD #1 GENERAL | N/A | N/A | N/A | N/A | | |
| STATE | STATE SCHOOL PART 1 | N/A | N/A | N/A | N/A | | |
| STATE2 | STATE SCHOOL PART 2 | N/A | N/A | N/A | N/A | | |
| | Total Tax Rate: | N/A | | | | | |
| | | | | Taxes w/Current Exemptions: | N/A | | |
| | | | | Taxes w/o Exemptions: | N/A | | |
Improvement / Building
| Improvement #1: | Residential Bldg | State Code: | 11 | 1710.0 sqft | Value: | $341,987 |
| Bathrooms (#): | 2 (FULL) | Bedrooms (#): | 2 | | Exterior Wall: | SI/ST | Fireplace: | WD ST-AVG | | Floor Construction: | FRAME | Foundation: | CONPR | | Heating/Cooling: | ELBB | Roof Cover: | COMP |
|
| | Type | Description | Class CD | Sub Class CD | Year Built | Area |
| | MA | Main Area | 3 | 1S | 1989 | 1710.0 |
| | PATIO | House Patio | 3 | 1S | 1989 | 168.0 |
| | HWPOR | House Wood Porch | 3 | 1S | 1989 | 160.0 |
| | HBAL | House Balcony | 3 | 1S | 1989 | 224.0 |
| | HDECK | House Deck | 3 | 1S | 1989 | 1534.0 |
| | GBSMT | Basement Garage | 3 | 1S | 1989 | 784.0 |
| | BSMTF | House basement finished | 3 | 1S | 1989 | 720.0 |
| | HCPOR | House Concrete Porch | 3 | 1S | 1989 | 160.0 |
Sketch
| No sketches available for this property. |
Property Image
Land
| 1 | 4630-1375S | Residential Sites 1+/- Ac Territorial Views | 1.0000 | 43560.00 | 0.00 | 0.00 | 1.00 | $141,750 | $0 |
| 2 | 1572A | Terr/Mtn/No View <6 Acres | 1.1300 | 49222.80 | 0.00 | 0.00 | 0.00 | $21,357 | $0 |
Roll Value History
| 2025 | N/A | N/A | N/A | N/A | N/A |
| 2024 | $341,987 | $163,107 | $0 | $505,094 | $505,094 |
| 2023 | $326,442 | $149,210 | $0 | $475,652 | $475,652 |
| 2022 | $306,893 | $141,950 | $0 | $448,843 | $448,843 |
| 2021 | $243,566 | $130,950 | $0 | $374,516 | $374,516 |
Deed and Sales History
| 1 | 03/16/2021 | LOP | Lack of Probate | LAWRASON JAMES DRISCOLL | VIRGINIA S MCNEW | | | | 136305 | |
| 2 | 03/26/1997 | SWD | Statutory Warranty Deed | SHRIVER, DALE L/DOROTHY M | DRISCOLL,JAMES/MCNEW, VIRGINIA | 0 | 0 | $170,000.00 | 81732 | 0 |
Payout Agreement
| No payout information available.. |