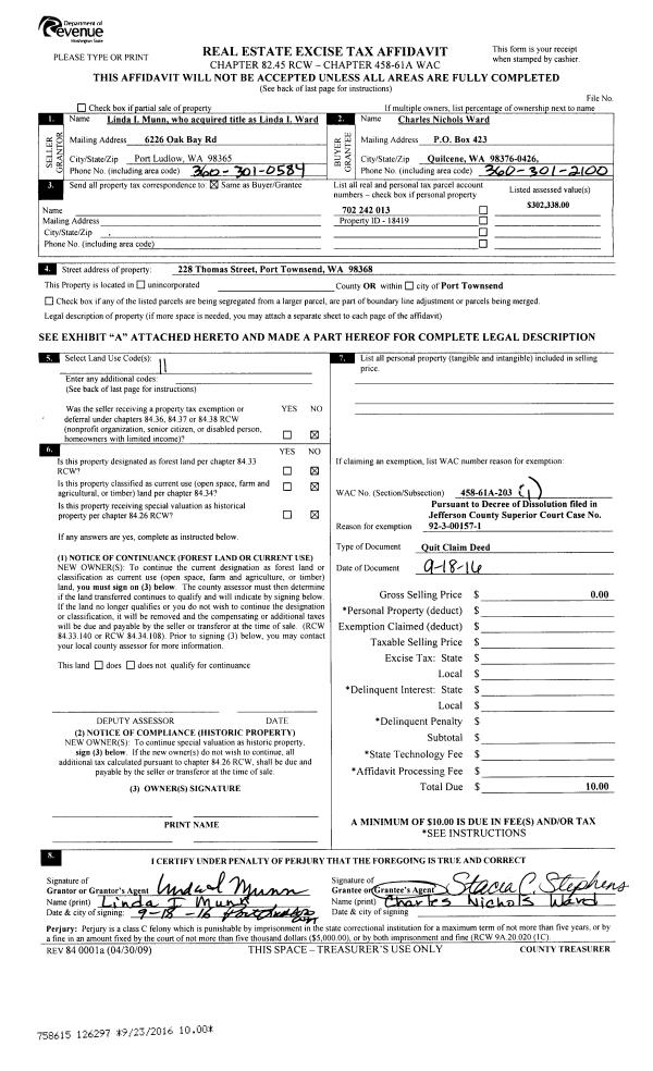
Property
Account |
| Property ID: | 23211 | Abbreviated Legal Description: | FRIENDS SHORT PLAT LOT 4 SUBJ TO TR A/EASE |
| Parcel # / Geo ID: | 921092079 | Agent Code: | |
| Type: | Real | | |
| Tax Area: | 0211 - 1-49F1E1H2L1 | Land Use Code | 11 |
| Open Space: | N | DFL | N |
| Historic Property: | N | Remodel Property: | N |
| Multi-Family Redevelopment: | N | | |
| Township: | 29N | Section: | 9 |
| Range: | 1E |
Location |
| Address: | 196 FINIS TRAIL NORDLAND, WA 98358 | Mapsco: | 230/048 |
| Neighborhood: | SEC9,16,17T29R1E & STAVNEY,GARDEN CLUB ACRES,MORROW-0LIVA SP | Map ID: | |
| Neighborhood CD: | 4620 |
Owner |
| Name: | ALBERT F & COLLEEN J EBKEN | Owner ID: | 105374 |
| Mailing Address: | 196 FINIS TRL NORDLAND, WA 98358-9557 | % Ownership: | 100.0000000000% |
| | | Exemptions: | |
Pay Tax Due
There is currently No Amount Due on this property.
Taxes and Assessment Details
Property Tax Information as of
10/24/2025
Click on "Statement Details" to expand or collapse a tax statement.
* Please enter a valid date ** Please enter a valid date *
Statement Details |
| | TOTAL: | $0.00 | $0.00 | $0.00 | $0.00 | $0.00 | $0.00 |
|
| | $0.00 | $0.00 | $0.00 | $0.00 | $0.00 | $0.00 |
Values
| (+) Improvement Homesite Value: | + | $0 | |
| (+) Improvement Non-Homesite Value: | + | $653,991 | |
| (+) Land Homesite Value: | + | $0 | |
| (+) Land Non-Homesite Value: | + | $280,081 | |
| (+) Curr Use (HS): | + | $0 | $0 |
| (+) Curr Use (NHS): | + | $0 | $0 |
| | | -------------------------- | |
| (=) Market Value: | = | $934,072 | |
| (–) Productivity Loss: | – | $0 | |
| | | -------------------------- | |
| (=) Subtotal: | = | $934,072 | |
| (+) Senior Appraised Value: | + | $0 | |
| (+) Non-Senior Appraised Value: | + | $934,072 | |
| | | -------------------------- | |
| (=) Total Appraised Value: | = | $934,072 | |
| (–) Senior Exemption Loss: | – | $0 | |
| (–) Exemption Loss: | – | $0 | |
| | | -------------------------- | |
| (=) Taxable Value: | = | $934,072 | |
Taxing Jurisdiction
| Owner: | ALBERT F & COLLEEN J EBKEN | | |
| % Ownership: | 100.0000000000% | | |
| Total Value: | N/A | | |
| Tax Area: | 0211 - 1-49F1E1H2L1 |
| CE | COUNTY CURRENT EXPENSE | N/A | N/A | N/A | N/A | | |
| CNTYDD | DEVELOPMENTAL DISABILITIES | N/A | N/A | N/A | N/A | | |
| CNTYVET | VETERANS RELIEF | N/A | N/A | N/A | N/A | | |
| MENTAL | MENTAL HEALTH | N/A | N/A | N/A | N/A | | |
| ROADS | COUNTY ROADS | N/A | N/A | N/A | N/A | | |
| ROADSCU | COUNTY ROADS TO CUR EXP | N/A | N/A | N/A | N/A | | |
| HOSP2CASH | HOSP DIST #2 GENERAL | N/A | N/A | N/A | N/A | | |
| SCH49CP | SCHOOL DIST #49 CAP PROJ | N/A | N/A | N/A | N/A | | |
| SCH49MO | SCHOOL DIST #49 EP & O | N/A | N/A | N/A | N/A | | |
| CONSERVE | CONSERVATION FUTURES | N/A | N/A | N/A | N/A | | |
| EMS1 | FIRE DIST #1 EMS | N/A | N/A | N/A | N/A | | |
| FD1 | FIRE DIST #1 GENERAL | N/A | N/A | N/A | N/A | | |
| LIB1 | LIBRARY DIST #1 GENERAL | N/A | N/A | N/A | N/A | | |
| PORTPT | PORT OF PT GENERAL | N/A | N/A | N/A | N/A | | |
| PORTPTIDD | PORT OF PT IDD 2019 | N/A | N/A | N/A | N/A | | |
| PUD1 | PUD #1 GENERAL | N/A | N/A | N/A | N/A | | |
| STATE | STATE SCHOOL PART 1 | N/A | N/A | N/A | N/A | | |
| STATE2 | STATE SCHOOL PART 2 | N/A | N/A | N/A | N/A | | |
| | Total Tax Rate: | N/A | | | | | |
| | | | | Taxes w/Current Exemptions: | N/A | | |
| | | | | Taxes w/o Exemptions: | N/A | | |
Improvement / Building
| Improvement #1: | Residential Bldg | State Code: | 11 | 2917.0 sqft | Value: | $653,991 |
| Bathrooms (#): | 2 (FULL) | Bathrooms (#): | 1 (HALF) | | Bedrooms (#): | 3 | Exterior Wall: | SI/ST | | Fireplace: | WD ST-GOOD | Floor Construction: | FRAME | | Foundation: | CONPR | Heating/Cooling: | F/A | | Inside Verify: | YES-FIX | Roof Cover: | COMP |
|
| | Type | Description | Class CD | Sub Class CD | Year Built | Area |
| | MA | Main Area | 5- | 2S | 2000 | 1581.0 |
| | MA2 | Second Floor Main Area | 5- | 2S | 2000 | 1336.0 |
| | HWPOR | House Wood Porch | 5 | 2S | 2000 | 260.0 |
| | HCPOR | House Concrete Porch | 5 | 2S | 2000 | 45.0 |
| | HDECK | House Deck | 5 | 2S | 2000 | 40.0 |
| | GATT | House Attached Garage | 5 | 2S | 2000 | 424.0 |
| | CONCD | Concrete Drive | 4 | 2S | 2000 | 432.0 |
Sketch
| No sketches available for this property. |
Property Image
Land
| 1 | 4620-1355S | Residential Sites 1+/- Ac Water Views | 1.0000 | 43560.00 | 0.00 | 0.00 | 1.00 | $210,000 | $0 |
| 2 | 1572A | Terr/Mtn/No View <6 Acres | 4.1200 | 179467.20 | 0.00 | 0.00 | 0.00 | $70,081 | $0 |
Roll Value History
| 2025 | N/A | N/A | N/A | N/A | N/A |
| 2024 | $653,991 | $280,081 | $0 | $934,072 | $934,072 |
| 2023 | $624,264 | $258,036 | $0 | $882,300 | $882,300 |
| 2022 | $591,589 | $245,620 | $0 | $837,209 | $837,209 |
| 2021 | $359,995 | $235,755 | $0 | $595,750 | $595,750 |
Deed and Sales History
| 1 | 08/11/2021 | SWD | Statutory Warranty Deed | WILLIAM RENNEBOHM | ALBERT F & COLLEEN J EBKEN | | | $845,000.00 | 137402 | |
| 2 | 04/23/2012 | SWD | Statutory Warranty Deed | DIETSCH, BRUCE/DIANE ET A | RENNEBOHM, WILLIAM/BARBARA | 0 | 0 | $374,250.00 | 117477 | 0 |
| 3 | 06/19/2009 | QCD | Quit Claim Deed | DIETSCH, BRUCE W/DIANE G | DIETSCH TRUST | | | $0.00 | 112997 | 0 |
| 4 | 06/11/2002 | SWD | Statutory Warranty Deed | CHRIS & KRISTINE CLUM | DIETSCH, BRUCE/DIANE | 0 | 0 | $365,000.00 | 94895 | 0 |
| 5 | 10/27/1998 | QCD | Quit Claim Deed | BROWN, ROBERT M/III ET A | CLUM, CHRIS/KRISTINE L | 0 | 0 | $0.00 | 85606 | 0 |
Payout Agreement
| No payout information available.. |