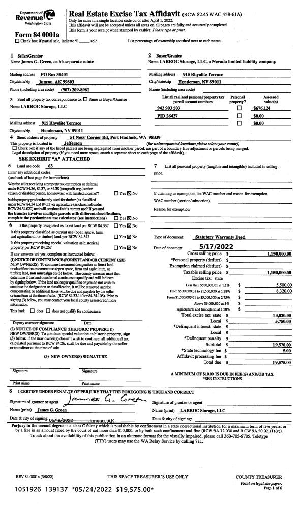
Property
Account |
| Property ID: | 23253 | Abbreviated Legal Description: | S9 T29 R1E TAX 34 |
| Parcel # / Geo ID: | 921094022 | Agent Code: | |
| Type: | Real | | |
| Tax Area: | 0211 - 1-49F1E1H2L1 | Land Use Code | 11 |
| Open Space: | N | DFL | N |
| Historic Property: | N | Remodel Property: | N |
| Multi-Family Redevelopment: | N | | |
| Township: | 29N | Section: | 9 |
| Range: | 1E |
Location |
| Address: | 24 EAST MARROWSTONE RD NORDLAND, WA 98358 | Mapsco: | 171/008 |
| Neighborhood: | SEC9,16,17T29R1E & STAVNEY,GARDEN CLUB ACRES,MORROW-0LIVA SP | Map ID: | |
| Neighborhood CD: | 4620 |
Owner |
| Name: | ROGER G TRAVIS | Owner ID: | 29178 |
| Mailing Address: | SUSAN D TRAVIS 24 E MARROWSTONE RD NORDLAND, WA 98358-9614 | % Ownership: | 100.0000000000% |
| | | Exemptions: | |
Pay Tax Due
There is currently No Amount Due on this property.
Taxes and Assessment Details
Property Tax Information as of
10/24/2025
Click on "Statement Details" to expand or collapse a tax statement.
* Please enter a valid date ** Please enter a valid date *
Statement Details |
| | TOTAL: | $0.00 | $0.00 | $0.00 | $0.00 | $0.00 | $0.00 |
|
| | $0.00 | $0.00 | $0.00 | $0.00 | $0.00 | $0.00 |
Values
| (+) Improvement Homesite Value: | + | $250,380 | |
| (+) Improvement Non-Homesite Value: | + | $0 | |
| (+) Land Homesite Value: | + | $211,258 | |
| (+) Land Non-Homesite Value: | + | $0 | |
| (+) Curr Use (HS): | + | $0 | $0 |
| (+) Curr Use (NHS): | + | $0 | $0 |
| | | -------------------------- | |
| (=) Market Value: | = | $461,638 | |
| (–) Productivity Loss: | – | $0 | |
| | | -------------------------- | |
| (=) Subtotal: | = | $461,638 | |
| (+) Senior Appraised Value: | + | $0 | |
| (+) Non-Senior Appraised Value: | + | $461,638 | |
| | | -------------------------- | |
| (=) Total Appraised Value: | = | $461,638 | |
| (–) Senior Exemption Loss: | – | $0 | |
| (–) Exemption Loss: | – | $0 | |
| | | -------------------------- | |
| (=) Taxable Value: | = | $461,638 | |
Taxing Jurisdiction
| Owner: | ROGER G TRAVIS | | |
| % Ownership: | 100.0000000000% | | |
| Total Value: | N/A | | |
| Tax Area: | 0211 - 1-49F1E1H2L1 |
| CE | COUNTY CURRENT EXPENSE | N/A | N/A | N/A | N/A | | |
| CNTYDD | DEVELOPMENTAL DISABILITIES | N/A | N/A | N/A | N/A | | |
| CNTYVET | VETERANS RELIEF | N/A | N/A | N/A | N/A | | |
| MENTAL | MENTAL HEALTH | N/A | N/A | N/A | N/A | | |
| ROADS | COUNTY ROADS | N/A | N/A | N/A | N/A | | |
| ROADSCU | COUNTY ROADS TO CUR EXP | N/A | N/A | N/A | N/A | | |
| HOSP2CASH | HOSP DIST #2 GENERAL | N/A | N/A | N/A | N/A | | |
| SCH49CP | SCHOOL DIST #49 CAP PROJ | N/A | N/A | N/A | N/A | | |
| SCH49MO | SCHOOL DIST #49 EP & O | N/A | N/A | N/A | N/A | | |
| CONSERVE | CONSERVATION FUTURES | N/A | N/A | N/A | N/A | | |
| EMS1 | FIRE DIST #1 EMS | N/A | N/A | N/A | N/A | | |
| FD1 | FIRE DIST #1 GENERAL | N/A | N/A | N/A | N/A | | |
| LIB1 | LIBRARY DIST #1 GENERAL | N/A | N/A | N/A | N/A | | |
| PORTPT | PORT OF PT GENERAL | N/A | N/A | N/A | N/A | | |
| PORTPTIDD | PORT OF PT IDD 2019 | N/A | N/A | N/A | N/A | | |
| PUD1 | PUD #1 GENERAL | N/A | N/A | N/A | N/A | | |
| STATE | STATE SCHOOL PART 1 | N/A | N/A | N/A | N/A | | |
| STATE2 | STATE SCHOOL PART 2 | N/A | N/A | N/A | N/A | | |
| | Total Tax Rate: | N/A | | | | | |
| | | | | Taxes w/Current Exemptions: | N/A | | |
| | | | | Taxes w/o Exemptions: | N/A | | |
Improvement / Building
| Improvement #1: | Residential Bldg | State Code: | 11 | 1168.0 sqft | Value: | $250,380 |
| Bathrooms (#): | 2 (FULL) | Bedrooms (#): | 3 | | Exterior Wall: | PL/T1 | Floor Construction: | FRAME | | Foundation: | CONPR | Heating/Cooling: | ELBB | | Inside Verify: | YES-FIX | Roof Cover: | COMP |
|
| | Type | Description | Class CD | Sub Class CD | Year Built | Area |
| | MA | Main Area | 3 | 1S | 1998 | 1168.0 |
| | HWPOR | House Wood Porch | 3 | 1S | 1998 | 96.0 |
| | HDECK | House Deck | 3 | 1S | 1998 | 160.0 |
| | GATT | House Attached Garage | 3 | 1S | 1998 | 558.0 |
| | ADDN-D | Addition (Table Depreciated) | 3 | 1S | 1998 | 384.0 |
| | CONCD | Concrete Drive | 3 | 1S | 1998 | 360.0 |
| | HWPOR | House Wood Porch | 3 | 1S | 1998 | 160.0 |
Sketch
Property Image
Land
| 1 | 4620-1375S | Residential Sites 1+/- Ac Territorial Views | 1.0000 | 43560.00 | 0.00 | 0.00 | 1.00 | $152,250 | $0 |
| 2 | 1573A | Terr/Mtn/No View <6 Acres | 3.8100 | 165963.60 | 0.00 | 0.00 | 0.00 | $59,008 | $0 |
Roll Value History
| 2025 | N/A | N/A | N/A | N/A | N/A |
| 2024 | $250,380 | $211,258 | $0 | $461,638 | $461,638 |
| 2023 | $238,999 | $193,340 | $0 | $432,339 | $250,322 |
| 2022 | $219,067 | $180,720 | $0 | $399,787 | $399,787 |
| 2021 | $192,164 | $173,030 | $0 | $365,194 | $250,322 |
Deed and Sales History
| 1 | 05/24/1994 | SWD | Statutory Warranty Deed | TURNER, LESLIE D/DEVORA C | TRAVIS, ROGER G/SUSAN D | 0 | 0 | $54,000.00 | 74280 | 0 |
Payout Agreement
| No payout information available.. |