Property
Account |
| Property ID: | 23296 | Abbreviated Legal Description: | EAST RIDGE SHORT PLAT LOT 4 SUBJ TO REST COVT AFN#436877 |
| Parcel # / Geo ID: | 921182037 | Agent Code: | |
| Type: | Real | | |
| Tax Area: | 0211 - 1-49F1E1H2L1 | Land Use Code | 11 |
| Open Space: | N | DFL | N |
| Historic Property: | N | Remodel Property: | N |
| Multi-Family Redevelopment: | N | | |
| Township: | 29N | Section: | 18 |
| Range: | 1E |
Location |
| Address: | 2435 OAK BAY RD PORT HADLOCK, WA 98339 | Mapsco: | 229/004 |
| Neighborhood: | S18 & S19 T29N R1E; SKYWATER LLS; OAK/HOG/FIN/DON/GLAV S.P.S | Map ID: | |
| Neighborhood CD: | 4650 |
Owner |
| Name: | TAMARA K RUMPEL REVOCABLE TRUST | Owner ID: | 75989 |
| Mailing Address: | TAMARA K RUMPEL TRUSTEE PO BOX 1063 PORT TOWNSEND, WA 98368-0013 | % Ownership: | 100.0000000000% |
| | | Exemptions: | |
Pay Tax Due
There is currently No Amount Due on this property.
Taxes and Assessment Details
Property Tax Information as of
10/24/2025
Click on "Statement Details" to expand or collapse a tax statement.
* Please enter a valid date ** Please enter a valid date *
Statement Details |
| | TOTAL: | $0.00 | $0.00 | $0.00 | $0.00 | $0.00 | $0.00 |
|
| | $0.00 | $0.00 | $0.00 | $0.00 | $0.00 | $0.00 |
Values
| (+) Improvement Homesite Value: | + | $0 | |
| (+) Improvement Non-Homesite Value: | + | $45,826 | |
| (+) Land Homesite Value: | + | $0 | |
| (+) Land Non-Homesite Value: | + | $155,308 | |
| (+) Curr Use (HS): | + | $0 | $0 |
| (+) Curr Use (NHS): | + | $0 | $0 |
| | | -------------------------- | |
| (=) Market Value: | = | $201,134 | |
| (–) Productivity Loss: | – | $0 | |
| | | -------------------------- | |
| (=) Subtotal: | = | $201,134 | |
| (+) Senior Appraised Value: | + | $0 | |
| (+) Non-Senior Appraised Value: | + | $201,134 | |
| | | -------------------------- | |
| (=) Total Appraised Value: | = | $201,134 | |
| (–) Senior Exemption Loss: | – | $0 | |
| (–) Exemption Loss: | – | $0 | |
| | | -------------------------- | |
| (=) Taxable Value: | = | $201,134 | |
Taxing Jurisdiction
| Owner: | TAMARA K RUMPEL REVOCABLE TRUST | | |
| % Ownership: | 100.0000000000% | | |
| Total Value: | N/A | | |
| Tax Area: | 0211 - 1-49F1E1H2L1 |
| CE | COUNTY CURRENT EXPENSE | N/A | N/A | N/A | N/A | | |
| CNTYDD | DEVELOPMENTAL DISABILITIES | N/A | N/A | N/A | N/A | | |
| CNTYVET | VETERANS RELIEF | N/A | N/A | N/A | N/A | | |
| MENTAL | MENTAL HEALTH | N/A | N/A | N/A | N/A | | |
| ROADS | COUNTY ROADS | N/A | N/A | N/A | N/A | | |
| ROADSCU | COUNTY ROADS TO CUR EXP | N/A | N/A | N/A | N/A | | |
| HOSP2CASH | HOSP DIST #2 GENERAL | N/A | N/A | N/A | N/A | | |
| SCH49CP | SCHOOL DIST #49 CAP PROJ | N/A | N/A | N/A | N/A | | |
| SCH49MO | SCHOOL DIST #49 EP & O | N/A | N/A | N/A | N/A | | |
| CONSERVE | CONSERVATION FUTURES | N/A | N/A | N/A | N/A | | |
| EMS1 | FIRE DIST #1 EMS | N/A | N/A | N/A | N/A | | |
| FD1 | FIRE DIST #1 GENERAL | N/A | N/A | N/A | N/A | | |
| LIB1 | LIBRARY DIST #1 GENERAL | N/A | N/A | N/A | N/A | | |
| PORTPT | PORT OF PT GENERAL | N/A | N/A | N/A | N/A | | |
| PORTPTIDD | PORT OF PT IDD 2019 | N/A | N/A | N/A | N/A | | |
| PUD1 | PUD #1 GENERAL | N/A | N/A | N/A | N/A | | |
| STATE | STATE SCHOOL PART 1 | N/A | N/A | N/A | N/A | | |
| STATE2 | STATE SCHOOL PART 2 | N/A | N/A | N/A | N/A | | |
| | Total Tax Rate: | N/A | | | | | |
| | | | | Taxes w/Current Exemptions: | N/A | | |
| | | | | Taxes w/o Exemptions: | N/A | | |
Improvement / Building
| Improvement #1: | Manufactured Home | State Code: | 11 | 896.0 sqft | Value: | $45,826 |
| Bathrooms (#): | 1 (FULL) | Bedrooms (#): | 3 | | Exterior Wall: | METAL | Floor Construction: | FRAME | | Foundation: | PO&BL | Heating/Cooling: | F/A | | Inside Verify: | YES-FIX | Roof Cover: | METAL |
|
| | Type | Description | Class CD | Sub Class CD | Year Built | Area |
| | MA | Main Area | 3 | MSG | 1975 | 896.0 |
| | MDECK | MH Deck | 3 | MSG | 1975 | 160.0 |
Sketch
| No sketches available for this property. |
Property Image
Land
| 1 | 1573A | Terr/Mtn/No View <6 Acres | 0.8400 | 36590.40 | 0.00 | 0.00 | 0.00 | $10,408 | $0 |
| 2 | 4650-1365S | Residential Sites 1+/- Ac Fair Water Views | 1.0000 | 43560.00 | 0.00 | 0.00 | 1.00 | $144,900 | $0 |
Roll Value History
| 2025 | N/A | N/A | N/A | N/A | N/A |
| 2024 | $45,826 | $155,308 | $0 | $201,134 | $201,134 |
| 2023 | $43,743 | $142,408 | $0 | $186,151 | $186,151 |
| 2022 | $31,451 | $103,064 | $0 | $134,515 | $134,515 |
| 2021 | $26,209 | $93,978 | $0 | $120,187 | $120,187 |
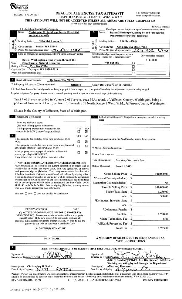
Deed and Sales History
| 1 | 06/18/2018 | SWD | Statutory Warranty Deed | OAK BAY LLC | TAMARA K RUMPEL REVOCABLE TRUST | | | $200,000.00 | 130443 | |
|   | |
| 2 | 11/25/2013 | QCD | Quit Claim Deed | OREGON LLC A WA LLC | OAK BAY LLC | | | | 120411 | |
| 3 | 04/01/2011 | SWD | Statutory Warranty Deed | SMITH, CRAIG C | OREGON LLC, | | | $65,500.00 | 115901 | 0 |
| 4 | 05/17/2010 | TRED | Trustee Deed | SLADE, ROGER/DEWEY, ALICE | SMITH, CRAIG C | | | $0.00 | 114403 | 0 |
| 5 | 06/07/2007 | SWD | Statutory Warranty Deed | KIRAC, TAMER/DEBORAH | SLADE, ROGER/DEWEY, ALICE | | | $125,000.00 | 109435 | 0 |
| 6 | 04/16/2005 | SWD | Statutory Warranty Deed | SMITH, CRAIG | KIRAC, TAMER/DEBORAH J | | | $105,000.00 | 103298 | 0 |
| 7 | 04/13/2005 | QCD | Quit Claim Deed | SMITH, CINDY LOU | SMITH, CRAIG | | | $0.00 | 103242 | 0 |
Payout Agreement
| No payout information available.. |