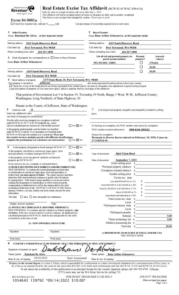
Property
Account |
| Property ID: | 23303 | Abbreviated Legal Description: | S18 T29 R1E TAX 25(S1/2) |
| Parcel # / Geo ID: | 921183012 | Agent Code: | |
| Type: | Real | | |
| Tax Area: | 0211 - 1-49F1E1H2L1 | Land Use Code | 11 |
| Open Space: | N | DFL | N |
| Historic Property: | N | Remodel Property: | N |
| Multi-Family Redevelopment: | N | | |
| Township: | 29N | Section: | 18 |
| Range: | 1E |
Location |
| Address: | 2913 OAK BAY RD PORT HADLOCK, WA 98339 | Mapsco: | 172/030 |
| Neighborhood: | S18 & S19 T29N R1E; SKYWATER LLS; OAK/HOG/FIN/DON/GLAV S.P.S | Map ID: | |
| Neighborhood CD: | 4650 |
Owner |
| Name: | ALAN & TERRI ROSS 2012 TRUST | Owner ID: | 75596 |
| Mailing Address: | 2971 OAK BAY RD PORT HADLOCK, WA 98339-9728 | % Ownership: | 100.0000000000% |
| | | Exemptions: | |
Pay Tax Due
There is currently No Amount Due on this property.
Taxes and Assessment Details
Property Tax Information as of
10/24/2025
Click on "Statement Details" to expand or collapse a tax statement.
* Please enter a valid date ** Please enter a valid date *
Statement Details |
| | TOTAL: | $0.00 | $0.00 | $0.00 | $0.00 | $0.00 | $0.00 |
|
| | $0.00 | $0.00 | $0.00 | $0.00 | $0.00 | $0.00 |
Values
| (+) Improvement Homesite Value: | + | $0 | |
| (+) Improvement Non-Homesite Value: | + | $126,265 | |
| (+) Land Homesite Value: | + | $0 | |
| (+) Land Non-Homesite Value: | + | $455,175 | |
| (+) Curr Use (HS): | + | $0 | $0 |
| (+) Curr Use (NHS): | + | $0 | $0 |
| | | -------------------------- | |
| (=) Market Value: | = | $581,440 | |
| (–) Productivity Loss: | – | $0 | |
| | | -------------------------- | |
| (=) Subtotal: | = | $581,440 | |
| (+) Senior Appraised Value: | + | $0 | |
| (+) Non-Senior Appraised Value: | + | $581,440 | |
| | | -------------------------- | |
| (=) Total Appraised Value: | = | $581,440 | |
| (–) Senior Exemption Loss: | – | $0 | |
| (–) Exemption Loss: | – | $0 | |
| | | -------------------------- | |
| (=) Taxable Value: | = | $581,440 | |
Taxing Jurisdiction
| Owner: | ALAN & TERRI ROSS 2012 TRUST | | |
| % Ownership: | 100.0000000000% | | |
| Total Value: | N/A | | |
| Tax Area: | 0211 - 1-49F1E1H2L1 |
| CE | COUNTY CURRENT EXPENSE | N/A | N/A | N/A | N/A | | |
| CNTYDD | DEVELOPMENTAL DISABILITIES | N/A | N/A | N/A | N/A | | |
| CNTYVET | VETERANS RELIEF | N/A | N/A | N/A | N/A | | |
| MENTAL | MENTAL HEALTH | N/A | N/A | N/A | N/A | | |
| ROADS | COUNTY ROADS | N/A | N/A | N/A | N/A | | |
| ROADSCU | COUNTY ROADS TO CUR EXP | N/A | N/A | N/A | N/A | | |
| HOSP2CASH | HOSP DIST #2 GENERAL | N/A | N/A | N/A | N/A | | |
| SCH49CP | SCHOOL DIST #49 CAP PROJ | N/A | N/A | N/A | N/A | | |
| SCH49MO | SCHOOL DIST #49 EP & O | N/A | N/A | N/A | N/A | | |
| CONSERVE | CONSERVATION FUTURES | N/A | N/A | N/A | N/A | | |
| EMS1 | FIRE DIST #1 EMS | N/A | N/A | N/A | N/A | | |
| FD1 | FIRE DIST #1 GENERAL | N/A | N/A | N/A | N/A | | |
| LIB1 | LIBRARY DIST #1 GENERAL | N/A | N/A | N/A | N/A | | |
| PORTPT | PORT OF PT GENERAL | N/A | N/A | N/A | N/A | | |
| PORTPTIDD | PORT OF PT IDD 2019 | N/A | N/A | N/A | N/A | | |
| PUD1 | PUD #1 GENERAL | N/A | N/A | N/A | N/A | | |
| STATE | STATE SCHOOL PART 1 | N/A | N/A | N/A | N/A | | |
| STATE2 | STATE SCHOOL PART 2 | N/A | N/A | N/A | N/A | | |
| | Total Tax Rate: | N/A | | | | | |
| | | | | Taxes w/Current Exemptions: | N/A | | |
| | | | | Taxes w/o Exemptions: | N/A | | |
Improvement / Building
| Improvement #1: | Residential Bldg | State Code: | 11 | 0.0 sqft | Value: | $126,265 |
| | Type | Description | Class CD | Sub Class CD | Year Built | Area |
| | GDET | Detached Garage | 3 | * | 2005 | 840.0 |
| | GDET | Detached Garage | 4 | * | 2014 | 2448.0 |
| | ASPHD | Asphalt Drive | 3 | * | 0 | 3000.0 |
Sketch
Property Image
Land
| 1 | 4650-1535F | Med/High Bank Wtrfrt along Oak Bay | 0.0000 | 0.00 | 0.00 | 0.00 | 0.00 | $346,500 | $0 |
| 2 | 4650-1535F | Med/High Bank Wtrfrt along Oak Bay | 0.0000 | 0.00 | 0.00 | 0.00 | 0.00 | $108,675 | $0 |
Roll Value History
| 2025 | N/A | N/A | N/A | N/A | N/A |
| 2024 | $126,265 | $455,175 | $0 | $581,440 | $581,440 |
| 2023 | $120,525 | $428,500 | $0 | $549,025 | $549,025 |
| 2022 | $113,096 | $423,500 | $0 | $536,596 | $536,596 |
| 2021 | $94,247 | $342,068 | $0 | $436,315 | $436,315 |
Deed and Sales History
| 1 | 03/21/2015 | SWD | Statutory Warranty Deed | ALAN E ROSS | ALAN & TERRI ROSS 2012 TRUST | | | | 122964 | |
| 2 | 11/30/2011 | SWD | Statutory Warranty Deed | HIGUERA, GERALD/SHERLEY T | ROSS, ALAN/TERRI | 0 | 0 | $0.00 | 116861 | 0 |
| 3 | 11/14/2007 | QCD | Quit Claim Deed | DOGAN, HELEN | HIGUERA, GERALD & SHERLEY | 0 | 0 | $0.00 | 110501 | 0 |
| 4 | 09/07/2007 | MISC | MISC | HIGUERA, SHERLEY A | HIGUERA, GERALD L/SHERLEY A TR | 0 | 0 | $0.00 | 110088 | 0 |
| 5 | 04/11/2005 | PRD | Personal Representatives Deed | HAGER ESTATE, GRACE M | HIGUERA, SHERLEY A | | | $0.00 | 103220 | 0 |
Payout Agreement
| No payout information available.. |