Property
Account |
| Property ID: | 23322 | Abbreviated Legal Description: | S19 T29 R1E TAX 134 BND TGTH THRU BLA#105566 |
| Parcel # / Geo ID: | 921191001 | Agent Code: | |
| Type: | Real | | |
| Tax Area: | 0211 - 1-49F1E1H2L1 | Land Use Code | 11 |
| Open Space: | N | DFL | N |
| Historic Property: | N | Remodel Property: | N |
| Multi-Family Redevelopment: | N | | |
| Township: | 29N | Section: | 19 |
| Range: | 1E |
Location |
| Address: | 3162 OAK BAY RD PORT HADLOCK, WA 98339 | Mapsco: | 174/054 |
| Neighborhood: | S18 & S19 T29N R1E; SKYWATER LLS; OAK/HOG/FIN/DON/GLAV S.P.S | Map ID: | |
| Neighborhood CD: | 4650 |
Owner |
| Name: | R KAUFMANN & P PETRAKOS TRUST | Owner ID: | 94253 |
| Mailing Address: | ROBERT KAUFMANN TRUSTEE PETER PETRAKOS TRUSTEE 3162 OAK BAY RD PORT HADLOCK, WA 98339-9717 | % Ownership: | 100.0000000000% |
| | | Exemptions: | |
Pay Tax Due
There is currently No Amount Due on this property.
Taxes and Assessment Details
Property Tax Information as of
10/24/2025
Click on "Statement Details" to expand or collapse a tax statement.
* Please enter a valid date ** Please enter a valid date *
Statement Details |
| | TOTAL: | $0.00 | $0.00 | $0.00 | $0.00 | $0.00 | $0.00 |
|
| | $0.00 | $0.00 | $0.00 | $0.00 | $0.00 | $0.00 |
Values
| (+) Improvement Homesite Value: | + | $0 | |
| (+) Improvement Non-Homesite Value: | + | $649,253 | |
| (+) Land Homesite Value: | + | $0 | |
| (+) Land Non-Homesite Value: | + | $293,053 | |
| (+) Curr Use (HS): | + | $0 | $0 |
| (+) Curr Use (NHS): | + | $0 | $0 |
| | | -------------------------- | |
| (=) Market Value: | = | $942,306 | |
| (–) Productivity Loss: | – | $0 | |
| | | -------------------------- | |
| (=) Subtotal: | = | $942,306 | |
| (+) Senior Appraised Value: | + | $0 | |
| (+) Non-Senior Appraised Value: | + | $942,306 | |
| | | -------------------------- | |
| (=) Total Appraised Value: | = | $942,306 | |
| (–) Senior Exemption Loss: | – | $0 | |
| (–) Exemption Loss: | – | $0 | |
| | | -------------------------- | |
| (=) Taxable Value: | = | $942,306 | |
Taxing Jurisdiction
| Owner: | R KAUFMANN & P PETRAKOS TRUST | | |
| % Ownership: | 100.0000000000% | | |
| Total Value: | N/A | | |
| Tax Area: | 0211 - 1-49F1E1H2L1 |
| CE | COUNTY CURRENT EXPENSE | N/A | N/A | N/A | N/A | | |
| CNTYDD | DEVELOPMENTAL DISABILITIES | N/A | N/A | N/A | N/A | | |
| CNTYVET | VETERANS RELIEF | N/A | N/A | N/A | N/A | | |
| MENTAL | MENTAL HEALTH | N/A | N/A | N/A | N/A | | |
| ROADS | COUNTY ROADS | N/A | N/A | N/A | N/A | | |
| ROADSCU | COUNTY ROADS TO CUR EXP | N/A | N/A | N/A | N/A | | |
| HOSP2CASH | HOSP DIST #2 GENERAL | N/A | N/A | N/A | N/A | | |
| SCH49CP | SCHOOL DIST #49 CAP PROJ | N/A | N/A | N/A | N/A | | |
| SCH49MO | SCHOOL DIST #49 EP & O | N/A | N/A | N/A | N/A | | |
| CONSERVE | CONSERVATION FUTURES | N/A | N/A | N/A | N/A | | |
| EMS1 | FIRE DIST #1 EMS | N/A | N/A | N/A | N/A | | |
| FD1 | FIRE DIST #1 GENERAL | N/A | N/A | N/A | N/A | | |
| LIB1 | LIBRARY DIST #1 GENERAL | N/A | N/A | N/A | N/A | | |
| PORTPT | PORT OF PT GENERAL | N/A | N/A | N/A | N/A | | |
| PORTPTIDD | PORT OF PT IDD 2019 | N/A | N/A | N/A | N/A | | |
| PUD1 | PUD #1 GENERAL | N/A | N/A | N/A | N/A | | |
| STATE | STATE SCHOOL PART 1 | N/A | N/A | N/A | N/A | | |
| STATE2 | STATE SCHOOL PART 2 | N/A | N/A | N/A | N/A | | |
| | Total Tax Rate: | N/A | | | | | |
| | | | | Taxes w/Current Exemptions: | N/A | | |
| | | | | Taxes w/o Exemptions: | N/A | | |
Improvement / Building
| Improvement #1: | Residential Bldg | State Code: | 11 | 2159.0 sqft | Value: | $649,253 |
| Bathrooms (#): | 3 (FULL) | Bedrooms (#): | 3 | | Exterior Wall: | SI/ST | Fireplace: | SIN 1-GOOD | | Floor Construction: | FRAME | Foundation: | CONPR | | Heating/Cooling: | HPUMP | Roof Cover: | METAL |
|
| | Type | Description | Class CD | Sub Class CD | Year Built | Area |
| | MA | Main Area | 5- | 1S | 2011 | 2159.0 |
| | HCPOR | House Concrete Porch | 5 | 1S | 2011 | 416.0 |
| | GATT | House Attached Garage | 5 | 1S | 2011 | 625.0 |
| | PATIO | House Patio | 5 | 1S | 2011 | 640.0 |
| | SHED | Shed (Table Not Dep) | 5 | 1S | 2011 | 0.0 |
| | OTHER | Other | 5 | 1S | 2011 | 75.0 |
Sketch
Property Image
Land
| 1 | 4650-1147S | Eagle Ridge Large Lots | 1.0000 | 43560.00 | 0.00 | 0.00 | 1.00 | $252,000 | $0 |
| 2 | 1575A | Terr/Mtn/No View <6 Acres | 4.0100 | 174675.60 | 0.00 | 0.00 | 0.00 | $41,053 | $0 |
Roll Value History
| 2025 | N/A | N/A | N/A | N/A | N/A |
| 2024 | $649,253 | $293,053 | $0 | $942,306 | $942,306 |
| 2023 | $619,742 | $272,093 | $0 | $891,835 | $891,835 |
| 2022 | $583,910 | $264,085 | $0 | $847,995 | $847,995 |
| 2021 | $463,421 | $250,781 | $0 | $714,202 | $714,202 |
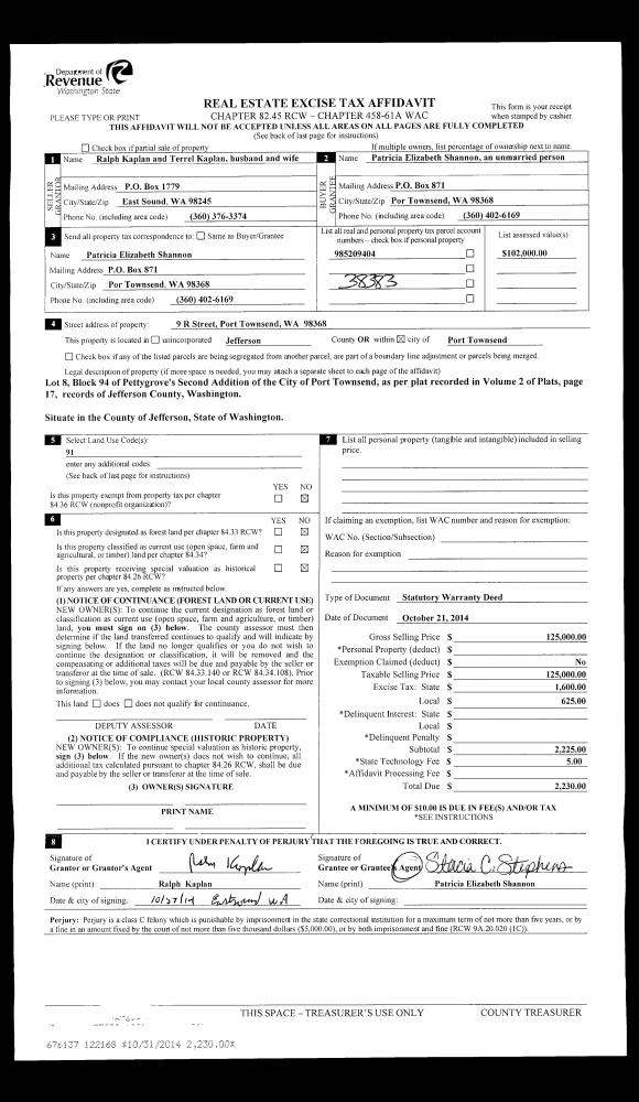
Deed and Sales History
| 1 | 08/31/2015 | QCD | Quit Claim Deed | ROBERT G KAUFMANN TRSTEE | R KAUFMANN & P PETRAKOS TRUST | | | | 123923 | |
| 2 | 09/28/2009 | SWD | Statutory Warranty Deed | ALLEN, BRETT/APRIL T | ROBERT KAUFMANN REVOC TRUST | 0 | 0 | $238,000.00 | 113482 | 0 |
| 3 | 10/18/2005 | BLA | Boundary Line Adjustment | ALLEN, BRETT & APRIL | ALLEN, BRETT & APRIL | 0 | 0 | $0.00 | 105566 | 0 |
| 4 | 05/17/2005 | BLA | Boundary Line Adjustment | ALLEN, BRETT/APRIL | ALLEN, BRETT/APRIL | 0 | 0 | $0.00 | 108778 | 0 |
| 5 | 01/28/2005 | SWD | Statutory Warranty Deed | CASPERS, LUELLA F TRUSTEE | ALLEN, BRETT/APRIL T | 0 | 0 | $0.00 | 102650 | 0 |
| 6 | 01/06/2000 | QCD | Quit Claim Deed | CASPERS, JAMES W/LUELLA F | CASPERS REVOCABLE LIVING TRUST | 0 | 0 | $0.00 | 88748 | 0 |
| 7 | 10/24/1996 | SWD | Statutory Warranty Deed | LAFRAMBOISE, JAMES/SUSAN | CASPERS, JAMES W/LUELLA F | 0 | 0 | $37,000.00 | 80684 | 0 |
Payout Agreement
| No payout information available.. |