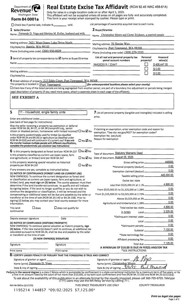
Property
Account |
| Property ID: | 23384 | Abbreviated Legal Description: | S19 T29 R1E TAX 48A,49,49A & 50A |
| Parcel # / Geo ID: | 921193033 | Agent Code: | |
| Type: | Real | | |
| Tax Area: | 0211 - 1-49F1E1H2L1 | Land Use Code | 11 |
| Open Space: | N | DFL | N |
| Historic Property: | N | Remodel Property: | N |
| Multi-Family Redevelopment: | N | | |
| Township: | 29N | Section: | 19 |
| Range: | 1E |
Location |
| Address: | 261 SENTINEL FIRS RD PORT HADLOCK, WA 98339 | Mapsco: | 175/043 |
| Neighborhood: | SENTINAL FIRS UNRECORDED PLAT (TAX NO'S IN S19 T29N R1E) | Map ID: | |
| Neighborhood CD: | 4660 |
Owner |
| Name: | DONALD H PRICE | Owner ID: | 112314 |
| Mailing Address: | 261 SENTINEL FIRS RD PORT HADLOCK, WA 98339-9765 | % Ownership: | 100.0000000000% |
| | | Exemptions: | |
Pay Tax Due
There is currently No Amount Due on this property.
Taxes and Assessment Details
Property Tax Information as of
10/24/2025
Click on "Statement Details" to expand or collapse a tax statement.
* Please enter a valid date ** Please enter a valid date *
Statement Details |
| | TOTAL: | $0.00 | $0.00 | $0.00 | $0.00 | $0.00 | $0.00 |
|
| | $0.00 | $0.00 | $0.00 | $0.00 | $0.00 | $0.00 |
Values
| (+) Improvement Homesite Value: | + | $0 | |
| (+) Improvement Non-Homesite Value: | + | $93,194 | |
| (+) Land Homesite Value: | + | $0 | |
| (+) Land Non-Homesite Value: | + | $110,250 | |
| (+) Curr Use (HS): | + | $0 | $0 |
| (+) Curr Use (NHS): | + | $0 | $0 |
| | | -------------------------- | |
| (=) Market Value: | = | $203,444 | |
| (–) Productivity Loss: | – | $0 | |
| | | -------------------------- | |
| (=) Subtotal: | = | $203,444 | |
| (+) Senior Appraised Value: | + | $0 | |
| (+) Non-Senior Appraised Value: | + | $203,444 | |
| | | -------------------------- | |
| (=) Total Appraised Value: | = | $203,444 | |
| (–) Senior Exemption Loss: | – | $0 | |
| (–) Exemption Loss: | – | $0 | |
| | | -------------------------- | |
| (=) Taxable Value: | = | $203,444 | |
Taxing Jurisdiction
| Owner: | DONALD H PRICE | | |
| % Ownership: | 100.0000000000% | | |
| Total Value: | N/A | | |
| Tax Area: | 0211 - 1-49F1E1H2L1 |
| CE | COUNTY CURRENT EXPENSE | N/A | N/A | N/A | N/A | | |
| CNTYDD | DEVELOPMENTAL DISABILITIES | N/A | N/A | N/A | N/A | | |
| CNTYVET | VETERANS RELIEF | N/A | N/A | N/A | N/A | | |
| MENTAL | MENTAL HEALTH | N/A | N/A | N/A | N/A | | |
| ROADS | COUNTY ROADS | N/A | N/A | N/A | N/A | | |
| ROADSCU | COUNTY ROADS TO CUR EXP | N/A | N/A | N/A | N/A | | |
| HOSP2CASH | HOSP DIST #2 GENERAL | N/A | N/A | N/A | N/A | | |
| SCH49CP | SCHOOL DIST #49 CAP PROJ | N/A | N/A | N/A | N/A | | |
| SCH49MO | SCHOOL DIST #49 EP & O | N/A | N/A | N/A | N/A | | |
| CONSERVE | CONSERVATION FUTURES | N/A | N/A | N/A | N/A | | |
| EMS1 | FIRE DIST #1 EMS | N/A | N/A | N/A | N/A | | |
| FD1 | FIRE DIST #1 GENERAL | N/A | N/A | N/A | N/A | | |
| LIB1 | LIBRARY DIST #1 GENERAL | N/A | N/A | N/A | N/A | | |
| PORTPT | PORT OF PT GENERAL | N/A | N/A | N/A | N/A | | |
| PORTPTIDD | PORT OF PT IDD 2019 | N/A | N/A | N/A | N/A | | |
| PUD1 | PUD #1 GENERAL | N/A | N/A | N/A | N/A | | |
| STATE | STATE SCHOOL PART 1 | N/A | N/A | N/A | N/A | | |
| STATE2 | STATE SCHOOL PART 2 | N/A | N/A | N/A | N/A | | |
| | Total Tax Rate: | N/A | | | | | |
| | | | | Taxes w/Current Exemptions: | N/A | | |
| | | | | Taxes w/o Exemptions: | N/A | | |
Improvement / Building
| Improvement #1: | Manufactured Home | State Code: | 11 | 924.0 sqft | Value: | $93,194 |
| Bathrooms (#): | 2 (FULL) | Bedrooms (#): | 1 | | Exterior Wall: | METAL | Floor Construction: | FRAME | | Foundation: | PO&BL | Heating/Cooling: | F/A | | Roof Cover: | METAL |   |   |
|
| | Type | Description | Class CD | Sub Class CD | Year Built | Area |
| | MA | Main Area | 3 | MSG | 1990 | 924.0 |
| | GDET | Detached Garage | 2 | MSG | 1990 | 720.0 |
| | GDET | Detached Garage | 2 | MSG | 1990 | 1080.0 |
Sketch
Property Image
Land
| 1 | 4660-1275S | Sentinal Firs .5+ Acre Sites On Road | 1.0000 | 43560.00 | 0.00 | 0.00 | 1.00 | $63,000 | $0 |
| 2 | 4660-1277S | Sentinal Firs .5+ Acre Sites Off Road | 3.0000 | 130680.00 | 0.00 | 0.00 | 3.00 | $47,250 | $0 |
Roll Value History
| 2025 | N/A | N/A | N/A | N/A | N/A |
| 2024 | $93,194 | $110,250 | $0 | $203,444 | $203,444 |
| 2023 | $88,958 | $100,000 | $0 | $188,958 | $188,958 |
| 2022 | $75,983 | $95,000 | $0 | $170,983 | $170,983 |
| 2021 | $63,319 | $78,750 | $0 | $142,069 | $142,069 |
Deed and Sales History
| 1 | 03/26/2025 | ADM | Administrator Deed | MAXINE S DUSSELJEE | DONALD H PRICE | | | | 144042 | |
| 2 | 01/05/2011 | SWD | Statutory Warranty Deed | MERGEL, ROY AKA, MERGEL, | DUSSELJEE,MAXINE/PRICE,DONALD | 0 | 0 | $147,500.00 | 115439 | 0 |
| 3 | 01/28/1992 | REC | Real Estate Contract | OLSON, DONALD G/BETTY J | MERGEL, L. ROY/MARY L | 0 | 0 | $6,000.00 | 67773 | 0 |
Payout Agreement
| No payout information available.. |